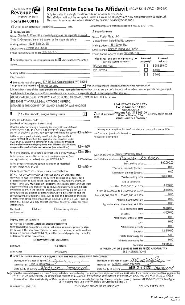
Property
Account |
| Property ID: | 542835 | Abbreviated Legal Description: | SE SW LY N OF HWY & E TR 15D110 & N334' OF W60' SW SE EX RD & PT E21.5 ACS NE SW: BG NE CR SW S851.06' N89*W300' S30.5' N89*W402. 35' S TO SLN NE SW S89*E702 .35' M/L N TPB FR 150 2300 & 120 2500 12/81 |
| Geographic ID: | R33220-148-2330 | Agent Code: | |
| Type: | Real | | |
| Tax Area: | 592 - APPRAISER-Stan/Cam Schl Dist, Special Dist, improved, greater than 1 acre | Land Use Code | 11 |
| Open Space: | N | DFL | N |
| Historic Property: | N | Remodel Property: | N |
| Multi-Family Redevelopment: | N | | |
| Township: | 32 | Section: | 20 |
| Range: | R3 |
Location |
| Address: | 577 SR532 CAMANO ISLAND, WA 98282 | Mapsco: | |
| Neighborhood: | North Camano | Map ID: | 964 |
| Neighborhood CD: | 06-C |
Owner |
| Name: | POPLAR FLATS, LLC | Owner ID: | 306926 |
| Mailing Address: | 361 SAYLOR RD CAMANO ISLAND, WA 98282 | % Ownership: | 100.0000000000% |
| | | Exemptions: | |
Taxes and Assessment Details
Values
| (+) Improvement Homesite Value: | + | $0 | |
| (+) Improvement Non-Homesite Value: | + | $274,171 | |
| (+) Land Homesite Value: | + | $0 | |
| (+) Land Non-Homesite Value: | + | $380,000 | |
| (+) Curr Use (HS): | + | $0 | $0 |
| (+) Curr Use (NHS): | + | $0 | $0 |
| | | -------------------------- | |
| (=) Market Value: | = | $654,171 | |
| (–) Productivity Loss: | – | $0 | |
| | | -------------------------- | |
| (=) Subtotal: | = | $654,171 | |
| (+) Senior Appraised Value: | + | $0 | |
| (+) Non-Senior Appraised Value: | + | $654,171 | |
| | | -------------------------- | |
| (=) Total Appraised Value: | = | $654,171 | |
| (–) Senior Exemption Loss: | – | $0 | |
| (–) Exemption Loss: | – | $0 | |
| | | -------------------------- | |
| (=) Taxable Value: | = | $654,171 | |
Taxing Jurisdiction
| Owner: | POPLAR FLATS, LLC | | |
| % Ownership: | 100.0000000000% | | |
| Total Value: | $654,171 | | |
| Tax Area: | 592 - APPRAISER-Stan/Cam Schl Dist, Special Dist, improved, greater than 1 acre |
| CF | Conservation Futures | 0.0313996660 | $654,171 | $654,171 | $20.54 | | |
| EMS1 | Fire & Rescue Dist #1 Camano GEN (EMS) | 0.4998471806 | $654,171 | $654,171 | $326.99 | | |
| FIRE1 | Fire & Rescue Dist #1 Camano GEN | 1.2496603404 | $654,171 | $654,171 | $817.49 | | |
| FIRE1BOND | Fire & Rescue Dist #1 Camano BOND | 0.1630371212 | $654,171 | $654,171 | $106.65 | | |
| CE | County Current Expense | 0.3674210519 | $654,171 | $654,171 | $240.36 | | |
| CR | County Roads | 0.4614296361 | $654,171 | $654,171 | $301.85 | | |
| LIB | Library Sno-Isle GEN | 0.3039084203 | $654,171 | $654,171 | $198.81 | | |
| SCH205_401 | School 205-401 Enrichment | 1.3697998934 | $654,171 | $654,171 | $896.08 | | |
| SCH205BOND | School 205-401 BOND | 0.9354199323 | $654,171 | $654,171 | $611.92 | | |
| ST | State School | 1.4761226122 | $654,171 | $654,171 | $965.64 | | |
| ST2 | State School Part 2 | 0.7953803475 | $654,171 | $654,171 | $520.31 | | |
| | Total Tax Rate: | 7.6534262019 | | | | | |
| | | | | Taxes w/Current Exemptions: | $5,006.64 | | |
| | | | | Taxes w/o Exemptions: | $5,006.64 | | |
Improvement / Building
| Improvement #1: | RESIDENTIAL | State Code: | Y | 1872.0 sqft | Value: | $274,171 |
| Bathrooms: | 2 | Bedrooms: | 3 | | Ceiling: | DRYWALL PAINTED | Exterior Wall/Cover: | VINYL | | Floor Covering: | CARPET/VINYL 80-20 | Floor Structure: | WOOD W/SUBFLOOR | | Foundation: | WOOD BLOCKS | Heating: | BASEBOARD ELECTRIC | | Interior Finish: | DRYWALL PAINT | Plumbing Fixture Cnt: | 9 | | Roof Slope: | 5" IN 12" | Roof Structure/Cover: | CJ ALUMINIUM HEAVY |
|
| | Type | Description | Class CD | Sub Class CD | Year Built | Area |
| | BAS | BASE/MAIN FLOOR | 3 | 0 | 1905 | 1062.0 |
| | OWP | OPEN WOOD PORCH W/STEPS | 3 | 0 | 1905 | 296.0 |
| | UTY | STORAGE/UTILITY | 3 | 0 | 1905 | 2000.0 |
| | ENP | ENCLOSED PORCH | 3 | 0 | 1905 | 296.0 |
| | ENP | ENCLOSED PORCH | 3 | 0 | 1905 | 120.0 |
| | UPH | HALF STORY | 3 | 0 | 1905 | 810.0 |
| | UTY | STORAGE/UTILITY | 3 | 0 | 1905 | 1155.0 |
| | CPD | OPEN CARPORT DIRT FLOOR | 3 | 0 | 1905 | 216.0 |
| | CPD | OPEN CARPORT DIRT FLOOR | 3 | 0 | 1905 | 300.0 |
Sketch
Property Image
Land
| 1 | 32 | AC (03.01-09.99) | 0.0000 | 0.00 | 0.00 | 0.00 | 1.00 | $380,000 | $0 |
Roll Value History
| 2026 | N/A | N/A | N/A | N/A | N/A |
| 2025 | $274,171 | $380,000 | $0 | $654,171 | $654,171 |
| 2024 | $284,961 | $390,000 | $0 | $674,961 | $674,961 |
| 2023 | $289,539 | $380,000 | $0 | $669,539 | $669,539 |
| 2022 | $233,369 | $350,000 | $0 | $583,369 | $583,369 |
| 2021 | $206,429 | $240,000 | $0 | $446,429 | $446,429 |
| 2020 | $202,353 | $200,000 | $0 | $402,353 | $402,353 |
| 2019 | $151,281 | $240,000 | $0 | $391,281 | $391,281 |
| 2018 | $151,900 | $220,000 | $0 | $371,900 | $371,900 |
| 2017 | $153,135 | $200,000 | $0 | $353,135 | $353,135 |
| 2016 | $125,911 | $180,000 | $0 | $305,911 | $305,911 |
| 2015 | $127,722 | $197,200 | $0 | $324,922 | $324,922 |
| 2014 | $129,531 | $197,200 | $0 | $326,731 | $326,731 |
| 2013 | $131,340 | $197,200 | $0 | $328,540 | $328,540 |
| 2012 | $133,151 | $197,200 | $0 | $330,351 | $330,351 |
| 2011 | $134,960 | $246,500 | $0 | $381,460 | $381,460 |
| 2010 | $173,967 | $246,500 | $0 | $420,467 | $420,467 |
| 2009 | $181,818 | $295,800 | $0 | $477,618 | $477,618 |
| 2008 | $185,271 | $315,520 | $0 | $500,791 | $500,791 |
| 2007 | $189,371 | $315,520 | $0 | $504,891 | $504,891 |
Deed and Sales History
| 1 | 08/20/2022 | WD | Warranty Deed | CHURCHILL, CHARLES C | POPLAR FLATS, LLC | | | $800,000.00 | 54306 | 4550288 |
| 2 | 05/19/2022 | QCD | Quit Claim Deed | CHURCHILL, PATRICIA L | CHURCHILL, CHARLES C | | | $0.00 | 53345 | 4546212 |
| 3 | 11/06/2001 | 5 | DNU - Marriage License/Name Change | CHURCHILL, CHARLES R | CHURCHILL, PATRICIA L | | | $0.00 | 69188 | 0 |
| 4 | 12/01/1981 | OTHER | Other - Misc. Documents | CHURCHILL, CHARLES R | CHURCHILL, CHARLES R | | | $0.00 | 59331 | 0 |
| 5 | 06/01/1980 | REC | Real Estate Contract | Unknown | CHURCHILL, CHARLES R | | | $80,000.00 | 2160 | 370470 |
Payout Agreement
| No payout information available.. |