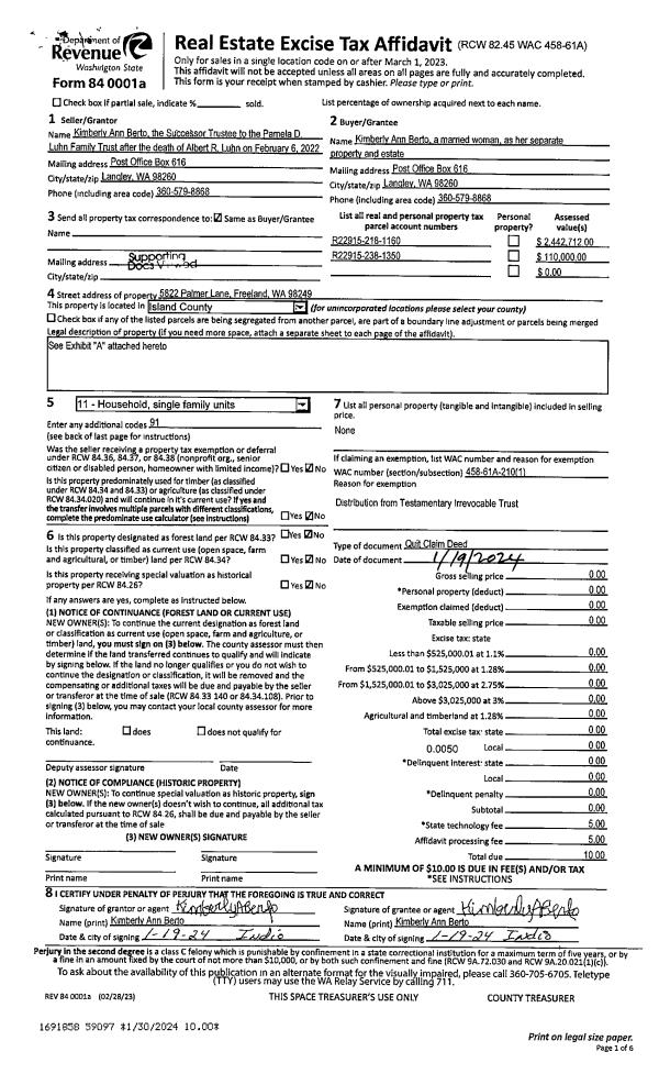
Property
Account |
| Property ID: | 54292 | Abbreviated Legal Description: | 31 BRUNN DC - BG PT SWLN CO RD 418'W OF ELN SD DC & 77 .9'S OF SECR MENLO BCH S1*W 380.83' S48*W59.05' N41*W 127.43'TPB N41*W56.53' S20*W150' S41*E56.53' N20*E 150'TPB (AKA LOT 3 UNREC PALMER'S MUTINY BAY TRS) INCL ADJ TIDES |
| Geographic ID: | R22915-218-1160 | Agent Code: | |
| Type: | Real | | |
| Tax Area: | 710 - APPRAISER-S Whid Schl Dist, outside Langley, improved & 1 acre or less | Land Use Code | 11 |
| Open Space: | N | DFL | N |
| Historic Property: | N | Remodel Property: | N |
| Multi-Family Redevelopment: | N | | |
| Township: | 29 | Section: | 15 |
| Range: | R2 |
Location |
| Address: | 5822 PALMER LN FREELAND, WA 98249 | Mapsco: | |
| Neighborhood: | Cycle 3 | Map ID: | 329 |
| Neighborhood CD: | 3 |
Owner |
| Name: | BOECKMANN REAL ESTATE MANAGEMENT, LLC | Owner ID: | 311969 |
| Mailing Address: | 5818 PALMER LN FREELAND, WA 98249 | % Ownership: | 100.0000000000% |
| | | Exemptions: | |
Taxes and Assessment Details
Values
| (+) Improvement Homesite Value: | + | N/A | |
| (+) Improvement Non-Homesite Value: | + | N/A | |
| (+) Land Homesite Value: | + | N/A | |
| (+) Land Non-Homesite Value: | + | N/A | Ag / Timber Use Value |
| (+) Curr Use (HS): | + | N/A | N/A |
| (+) Curr Use (NHS): | + | N/A | N/A |
| | | -------------------------- | |
| (=) Market Value: | = | N/A | |
| (–) Productivity Loss: | – | N/A | |
| | | -------------------------- | |
| (=) Subtotal: | = | N/A | |
| (+) Senior Appraised Value: | + | N/A | |
| (+) Non-Senior Appraised Value: | + | N/A | |
| | | -------------------------- | |
| (=) Total Appraised Value: | = | N/A | |
| (–) Senior Exemption Loss: | – | N/A | |
| (–) Exemption Loss: | – | N/A | |
| | | -------------------------- | |
| (=) Taxable Value: | = | N/A | |
Taxing Jurisdiction
| Owner: | BOECKMANN REAL ESTATE MANAGEMENT, LLC | | |
| % Ownership: | 100.0000000000% | | |
| Total Value: | N/A | | |
| Tax Area: | 710 - APPRAISER-S Whid Schl Dist, outside Langley, improved & 1 acre or less |
| CF | Conservation Futures | N/A | N/A | N/A | N/A | | |
| WCD | Whidbey Conservation District | N/A | N/A | N/A | N/A | | |
| FIRE3 | Fire & Rescue Dist #3 S Whidbey GEN | N/A | N/A | N/A | N/A | | |
| HOBOND | Hospital BOND | N/A | N/A | N/A | N/A | | |
| HOGEN | Hospital GEN | N/A | N/A | N/A | N/A | | |
| CE | County Current Expense | N/A | N/A | N/A | N/A | | |
| CR | County Roads | N/A | N/A | N/A | N/A | | |
| ISLANDEMS | Hospital GEN (EMS) | N/A | N/A | N/A | N/A | | |
| LIB | Library Sno-Isle GEN | N/A | N/A | N/A | N/A | | |
| PORTWHID | Port of S Whidbey GEN | N/A | N/A | N/A | N/A | | |
| SCH206CAP | School 206 CP | N/A | N/A | N/A | N/A | | |
| SCH206MO | School 206 Enrichment | N/A | N/A | N/A | N/A | | |
| ST | State School | N/A | N/A | N/A | N/A | | |
| ST2 | State School Part 2 | N/A | N/A | N/A | N/A | | |
| SWHIDPRBD | P & R S Whidbey BOND | N/A | N/A | N/A | N/A | | |
| SWHIDPRBD2 | P & R S Whidbey BOND2 | N/A | N/A | N/A | N/A | | |
| SWHIDPRMT | P & R S Whidbey GEN | N/A | N/A | N/A | N/A | | |
| | Total Tax Rate: | N/A | | | | | |
| | | | | Taxes w/Current Exemptions: | N/A | | |
| | | | | Taxes w/o Exemptions: | N/A | | |
Improvement / Building
| Improvement #1: | RESIDENTIAL | State Code: | Y | 892.1 sqft | Value: | N/A |
| Bathrooms: | 1 | Bedrooms: | 2 | | Ceiling: | TONGUE & GROOVE | Exterior Wall/Cover: | SHINGLE | | Floor Covering: | VINYL/HARDWOOD 20-80 | Floor Structure: | WOOD W/SUBFLOOR | | Foundation: | CONCRETE BLOCKS | Heating: | BASEBOARD ELECTRIC | | Interior Finish: | DRYWALL PAINT | Plumbing Fixture Cnt: | 6 | | Roof Slope: | FLAT | Roof Structure/Cover: | TPO/MEMBRANE |
|
| | Type | Description | Class CD | Sub Class CD | Year Built | Area |
| | BAS | BASE/MAIN FLOOR | 3 | 0 | 1954 | 892.1 |
| | OCP | OPEN CARPORT | 3 | 0 | 1954 | 525.0 |
| | OWP | OPEN WOOD PORCH W/STEPS | 3 | 0 | 1954 | 863.4 |
Sketch
Property Image
Land
| 1 | LB | LOW BANK | 0.1900 | 8276.40 | 50.00 | 0.00 | 1.00 | N/A | N/A |
| 2 | 55 | TIDES | 0.0000 | 0.00 | 50.00 | 0.00 | 1.00 | N/A | N/A |
Roll Value History
| 2026 | N/A | N/A | N/A | N/A | N/A |
| 2025 | $134,603 | $2,250,500 | $0 | $2,385,103 | $2,385,103 |
| 2024 | $139,707 | $2,250,500 | $0 | $2,390,207 | $2,390,207 |
| 2023 | $142,212 | $2,300,500 | $0 | $2,442,712 | $2,442,712 |
| 2022 | $131,017 | $2,000,500 | $0 | $2,131,517 | $2,131,517 |
| 2021 | $115,885 | $1,300,500 | $0 | $1,416,385 | $1,416,385 |
| 2020 | $113,424 | $1,050,500 | $0 | $1,163,924 | $1,163,924 |
| 2019 | $60,933 | $1,100,500 | $0 | $1,161,433 | $1,161,433 |
| 2018 | $61,268 | $950,500 | $0 | $1,011,768 | $1,011,768 |
| 2017 | $61,769 | $700,500 | $0 | $762,269 | $762,269 |
| 2016 | $63,003 | $700,500 | $0 | $763,503 | $763,503 |
| 2015 | $64,239 | $700,500 | $0 | $764,739 | $764,739 |
| 2014 | $65,474 | $700,500 | $0 | $765,974 | $765,974 |
| 2013 | $57,988 | $773,896 | $0 | $831,884 | $831,884 |
| 2012 | $59,248 | $773,896 | $0 | $833,144 | $833,144 |
| 2011 | $60,508 | $773,896 | $0 | $834,404 | $834,404 |
| 2010 | $69,659 | $773,896 | $0 | $843,555 | $843,555 |
| 2009 | $72,976 | $925,075 | $0 | $998,051 | $998,051 |
| 2008 | $69,885 | $1,058,748 | $0 | $1,128,633 | $1,128,633 |
| 2007 | $70,975 | $1,058,398 | $0 | $1,129,373 | $1,129,373 |
Deed and Sales History
| 1 | 04/10/2024 | WD | Warranty Deed | BERTO, KIMBERLY ANN | BOECKMANN REAL ESTATE MANAGEMENT, LLC | | | $2,000,000.00 | 59646 | 4571187 |
|   | |
| 2 | 01/19/2024 | PRD | Personal Representatives Deed | LUHN TTEE, ALBERT R | BERTO, KIMBERLY ANN | | | $0.00 | 59097 | 4568963 |
| 3 | 05/09/2018 | SPWARDEED | Special Warranty Deed | LUHN, PAMELA D | LUHN TTEE, ALBERT R | | | $0.00 | 34051 | 4444211 |
| 4 | 04/01/1990 | PRD | Personal Representatives Deed | DEWITT, ELINOR M | LUHN, PAMELA D | | | $0.00 | 2604 | 90008448 |
| 5 | 01/01/1900 | OTHER | Other - Misc. Documents | Unknown | DEWITT, ELINOR M | | | $0.00 | 0 | 0 |
Payout Agreement
| No payout information available.. |