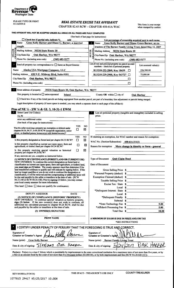
Property
Account |
| Property ID: | 543727 | Abbreviated Legal Description: | IN NE SW & GL 3: BG SWCR GL 3 E797.1' N901.4' W873.4'TO ELN HWY 1-D E471.7' N13*E 173.78'TPB S13*W173.78' S13*W66.30' N87*W255.66' N09*E140.09' N81*W210.98' TO ELN ST HWY NLY ALG ELN SD HWY TP N87*W OF TPB S87*E487.71'TPB FR 200-2740 & 232-2820 |
| Geographic ID: | R13210-229-2900 | Agent Code: | |
| Type: | Real | | |
| Tax Area: | 112 - APPRAISER-OH Schl Dist, outside OH, improved, greater than 1 acre | Land Use Code | 11 |
| Open Space: | N | DFL | N |
| Historic Property: | N | Remodel Property: | N |
| Multi-Family Redevelopment: | N | | |
| Township: | 32 | Section: | 10 |
| Range: | R1 |
Location |
| Address: | 30198 SR20 OAK HARBOR, WA 98277 | Mapsco: | |
| Neighborhood: | Cycle 1 | Map ID: | 117 |
| Neighborhood CD: | 1 |
Owner |
| Name: | BARNER TRUSTEE, GENE KELLY | Owner ID: | 280031 |
| Mailing Address: | DIANE GRACE BARNER TRUSTEE 30236 STATE RT 20 OAK HARBOR, WA 98277 | % Ownership: | 100.0000000000% |
| | | Exemptions: | |
Taxes and Assessment Details
Values
| (+) Improvement Homesite Value: | + | N/A | |
| (+) Improvement Non-Homesite Value: | + | N/A | |
| (+) Land Homesite Value: | + | N/A | |
| (+) Land Non-Homesite Value: | + | N/A | Ag / Timber Use Value |
| (+) Curr Use (HS): | + | N/A | N/A |
| (+) Curr Use (NHS): | + | N/A | N/A |
| | | -------------------------- | |
| (=) Market Value: | = | N/A | |
| (–) Productivity Loss: | – | N/A | |
| | | -------------------------- | |
| (=) Subtotal: | = | N/A | |
| (+) Senior Appraised Value: | + | N/A | |
| (+) Non-Senior Appraised Value: | + | N/A | |
| | | -------------------------- | |
| (=) Total Appraised Value: | = | N/A | |
| (–) Senior Exemption Loss: | – | N/A | |
| (–) Exemption Loss: | – | N/A | |
| | | -------------------------- | |
| (=) Taxable Value: | = | N/A | |
Taxing Jurisdiction
| Owner: | BARNER TRUSTEE, GENE KELLY | | |
| % Ownership: | 100.0000000000% | | |
| Total Value: | N/A | | |
| Tax Area: | 112 - APPRAISER-OH Schl Dist, outside OH, improved, greater than 1 acre |
| CF | Conservation Futures | N/A | N/A | N/A | N/A | | |
| WCD | Whidbey Conservation District | N/A | N/A | N/A | N/A | | |
| CEM1 | Cemetery #1 | N/A | N/A | N/A | N/A | | |
| FIRE2 | Fire & Rescue Dist #2 N Whidbey GEN | N/A | N/A | N/A | N/A | | |
| HOBOND | Hospital BOND | N/A | N/A | N/A | N/A | | |
| HOGEN | Hospital GEN | N/A | N/A | N/A | N/A | | |
| CE | County Current Expense | N/A | N/A | N/A | N/A | | |
| CR | County Roads | N/A | N/A | N/A | N/A | | |
| ISLANDEMS | Hospital GEN (EMS) | N/A | N/A | N/A | N/A | | |
| LIB | Library Sno-Isle GEN | N/A | N/A | N/A | N/A | | |
| NWHIDPRMT | P & R N Whidbey GEN | N/A | N/A | N/A | N/A | | |
| SCH201MO | School 201 Enrichment | N/A | N/A | N/A | N/A | | |
| ST | State School | N/A | N/A | N/A | N/A | | |
| ST2 | State School Part 2 | N/A | N/A | N/A | N/A | | |
| | Total Tax Rate: | N/A | | | | | |
| | | | | Taxes w/Current Exemptions: | N/A | | |
| | | | | Taxes w/o Exemptions: | N/A | | |
Improvement / Building
| Improvement #1: | RESIDENTIAL | State Code: | Y | 1952.5 sqft | Value: | N/A |
| Bathrooms: | 2 | Bedrooms: | 2 | | Ceiling: | DRYWALL PAINTED | Cooling: | HEAT PUMP/CONV/V | | Exterior Wall/Cover: | CEMENT FIBER | Floor Covering: | HARDWOOD/CARP 60-40 | | Floor Structure: | WOOD W/SUBFLOOR | Foundation: | CONCRETE | | Interior Finish: | DRYWALL PAINT | Plumbing Fixture Cnt: | 13 | | Roof Slope: | 4" IN 12" | Roof Structure/Cover: | CJ ASPHALT |
|
| | Type | Description | Class CD | Sub Class CD | Year Built | Area |
| | BAS | BASE/MAIN FLOOR | 4 | 0 | 2018 | 1952.5 |
| | AGR | ATTACHED GARAGE | 4 | 0 | 2018 | 626.0 |
| | OWC | OPEN WOOD PORCH W/STEPS/ROOF/C | 4 | 0 | 2018 | 270.0 |
Sketch
Property Image
Land
| 1 | HS | HOMESITE | 1.0000 | 43560.00 | 0.00 | 0.00 | 1.00 | N/A | N/A |
| 2 | 91 | UNDEVELOPED LAND-METES AND BOUNDS | 0.9700 | 42253.20 | 0.00 | 0.00 | 1.00 | N/A | N/A |
Roll Value History
| 2026 | N/A | N/A | N/A | N/A | N/A |
| 2025 | $526,636 | $270,000 | $0 | $796,636 | $796,636 |
| 2024 | $530,917 | $250,000 | $0 | $780,917 | $780,917 |
| 2023 | $550,463 | $220,000 | $0 | $770,463 | $770,463 |
| 2022 | $502,427 | $200,000 | $0 | $702,427 | $702,427 |
| 2021 | $440,359 | $170,000 | $0 | $610,359 | $610,359 |
| 2020 | $428,152 | $130,000 | $0 | $558,152 | $558,152 |
| 2019 | $324,548 | $200,000 | $0 | $524,548 | $524,548 |
| 2018 | $214,714 | $160,000 | $0 | $374,714 | $374,714 |
| 2017 | $0 | $75,000 | $0 | $75,000 | $75,000 |
| 2016 | $0 | $75,000 | $0 | $75,000 | $75,000 |
| 2015 | $0 | $60,000 | $0 | $60,000 | $60,000 |
| 2014 | $0 | $60,000 | $0 | $60,000 | $60,000 |
| 2013 | $0 | $52,500 | $0 | $52,500 | $52,500 |
| 2012 | $0 | $52,500 | $0 | $52,500 | $52,500 |
| 2011 | $0 | $52,500 | $0 | $52,500 | $52,500 |
| 2010 | $0 | $52,500 | $0 | $52,500 | $52,500 |
| 2009 | $0 | $93,000 | $0 | $93,000 | $93,000 |
| 2008 | $0 | $89,283 | $0 | $89,283 | $89,283 |
| 2007 | $0 | $90,379 | $0 | $90,379 | $90,379 |
Deed and Sales History
| 1 | 05/24/2017 | QCD | Quit Claim Deed | BARNER, GENE KELLY | BARNER TRUSTEE, GENE KELLY | | | $0.00 | 29417 | 4423073 |
| 2 | 06/14/2016 | WD | Warranty Deed | BARNER, GENE KELLY | BARNER, GENE KELLY | | | $0.00 | 24940 | 4401870 |
| 3 | 06/14/2016 | WD | Warranty Deed | HAMMING, ELMER | BARNER, GENE KELLY | | | $300,000.00 | 24796 | 4401321 |
|   | |
| 4 | 11/30/2006 | EZ | Easement | HAMMING, ELMER & | HAMMING, ELMER | | | $800.00 | 70476 | 4194096 |
| 5 | 01/01/1988 | TRUSTEED | Trustee's Deed | HAMMING, ELMER | HAMMING, ELMER & | | | $0.00 | 80304 | 88001308 |
| 6 | 12/01/1987 | TRUSTEED | Trustee's Deed | HAMMING, ELMER | HAMMING, ELMER | | | $0.00 | 80253 | 88001129 |
| 7 | 09/01/1984 | WD | Warranty Deed | HAMMING, ELMER | HAMMING, ELMER | | | $0.00 | 43416 | 84005989 |
| 8 | 01/01/1900 | OTHER | Other - Misc. Documents | Unknown | HAMMING, ELMER | | | $0.00 | 0 | 0 |
Payout Agreement
| No payout information available.. |