Property
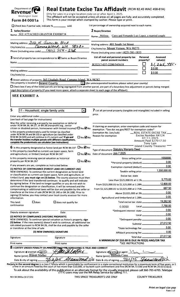
Account |
| Property ID: | 545618 | Abbreviated Legal Description: | TR 3 SP 82-01.33217.358-2000 AF394154 W/2 SE SE SW EX RDS |
| Geographic ID: | R33217-037-2200 | Agent Code: | |
| Type: | Real | | |
| Tax Area: | 512 - APPRAISER-Stan/Cam Schl Dist, improved, greater than 1 acre | Land Use Code | 11 |
| Open Space: | N | DFL | N |
| Historic Property: | N | Remodel Property: | N |
| Multi-Family Redevelopment: | N | | |
| Township: | 32 | Section: | 17 |
| Range: | R3 |
Location |
| Address: | 565 UTSALADY RD CAMANO ISLAND, WA 98282 | Mapsco: | |
| Neighborhood: | North Camano | Map ID: | 953 |
| Neighborhood CD: | 06-C |
Owner |
| Name: | CATES, MELISSA | Owner ID: | 317374 |
| Mailing Address: | FERNANDO LUIS LOPEZ 401 SOUTH 1ST ST MOUNT VERNON, WA 98273 | % Ownership: | 100.0000000000% |
| | | Exemptions: | |
Taxes and Assessment Details
Values
| (+) Improvement Homesite Value: | + | $0 | |
| (+) Improvement Non-Homesite Value: | + | $932,445 | |
| (+) Land Homesite Value: | + | $0 | |
| (+) Land Non-Homesite Value: | + | $330,000 | |
| (+) Curr Use (HS): | + | $0 | $0 |
| (+) Curr Use (NHS): | + | $0 | $0 |
| | | -------------------------- | |
| (=) Market Value: | = | $1,262,445 | |
| (–) Productivity Loss: | – | $0 | |
| | | -------------------------- | |
| (=) Subtotal: | = | $1,262,445 | |
| (+) Senior Appraised Value: | + | $0 | |
| (+) Non-Senior Appraised Value: | + | $1,262,445 | |
| | | -------------------------- | |
| (=) Total Appraised Value: | = | $1,262,445 | |
| (–) Senior Exemption Loss: | – | $0 | |
| (–) Exemption Loss: | – | $0 | |
| | | -------------------------- | |
| (=) Taxable Value: | = | $1,262,445 | |
Taxing Jurisdiction
| Owner: | CATES, MELISSA | | |
| % Ownership: | 100.0000000000% | | |
| Total Value: | $1,262,445 | | |
| Tax Area: | 512 - APPRAISER-Stan/Cam Schl Dist, improved, greater than 1 acre |
| CF | Conservation Futures | 0.0313996660 | $1,262,445 | $1,262,445 | $39.64 | | |
| EMS1 | Fire & Rescue Dist #1 Camano GEN (EMS) | 0.4998471806 | $1,262,445 | $1,262,445 | $631.03 | | |
| FIRE1 | Fire & Rescue Dist #1 Camano GEN | 1.2496603404 | $1,262,445 | $1,262,445 | $1,577.63 | | |
| FIRE1BOND | Fire & Rescue Dist #1 Camano BOND | 0.1630371212 | $1,262,445 | $1,262,445 | $205.83 | | |
| CE | County Current Expense | 0.3674210519 | $1,262,445 | $1,262,445 | $463.85 | | |
| CR | County Roads | 0.4614296361 | $1,262,445 | $1,262,445 | $582.53 | | |
| LIB | Library Sno-Isle GEN | 0.3039084203 | $1,262,445 | $1,262,445 | $383.67 | | |
| SCH205_401 | School 205-401 Enrichment | 1.3697998934 | $1,262,445 | $1,262,445 | $1,729.30 | | |
| SCH205BOND | School 205-401 BOND | 0.9354199323 | $1,262,445 | $1,262,445 | $1,180.92 | | |
| ST | State School | 1.4761226122 | $1,262,445 | $1,262,445 | $1,863.52 | | |
| ST2 | State School Part 2 | 0.7953803475 | $1,262,445 | $1,262,445 | $1,004.12 | | |
| | Total Tax Rate: | 7.6534262019 | | | | | |
| | | | | Taxes w/Current Exemptions: | $9,662.04 | | |
| | | | | Taxes w/o Exemptions: | $9,662.04 | | |
Improvement / Building
| Improvement #1: | RESIDENTIAL | State Code: | Y | 2378.0 sqft | Value: | $716,822 |
| Bathrooms: | 2 | Bedrooms: | 3 | | Ceiling: | DRYWALL PAINTED | Cooling: | HEAT PUMP/CONV/V | | Exterior Wall/Cover: | SHINGLE | Floor Covering: | VINYL/HARDWOOD 80-20 | | Floor Structure: | WOOD W/SUBFLOOR | Foundation: | CONCRETE | | Interior Finish: | DRYWALL PAINT | Plumbing Fixture Cnt: | 12 | | Roof Slope: | 4" IN 12" | Roof Structure/Cover: | CJ ASPHALT |
|
| | Type | Description | Class CD | Sub Class CD | Year Built | Area |
| | BAS | BASE/MAIN FLOOR | 4 | 0 | 2017 | 2378.0 |
| | AGR | ATTACHED GARAGE | 4 | 0 | 2017 | 725.0 |
| | OP4 | OPEN PORCH W/CEILING-ROOF | 4 | 0 | 2017 | 128.0 |
| | OWC | OPEN WOOD PORCH W/STEPS/ROOF/C | 4 | 0 | 2017 | 588.0 |
| | DGR | DETACHED GARAGE | 4 | 0 | 2017 | 1600.0 |
| | DGR | DETACHED GARAGE | 4 | 0 | 2022 | 1008.0 |
| Improvement #2: | RESIDENTIAL | State Code: | Y | 704.0 sqft | Value: | $215,623 |
| Bathrooms: | 1 | Bedrooms: | 1 | | Ceiling: | DRYWALL PAINTED | Exterior Wall/Cover: | CEMENT FIBER | | Floor Covering: | HARDWOOD/CARP 20-80 | Floor Structure: | SLAB ON GRADE | | Foundation: | CONCRETE | Heating: | WALL HEAT ELECTRIC | | Interior Finish: | DRYWALL PAINT | Plumbing Fixture Cnt: | 6 | | Roof Slope: | 4" IN 12" | Roof Structure/Cover: | CJ ASPHALT |
|
| | Type | Description | Class CD | Sub Class CD | Year Built | Area |
| | BAS | BASE/MAIN FLOOR | 3 | 0 | 2016 | 704.0 |
| | UTY | STORAGE/UTILITY | 3 | 0 | 2016 | 132.0 |
| | AGR | ATTACHED GARAGE | 3 | 0 | 2016 | 1308.0 |
| | OP4 | OPEN PORCH W/CEILING-ROOF | 3 | 0 | 2016 | 24.0 |
Sketch
Property Image
Land
| 1 | 32 | AC (03.01-09.99) | 4.8600 | 0.00 | 0.00 | 0.00 | 1.00 | $330,000 | $0 |
Roll Value History
| 2026 | N/A | N/A | N/A | N/A | N/A |
| 2025 | $932,445 | $330,000 | $0 | $1,262,445 | $1,262,445 |
| 2024 | $939,795 | $340,000 | $0 | $1,279,795 | $1,279,795 |
| 2023 | $949,163 | $320,000 | $0 | $1,269,163 | $1,269,163 |
| 2022 | $843,925 | $300,000 | $0 | $1,143,925 | $1,143,925 |
| 2021 | $692,738 | $190,000 | $0 | $882,738 | $882,738 |
| 2020 | $672,120 | $190,000 | $0 | $862,120 | $862,120 |
| 2019 | $501,584 | $220,000 | $0 | $721,584 | $721,584 |
| 2018 | $502,864 | $190,000 | $0 | $692,864 | $692,864 |
| 2017 | $248,065 | $170,000 | $0 | $418,065 | $418,065 |
| 2016 | $60,646 | $135,000 | $0 | $195,646 | $195,646 |
| 2015 | $0 | $100,000 | $0 | $100,000 | $100,000 |
| 2014 | $0 | $47,600 | $0 | $47,600 | $47,600 |
| 2013 | $0 | $47,600 | $0 | $47,600 | $47,600 |
| 2012 | $0 | $47,600 | $0 | $47,600 | $47,600 |
| 2011 | $0 | $47,600 | $0 | $47,600 | $47,600 |
| 2010 | $0 | $47,600 | $0 | $47,600 | $47,600 |
| 2009 | $0 | $47,300 | $0 | $47,300 | $47,300 |
| 2008 | $0 | $50,400 | $0 | $50,400 | $50,400 |
| 2007 | $0 | $44,955 | $0 | $44,955 | $44,955 |
Deed and Sales History
| 1 | 07/07/2025 | WD | Warranty Deed | MUELLER, GERALD P | CATES, MELISSA | | | $1,550,000.00 | 64124 | 4588114 |
| 2 | 01/20/2016 | WD | Warranty Deed | BESMER, MARILYN A | MUELLER, GERALD P | | | $140,000.00 | 23087 | 4393836 |
| 3 | 08/01/1996 | QCD | Quit Claim Deed | BESMER, WALTER & | BESMER, MARILYN A | | | $0.00 | 63429 | 96016821 |
| 4 | 11/01/1995 | QCD | Quit Claim Deed | BESMER, WALTER | BESMER, WALTER & | | | $0.00 | 62193 | 96010875 |
| 5 | 03/01/1982 | TRUSTEED | Trustee's Deed | BRAY, RUBEN | BESMER, WALTER | | | $15,000.00 | 20616 | 394185 |
| 6 | 10/01/1981 | REC | Real Estate Contract | Unknown | BRAY, RUBEN | | | $1.00 | 59242 | 388848 |
Payout Agreement
| No payout information available.. |