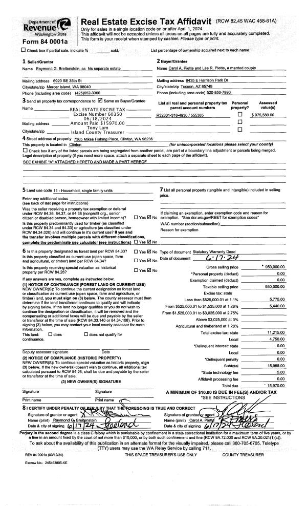
Property
Account |
| Property ID: | 555385 | Abbreviated Legal Description: | REPLACES 322 4930 71 - IN GL1:BG NW CR GL1 S ON WLN 954' E PARA/TO & 354 N OF SLN GL1 820.31' N7*E81 TPB N7*E50' S89*E275' M/L TO ML SLY ALG ML 50' TP S89 *E FR TPB N89*W TPB EX RDS TGW ADJ TIDES |
| Geographic ID: | R32801-318-4930 | Agent Code: | |
| Type: | Real | | |
| Tax Area: | 720 - APPRAISER-S Whid Schl Dist, Special District, improved & less than 1 acre | Land Use Code | 11 |
| Open Space: | N | DFL | N |
| Historic Property: | N | Remodel Property: | N |
| Multi-Family Redevelopment: | N | | |
| Township: | 28 | Section: | 01 |
| Range: | R3 |
Location |
| Address: | 7365 MIKES FISHING PLACE CLINTON, WA 98236 | Mapsco: | |
| Neighborhood: | Cycle 4 | Map ID: | 678 |
| Neighborhood CD: | 4 |
Owner |
| Name: | PIETTE, CAROL A | Owner ID: | 312796 |
| Mailing Address: | LEE R PIETTE 9435 E HARRISON PARK DR TUCSON, AZ 85749 | % Ownership: | 100.0000000000% |
| | | Exemptions: | |
Taxes and Assessment Details
Values
| (+) Improvement Homesite Value: | + | $0 | |
| (+) Improvement Non-Homesite Value: | + | $214,041 | |
| (+) Land Homesite Value: | + | $0 | |
| (+) Land Non-Homesite Value: | + | $775,500 | |
| (+) Curr Use (HS): | + | $0 | $0 |
| (+) Curr Use (NHS): | + | $0 | $0 |
| | | -------------------------- | |
| (=) Market Value: | = | $989,541 | |
| (–) Productivity Loss: | – | $0 | |
| | | -------------------------- | |
| (=) Subtotal: | = | $989,541 | |
| (+) Senior Appraised Value: | + | $0 | |
| (+) Non-Senior Appraised Value: | + | $989,541 | |
| | | -------------------------- | |
| (=) Total Appraised Value: | = | $989,541 | |
| (–) Senior Exemption Loss: | – | $0 | |
| (–) Exemption Loss: | – | $0 | |
| | | -------------------------- | |
| (=) Taxable Value: | = | $989,541 | |
Taxing Jurisdiction
| Owner: | PIETTE, CAROL A | | |
| % Ownership: | 100.0000000000% | | |
| Total Value: | $989,541 | | |
| Tax Area: | 720 - APPRAISER-S Whid Schl Dist, Special District, improved & less than 1 acre |
| CF | Conservation Futures | 0.0313996660 | $989,541 | $989,541 | $31.07 | | |
| FIRE3 | Fire & Rescue Dist #3 S Whidbey GEN | 1.2130821753 | $989,541 | $989,541 | $1,200.39 | | |
| HOBOND | Hospital BOND | 0.1893405597 | $989,541 | $989,541 | $187.36 | | |
| HOGEN | Hospital GEN | 0.3848777722 | $989,541 | $989,541 | $380.85 | | |
| CE | County Current Expense | 0.3674210519 | $989,541 | $989,541 | $363.58 | | |
| CR | County Roads | 0.4614296361 | $989,541 | $989,541 | $456.60 | | |
| ISLANDEMS | Hospital GEN (EMS) | 0.4952018576 | $989,541 | $989,541 | $490.02 | | |
| LIB | Library Sno-Isle GEN | 0.3039084203 | $989,541 | $989,541 | $300.73 | | |
| PORTWHID | Port of S Whidbey GEN | 0.1086004714 | $989,541 | $989,541 | $107.46 | | |
| SCH206BOND | School 206 BOND | 0.5960237832 | $989,541 | $989,541 | $589.79 | | |
| SCH206CAP | School 206 CP | 0.3066144020 | $989,541 | $989,541 | $303.41 | | |
| SCH206MO | School 206 Enrichment | 0.4808755445 | $989,541 | $989,541 | $475.85 | | |
| ST | State School | 1.4761226122 | $989,541 | $989,541 | $1,460.68 | | |
| ST2 | State School Part 2 | 0.7953803475 | $989,541 | $989,541 | $787.06 | | |
| SWHIDPRBD | P & R S Whidbey BOND | 0.0144185398 | $989,541 | $989,541 | $14.27 | | |
| SWHIDPRBD3 | P & R S Whidbey BOND3 | 0.1483535547 | $989,541 | $989,541 | $146.80 | | |
| SWHIDPRMT | P & R S Whidbey GEN | 0.4600000000 | $989,541 | $989,541 | $455.19 | | |
| | Total Tax Rate: | 7.8330503944 | | | | | |
| | | | | Taxes w/Current Exemptions: | $7,751.11 | | |
| | | | | Taxes w/o Exemptions: | $7,751.11 | | |
Improvement / Building
| Improvement #1: | RESIDENTIAL | State Code: | Y | 2090.0 sqft | Value: | $214,041 |
| Bathrooms: | 2 | Bedrooms: | 3 | | Ceiling: | DRY WALL SPRAYED | Exterior Wall/Cover: | PLY/HARDBOARD T-111 | | Floor Covering: | CARPET/VINYL 80-20 | Floor Structure: | WOOD W/SUBFLOOR | | Foundation: | CONCRETE | Heating: | BASEBOARD ELECTRIC | | Interior Finish: | DRYWALL PAINT | Plumbing Fixture Cnt: | 9 | | Roof Slope: | 6" IN 12" | Roof Structure/Cover: | CJ ASPHALT |
|
| | Type | Description | Class CD | Sub Class CD | Year Built | Area |
| | BAS | BASE/MAIN FLOOR | 3 | 0 | 1968 | 1080.0 |
| | LOF | LOFT | 3 | 0 | 1968 | 450.0 |
| | UB6 | BASEMENT UNFINISHED 6" | 3 | 0 | 1968 | 156.0 |
| | OWP | OPEN WOOD PORCH W/STEPS | 3 | 0 | 1968 | 96.0 |
| | OWP | OPEN WOOD PORCH W/STEPS | 3 | 0 | 1968 | 630.0 |
| | DWN | DOWNSTAIRS LIVING AREA | 3 | 0 | 1968 | 560.0 |
| | OWP | OPEN WOOD PORCH W/STEPS | 3 | 0 | 1968 | 280.0 |
Sketch
Property Image
Land
| 1 | LB | LOW BANK | 0.3400 | 14810.40 | 50.00 | 0.00 | 1.00 | $775,000 | $0 |
| 2 | 55 | TIDES | 0.0000 | 0.00 | 50.00 | 0.00 | 1.00 | $500 | $0 |
Roll Value History
| 2026 | N/A | N/A | N/A | N/A | N/A |
| 2025 | $214,041 | $775,500 | $0 | $989,541 | $989,541 |
| 2024 | $221,966 | $750,500 | $0 | $972,466 | $972,466 |
| 2023 | $225,080 | $750,500 | $0 | $975,580 | $975,580 |
| 2022 | $206,634 | $700,500 | $0 | $907,134 | $907,134 |
| 2021 | $182,136 | $430,500 | $0 | $612,636 | $612,636 |
| 2020 | $178,091 | $430,500 | $0 | $608,591 | $608,591 |
| 2019 | $137,248 | $400,500 | $0 | $537,748 | $537,748 |
| 2018 | $137,696 | $300,500 | $0 | $438,196 | $438,196 |
| 2017 | $138,597 | $250,500 | $0 | $389,097 | $389,097 |
| 2016 | $140,396 | $250,500 | $0 | $390,896 | $390,896 |
| 2015 | $142,198 | $250,500 | $0 | $392,698 | $392,698 |
| 2014 | $122,539 | $250,500 | $0 | $373,039 | $373,039 |
| 2013 | $124,257 | $159,635 | $0 | $283,892 | $283,892 |
| 2012 | $125,974 | $159,635 | $0 | $285,609 | $285,609 |
| 2011 | $127,689 | $159,635 | $0 | $287,324 | $287,324 |
| 2010 | $133,172 | $159,635 | $0 | $292,807 | $292,807 |
| 2009 | $137,252 | $191,462 | $0 | $328,714 | $328,714 |
| 2008 | $136,508 | $191,462 | $0 | $327,970 | $327,970 |
| 2007 | $138,217 | $191,112 | $0 | $329,329 | $329,329 |
Deed and Sales History
| 1 | 06/17/2024 | WD | Warranty Deed | BREITENSTEIN, RAYMOND G | PIETTE, CAROL A | | | $950,000.00 | 60350 | 4573563 |
| 2 | 12/09/2000 | WD | Warranty Deed | Unknown | BREITENSTEIN, RAYMOND G | | | $223,000.00 | 4839 | 20022423 |
Payout Agreement
| No payout information available.. |