Property
Account |
| Property ID: | 556115 | Abbreviated Legal Description: | TR 1 SP 82-31.33118.533-0600 AF#401687 V1-SP-P167 |
| Geographic ID: | R33107-010-0350 | Agent Code: | |
| Type: | Real | | |
| Tax Area: | 510 - APPRAISER-Stan/Cam Schl Dist, improved & 1 acre or less | Land Use Code | 11 |
| Open Space: | N | DFL | N |
| Historic Property: | N | Remodel Property: | N |
| Multi-Family Redevelopment: | N | | |
| Township: | 31 | Section: | 07 |
| Range: | R3 |
Location |
| Address: | 770 VESPER WAY CAMANO ISLAND, WA 98282 | Mapsco: | |
| Neighborhood: | Cycle 5 | Map ID: | 922 |
| Neighborhood CD: | 5 |
Owner |
| Name: | JACOBSON, HEATHER C | Owner ID: | 294021 |
| Mailing Address: | JASON C PEIZER 770 VESPER WAY CAMANO ISLAND, WA 98282 | % Ownership: | 100.0000000000% |
| | | Exemptions: | |
Taxes and Assessment Details
Values
| (+) Improvement Homesite Value: | + | $144,974 | |
| (+) Improvement Non-Homesite Value: | + | $0 | |
| (+) Land Homesite Value: | + | $250,000 | |
| (+) Land Non-Homesite Value: | + | $0 | |
| (+) Curr Use (HS): | + | $0 | $0 |
| (+) Curr Use (NHS): | + | $0 | $0 |
| | | -------------------------- | |
| (=) Market Value: | = | $394,974 | |
| (–) Productivity Loss: | – | $0 | |
| | | -------------------------- | |
| (=) Subtotal: | = | $394,974 | |
| (+) Senior Appraised Value: | + | $0 | |
| (+) Non-Senior Appraised Value: | + | $394,974 | |
| | | -------------------------- | |
| (=) Total Appraised Value: | = | $394,974 | |
| (–) Senior Exemption Loss: | – | $0 | |
| (–) Exemption Loss: | – | $0 | |
| | | -------------------------- | |
| (=) Taxable Value: | = | $394,974 | |
Taxing Jurisdiction
| Owner: | JACOBSON, HEATHER C | | |
| % Ownership: | 100.0000000000% | | |
| Total Value: | $394,974 | | |
| Tax Area: | 510 - APPRAISER-Stan/Cam Schl Dist, improved & 1 acre or less |
| CF | Conservation Futures | 0.0313996660 | $394,974 | $394,974 | $12.40 | | |
| EMS1 | Fire & Rescue Dist #1 Camano GEN (EMS) | 0.4998471806 | $394,974 | $394,974 | $197.43 | | |
| FIRE1 | Fire & Rescue Dist #1 Camano GEN | 1.2496603404 | $394,974 | $394,974 | $493.58 | | |
| FIRE1BOND | Fire & Rescue Dist #1 Camano BOND | 0.1630371212 | $394,974 | $394,974 | $64.40 | | |
| CE | County Current Expense | 0.3674210519 | $394,974 | $394,974 | $145.12 | | |
| CR | County Roads | 0.4614296361 | $394,974 | $394,974 | $182.25 | | |
| LIB | Library Sno-Isle GEN | 0.3039084203 | $394,974 | $394,974 | $120.04 | | |
| SCH205_401 | School 205-401 Enrichment | 1.3697998934 | $394,974 | $394,974 | $541.04 | | |
| SCH205BOND | School 205-401 BOND | 0.9354199323 | $394,974 | $394,974 | $369.47 | | |
| ST | State School | 1.4761226122 | $394,974 | $394,974 | $583.03 | | |
| ST2 | State School Part 2 | 0.7953803475 | $394,974 | $394,974 | $314.15 | | |
| | Total Tax Rate: | 7.6534262019 | | | | | |
| | | | | Taxes w/Current Exemptions: | $3,022.91 | | |
| | | | | Taxes w/o Exemptions: | $3,022.91 | | |
Improvement / Building
| Improvement #1: | MANUFACTURED HOME | State Code: | Y | 1275.7 sqft | Value: | $144,974 |
| Bathrooms: | 0 | Bedrooms: | 0 | | Ceiling: | PLASTER PAINTED | Cooling: | EVAP NO DUCT | | Exterior Wall/Cover: | VINYL | Floor Covering: | CARPET 100% | | Floor Structure: | SLAB ON GRADE | Foundation: | SLAB | | Heating: | FHA ELECTRIC | Interior Finish: | PLASTER | | Plumbing Fixture Cnt: | 1 | Roof Slope: | FLAT | | Roof Structure/Cover: | CJ ALUMINIUM HEAVY |   |   |
|
| | Type | Description | Class CD | Sub Class CD | Year Built | Area |
| | BAS | BASE/MAIN FLOOR | 4 | 0 | 2008 | 1275.7 |
| | oOBD | Out Buildings | 4 | 0 | 2008 | 576.0 |
Sketch
Property Image
Land
| 1 | 16 | AC (00.51-01.00) | 0.0000 | 0.00 | 0.00 | 0.00 | 1.00 | $250,000 | $0 |
Roll Value History
| 2026 | N/A | N/A | N/A | N/A | N/A |
| 2025 | $144,974 | $250,000 | $0 | $394,974 | $394,974 |
| 2024 | $147,985 | $230,000 | $0 | $377,985 | $377,985 |
| 2023 | $132,596 | $230,000 | $0 | $362,596 | $362,596 |
| 2022 | $123,139 | $210,000 | $0 | $333,139 | $333,139 |
| 2021 | $105,564 | $150,000 | $0 | $255,564 | $255,564 |
| 2020 | $105,067 | $120,000 | $0 | $225,067 | $225,067 |
| 2019 | $87,801 | $160,000 | $0 | $247,801 | $120,575 |
| 2018 | $88,589 | $140,000 | $0 | $228,589 | $120,575 |
| 2017 | $90,139 | $125,000 | $0 | $215,139 | $74,200 |
| 2016 | $90,927 | $80,000 | $0 | $170,927 | $68,371 |
| 2015 | $86,075 | $60,000 | $0 | $146,075 | $58,430 |
| 2014 | $86,784 | $60,000 | $0 | $146,784 | $95,410 |
| 2013 | $87,493 | $85,000 | $0 | $172,493 | $112,120 |
| 2012 | $94,527 | $66,400 | $0 | $160,927 | $104,603 |
| 2011 | $95,237 | $83,000 | $0 | $178,237 | $115,854 |
| 2010 | $97,991 | $83,000 | $0 | $180,991 | $117,644 |
| 2009 | $102,298 | $135,000 | $0 | $237,298 | $120,575 |
| 2008 | $120,348 | $135,711 | $0 | $256,059 | $120,575 |
| 2007 | $52,994 | $76,259 | $0 | $129,253 | $79,253 |
Deed and Sales History
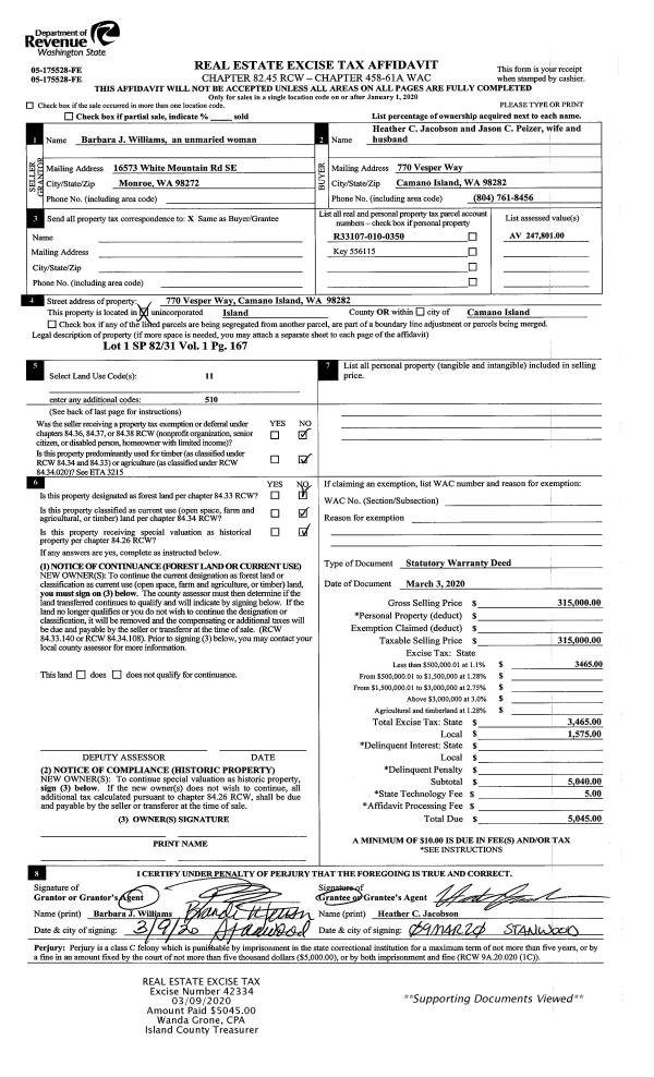
| 1 | 03/03/2020 | WD | Warranty Deed | WILLIAMS, BARBARA J | JACOBSON, HEATHER C | | | $315,000.00 | 42334 | 4482711 |
| 2 | 06/14/2002 | 5 | DNU - Marriage License/Name Change | WILLIAMS, RICHARD C | WILLIAMS, BARBARA J | | | $0.00 | 69462 | 0 |
| 3 | 08/01/1985 | OTHER | Other - Misc. Documents | CRITCHETT, GORDON S | WILLIAMS, RICHARD C | | | $25,000.00 | 52341 | 0 |
| 4 | 08/01/1985 | WD | Warranty Deed | WILLIAMS, RICHARD C | WILLIAMS, RICHARD C | | | $13,050.00 | 52340 | 85009217 |
| 5 | 01/01/1900 | OTHER | Other - Misc. Documents | Unknown | CRITCHETT, GORDON S | | | $0.00 | 0 | 0 |
Payout Agreement
| No payout information available.. |