Property
Account |
| Property ID: | 557212 | Abbreviated Legal Description: | TR 2 SP80-70.23013.315-4760 TGW DRAIN #2 LOC SP80-71 ON TR 2 309-4610 AF#401820 V1-SP-168 TGW BEACH ACCESS EZ AF#88011990 |
| Geographic ID: | R23013-365-4700 | Agent Code: | |
| Type: | Real | | |
| Tax Area: | 710 - APPRAISER-S Whid Schl Dist, outside Langley, improved & 1 acre or less | Land Use Code | 11 |
| Open Space: | N | DFL | N |
| Historic Property: | N | Remodel Property: | N |
| Multi-Family Redevelopment: | N | | |
| Township: | 30 | Section: | 13 |
| Range: | R2 |
Location |
| Address: | 3341 FOX SPIT RD LANGLEY, WA 98260 | Mapsco: | |
| Neighborhood: | Cycle 3 | Map ID: | 376 |
| Neighborhood CD: | 3 |
Owner |
| Name: | YOUNG III, THOMAS H | Owner ID: | 90698 |
| Mailing Address: | SUSAN B YOUNG 4103 S ANDOVER ST SEATTLE, WA 98118 | % Ownership: | 100.0000000000% |
| | | Exemptions: | |
Taxes and Assessment Details
Values
| (+) Improvement Homesite Value: | + | $0 | |
| (+) Improvement Non-Homesite Value: | + | $539,104 | |
| (+) Land Homesite Value: | + | $0 | |
| (+) Land Non-Homesite Value: | + | $650,000 | |
| (+) Curr Use (HS): | + | $0 | $0 |
| (+) Curr Use (NHS): | + | $0 | $0 |
| | | -------------------------- | |
| (=) Market Value: | = | $1,189,104 | |
| (–) Productivity Loss: | – | $0 | |
| | | -------------------------- | |
| (=) Subtotal: | = | $1,189,104 | |
| (+) Senior Appraised Value: | + | $0 | |
| (+) Non-Senior Appraised Value: | + | $1,189,104 | |
| | | -------------------------- | |
| (=) Total Appraised Value: | = | $1,189,104 | |
| (–) Senior Exemption Loss: | – | $0 | |
| (–) Exemption Loss: | – | $0 | |
| | | -------------------------- | |
| (=) Taxable Value: | = | $1,189,104 | |
Taxing Jurisdiction
| Owner: | YOUNG III, THOMAS H | | |
| % Ownership: | 100.0000000000% | | |
| Total Value: | $1,189,104 | | |
| Tax Area: | 710 - APPRAISER-S Whid Schl Dist, outside Langley, improved & 1 acre or less |
| CF | Conservation Futures | 0.0313996660 | $1,189,104 | $1,189,104 | $37.34 | | |
| FIRE3 | Fire & Rescue Dist #3 S Whidbey GEN | 1.2130821753 | $1,189,104 | $1,189,104 | $1,442.48 | | |
| HOBOND | Hospital BOND | 0.1893405597 | $1,189,104 | $1,189,104 | $225.15 | | |
| HOGEN | Hospital GEN | 0.3848777722 | $1,189,104 | $1,189,104 | $457.66 | | |
| CE | County Current Expense | 0.3674210519 | $1,189,104 | $1,189,104 | $436.90 | | |
| CR | County Roads | 0.4614296361 | $1,189,104 | $1,189,104 | $548.69 | | |
| ISLANDEMS | Hospital GEN (EMS) | 0.4952018576 | $1,189,104 | $1,189,104 | $588.85 | | |
| LIB | Library Sno-Isle GEN | 0.3039084203 | $1,189,104 | $1,189,104 | $361.38 | | |
| PORTWHID | Port of S Whidbey GEN | 0.1086004714 | $1,189,104 | $1,189,104 | $129.14 | | |
| SCH206BOND | School 206 BOND | 0.5960237832 | $1,189,104 | $1,189,104 | $708.73 | | |
| SCH206CAP | School 206 CP | 0.3066144020 | $1,189,104 | $1,189,104 | $364.60 | | |
| SCH206MO | School 206 Enrichment | 0.4808755445 | $1,189,104 | $1,189,104 | $571.81 | | |
| ST | State School | 1.4761226122 | $1,189,104 | $1,189,104 | $1,755.26 | | |
| ST2 | State School Part 2 | 0.7953803475 | $1,189,104 | $1,189,104 | $945.79 | | |
| SWHIDPRBD | P & R S Whidbey BOND | 0.0144185398 | $1,189,104 | $1,189,104 | $17.15 | | |
| SWHIDPRBD3 | P & R S Whidbey BOND3 | 0.1483535547 | $1,189,104 | $1,189,104 | $176.41 | | |
| SWHIDPRMT | P & R S Whidbey GEN | 0.4600000000 | $1,189,104 | $1,189,104 | $546.99 | | |
| | Total Tax Rate: | 7.8330503944 | | | | | |
| | | | | Taxes w/Current Exemptions: | $9,314.33 | | |
| | | | | Taxes w/o Exemptions: | $9,314.33 | | |
Improvement / Building
| Improvement #1: | RESIDENTIAL | State Code: | Y | 3085.3 sqft | Value: | $539,104 |
| Bathrooms: | 3.5 | Bedrooms: | 3 | | Ceiling: | DRYWALL PAINTED | Exterior Wall/Cover: | SHINGLE | | Floor Covering: | HARDWOOD/CARP 60-40 | Floor Structure: | WOOD W/SUBFLOOR | | Foundation: | CONCRETE | Heating: | FHA GAS | | Interior Finish: | DRYWALL PAINT | Plumbing Fixture Cnt: | 17 | | Roof Slope: | 8" IN 12" | Roof Structure/Cover: | CJ ASPHALT |
|
| | Type | Description | Class CD | Sub Class CD | Year Built | Area |
| | BAS | BASE/MAIN FLOOR | 5 | 0 | 1992 | 973.4 |
| | BIG | BUILT IN GARAGE | 5 | 0 | 1992 | 537.8 |
| | UPS | UPPER STORY | 5 | 0 | 1992 | 672.0 |
| | UPS | UPPER STORY | 5 | 0 | 1992 | 575.9 |
| | OWP | OPEN WOOD PORCH W/STEPS | 5 | 0 | 1992 | 459.1 |
| | LOF | LOFT | 5 | 0 | 1992 | 192.0 |
| | DWN | DOWNSTAIRS LIVING AREA | 5 | 0 | 1992 | 672.0 |
| | OP4 | OPEN PORCH W/CEILING-ROOF | 5 | 0 | 1992 | 58.1 |
Sketch
Property Image
Land
| 1 | HB | HIGH BLUFF | 0.0000 | 0.00 | 125.00 | 0.00 | 1.00 | $650,000 | $0 |
Roll Value History
| 2026 | N/A | N/A | N/A | N/A | N/A |
| 2025 | $539,104 | $650,000 | $0 | $1,189,104 | $1,189,104 |
| 2024 | $546,174 | $650,000 | $0 | $1,196,174 | $1,196,174 |
| 2023 | $553,244 | $650,000 | $0 | $1,203,244 | $1,203,244 |
| 2022 | $507,368 | $650,000 | $0 | $1,157,368 | $1,157,368 |
| 2021 | $446,755 | $350,000 | $0 | $796,755 | $796,755 |
| 2020 | $435,187 | $350,000 | $0 | $785,187 | $785,187 |
| 2019 | $348,872 | $350,000 | $0 | $698,872 | $698,872 |
| 2018 | $349,974 | $350,000 | $0 | $699,974 | $699,974 |
| 2017 | $352,070 | $300,000 | $0 | $652,070 | $652,070 |
| 2016 | $356,472 | $300,000 | $0 | $656,472 | $656,472 |
| 2015 | $360,872 | $250,000 | $0 | $610,872 | $610,872 |
| 2014 | $365,273 | $250,000 | $0 | $615,273 | $615,273 |
| 2013 | $368,828 | $247,310 | $0 | $616,138 | $616,138 |
| 2012 | $373,210 | $247,310 | $0 | $620,520 | $620,520 |
| 2011 | $377,591 | $247,310 | $0 | $624,901 | $624,901 |
| 2010 | $389,265 | $274,794 | $0 | $664,059 | $664,059 |
| 2009 | $406,132 | $376,413 | $0 | $782,545 | $782,545 |
| 2008 | $411,256 | $433,148 | $0 | $844,404 | $844,404 |
| 2007 | $401,368 | $433,148 | $0 | $834,516 | $834,516 |
Deed and Sales History
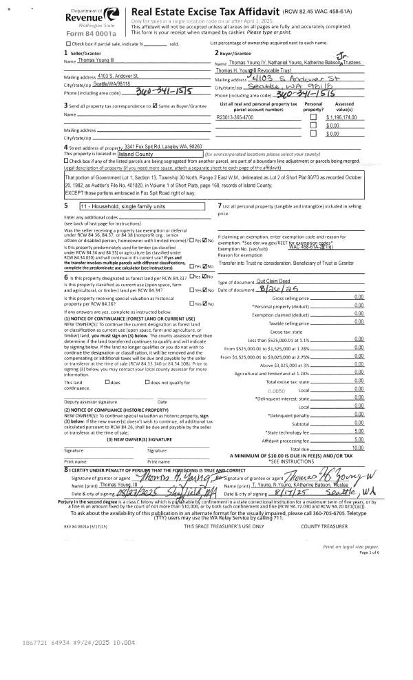
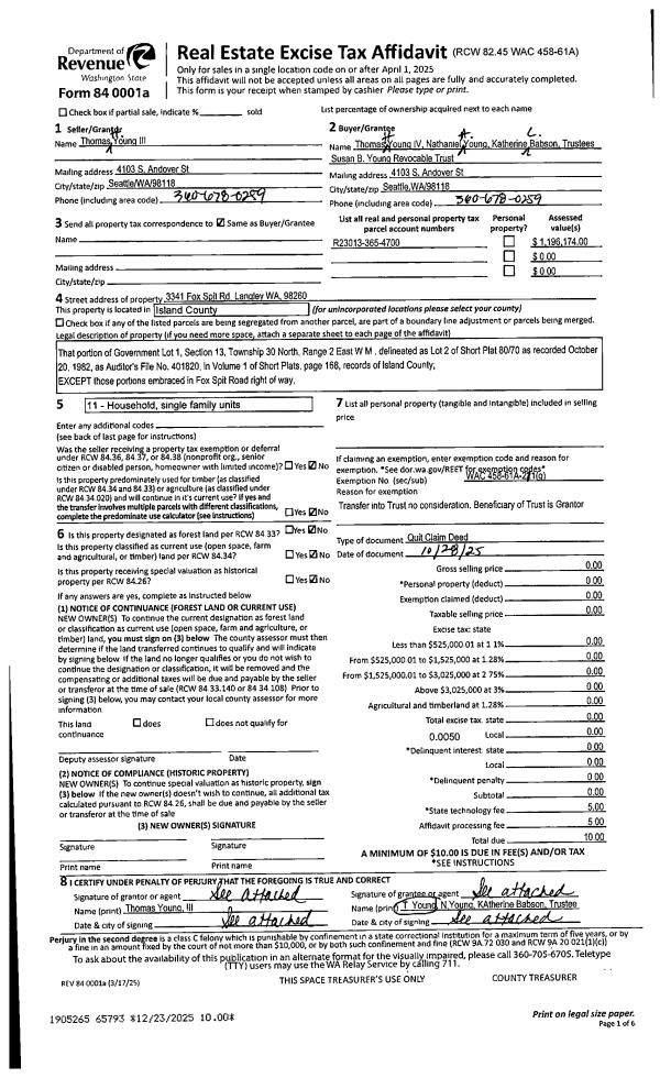
| 1 | 10/28/2025 | QCD | Quit Claim Deed | YOUNG III, THOMAS H | THOMAS H YOUNG III REVOCABLE TRUST | | | $0.00 | 65793 | 4594978 |
| 2 | 08/26/2025 | QCD | Quit Claim Deed | YOUNG III, THOMAS H | THOMAS H YOUNG III REVOCABLE TRUST | | | $0.00 | 64934 | 4591376 |
| 3 | 11/15/2000 | WD | Warranty Deed | THOMPSON, KERRY P | YOUNG III, THOMAS H | | | $260,000.00 | 4374 | 20020147 |
| 4 | 03/01/1991 | WD | Warranty Deed | VOSS, LAURENCE D | THOMPSON, KERRY P | | | $115,000.00 | 10917 | 91003956 |
| 5 | 03/01/1989 | WD | Warranty Deed | EISENBACH, MARVIN & | VOSS, LAURENCE D | | | $43,000.00 | 90931 | 89003276 |
| 6 | 03/01/1984 | OTHER | Other - Misc. Documents | EISENBACH, MARVIN & | EISENBACH, MARVIN & | | | $0.00 | 60468 | 0 |
| 7 | 10/01/1982 | OTHER | Other - Misc. Documents | EISENBACH, MARVIN & | EISENBACH, MARVIN & | | | $0.00 | 559733 | 401820 |
| 8 | 10/01/1982 | OTHER | Other - Misc. Documents | EISENBACH, MARVIN & | EISENBACH, MARVIN & | | | $0.00 | 59773 | 401820 |
| 9 | 01/01/1980 | CD | DNU - Correction Deed | Unknown | EISENBACH, MARVIN & | | | $0.00 | 72 | 363732 |
Payout Agreement
| No payout information available.. |