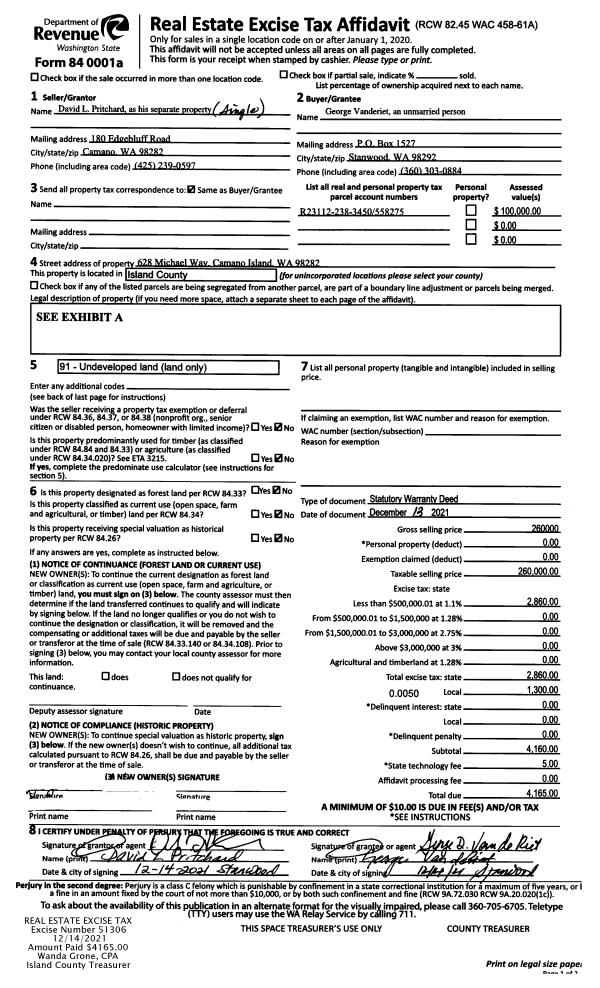
Property
Account |
| Property ID: | 558275 | Abbreviated Legal Description: | TR 5N SP 81-46.23112.244-3420 V1 SP P132 |
| Geographic ID: | R23112-238-3450 | Agent Code: | |
| Type: | Real | | |
| Tax Area: | 512 - APPRAISER-Stan/Cam Schl Dist, improved, greater than 1 acre | Land Use Code | 11 |
| Open Space: | N | DFL | N |
| Historic Property: | N | Remodel Property: | N |
| Multi-Family Redevelopment: | N | | |
| Township: | 31 | Section: | 12 |
| Range: | R2 |
Location |
| Address: | 628 MICHAEL WAY CAMANO ISLAND, WA 98282 | Mapsco: | |
| Neighborhood: | Cycle 5 | Map ID: | 474 |
| Neighborhood CD: | 5 |
Owner |
| Name: | VANDERIET, GEORGE | Owner ID: | 302339 |
| Mailing Address: | 628 MICHAEL WAY CAMANO ISLAND, WA 98282 | % Ownership: | 100.0000000000% |
| | | Exemptions: | |
Taxes and Assessment Details
Values
| (+) Improvement Homesite Value: | + | $0 | |
| (+) Improvement Non-Homesite Value: | + | $400,594 | |
| (+) Land Homesite Value: | + | $0 | |
| (+) Land Non-Homesite Value: | + | $300,000 | |
| (+) Curr Use (HS): | + | $0 | $0 |
| (+) Curr Use (NHS): | + | $0 | $0 |
| | | -------------------------- | |
| (=) Market Value: | = | $700,594 | |
| (–) Productivity Loss: | – | $0 | |
| | | -------------------------- | |
| (=) Subtotal: | = | $700,594 | |
| (+) Senior Appraised Value: | + | $0 | |
| (+) Non-Senior Appraised Value: | + | $700,594 | |
| | | -------------------------- | |
| (=) Total Appraised Value: | = | $700,594 | |
| (–) Senior Exemption Loss: | – | $0 | |
| (–) Exemption Loss: | – | $0 | |
| | | -------------------------- | |
| (=) Taxable Value: | = | $700,594 | |
Taxing Jurisdiction
| Owner: | VANDERIET, GEORGE | | |
| % Ownership: | 100.0000000000% | | |
| Total Value: | $700,594 | | |
| Tax Area: | 512 - APPRAISER-Stan/Cam Schl Dist, improved, greater than 1 acre |
| CF | Conservation Futures | 0.0313996660 | $700,594 | $700,594 | $22.00 | | |
| EMS1 | Fire & Rescue Dist #1 Camano GEN (EMS) | 0.4998471806 | $700,594 | $700,594 | $350.19 | | |
| FIRE1 | Fire & Rescue Dist #1 Camano GEN | 1.2496603404 | $700,594 | $700,594 | $875.50 | | |
| FIRE1BOND | Fire & Rescue Dist #1 Camano BOND | 0.1630371212 | $700,594 | $700,594 | $114.22 | | |
| CE | County Current Expense | 0.3674210519 | $700,594 | $700,594 | $257.41 | | |
| CR | County Roads | 0.4614296361 | $700,594 | $700,594 | $323.27 | | |
| LIB | Library Sno-Isle GEN | 0.3039084203 | $700,594 | $700,594 | $212.92 | | |
| SCH205_401 | School 205-401 Enrichment | 1.3697998934 | $700,594 | $700,594 | $959.67 | | |
| SCH205BOND | School 205-401 BOND | 0.9354199323 | $700,594 | $700,594 | $655.35 | | |
| ST | State School | 1.4761226122 | $700,594 | $700,594 | $1,034.16 | | |
| ST2 | State School Part 2 | 0.7953803475 | $700,594 | $700,594 | $557.24 | | |
| | Total Tax Rate: | 7.6534262019 | | | | | |
| | | | | Taxes w/Current Exemptions: | $5,361.93 | | |
| | | | | Taxes w/o Exemptions: | $5,361.93 | | |
Improvement / Building
| Improvement #1: | RESIDENTIAL | State Code: | Y | 1430.0 sqft | Value: | $400,594 |
| Bathrooms: | 1 | Bedrooms: | 1 | | Ceiling: | DRYWALL PAINTED | Cooling: | (NONE) | | Exterior Wall/Cover: | VINYL | Floor Covering: | VINYL 100% | | Floor Structure: | SLAB ABOVE GRADE | Foundation: | SLAB | | Interior Finish: | DRYWALL PAINT | Plumbing Fixture Cnt: | 7 | | Roof Slope: | 4" IN 12" | Roof Structure/Cover: | CJ ALUMINIUM HEAVY |
|
| | Type | Description | Class CD | Sub Class CD | Year Built | Area |
| | BAS | BASE/MAIN FLOOR | 3 | 0 | 2023 | 700.0 |
| | UPS | UPPER STORY | 3 | 0 | 2023 | 609.0 |
| | AGR | ATTACHED GARAGE | 3 | 0 | 2023 | 2420.0 |
| | LOF | LOFT | 3 | 0 | 2023 | 121.0 |
| | OWP | OPEN WOOD PORCH W/STEPS | 3 | 0 | 2023 | 192.0 |
| | OWR | OPEN WOOD PORCH W/STEPS/ROOF | 3 | 0 | 2023 | 192.0 |
Sketch
Property Image
Land
| 1 | 18 | AC (02.01-03.00) | 2.5000 | 108900.00 | 0.00 | 0.00 | 1.00 | $300,000 | $0 |
Roll Value History
| 2026 | N/A | N/A | N/A | N/A | N/A |
| 2025 | $400,594 | $300,000 | $0 | $700,594 | $700,594 |
| 2024 | $407,879 | $280,000 | $0 | $687,879 | $687,879 |
| 2023 | $155,235 | $140,000 | $0 | $295,235 | $295,235 |
| 2022 | $0 | $130,000 | $0 | $130,000 | $130,000 |
| 2021 | $0 | $100,000 | $0 | $100,000 | $100,000 |
| 2020 | $0 | $90,000 | $0 | $90,000 | $90,000 |
| 2019 | $0 | $90,000 | $0 | $90,000 | $90,000 |
| 2018 | $0 | $80,000 | $0 | $80,000 | $80,000 |
| 2017 | $0 | $80,000 | $0 | $80,000 | $80,000 |
| 2016 | $0 | $70,000 | $0 | $70,000 | $70,000 |
| 2015 | $0 | $112,000 | $0 | $112,000 | $112,000 |
| 2014 | $0 | $112,000 | $0 | $112,000 | $112,000 |
| 2013 | $0 | $112,000 | $0 | $112,000 | $112,000 |
| 2012 | $0 | $112,000 | $0 | $112,000 | $112,000 |
| 2011 | $0 | $112,000 | $0 | $112,000 | $112,000 |
| 2010 | $0 | $112,000 | $0 | $112,000 | $112,000 |
| 2009 | $0 | $135,000 | $0 | $135,000 | $135,000 |
| 2008 | $0 | $145,000 | $0 | $145,000 | $145,000 |
| 2007 | $0 | $140,000 | $0 | $140,000 | $140,000 |
Deed and Sales History
| 1 | 12/13/2021 | WD | Warranty Deed | PRITCHARD, DAVID L | VANDERIET, GEORGE | | | $260,000.00 | 51306 | 4535832 |
| 2 | 10/07/2009 | ESTSEPPROP | Establish Separate Property | PRITCHARD, DAVID L | PRITCHARD, DAVID L | | | $0.00 | 92484 | 4261978 |
| 3 | 05/01/1988 | WD | Warranty Deed | BROWN, IVAN D | PRITCHARD, DAVID L | | | $18,000.00 | 81470 | 88005516 |
| 4 | 12/01/1986 | QCD | Quit Claim Deed | DRIVE, ENTERPRISES C | BROWN, IVAN D | | | $16,830.00 | 63714 | 86016568 |
| 5 | 11/01/1978 | OTHER | Other - Misc. Documents | Unknown | DRIVE, ENTERPRISES C | | | $24,000.00 | 86176 | 344893 |
Payout Agreement
| No payout information available.. |