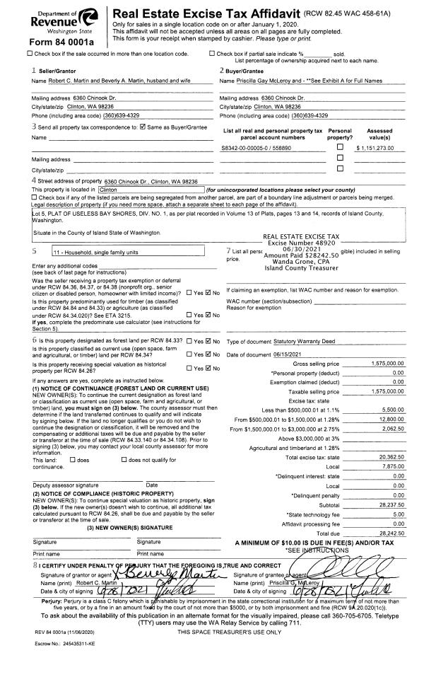
Property
Account |
| Property ID: | 558890 | Abbreviated Legal Description: | USELESS BAY SHORES #1 LOT 5 |
| Geographic ID: | S8342-00-00005-0 | Agent Code: | |
| Type: | Real | | |
| Tax Area: | 710 - APPRAISER-S Whid Schl Dist, outside Langley, improved & 1 acre or less | Land Use Code | 11 |
| Open Space: | N | DFL | N |
| Historic Property: | N | Remodel Property: | N |
| Multi-Family Redevelopment: | N | | |
| Township: | | Section: | |
| Range: | |
Location |
| Address: | 6360 CHINOOK DR CLINTON, WA 98236 | Mapsco: | |
| Neighborhood: | Cycle 4 | Map ID: | 788 |
| Neighborhood CD: | 4 |
Owner |
| Name: | MCLEROY TTEE, PRISCILLA GAY | Owner ID: | 300002 |
| Mailing Address: | CATHERINE LYDIA SCHNAUBELT 224 E COWAN DR HOUSTON, TX 77007 | % Ownership: | 100.0000000000% |
| | | Exemptions: | |
Taxes and Assessment Details
Values
| (+) Improvement Homesite Value: | + | $0 | |
| (+) Improvement Non-Homesite Value: | + | $677,964 | |
| (+) Land Homesite Value: | + | $0 | |
| (+) Land Non-Homesite Value: | + | $1,000,000 | |
| (+) Curr Use (HS): | + | $0 | $0 |
| (+) Curr Use (NHS): | + | $0 | $0 |
| | | -------------------------- | |
| (=) Market Value: | = | $1,677,964 | |
| (–) Productivity Loss: | – | $0 | |
| | | -------------------------- | |
| (=) Subtotal: | = | $1,677,964 | |
| (+) Senior Appraised Value: | + | $0 | |
| (+) Non-Senior Appraised Value: | + | $1,677,964 | |
| | | -------------------------- | |
| (=) Total Appraised Value: | = | $1,677,964 | |
| (–) Senior Exemption Loss: | – | $0 | |
| (–) Exemption Loss: | – | $0 | |
| | | -------------------------- | |
| (=) Taxable Value: | = | $1,677,964 | |
Taxing Jurisdiction
| Owner: | MCLEROY TTEE, PRISCILLA GAY | | |
| % Ownership: | 100.0000000000% | | |
| Total Value: | $1,677,964 | | |
| Tax Area: | 710 - APPRAISER-S Whid Schl Dist, outside Langley, improved & 1 acre or less |
| CF | Conservation Futures | 0.0313996660 | $1,677,964 | $1,677,964 | $52.69 | | |
| FIRE3 | Fire & Rescue Dist #3 S Whidbey GEN | 1.2130821753 | $1,677,964 | $1,677,964 | $2,035.51 | | |
| HOBOND | Hospital BOND | 0.1893405597 | $1,677,964 | $1,677,964 | $317.71 | | |
| HOGEN | Hospital GEN | 0.3848777722 | $1,677,964 | $1,677,964 | $645.81 | | |
| CE | County Current Expense | 0.3674210519 | $1,677,964 | $1,677,964 | $616.52 | | |
| CR | County Roads | 0.4614296361 | $1,677,964 | $1,677,964 | $774.26 | | |
| ISLANDEMS | Hospital GEN (EMS) | 0.4952018576 | $1,677,964 | $1,677,964 | $830.93 | | |
| LIB | Library Sno-Isle GEN | 0.3039084203 | $1,677,964 | $1,677,964 | $509.95 | | |
| PORTWHID | Port of S Whidbey GEN | 0.1086004714 | $1,677,964 | $1,677,964 | $182.23 | | |
| SCH206BOND | School 206 BOND | 0.5960237832 | $1,677,964 | $1,677,964 | $1,000.11 | | |
| SCH206CAP | School 206 CP | 0.3066144020 | $1,677,964 | $1,677,964 | $514.49 | | |
| SCH206MO | School 206 Enrichment | 0.4808755445 | $1,677,964 | $1,677,964 | $806.89 | | |
| ST | State School | 1.4761226122 | $1,677,964 | $1,677,964 | $2,476.88 | | |
| ST2 | State School Part 2 | 0.7953803475 | $1,677,964 | $1,677,964 | $1,334.62 | | |
| SWHIDPRBD | P & R S Whidbey BOND | 0.0144185398 | $1,677,964 | $1,677,964 | $24.19 | | |
| SWHIDPRBD3 | P & R S Whidbey BOND3 | 0.1483535547 | $1,677,964 | $1,677,964 | $248.93 | | |
| SWHIDPRMT | P & R S Whidbey GEN | 0.4600000000 | $1,677,964 | $1,677,964 | $771.86 | | |
| | Total Tax Rate: | 7.8330503944 | | | | | |
| | | | | Taxes w/Current Exemptions: | $13,143.58 | | |
| | | | | Taxes w/o Exemptions: | $13,143.58 | | |
Improvement / Building
| Improvement #1: | RESIDENTIAL | State Code: | Y | 3820.0 sqft | Value: | $677,964 |
| Bathrooms: | 3.5 | Bedrooms: | 4 | | Ceiling: | DRYWALL PAINTED | Cooling: | HEAT PUMP/CONV/V | | Exterior Wall/Cover: | WOOD SIDING | Floor Covering: | HARDWOOD/CARP 60-40 | | Floor Structure: | WOOD W/SUBFLOOR | Foundation: | CONCRETE | | Interior Finish: | DRYWALL PAINT | Plumbing Fixture Cnt: | 16 | | Roof Slope: | 6" IN 12" | Roof Structure/Cover: | CJ CONCRETE TILE |
|
| | Type | Description | Class CD | Sub Class CD | Year Built | Area |
| | BAS | BASE/MAIN FLOOR | 4 | 0 | 1988 | 2136.0 |
| | UB8 | BASEMENT UNFINISHED 8" | 4 | 0 | 1988 | 216.0 |
| | OP4 | OPEN PORCH W/CEILING-ROOF | 4 | 0 | 1988 | 210.0 |
| | AGR | ATTACHED GARAGE | 4 | 0 | 1988 | 576.0 |
| | OWP | OPEN WOOD PORCH W/STEPS | 4 | 0 | 1988 | 402.0 |
| | DWN | DOWNSTAIRS LIVING AREA | 4 | 0 | 1988 | 1684.0 |
Sketch
Property Image
Land
| 1 | HB | HIGH BLUFF | 0.4488 | 19549.73 | 82.00 | 0.00 | 1.00 | $1,000,000 | $0 |
Roll Value History
| 2026 | N/A | N/A | N/A | N/A | N/A |
| 2025 | $677,964 | $1,000,000 | $0 | $1,677,964 | $1,677,964 |
| 2024 | $685,917 | $950,000 | $0 | $1,635,917 | $1,635,917 |
| 2023 | $693,871 | $950,000 | $0 | $1,643,871 | $1,643,871 |
| 2022 | $635,528 | $950,000 | $0 | $1,585,528 | $1,585,528 |
| 2021 | $526,273 | $625,000 | $0 | $1,151,273 | $1,151,273 |
| 2020 | $502,084 | $600,000 | $0 | $1,102,084 | $1,102,084 |
| 2019 | $411,317 | $750,000 | $0 | $1,161,317 | $1,161,317 |
| 2018 | $412,523 | $425,000 | $0 | $837,523 | $837,523 |
| 2017 | $414,936 | $350,000 | $0 | $764,936 | $764,936 |
| 2016 | $385,386 | $350,000 | $0 | $735,386 | $735,386 |
| 2015 | $390,028 | $350,000 | $0 | $740,028 | $740,028 |
| 2014 | $394,672 | $350,000 | $0 | $744,672 | $744,672 |
| 2013 | $399,315 | $330,132 | $0 | $729,447 | $729,447 |
| 2012 | $346,364 | $330,132 | $0 | $676,496 | $676,496 |
| 2011 | $341,777 | $330,132 | $0 | $671,909 | $671,909 |
| 2010 | $355,744 | $330,132 | $0 | $685,876 | $685,876 |
| 2009 | $371,054 | $396,793 | $0 | $767,847 | $767,847 |
| 2008 | $374,766 | $396,793 | $0 | $771,559 | $771,559 |
| 2007 | $379,269 | $396,793 | $0 | $776,062 | $776,062 |
Deed and Sales History
| 1 | 06/15/2021 | WD | Warranty Deed | MARTIN, ROBERT C | MCLEROY TTEE, PRISCILLA GAY | | | $1,575,000.00 | 48920 | 4523104 |
| 2 | 01/30/2012 | WD | Warranty Deed | PARKER, EDWIN L | MARTIN, ROBERT C | | | $538,000.00 | 6788 | 4309296 |
| 3 | 06/01/1988 | WD | Warranty Deed | MILBY, F M | PARKER, EDWIN L | | | $64,550.00 | 81845 | 88006846 |
| 4 | 01/01/1900 | OTHER | Other - Misc. Documents | Unknown | MILBY, F M | | | $0.00 | 0 | 0 |
Payout Agreement
| No payout information available.. |