Property
Account |
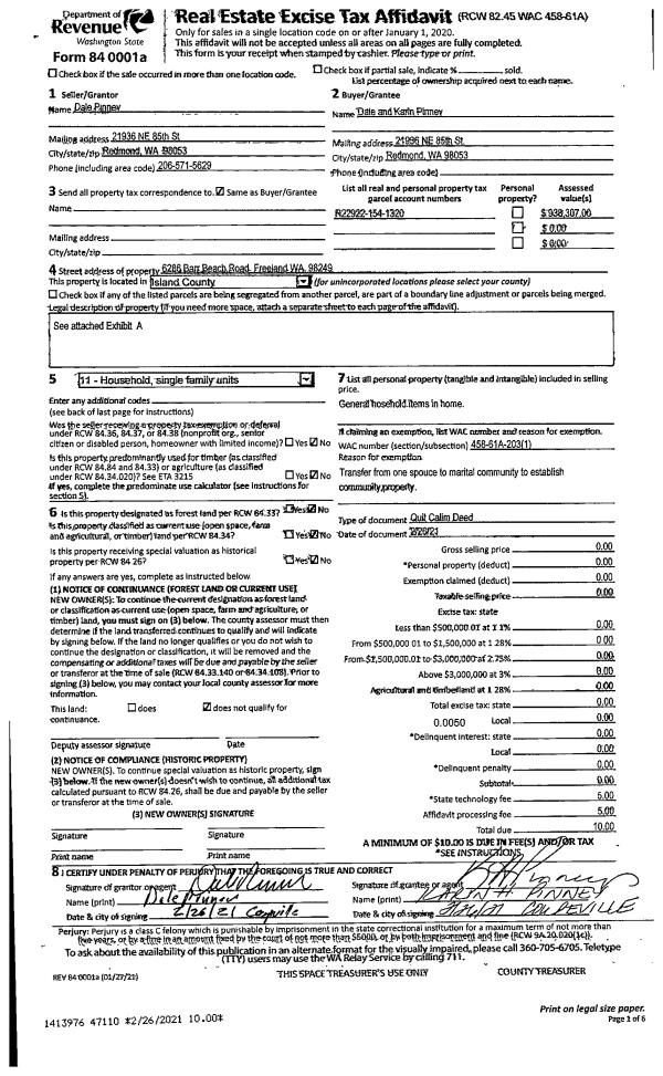
| Property ID: | 55950 | Abbreviated Legal Description: | 124 - IN GL 3 LOT 5 UNREC BARR BUNGALOW ADD TGW ADJ TIDES BG SW CR GL3 N20*E 216.49' TPB S87*E141.66' N35*E57.07' N86*W156.11' S20*W52.63' TPB SUB EAS TIDES FR 160-1100 9/28/84 |
| Geographic ID: | R22922-154-1320 | Agent Code: | |
| Type: | Real | | |
| Tax Area: | 710 - APPRAISER-S Whid Schl Dist, outside Langley, improved & 1 acre or less | Land Use Code | 11 |
| Open Space: | N | DFL | N |
| Historic Property: | N | Remodel Property: | N |
| Multi-Family Redevelopment: | N | | |
| Township: | 29 | Section: | 22 |
| Range: | R2 |
Location |
| Address: | 6286 BARR BEACH RD FREELAND, WA 98249 | Mapsco: | |
| Neighborhood: | Cycle 3 | Map ID: | 334 |
| Neighborhood CD: | 3 |
Owner |
| Name: | PINNEY, DALE R | Owner ID: | 298277 |
| Mailing Address: | KARIN H PINNEY 21936 NE 85TH ST REDMOND, WA 98053 | % Ownership: | 100.0000000000% |
| | | Exemptions: | |
Taxes and Assessment Details
Values
| (+) Improvement Homesite Value: | + | $0 | |
| (+) Improvement Non-Homesite Value: | + | $326,654 | |
| (+) Land Homesite Value: | + | $0 | |
| (+) Land Non-Homesite Value: | + | $1,300,530 | |
| (+) Curr Use (HS): | + | $0 | $0 |
| (+) Curr Use (NHS): | + | $0 | $0 |
| | | -------------------------- | |
| (=) Market Value: | = | $1,627,184 | |
| (–) Productivity Loss: | – | $0 | |
| | | -------------------------- | |
| (=) Subtotal: | = | $1,627,184 | |
| (+) Senior Appraised Value: | + | $0 | |
| (+) Non-Senior Appraised Value: | + | $1,627,184 | |
| | | -------------------------- | |
| (=) Total Appraised Value: | = | $1,627,184 | |
| (–) Senior Exemption Loss: | – | $0 | |
| (–) Exemption Loss: | – | $0 | |
| | | -------------------------- | |
| (=) Taxable Value: | = | $1,627,184 | |
Taxing Jurisdiction
| Owner: | PINNEY, DALE R | | |
| % Ownership: | 100.0000000000% | | |
| Total Value: | $1,627,184 | | |
| Tax Area: | 710 - APPRAISER-S Whid Schl Dist, outside Langley, improved & 1 acre or less |
| CF | Conservation Futures | 0.0313996660 | $1,627,184 | $1,627,184 | $51.09 | | |
| FIRE3 | Fire & Rescue Dist #3 S Whidbey GEN | 1.2130821753 | $1,627,184 | $1,627,184 | $1,973.91 | | |
| HOBOND | Hospital BOND | 0.1893405597 | $1,627,184 | $1,627,184 | $308.09 | | |
| HOGEN | Hospital GEN | 0.3848777722 | $1,627,184 | $1,627,184 | $626.27 | | |
| CE | County Current Expense | 0.3674210519 | $1,627,184 | $1,627,184 | $597.86 | | |
| CR | County Roads | 0.4614296361 | $1,627,184 | $1,627,184 | $750.83 | | |
| ISLANDEMS | Hospital GEN (EMS) | 0.4952018576 | $1,627,184 | $1,627,184 | $805.78 | | |
| LIB | Library Sno-Isle GEN | 0.3039084203 | $1,627,184 | $1,627,184 | $494.51 | | |
| PORTWHID | Port of S Whidbey GEN | 0.1086004714 | $1,627,184 | $1,627,184 | $176.71 | | |
| SCH206BOND | School 206 BOND | 0.5960237832 | $1,627,184 | $1,627,184 | $969.84 | | |
| SCH206CAP | School 206 CP | 0.3066144020 | $1,627,184 | $1,627,184 | $498.92 | | |
| SCH206MO | School 206 Enrichment | 0.4808755445 | $1,627,184 | $1,627,184 | $782.47 | | |
| ST | State School | 1.4761226122 | $1,627,184 | $1,627,184 | $2,401.92 | | |
| ST2 | State School Part 2 | 0.7953803475 | $1,627,184 | $1,627,184 | $1,294.23 | | |
| SWHIDPRBD | P & R S Whidbey BOND | 0.0144185398 | $1,627,184 | $1,627,184 | $23.46 | | |
| SWHIDPRBD3 | P & R S Whidbey BOND3 | 0.1483535547 | $1,627,184 | $1,627,184 | $241.40 | | |
| SWHIDPRMT | P & R S Whidbey GEN | 0.4600000000 | $1,627,184 | $1,627,184 | $748.50 | | |
| | Total Tax Rate: | 7.8330503944 | | | | | |
| | | | | Taxes w/Current Exemptions: | $12,745.79 | | |
| | | | | Taxes w/o Exemptions: | $12,745.79 | | |
Improvement / Building
| Improvement #1: | RESIDENTIAL | State Code: | Y | 2606.0 sqft | Value: | $326,654 |
| Bathrooms: | 3.5 | Bedrooms: | 3 | | Ceiling: | BEAM PAINTED | Exterior Wall/Cover: | WOOD SIDING | | Floor Covering: | TILE CERAMIC | Floor Structure: | WOOD W/SUBFLOOR | | Foundation: | CONCRETE | Heating: | FHA ELECTRIC | | Interior Finish: | DRYWALL PAINT | Plumbing Fixture Cnt: | 12 | | Roof Slope: | 5" IN 12" | Roof Structure/Cover: | BEAM ASPHALT |
|
| | Type | Description | Class CD | Sub Class CD | Year Built | Area |
| | BAS | BASE/MAIN FLOOR | 3 | 0 | 1961 | 1348.0 |
| | BAS | BASE/MAIN FLOOR | 3 | 0 | 1961 | 144.0 |
| | OP3 | OPEN PORCH W/ROOF | 3 | 0 | 1961 | 281.2 |
| | AGR | ATTACHED GARAGE | 3 | 0 | 1961 | 630.0 |
| | UPS | UPPER STORY | 3 | 0 | 1961 | 467.5 |
| | OWP | OPEN WOOD PORCH W/STEPS | 3 | 0 | 1961 | 440.7 |
| | OWP | OPEN WOOD PORCH W/STEPS | 3 | 0 | 1961 | 223.9 |
| | OWR | OPEN WOOD PORCH W/STEPS/ROOF | 3 | 0 | 1961 | 82.4 |
| | OWC | OPEN WOOD PORCH W/STEPS/ROOF/C | 3 | 0 | 1961 | 72.0 |
| | LOF | LOFT | 3 | 0 | 1961 | 382.5 |
| | LOF | LOFT | 3 | 0 | 1961 | 264.0 |
| | OWP | OPEN WOOD PORCH W/STEPS | 3 | 0 | 1961 | 536.0 |
Sketch
Property Image
Land
| 1 | LB | LOW BANK | 0.1800 | 7840.80 | 51.00 | 0.00 | 1.00 | $1,300,000 | $0 |
| 2 | 55 | TIDES | 0.0000 | 0.00 | 53.00 | 0.00 | 1.00 | $530 | $0 |
Roll Value History
| 2026 | N/A | N/A | N/A | N/A | N/A |
| 2025 | $326,654 | $1,300,530 | $0 | $1,627,184 | $1,627,184 |
| 2024 | $326,428 | $1,100,530 | $0 | $1,426,958 | $1,426,958 |
| 2023 | $331,282 | $1,100,530 | $0 | $1,431,812 | $1,431,812 |
| 2022 | $304,376 | $1,050,530 | $0 | $1,354,906 | $1,354,906 |
| 2021 | $268,493 | $800,530 | $0 | $1,069,023 | $1,069,023 |
| 2020 | $262,777 | $675,530 | $0 | $938,307 | $938,307 |
| 2019 | $201,512 | $725,530 | $0 | $927,042 | $927,042 |
| 2018 | $202,973 | $700,530 | $0 | $903,503 | $903,503 |
| 2017 | $204,320 | $700,530 | $0 | $904,850 | $904,850 |
| 2016 | $207,120 | $700,530 | $0 | $907,650 | $907,650 |
| 2015 | $209,921 | $700,530 | $0 | $910,451 | $910,451 |
| 2014 | $212,718 | $700,530 | $0 | $913,248 | $913,248 |
| 2013 | $184,326 | $789,394 | $0 | $973,720 | $973,720 |
| 2012 | $187,162 | $789,394 | $0 | $976,556 | $976,556 |
| 2011 | $189,996 | $789,394 | $0 | $979,390 | $979,390 |
| 2010 | $203,491 | $789,394 | $0 | $992,885 | $992,885 |
| 2009 | $212,588 | $943,596 | $0 | $1,156,184 | $1,156,184 |
| 2008 | $213,673 | $1,079,943 | $0 | $1,293,616 | $1,293,616 |
| 2007 | $219,971 | $1,079,572 | $0 | $1,299,543 | $1,299,543 |
Deed and Sales History
| 1 | 10/16/2025 | QCD | Quit Claim Deed | PINNEY, DALE R | PINNEY TTEE, DALE | | | $0.00 | 65326 | 4592960 |
| 2 | 02/26/2021 | QCD | Quit Claim Deed | PINNEY, DALE R | PINNEY, DALE R | | | $0.00 | 47110 | 4512117 |
| 3 | 08/24/2012 | QCD | Quit Claim Deed | PINNEY JR, RAYMOND E | PINNEY, DALE R | | | $0.00 | 8665 | 4321904 |
| 4 | 05/08/2008 | QCD | Quit Claim Deed | PINNEY JR, RAYMOND E | PINNEY JR, RAYMOND E | | | $0.00 | 81289 | 4229109 |
| 5 | 05/08/2008 | QCD | Quit Claim Deed | PINNEY JR, TRUSTEE, RAYMOND | PINNEY JR, RAYMOND E | | | $0.00 | 81288 | 4229108 |
| 6 | 12/20/2007 | QCD | Quit Claim Deed | PINNEY, TRUSTEE, RAYMOND E | PINNEY JR, TRUSTEE, RAYMOND | | | $0.00 | 80089 | 4219665 |
| 7 | 04/13/2000 | QCD | Quit Claim Deed | PINNEY, RAYMOND E | PINNEY, TRUSTEE, RAYMOND E | | | $0.00 | 1329 | 20006549 |
| 8 | 08/01/1984 | WD | Warranty Deed | PINNEY, RAYMON E | PINNEY, RAYMOND E | | | $600.00 | 42819 | 84003706 |
| 9 | 01/01/1900 | OTHER | Other - Misc. Documents | Unknown | PINNEY, RAYMON E | | | $0.00 | 0 | 0 |
Payout Agreement
| No payout information available.. |