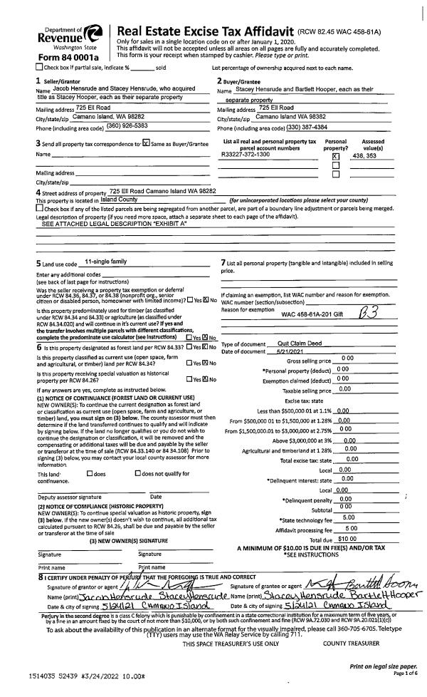
Property
Account |
| Property ID: | 560547 | Abbreviated Legal Description: | S180' OF N1093.94' OF W150' NE NW TGW S180'OF N1093.94' OF E290' NW NW FR 370-1200 & 372-1420 2/25/83 |
| Geographic ID: | R33227-372-1300 | Agent Code: | |
| Type: | Real | | |
| Tax Area: | 512 - APPRAISER-Stan/Cam Schl Dist, improved, greater than 1 acre | Land Use Code | 11 |
| Open Space: | N | DFL | N |
| Historic Property: | N | Remodel Property: | N |
| Multi-Family Redevelopment: | N | | |
| Township: | 32 | Section: | 27 |
| Range: | R3 |
Location |
| Address: | 725 ELL RD CAMANO ISLAND, WA 98282 | Mapsco: | |
| Neighborhood: | Cycle 5 | Map ID: | 978 |
| Neighborhood CD: | 5 |
Owner |
| Name: | HENSRUDE, STACEY | Owner ID: | 307091 |
| Mailing Address: | BARTLETT HOOPER 725 ELL ROAD CAMANO ISLAND, WA 98282 | % Ownership: | 100.0000000000% |
| | | Exemptions: | |
Taxes and Assessment Details
Values
| (+) Improvement Homesite Value: | + | $0 | |
| (+) Improvement Non-Homesite Value: | + | $290,634 | |
| (+) Land Homesite Value: | + | $0 | |
| (+) Land Non-Homesite Value: | + | $360,000 | |
| (+) Curr Use (HS): | + | $0 | $0 |
| (+) Curr Use (NHS): | + | $0 | $0 |
| | | -------------------------- | |
| (=) Market Value: | = | $650,634 | |
| (–) Productivity Loss: | – | $0 | |
| | | -------------------------- | |
| (=) Subtotal: | = | $650,634 | |
| (+) Senior Appraised Value: | + | $0 | |
| (+) Non-Senior Appraised Value: | + | $650,634 | |
| | | -------------------------- | |
| (=) Total Appraised Value: | = | $650,634 | |
| (–) Senior Exemption Loss: | – | $0 | |
| (–) Exemption Loss: | – | $0 | |
| | | -------------------------- | |
| (=) Taxable Value: | = | $650,634 | |
Taxing Jurisdiction
| Owner: | HENSRUDE, STACEY | | |
| % Ownership: | 100.0000000000% | | |
| Total Value: | $650,634 | | |
| Tax Area: | 512 - APPRAISER-Stan/Cam Schl Dist, improved, greater than 1 acre |
| CF | Conservation Futures | 0.0313996660 | $650,634 | $650,634 | $20.43 | | |
| EMS1 | Fire & Rescue Dist #1 Camano GEN (EMS) | 0.4998471806 | $650,634 | $650,634 | $325.22 | | |
| FIRE1 | Fire & Rescue Dist #1 Camano GEN | 1.2496603404 | $650,634 | $650,634 | $813.07 | | |
| FIRE1BOND | Fire & Rescue Dist #1 Camano BOND | 0.1630371212 | $650,634 | $650,634 | $106.08 | | |
| CE | County Current Expense | 0.3674210519 | $650,634 | $650,634 | $239.06 | | |
| CR | County Roads | 0.4614296361 | $650,634 | $650,634 | $300.22 | | |
| LIB | Library Sno-Isle GEN | 0.3039084203 | $650,634 | $650,634 | $197.73 | | |
| SCH205_401 | School 205-401 Enrichment | 1.3697998934 | $650,634 | $650,634 | $891.24 | | |
| SCH205BOND | School 205-401 BOND | 0.9354199323 | $650,634 | $650,634 | $608.62 | | |
| ST | State School | 1.4761226122 | $650,634 | $650,634 | $960.42 | | |
| ST2 | State School Part 2 | 0.7953803475 | $650,634 | $650,634 | $517.50 | | |
| | Total Tax Rate: | 7.6534262019 | | | | | |
| | | | | Taxes w/Current Exemptions: | $4,979.59 | | |
| | | | | Taxes w/o Exemptions: | $4,979.59 | | |
Improvement / Building
| Improvement #1: | RESIDENTIAL | State Code: | Y | 2154.0 sqft | Value: | $290,634 |
| Bathrooms: | 2 | Bedrooms: | 3 | | Ceiling: | DRYWALL PAINTED | Exterior Wall/Cover: | WOOD SIDING | | Floor Covering: | CARPET/VINYL 80-20 | Floor Structure: | WOOD W/SUBFLOOR | | Foundation: | CONCRETE | Heating: | BASEBOARD ELECTRIC | | Interior Finish: | DRYWALL PAINT | Plumbing Fixture Cnt: | 9 | | Roof Slope: | 6" IN 12" | Roof Structure/Cover: | CJ ASPHALT |
|
| | Type | Description | Class CD | Sub Class CD | Year Built | Area |
| | BAS | BASE/MAIN FLOOR | 3 | 0 | 1977 | 1180.0 |
| | UB8 | BASEMENT UNFINISHED 8" | 3 | 0 | 1977 | 168.0 |
| | DWN | DOWNSTAIRS LIVING AREA | 3 | 0 | 1977 | 974.0 |
| | OP2 | OPEN PORCH W/STEPS | 3 | 0 | 1977 | 80.0 |
| | OP3 | OPEN PORCH W/ROOF | 3 | 0 | 1977 | 24.0 |
| | OCP | OPEN CARPORT | 3 | 0 | 1977 | 384.0 |
| | OWR | OPEN WOOD PORCH W/STEPS/ROOF | 3 | 0 | 1977 | 72.0 |
| | oOBD | Out Buildings | 3 | 0 | 1977 | 0.0 |
Sketch
Property Image
Land
| 1 | 17 | AC (01.01-02.00) | 0.0000 | 0.00 | 0.00 | 0.00 | 1.00 | $360,000 | $0 |
Roll Value History
| 2026 | N/A | N/A | N/A | N/A | N/A |
| 2025 | $290,634 | $360,000 | $0 | $650,634 | $650,634 |
| 2024 | $300,197 | $360,000 | $0 | $660,197 | $660,197 |
| 2023 | $303,778 | $360,000 | $0 | $663,778 | $663,778 |
| 2022 | $280,210 | $270,000 | $0 | $550,210 | $550,210 |
| 2021 | $243,455 | $230,000 | $0 | $473,455 | $473,455 |
| 2020 | $238,353 | $200,000 | $0 | $438,353 | $438,353 |
| 2019 | $188,716 | $220,000 | $0 | $408,716 | $408,716 |
| 2018 | $189,233 | $210,000 | $0 | $399,233 | $399,233 |
| 2017 | $190,272 | $150,000 | $0 | $340,272 | $340,272 |
| 2016 | $192,349 | $135,000 | $0 | $327,349 | $327,349 |
| 2015 | $184,980 | $125,000 | $0 | $309,980 | $309,980 |
| 2014 | $187,046 | $125,000 | $0 | $312,046 | $312,046 |
| 2013 | $189,112 | $120,000 | $0 | $309,112 | $309,112 |
| 2012 | $191,177 | $120,000 | $0 | $311,177 | $311,177 |
| 2011 | $193,242 | $150,000 | $0 | $343,242 | $343,242 |
| 2010 | $204,762 | $150,000 | $0 | $354,762 | $354,762 |
| 2009 | $207,972 | $175,000 | $0 | $382,972 | $382,972 |
| 2008 | $210,453 | $170,000 | $0 | $380,453 | $380,453 |
| 2007 | $212,934 | $170,000 | $0 | $382,934 | $382,934 |
Deed and Sales History
| 1 | 05/21/2021 | QCD | Quit Claim Deed | HENSRUDE, JACOB | HENSRUDE, STACEY | | | $0.00 | 52439 | 4542130 |
| 2 | 12/01/2005 | WD | Warranty Deed | BURNS, ROBERT W | HENSRUDE, JACOB | | | $372,000.00 | 56094 | 4156400 |
| 3 | 01/01/1900 | OTHER | Other - Misc. Documents | Unknown | BURNS, ROBERT W | | | $0.00 | 0 | 0 |
Payout Agreement
| No payout information available.. |