Property
Account |
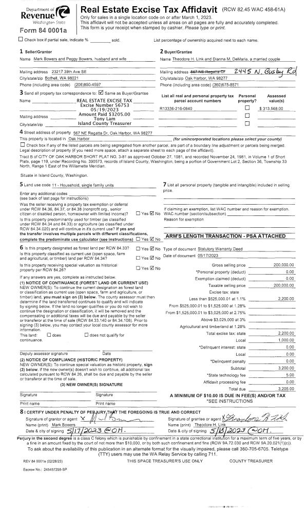
| Property ID: | 561476 | Abbreviated Legal Description: | TRACT B - OH SP 3-81 13336-212-0620 V1 SUR P119 AF#390573 |
| Geographic ID: | R13336-216-0640 | Agent Code: | |
| Type: | Real | | |
| Tax Area: | 100 - APPRAISER-OH Schl Dist, in OH | Land Use Code | 11 |
| Open Space: | N | DFL | N |
| Historic Property: | N | Remodel Property: | N |
| Multi-Family Redevelopment: | N | | |
| Township: | 33 | Section: | 36 |
| Range: | R1 |
Location |
| Address: | 567 NE REGATTA DR OAK HARBOR, WA 98277 | Mapsco: | |
| Neighborhood: | Cycle 1 | Map ID: | 260 |
| Neighborhood CD: | 1 |
Owner |
| Name: | LINK, THEODORE H | Owner ID: | 308665 |
| Mailing Address: | DIANNA M DEMARIA 2445 N BUSBY RD OAK HARBOR, WA 98277 | % Ownership: | 100.0000000000% |
| | | Exemptions: | |
Taxes and Assessment Details
Values
| (+) Improvement Homesite Value: | + | $171,880 | |
| (+) Improvement Non-Homesite Value: | + | $0 | |
| (+) Land Homesite Value: | + | $0 | |
| (+) Land Non-Homesite Value: | + | $180,000 | |
| (+) Curr Use (HS): | + | $0 | $0 |
| (+) Curr Use (NHS): | + | $0 | $0 |
| | | -------------------------- | |
| (=) Market Value: | = | $351,880 | |
| (–) Productivity Loss: | – | $0 | |
| | | -------------------------- | |
| (=) Subtotal: | = | $351,880 | |
| (+) Senior Appraised Value: | + | $0 | |
| (+) Non-Senior Appraised Value: | + | $351,880 | |
| | | -------------------------- | |
| (=) Total Appraised Value: | = | $351,880 | |
| (–) Senior Exemption Loss: | – | $0 | |
| (–) Exemption Loss: | – | $0 | |
| | | -------------------------- | |
| (=) Taxable Value: | = | $351,880 | |
Taxing Jurisdiction
| Owner: | LINK, THEODORE H | | |
| % Ownership: | 100.0000000000% | | |
| Total Value: | $351,880 | | |
| Tax Area: | 100 - APPRAISER-OH Schl Dist, in OH |
| CF | Conservation Futures | 0.0313996660 | $351,880 | $351,880 | $11.05 | | |
| CEM1 | Cemetery #1 | 0.0040018856 | $351,880 | $351,880 | $1.41 | | |
| COH | City of Oak Harbor | 2.3090730572 | $351,880 | $351,880 | $812.52 | | |
| OAKBOND | City of Oak Harbor BOND | 0.1902260131 | $351,880 | $351,880 | $66.94 | | |
| HOBOND | Hospital BOND | 0.1893405597 | $351,880 | $351,880 | $66.63 | | |
| HOGEN | Hospital GEN | 0.3848777722 | $351,880 | $351,880 | $135.43 | | |
| CE | County Current Expense | 0.3674210519 | $351,880 | $351,880 | $129.29 | | |
| ISLANDEMS | Hospital GEN (EMS) | 0.4952018576 | $351,880 | $351,880 | $174.25 | | |
| LIB | Library Sno-Isle GEN | 0.3039084203 | $351,880 | $351,880 | $106.94 | | |
| NWHIDPRMT | P & R N Whidbey GEN | 0.1990272349 | $351,880 | $351,880 | $70.03 | | |
| SCH201MO | School 201 Enrichment | 2.3851112745 | $351,880 | $351,880 | $839.27 | | |
| ST | State School | 1.4761226122 | $351,880 | $351,880 | $519.42 | | |
| ST2 | State School Part 2 | 0.7953803475 | $351,880 | $351,880 | $279.88 | | |
| | Total Tax Rate: | 9.1310917527 | | | | | |
| | | | | Taxes w/Current Exemptions: | $3,213.06 | | |
| | | | | Taxes w/o Exemptions: | $3,213.06 | | |
Improvement / Building
| Improvement #1: | RESIDENTIAL | State Code: | Y | 980.0 sqft | Value: | $171,880 |
| Bathrooms: | 1 | Bedrooms: | 2 | | Ceiling: | DRY WALL SPRAYED | Cooling: | HEAT PUMP/CONV/V | | Exterior Wall/Cover: | CEMENT FIBER | Floor Covering: | CARPET/VINYL 80-20 | | Floor Structure: | WOOD W/SUBFLOOR | Foundation: | CONCRETE | | Interior Finish: | DRYWALL PAINT | Plumbing Fixture Cnt: | 6 | | Roof Slope: | 4" IN 12" | Roof Structure/Cover: | CJ ASPHALT |
|
| | Type | Description | Class CD | Sub Class CD | Year Built | Area |
| | BAS | BASE/MAIN FLOOR | 3 | 0 | 1983 | 980.0 |
| | OP4 | OPEN PORCH W/CEILING-ROOF | 3 | 0 | 1983 | 24.0 |
| | AGR | ATTACHED GARAGE | 3 | 0 | 1983 | 336.0 |
Sketch
Property Image
Land
| 1 | 13 | SQ (06001-08000) | 0.1700 | 7405.20 | 0.00 | 0.00 | 1.00 | $180,000 | $0 |
Roll Value History
| 2026 | N/A | N/A | N/A | N/A | N/A |
| 2025 | $171,880 | $180,000 | $0 | $351,880 | $351,880 |
| 2024 | $156,644 | $170,000 | $0 | $326,644 | $326,644 |
| 2023 | $167,032 | $170,000 | $0 | $337,032 | $337,032 |
| 2022 | $153,568 | $160,000 | $0 | $313,568 | $313,568 |
| 2021 | $135,557 | $120,000 | $0 | $255,557 | $255,557 |
| 2020 | $132,722 | $100,000 | $0 | $232,722 | $232,722 |
| 2019 | $91,288 | $160,000 | $0 | $251,288 | $251,288 |
| 2018 | $91,618 | $125,000 | $0 | $216,618 | $216,618 |
| 2017 | $79,227 | $110,000 | $0 | $189,227 | $189,227 |
| 2016 | $80,409 | $90,000 | $0 | $170,409 | $170,409 |
| 2015 | $81,593 | $80,000 | $0 | $161,593 | $161,593 |
| 2014 | $82,776 | $80,000 | $0 | $162,776 | $162,776 |
| 2013 | $83,958 | $80,000 | $0 | $163,958 | $163,958 |
| 2012 | $85,140 | $70,000 | $0 | $155,140 | $155,140 |
| 2011 | $84,448 | $80,000 | $0 | $164,448 | $164,448 |
| 2010 | $89,008 | $80,000 | $0 | $169,008 | $169,008 |
| 2009 | $92,983 | $97,000 | $0 | $189,983 | $189,983 |
| 2008 | $94,224 | $97,000 | $0 | $191,224 | $191,224 |
| 2007 | $94,257 | $97,000 | $0 | $191,257 | $191,257 |
Deed and Sales History
| 1 | 05/17/2023 | WD | Warranty Deed | BOWERS JTWROS, MARK | LINK, THEODORE H | | | $200,000.00 | 56753 | 4560094 |
| 2 | 04/09/2015 | SPWARDEED | Special Warranty Deed | BANK OF NEW YORK MELLON TRUST COMPANY | BOWERS JTWROS, MARK | | | $85,900.00 | 19337 | 4377377 |
| 3 | 11/03/2014 | TRUSTEED | Trustee's Deed | MORLEY, MARINA M | BANK OF NEW YORK MELLON TRUST COMPANY | | | $0.00 | 17426 | 4367947 |
| 4 | 08/25/1999 | WD | Warranty Deed | CATIZONE, TERESE M | MORLEY, MARINA M | | | $96,850.00 | 93647 | 99020586 |
| 5 | 07/01/1983 | WD | Warranty Deed | KOETJE, GORDON H | CATIZONE, TERESE M | | | $52,000.00 | 32059 | 412542 |
| 6 | 01/01/1983 | WD | Warranty Deed | MASSEY, WILLIAM L | KOETJE, GORDON H | | | $12,000.00 | 30119 | 404883 |
| 7 | 06/01/1981 | REC | Real Estate Contract | Unknown | MASSEY, WILLIAM L | | | $37,000.00 | 11753 | 384026 |
Payout Agreement
| No payout information available.. |