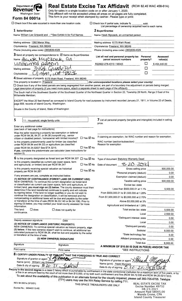
Property
Account |
| Property ID: | 56343 | Abbreviated Legal Description: | SEE 278-4311 - IMP ONLY 24 - S/2 SW SE NE SITE PLAN REVIEW SPR #50-93 |
| Geographic ID: | R22922-278-4310 | Agent Code: | |
| Type: | Real | | |
| Tax Area: | 712 - APPRAISER-S Whid Schl Dist, outside Langley, improved, greater than 1 acre | Land Use Code | 11 |
| Open Space: | N | DFL | N |
| Historic Property: | N | Remodel Property: | N |
| Multi-Family Redevelopment: | N | | |
| Township: | 29 | Section: | 22 |
| Range: | R2 |
Location |
| Address: | 6175 WAHL RD FREELAND, WA 98249 | Mapsco: | |
| Neighborhood: | Cycle 3 | Map ID: | 337 |
| Neighborhood CD: | 3 |
Owner |
| Name: | MYCZACH JTWROS, HAWK | Owner ID: | 310166 |
| Mailing Address: | EMILY KYLE JTWROS 6175 WAHL RD FREELAND, WA 98249 | % Ownership: | 100.0000000000% |
| | | Exemptions: | |
Taxes and Assessment Details
Values
| (+) Improvement Homesite Value: | + | $0 | |
| (+) Improvement Non-Homesite Value: | + | $262,902 | |
| (+) Land Homesite Value: | + | $0 | |
| (+) Land Non-Homesite Value: | + | $370,000 | |
| (+) Curr Use (HS): | + | $0 | $0 |
| (+) Curr Use (NHS): | + | $0 | $0 |
| | | -------------------------- | |
| (=) Market Value: | = | $632,902 | |
| (–) Productivity Loss: | – | $0 | |
| | | -------------------------- | |
| (=) Subtotal: | = | $632,902 | |
| (+) Senior Appraised Value: | + | $0 | |
| (+) Non-Senior Appraised Value: | + | $632,902 | |
| | | -------------------------- | |
| (=) Total Appraised Value: | = | $632,902 | |
| (–) Senior Exemption Loss: | – | $0 | |
| (–) Exemption Loss: | – | $0 | |
| | | -------------------------- | |
| (=) Taxable Value: | = | $632,902 | |
Taxing Jurisdiction
| Owner: | MYCZACH JTWROS, HAWK | | |
| % Ownership: | 100.0000000000% | | |
| Total Value: | $632,902 | | |
| Tax Area: | 712 - APPRAISER-S Whid Schl Dist, outside Langley, improved, greater than 1 acre |
| CF | Conservation Futures | 0.0313996660 | $632,902 | $632,902 | $19.87 | | |
| FIRE3 | Fire & Rescue Dist #3 S Whidbey GEN | 1.2130821753 | $632,902 | $632,902 | $767.76 | | |
| HOBOND | Hospital BOND | 0.1893405597 | $632,902 | $632,902 | $119.83 | | |
| HOGEN | Hospital GEN | 0.3848777722 | $632,902 | $632,902 | $243.59 | | |
| CE | County Current Expense | 0.3674210519 | $632,902 | $632,902 | $232.54 | | |
| CR | County Roads | 0.4614296361 | $632,902 | $632,902 | $292.04 | | |
| ISLANDEMS | Hospital GEN (EMS) | 0.4952018576 | $632,902 | $632,902 | $313.41 | | |
| LIB | Library Sno-Isle GEN | 0.3039084203 | $632,902 | $632,902 | $192.34 | | |
| PORTWHID | Port of S Whidbey GEN | 0.1086004714 | $632,902 | $632,902 | $68.73 | | |
| SCH206BOND | School 206 BOND | 0.5960237832 | $632,902 | $632,902 | $377.22 | | |
| SCH206CAP | School 206 CP | 0.3066144020 | $632,902 | $632,902 | $194.06 | | |
| SCH206MO | School 206 Enrichment | 0.4808755445 | $632,902 | $632,902 | $304.35 | | |
| ST | State School | 1.4761226122 | $632,902 | $632,902 | $934.24 | | |
| ST2 | State School Part 2 | 0.7953803475 | $632,902 | $632,902 | $503.40 | | |
| SWHIDPRBD | P & R S Whidbey BOND | 0.0144185398 | $632,902 | $632,902 | $9.13 | | |
| SWHIDPRBD3 | P & R S Whidbey BOND3 | 0.1483535547 | $632,902 | $632,902 | $93.89 | | |
| SWHIDPRMT | P & R S Whidbey GEN | 0.4600000000 | $632,902 | $632,902 | $291.13 | | |
| | Total Tax Rate: | 7.8330503944 | | | | | |
| | | | | Taxes w/Current Exemptions: | $4,957.53 | | |
| | | | | Taxes w/o Exemptions: | $4,957.53 | | |
Improvement / Building
| Improvement #1: | RESIDENTIAL | State Code: | Y | 784.0 sqft | Value: | $86,784 |
| Bathrooms: | 1 | Bedrooms: | 2 | | Ceiling: | DRYWALL PAINTED | Exterior Wall/Cover: | WOOD SIDING | | Floor Covering: | SOFTWOOD/VINYL 80-20 | Floor Structure: | WOOD W/SUBFLOOR | | Foundation: | CONCRETE | Heating: | BASEBOARD ELECTRIC | | Interior Finish: | DRYWALL PAINT | Plumbing Fixture Cnt: | 6 | | Roof Slope: | FLAT | Roof Structure/Cover: | CJ BUILT-UP ROCK |
|
| | Type | Description | Class CD | Sub Class CD | Year Built | Area |
| | BAS | BASE/MAIN FLOOR | 2 | 0 | 1960 | 784.0 |
| | OWP | OPEN WOOD PORCH W/STEPS | 2 | 0 | 1960 | 212.0 |
| | oPOL | POLE BARN | 2 | 0 | 1960 | 864.0 |
| | OWR | OPEN WOOD PORCH W/STEPS/ROOF | 2 | 0 | 1960 | 32.0 |
| Improvement #2: | RESIDENTIAL | State Code: | Y | 1002.0 sqft | Value: | $176,118 |
| Bathrooms: | 1.5 | Bedrooms: | 2 | | Ceiling: | DRYWALL PAINTED | Exterior Wall/Cover: | PLY/HARDBOARD T-111 | | Floor Covering: | CARPET/VINYL 80-20 | Floor Structure: | WOOD W/SUBFLOOR | | Foundation: | CONCRETE | Heating: | WALL HEAT ELECTRIC | | Interior Finish: | DRYWALL PAINT | Plumbing Fixture Cnt: | 8 | | Roof Slope: | 4" IN 12" | Roof Structure/Cover: | CJ ASPHALT |
|
| | Type | Description | Class CD | Sub Class CD | Year Built | Area |
| | BAS | BASE/MAIN FLOOR | 3 | 0 | 1994 | 1002.0 |
| | OCP | OPEN CARPORT | 3 | 0 | 1994 | 234.0 |
| | UTY | STORAGE/UTILITY | 3 | 0 | 1994 | 117.0 |
| | OWR | OPEN WOOD PORCH W/STEPS/ROOF | 3 | 0 | 1994 | 111.5 |
| | ENP | ENCLOSED PORCH | 3 | 0 | 1994 | 193.8 |
| | oOBD | Out Buildings | 3 | 0 | 1994 | 0.0 |
Sketch
Property Image
Land
| 1 | 32 | AC (03.01-09.99) | 5.0000 | 0.00 | 0.00 | 0.00 | 1.00 | $370,000 | $0 |
Roll Value History
| 2026 | N/A | N/A | N/A | N/A | N/A |
| 2025 | $262,902 | $370,000 | $0 | $632,902 | $632,902 |
| 2024 | $268,538 | $350,000 | $0 | $618,538 | $618,538 |
| 2023 | $272,537 | $330,000 | $0 | $602,537 | $602,537 |
| 2022 | $251,984 | $280,000 | $0 | $531,984 | $531,984 |
| 2021 | $224,440 | $230,000 | $0 | $454,440 | $454,440 |
| 2020 | $219,303 | $205,000 | $0 | $424,303 | $424,303 |
| 2019 | $159,385 | $230,000 | $0 | $389,385 | $389,385 |
| 2018 | $159,910 | $210,000 | $0 | $369,910 | $369,910 |
| 2017 | $160,918 | $190,000 | $0 | $350,918 | $350,918 |
| 2016 | $163,021 | $150,000 | $0 | $313,021 | $313,021 |
| 2015 | $165,122 | $135,000 | $0 | $300,122 | $300,122 |
| 2014 | $167,222 | $135,000 | $0 | $302,222 | $302,222 |
| 2013 | $61,913 | $170,000 | $0 | $231,913 | $231,913 |
| 2012 | $62,729 | $170,000 | $0 | $232,729 | $232,729 |
| 2011 | $63,545 | $170,000 | $0 | $233,545 | $233,545 |
| 2010 | $70,644 | $170,000 | $0 | $240,644 | $240,644 |
| 2009 | $73,263 | $195,000 | $0 | $268,263 | $268,263 |
| 2008 | $74,768 | $200,000 | $0 | $274,768 | $274,768 |
| 2007 | $76,013 | $168,750 | $0 | $244,763 | $244,763 |
Deed and Sales History
| 1 | 09/25/2023 | QCD | Quit Claim Deed | MYCZACK, HAWK | MYCZACH JTWROS, HAWK | | | $0.00 | 58062 | 4565031 |
| 2 | 08/20/2021 | WD | Warranty Deed | GRISWOLD JTRWOS, WILLIAM LEE | MYCZACK, HAWK | | | $500,000.00 | 49732 | 4527419 |
| 3 | 10/27/2004 | 5 | DNU - Marriage License/Name Change | GRISWOLD, WILLIAM LEE | GRISWOLD JTRWOS, WILLIAM LEE | | | $0.00 | 45819 | 4120746 |
| 4 | 10/27/2004 | ESTSEPPROP | Establish Separate Property | GRISWOLD, WILLIAM LEE | GRISWOLD, WILLIAM LEE | | | $0.00 | 45339 | 4118066 |
| 5 | 03/04/2002 | QCD | Quit Claim Deed | GRISWOLD, WILLIAM L | GRISWOLD, WILLIAM LEE | | | $0.00 | 22406 | 4023696 |
| 6 | 04/07/2000 | WD | Warranty Deed | JENSEN, DENNIS C | GRISWOLD, WILLIAM L | | | $123,283.00 | 1294 | 20006408 |
| 7 | 10/01/1994 | OTHER | Other - Misc. Documents | JENSEN, DENNIS C | JENSEN, DENNIS C | | | $0.00 | 66084 | 0 |
| 8 | 07/01/1992 | WD | Warranty Deed | DAHLMAN, GARY E | JENSEN, DENNIS C | | | $90,000.00 | 22736 | 92013186 |
| 9 | 08/01/1985 | WD | Warranty Deed | DAHLMAN, C E | DAHLMAN, GARY E | | | $45,000.00 | 52223000 | 85008699 |
| 10 | 01/01/1900 | OTHER | Other - Misc. Documents | Unknown | DAHLMAN, C E | | | $0.00 | 0 | 0 |
Payout Agreement
| No payout information available.. |