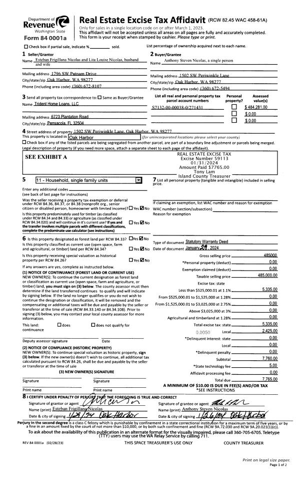
Property
Account |
| Property ID: | 564428 | Abbreviated Legal Description: | 122 SUM DC - BG ON SLN RIKSEN AVE 3268.44'S & 801. 21' W OF NW CR TAFT DC W64' S137' TO NLN PATTONS 1ST ADD E64' N137' TPB FR 457-4530 4/15/83 |
| Geographic ID: | R13202-457-2080 | Agent Code: | |
| Type: | Real | | |
| Tax Area: | 100 - APPRAISER-OH Schl Dist, in OH | Land Use Code | 11 |
| Open Space: | N | DFL | N |
| Historic Property: | N | Remodel Property: | N |
| Multi-Family Redevelopment: | N | | |
| Township: | 32 | Section: | 02 |
| Range: | R1 |
Location |
| Address: | 635 SE 4TH AVE OAK HARBOR, WA 98277 | Mapsco: | |
| Neighborhood: | Cycle 1 | Map ID: | 88 |
| Neighborhood CD: | 1 |
Owner |
| Name: | FRANSSEN, PETER J | Owner ID: | 41376 |
| Mailing Address: | KIMBERLY M FRANSSEN 477 RICHARD RD OAK HARBOR, WA 98277-9615 | % Ownership: | 100.0000000000% |
| | | Exemptions: | |
Taxes and Assessment Details
Values
| (+) Improvement Homesite Value: | + | $0 | |
| (+) Improvement Non-Homesite Value: | + | $195,731 | |
| (+) Land Homesite Value: | + | $0 | |
| (+) Land Non-Homesite Value: | + | $180,000 | |
| (+) Curr Use (HS): | + | $0 | $0 |
| (+) Curr Use (NHS): | + | $0 | $0 |
| | | -------------------------- | |
| (=) Market Value: | = | $375,731 | |
| (–) Productivity Loss: | – | $0 | |
| | | -------------------------- | |
| (=) Subtotal: | = | $375,731 | |
| (+) Senior Appraised Value: | + | $0 | |
| (+) Non-Senior Appraised Value: | + | $375,731 | |
| | | -------------------------- | |
| (=) Total Appraised Value: | = | $375,731 | |
| (–) Senior Exemption Loss: | – | $0 | |
| (–) Exemption Loss: | – | $0 | |
| | | -------------------------- | |
| (=) Taxable Value: | = | $375,731 | |
Taxing Jurisdiction
| Owner: | FRANSSEN, PETER J | | |
| % Ownership: | 100.0000000000% | | |
| Total Value: | $375,731 | | |
| Tax Area: | 100 - APPRAISER-OH Schl Dist, in OH |
| CF | Conservation Futures | 0.0313996660 | $375,731 | $375,731 | $11.80 | | |
| CEM1 | Cemetery #1 | 0.0040018856 | $375,731 | $375,731 | $1.50 | | |
| COH | City of Oak Harbor | 2.3090730572 | $375,731 | $375,731 | $867.59 | | |
| OAKBOND | City of Oak Harbor BOND | 0.1902260131 | $375,731 | $375,731 | $71.47 | | |
| HOBOND | Hospital BOND | 0.1893405597 | $375,731 | $375,731 | $71.14 | | |
| HOGEN | Hospital GEN | 0.3848777722 | $375,731 | $375,731 | $144.61 | | |
| CE | County Current Expense | 0.3674210519 | $375,731 | $375,731 | $138.05 | | |
| ISLANDEMS | Hospital GEN (EMS) | 0.4952018576 | $375,731 | $375,731 | $186.06 | | |
| LIB | Library Sno-Isle GEN | 0.3039084203 | $375,731 | $375,731 | $114.19 | | |
| NWHIDPRMT | P & R N Whidbey GEN | 0.1990272349 | $375,731 | $375,731 | $74.78 | | |
| SCH201MO | School 201 Enrichment | 2.3851112745 | $375,731 | $375,731 | $896.16 | | |
| ST | State School | 1.4761226122 | $375,731 | $375,731 | $554.63 | | |
| ST2 | State School Part 2 | 0.7953803475 | $375,731 | $375,731 | $298.85 | | |
| | Total Tax Rate: | 9.1310917527 | | | | | |
| | | | | Taxes w/Current Exemptions: | $3,430.83 | | |
| | | | | Taxes w/o Exemptions: | $3,430.83 | | |
Improvement / Building
| Improvement #1: | RESIDENTIAL | State Code: | Y | 1216.0 sqft | Value: | $195,731 |
| Bathrooms: | 2 | Bedrooms: | 3 | | Ceiling: | DRY WALL SPRAYED | Exterior Wall/Cover: | PLY/HARDBOARD T-111 | | Floor Covering: | CARPET/VINYL 80-20 | Floor Structure: | WOOD W/SUBFLOOR | | Foundation: | CONCRETE BLOCKS | Heating: | BASEBOARD ELECTRIC | | Interior Finish: | DRYWALL PAINT | Plumbing Fixture Cnt: | 9 | | Roof Slope: | 5" IN 12" | Roof Structure/Cover: | CJ ASPHALT |
|
| | Type | Description | Class CD | Sub Class CD | Year Built | Area |
| | BAS | BASE/MAIN FLOOR | 3 | 0 | 1964 | 1216.0 |
| | AGR | ATTACHED GARAGE | 3 | 0 | 1964 | 336.0 |
| | OP4 | OPEN PORCH W/CEILING-ROOF | 3 | 0 | 1964 | 24.0 |
Sketch
Property Image
Land
| 1 | 14 | SQ (08001-12000) | 0.2000 | 8712.00 | 0.00 | 0.00 | 1.00 | $180,000 | $0 |
Roll Value History
| 2026 | N/A | N/A | N/A | N/A | N/A |
| 2025 | $195,731 | $180,000 | $0 | $375,731 | $375,731 |
| 2024 | $202,564 | $170,000 | $0 | $372,564 | $372,564 |
| 2023 | $196,278 | $170,000 | $0 | $366,278 | $366,278 |
| 2022 | $180,197 | $160,000 | $0 | $340,197 | $340,197 |
| 2021 | $158,828 | $120,000 | $0 | $278,828 | $278,828 |
| 2020 | $154,674 | $100,000 | $0 | $254,674 | $254,674 |
| 2019 | $109,860 | $160,000 | $0 | $269,860 | $269,860 |
| 2018 | $110,220 | $125,000 | $0 | $235,220 | $235,220 |
| 2017 | $95,285 | $110,000 | $0 | $205,285 | $205,285 |
| 2016 | $96,685 | $90,000 | $0 | $186,685 | $186,685 |
| 2015 | $98,087 | $70,000 | $0 | $168,087 | $168,087 |
| 2014 | $99,488 | $55,000 | $0 | $154,488 | $154,488 |
| 2013 | $100,888 | $55,000 | $0 | $155,888 | $155,888 |
| 2012 | $102,291 | $60,000 | $0 | $162,291 | $162,291 |
| 2011 | $110,394 | $50,000 | $0 | $160,394 | $160,394 |
| 2010 | $117,781 | $50,000 | $0 | $167,781 | $167,781 |
| 2009 | $122,828 | $60,000 | $0 | $182,828 | $182,828 |
| 2008 | $122,903 | $72,000 | $0 | $194,903 | $194,903 |
| 2007 | $124,490 | $72,000 | $0 | $196,490 | $196,490 |
Deed and Sales History
| 1 | 08/27/2001 | WD | Warranty Deed | COOTER, ROBERT G | FRANSSEN, PETER J | | | $81,250.00 | 13594 | 20043047 |
| 2 | 03/01/1981 | WD | Warranty Deed | Unknown | COOTER, ROBERT G | | | $62,000.00 | 10925 | 381159 |
Payout Agreement
| No payout information available.. |