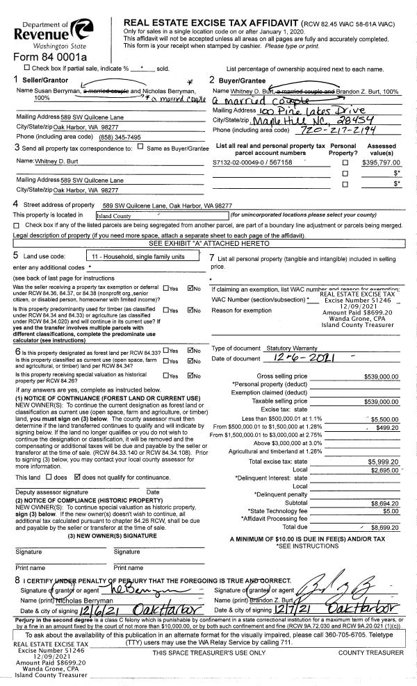
Property
Account |
| Property ID: | 567158 | Abbreviated Legal Description: | HIGHLANDS WEST #2 LOT 49 |
| Geographic ID: | S7132-02-00049-0 | Agent Code: | |
| Type: | Real | | |
| Tax Area: | 100 - APPRAISER-OH Schl Dist, in OH | Land Use Code | 11 |
| Open Space: | N | DFL | N |
| Historic Property: | N | Remodel Property: | N |
| Multi-Family Redevelopment: | N | | |
| Township: | | Section: | |
| Range: | |
Location |
| Address: | 589 SW QUILCENE LN OAK HARBOR, WA 98277 | Mapsco: | |
| Neighborhood: | Cycle 1 | Map ID: | 92 |
| Neighborhood CD: | 1 |
Owner |
| Name: | SAUCIER, DAVID JEFFERY | Owner ID: | 316433 |
| Mailing Address: | TAYLOR ANITA PITTARD 589 SW QUILCENE LN OAK HARBOR, WA 98277 | % Ownership: | 100.0000000000% |
| | | Exemptions: | |
Taxes and Assessment Details
Values
| (+) Improvement Homesite Value: | + | $0 | |
| (+) Improvement Non-Homesite Value: | + | $350,259 | |
| (+) Land Homesite Value: | + | $0 | |
| (+) Land Non-Homesite Value: | + | $210,000 | |
| (+) Curr Use (HS): | + | $0 | $0 |
| (+) Curr Use (NHS): | + | $0 | $0 |
| | | -------------------------- | |
| (=) Market Value: | = | $560,259 | |
| (–) Productivity Loss: | – | $0 | |
| | | -------------------------- | |
| (=) Subtotal: | = | $560,259 | |
| (+) Senior Appraised Value: | + | $0 | |
| (+) Non-Senior Appraised Value: | + | $560,259 | |
| | | -------------------------- | |
| (=) Total Appraised Value: | = | $560,259 | |
| (–) Senior Exemption Loss: | – | $0 | |
| (–) Exemption Loss: | – | $0 | |
| | | -------------------------- | |
| (=) Taxable Value: | = | $560,259 | |
Taxing Jurisdiction
| Owner: | SAUCIER, DAVID JEFFERY | | |
| % Ownership: | 100.0000000000% | | |
| Total Value: | $560,259 | | |
| Tax Area: | 100 - APPRAISER-OH Schl Dist, in OH |
| CF | Conservation Futures | 0.0313996660 | $560,259 | $560,259 | $17.59 | | |
| CEM1 | Cemetery #1 | 0.0040018856 | $560,259 | $560,259 | $2.24 | | |
| COH | City of Oak Harbor | 2.3090730572 | $560,259 | $560,259 | $1,293.68 | | |
| OAKBOND | City of Oak Harbor BOND | 0.1902260131 | $560,259 | $560,259 | $106.58 | | |
| HOBOND | Hospital BOND | 0.1893405597 | $560,259 | $560,259 | $106.08 | | |
| HOGEN | Hospital GEN | 0.3848777722 | $560,259 | $560,259 | $215.63 | | |
| CE | County Current Expense | 0.3674210519 | $560,259 | $560,259 | $205.85 | | |
| ISLANDEMS | Hospital GEN (EMS) | 0.4952018576 | $560,259 | $560,259 | $277.44 | | |
| LIB | Library Sno-Isle GEN | 0.3039084203 | $560,259 | $560,259 | $170.27 | | |
| NWHIDPRMT | P & R N Whidbey GEN | 0.1990272349 | $560,259 | $560,259 | $111.51 | | |
| SCH201MO | School 201 Enrichment | 2.3851112745 | $560,259 | $560,259 | $1,336.28 | | |
| ST | State School | 1.4761226122 | $560,259 | $560,259 | $827.01 | | |
| ST2 | State School Part 2 | 0.7953803475 | $560,259 | $560,259 | $445.62 | | |
| | Total Tax Rate: | 9.1310917527 | | | | | |
| | | | | Taxes w/Current Exemptions: | $5,115.78 | | |
| | | | | Taxes w/o Exemptions: | $5,115.78 | | |
Improvement / Building
| Improvement #1: | RESIDENTIAL | State Code: | Y | 2337.1 sqft | Value: | $350,259 |
| Bathrooms: | 2.75 | Bedrooms: | 4 | | Ceiling: | DRYWALL PAINTED | Exterior Wall/Cover: | WOOD SIDING | | Floor Covering: | CARPET/VINYL 60-40 | Floor Structure: | WOOD W/SUBFLOOR | | Foundation: | CONCRETE | Heating: | FHA GAS | | Interior Finish: | DRYWALL PAINT | Plumbing Fixture Cnt: | 12 | | Roof Slope: | 4" IN 12" | Roof Structure/Cover: | CJ ASPHALT |
|
| | Type | Description | Class CD | Sub Class CD | Year Built | Area |
| | BAS | BASE/MAIN FLOOR | 3 | 0 | 1984 | 1312.1 |
| | OP1 | OPEN PORCH SLAB | 3 | 0 | 1984 | 182.0 |
| | OP4 | OPEN PORCH W/CEILING-ROOF | 3 | 0 | 1984 | 96.0 |
| | AGR | ATTACHED GARAGE | 3 | 0 | 1984 | 483.0 |
| | UPS | UPPER STORY | 3 | 0 | 1984 | 1025.0 |
Sketch
| No sketches available for this property. |
Property Image
Land
| 1 | 14 | SQ (08001-12000) | 0.0000 | 0.00 | 0.00 | 0.00 | 1.00 | $210,000 | $0 |
Roll Value History
| 2026 | N/A | N/A | N/A | N/A | N/A |
| 2025 | $350,259 | $210,000 | $0 | $560,259 | $560,259 |
| 2024 | $354,570 | $190,000 | $0 | $544,570 | $544,570 |
| 2023 | $358,880 | $190,000 | $0 | $548,880 | $548,880 |
| 2022 | $328,886 | $180,000 | $0 | $508,886 | $508,886 |
| 2021 | $275,797 | $120,000 | $0 | $395,797 | $395,797 |
| 2020 | $269,058 | $100,000 | $0 | $369,058 | $369,058 |
| 2019 | $207,326 | $150,000 | $0 | $357,326 | $357,326 |
| 2018 | $207,949 | $130,000 | $0 | $337,949 | $337,949 |
| 2017 | $209,186 | $110,000 | $0 | $319,186 | $319,186 |
| 2016 | $211,676 | $90,000 | $0 | $301,676 | $301,676 |
| 2015 | $173,249 | $70,000 | $0 | $243,249 | $243,249 |
| 2014 | $175,590 | $55,000 | $0 | $230,590 | $230,590 |
| 2013 | $177,932 | $55,000 | $0 | $232,932 | $232,932 |
| 2012 | $180,272 | $68,000 | $0 | $248,272 | $248,272 |
| 2011 | $180,932 | $68,000 | $0 | $248,932 | $248,932 |
| 2010 | $188,750 | $68,000 | $0 | $256,750 | $256,750 |
| 2009 | $196,819 | $75,000 | $0 | $271,819 | $271,819 |
| 2008 | $199,274 | $100,000 | $0 | $299,274 | $299,274 |
| 2007 | $201,828 | $100,000 | $0 | $301,828 | $301,828 |
Deed and Sales History
| 1 | 05/12/2025 | WD | Warranty Deed | BURT, BRANDON Z | SAUCIER, DAVID JEFFERY | | | $598,000.00 | 63432 | 4585676 |
| 2 | 12/06/2021 | WD | Warranty Deed | BERRYMAN, NICHOLAS | BURT, BRANDON Z | | | $539,000.00 | 51246 | 4535512 |
| 3 | 04/06/2016 | WD | Warranty Deed | SHANNON, JAY MICHAEL | BERRYMAN, NICHOLAS | | | $326,900.00 | 23794 | 4397075 |
| 4 | 09/16/2004 | WD | Warranty Deed | FREEMAN, CURTIS E | SHANNON, JAY MICHAEL | | | $247,000.00 | 44325 | 4112940 |
| 5 | 03/29/2001 | WD | Warranty Deed | WOLFE, SCOTT M | FREEMAN, CURTIS E | | | $201,000.00 | 10982 | 20028280 |
| 6 | 07/10/1998 | WD | Warranty Deed | WOLFE, SCOTT M | WOLFE, SCOTT M | | | $171,000.00 | 82779 | 98014397 |
| 7 | 11/01/1992 | WD | Warranty Deed | SIMMS, DANIEL R | LAWLER, WILLIAM L | | | $144,000.00 | 24537 | 92022215 |
| 8 | 09/01/1987 | WD | Warranty Deed | ANDERSON, TERRY L | SIMMS, DANIEL R | | | $105,000.00 | 72863 | 87012769 |
| 9 | 05/01/1984 | WD | Warranty Deed | BWB, CONSTRUCTION C | ANDERSON, TERRY L | | | $96,000.00 | 41501 | 425166 |
| 10 | 06/01/1983 | REC | Real Estate Contract | KRAETZ, KINGMA & | BWB, CONSTRUCTION C | | | $19,500.00 | 31637 | 411019 |
| 11 | 01/01/1900 | OTHER | Other - Misc. Documents | Unknown | KRAETZ, KINGMA & | | | $0.00 | 0 | 0 |
Payout Agreement
| No payout information available.. |