Property
Account |
| Property ID: | 568139 | Abbreviated Legal Description: | REPLACES 192-2830 13-3 - BG NWCR GL5 N11*E495 .58' S84*E188.82' S73*E83 .25' S73*E226.79' S87*E486 .67' S87*E206.765' TPB S87*E206.765' S520.75' W205 .92' N529.35' TPB TGW SUB EZ TGW WATER SHARE (PT TR 13 BLK 3 RACE LAGOON HTS V4 SUR P84/5 AF#307607) |
| Geographic ID: | R23107-185-2830 | Agent Code: | |
| Type: | Real | | |
| Tax Area: | 312 - APPRAISER-Cpvl Schl Dist, outside Cpvl, improved, greater than 1 acre | Land Use Code | 11 |
| Open Space: | N | DFL | N |
| Historic Property: | N | Remodel Property: | N |
| Multi-Family Redevelopment: | N | | |
| Township: | 31 | Section: | 07 |
| Range: | R2 |
Location |
| Address: | 206 DENNEBOOM RD COUPEVILLE, WA 98239 | Mapsco: | |
| Neighborhood: | Cycle 2 | Map ID: | 462 |
| Neighborhood CD: | 2 |
Owner |
| Name: | VINSON, TRAVIS P | Owner ID: | 316088 |
| Mailing Address: | GENA COOPER 206 DENNEBHOOM RD COUPEVILLE, WA 98239 | % Ownership: | 100.0000000000% |
| | | Exemptions: | |
Taxes and Assessment Details
Values
| (+) Improvement Homesite Value: | + | $0 | |
| (+) Improvement Non-Homesite Value: | + | $439,482 | |
| (+) Land Homesite Value: | + | $0 | |
| (+) Land Non-Homesite Value: | + | $307,616 | |
| (+) Curr Use (HS): | + | $0 | $0 |
| (+) Curr Use (NHS): | + | $0 | $0 |
| | | -------------------------- | |
| (=) Market Value: | = | $747,098 | |
| (–) Productivity Loss: | – | $0 | |
| | | -------------------------- | |
| (=) Subtotal: | = | $747,098 | |
| (+) Senior Appraised Value: | + | $0 | |
| (+) Non-Senior Appraised Value: | + | $747,098 | |
| | | -------------------------- | |
| (=) Total Appraised Value: | = | $747,098 | |
| (–) Senior Exemption Loss: | – | $0 | |
| (–) Exemption Loss: | – | $0 | |
| | | -------------------------- | |
| (=) Taxable Value: | = | $747,098 | |
Taxing Jurisdiction
| Owner: | VINSON, TRAVIS P | | |
| % Ownership: | 100.0000000000% | | |
| Total Value: | $747,098 | | |
| Tax Area: | 312 - APPRAISER-Cpvl Schl Dist, outside Cpvl, improved, greater than 1 acre |
| CF | Conservation Futures | 0.0313996660 | $747,098 | $747,098 | $23.46 | | |
| CEM2 | Cemetery #2 | 0.0092609791 | $747,098 | $747,098 | $6.92 | | |
| FIRE5 | Fire & Rescue Dist #5 C Whidbey GEN | 1.1892169230 | $747,098 | $747,098 | $888.46 | | |
| FIRE5BOND | Fire & Rescue Dist #5 C Whidbey BOND | 0.1394359503 | $747,098 | $747,098 | $104.17 | | |
| HOBOND | Hospital BOND | 0.1893405597 | $747,098 | $747,098 | $141.46 | | |
| HOGEN | Hospital GEN | 0.3848777722 | $747,098 | $747,098 | $287.54 | | |
| CE | County Current Expense | 0.3674210519 | $747,098 | $747,098 | $274.50 | | |
| CR | County Roads | 0.4614296361 | $747,098 | $747,098 | $344.73 | | |
| ISLANDEMS | Hospital GEN (EMS) | 0.4952018576 | $747,098 | $747,098 | $369.96 | | |
| LIB | Library Sno-Isle GEN | 0.3039084203 | $747,098 | $747,098 | $227.05 | | |
| LIBCAP | Library Sno-Isle BOND (Cap Fac Imp Area) | 0.0528562629 | $747,098 | $747,098 | $39.49 | | |
| POCOUP | Port of Coupeville GEN | 0.1065226063 | $747,098 | $747,098 | $79.58 | | |
| POCOUPIDD | Port of Coupeville IDD | 0.3353038577 | $747,098 | $747,098 | $250.50 | | |
| COUPSDTECH | School 204 CP (TECH) | 0.1215123397 | $747,098 | $747,098 | $90.78 | | |
| SCH204MO | School 204 Enrichment | 0.6416662518 | $747,098 | $747,098 | $479.39 | | |
| ST | State School | 1.4761226122 | $747,098 | $747,098 | $1,102.81 | | |
| ST2 | State School Part 2 | 0.7953803475 | $747,098 | $747,098 | $594.23 | | |
| | Total Tax Rate: | 7.1008570943 | | | | | |
| | | | | Taxes w/Current Exemptions: | $5,305.03 | | |
| | | | | Taxes w/o Exemptions: | $5,305.03 | | |
Improvement / Building
| Improvement #1: | RESIDENTIAL | State Code: | Y | 2592.0 sqft | Value: | $439,482 |
| Bathrooms: | 2.5 | Bedrooms: | 3 | | Ceiling: | DRYWALL PAINTED | Exterior Wall/Cover: | PLY/HARDBOARD T-111 | | Floor Covering: | CARPET/VINYL 80-20 | Floor Structure: | WOOD W/SUBFLOOR | | Foundation: | CONCRETE | Heating: | FHA GAS | | Interior Finish: | DRYWALL PAINT | Plumbing Fixture Cnt: | 12 | | Roof Slope: | 5" IN 12" | Roof Structure/Cover: | CJ ASPHALT |
|
| | Type | Description | Class CD | Sub Class CD | Year Built | Area |
| | BAS | BASE/MAIN FLOOR | 4 | 0 | 1995 | 1824.0 |
| | BIG | BUILT IN GARAGE | 4 | 0 | 1995 | 640.0 |
| | OWP | OPEN WOOD PORCH W/STEPS | 4 | 0 | 1995 | 252.0 |
| | OWC | OPEN WOOD PORCH W/STEPS/ROOF/C | 4 | 0 | 1995 | 224.0 |
| | DWN | DOWNSTAIRS LIVING AREA | 4 | 0 | 1995 | 768.0 |
Sketch
Property Image
Land
| 1 | HS | HOMESITE | 1.0000 | 43560.00 | 0.00 | 0.00 | 1.00 | $220,000 | $0 |
| 2 | 91 | UNDEVELOPED LAND-METES AND BOUNDS | 1.4800 | 64468.80 | 0.00 | 0.00 | 1.00 | $87,616 | $0 |
Roll Value History
| 2026 | N/A | N/A | N/A | N/A | N/A |
| 2025 | $439,482 | $307,616 | $0 | $747,098 | $747,098 |
| 2024 | $428,796 | $280,000 | $0 | $708,796 | $708,796 |
| 2023 | $434,139 | $270,000 | $0 | $704,139 | $704,139 |
| 2022 | $397,961 | $250,000 | $0 | $647,961 | $647,961 |
| 2021 | $350,251 | $150,000 | $0 | $500,251 | $500,251 |
| 2020 | $341,600 | $150,000 | $0 | $491,600 | $491,600 |
| 2019 | $256,723 | $180,000 | $0 | $436,723 | $436,723 |
| 2018 | $247,696 | $160,000 | $0 | $407,696 | $407,696 |
| 2017 | $249,247 | $130,000 | $0 | $379,247 | $379,247 |
| 2016 | $252,344 | $125,000 | $0 | $377,344 | $377,344 |
| 2015 | $255,444 | $90,000 | $0 | $345,444 | $345,444 |
| 2014 | $258,543 | $100,000 | $0 | $358,543 | $358,543 |
| 2013 | $261,642 | $100,000 | $0 | $361,642 | $361,642 |
| 2012 | $249,119 | $100,000 | $0 | $349,119 | $349,119 |
| 2011 | $252,031 | $100,000 | $0 | $352,031 | $352,031 |
| 2010 | $261,497 | $100,000 | $0 | $361,497 | $361,497 |
| 2009 | $273,151 | $125,000 | $0 | $398,151 | $398,151 |
| 2008 | $276,925 | $125,000 | $0 | $401,925 | $401,925 |
| 2007 | $280,699 | $125,000 | $0 | $405,699 | $405,699 |
Deed and Sales History
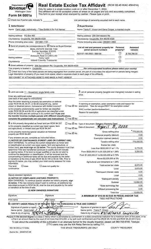
| 1 | 04/08/2025 | WD | Warranty Deed | LEIGH, CAROL | VINSON, TRAVIS P | | | $775,000.00 | 63095 | 4584364 |
| 2 | 04/08/2025 | LACPROBATE | Lack of Probate | SMITH II, CHARLES C | LEIGH, CAROL | | | $0.00 | 63094 | 4584363 |
| 3 | 04/15/2015 | WD | Warranty Deed | LOUDEN, PAUL E | SMITH II, CHARLES C | | | $360,000.00 | 19226 | 4376941 |
| 4 | 07/10/2007 | DECREE | Divorce Decree/Legal Separation | LOUDEN, PAUL E | LOUDEN, PAUL E | | | $0.00 | 72311 | 4206673 |
| 5 | 05/20/2002 | WD | Warranty Deed | MILES, JEAN | LOUDEN, PAUL E | | | $280,000.00 | 21904 | 4020504 |
| 6 | 08/01/1994 | WD | Warranty Deed | SMITH, DANIEL J | MILES, JEAN | | | $29,000.00 | 43161 | 94017012 |
| 7 | 07/01/1983 | OTHER | Other - Misc. Documents | SMITH, DANIEL J | SMITH, DANIEL J | | | $0.00 | 60125 | 0 |
| 8 | 07/01/1979 | EXECUTORD | Executor Deed | ROCKWELL, JAMES N | SMITH, DANIEL J | | | $13,500.00 | 93546 | 355875 |
| 9 | 02/01/1978 | EXECUTORD | Executor Deed | COFFEY, WILLIAM J | ROCKWELL, JAMES N | | | $0.00 | 81274 | 0 |
| 10 | 03/01/1977 | EXECUTORD | Executor Deed | KELLEMS, TILLIE E | COFFEY, WILLIAM J | | | $0.00 | 70837 | 0 |
| 11 | 01/01/1900 | OTHER | Other - Misc. Documents | Unknown | KELLEMS, TILLIE E | | | $0.00 | 0 | 0 |
Payout Agreement
| No payout information available.. |