Property
Account |
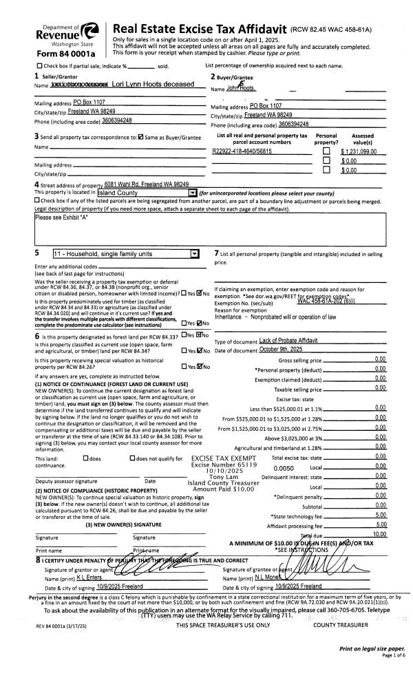
| Property ID: | 56815 | Abbreviated Legal Description: | 175 - S170.4' OF N1147.7' OF NE NE EX N108' OF W210' EX CO RD |
| Geographic ID: | R22922-418-4640 | Agent Code: | |
| Type: | Real | | |
| Tax Area: | 712 - APPRAISER-S Whid Schl Dist, outside Langley, improved, greater than 1 acre | Land Use Code | 11 |
| Open Space: | N | DFL | N |
| Historic Property: | N | Remodel Property: | N |
| Multi-Family Redevelopment: | N | | |
| Township: | 29 | Section: | 22 |
| Range: | R2 |
Location |
| Address: | 6081 WAHL RD FREELAND, WA 98249 | Mapsco: | |
| Neighborhood: | Cycle 3 | Map ID: | 337 |
| Neighborhood CD: | 3 |
Owner |
| Name: | HOOTS, JOHN E | Owner ID: | 272639 |
| Mailing Address: | LORI L HOOTS PO BOX 1107 FREELAND, WA 98249 | % Ownership: | 100.0000000000% |
| | | Exemptions: | |
Taxes and Assessment Details
Values
| (+) Improvement Homesite Value: | + | $0 | |
| (+) Improvement Non-Homesite Value: | + | $821,099 | |
| (+) Land Homesite Value: | + | $0 | |
| (+) Land Non-Homesite Value: | + | $410,000 | |
| (+) Curr Use (HS): | + | $0 | $0 |
| (+) Curr Use (NHS): | + | $0 | $0 |
| | | -------------------------- | |
| (=) Market Value: | = | $1,231,099 | |
| (–) Productivity Loss: | – | $0 | |
| | | -------------------------- | |
| (=) Subtotal: | = | $1,231,099 | |
| (+) Senior Appraised Value: | + | $0 | |
| (+) Non-Senior Appraised Value: | + | $1,231,099 | |
| | | -------------------------- | |
| (=) Total Appraised Value: | = | $1,231,099 | |
| (–) Senior Exemption Loss: | – | $0 | |
| (–) Exemption Loss: | – | $0 | |
| | | -------------------------- | |
| (=) Taxable Value: | = | $1,231,099 | |
Taxing Jurisdiction
| Owner: | HOOTS, JOHN E | | |
| % Ownership: | 100.0000000000% | | |
| Total Value: | $1,231,099 | | |
| Tax Area: | 712 - APPRAISER-S Whid Schl Dist, outside Langley, improved, greater than 1 acre |
| CF | Conservation Futures | 0.0313996660 | $1,231,099 | $1,231,099 | $38.66 | | |
| FIRE3 | Fire & Rescue Dist #3 S Whidbey GEN | 1.2130821753 | $1,231,099 | $1,231,099 | $1,493.42 | | |
| HOBOND | Hospital BOND | 0.1893405597 | $1,231,099 | $1,231,099 | $233.10 | | |
| HOGEN | Hospital GEN | 0.3848777722 | $1,231,099 | $1,231,099 | $473.82 | | |
| CE | County Current Expense | 0.3674210519 | $1,231,099 | $1,231,099 | $452.33 | | |
| CR | County Roads | 0.4614296361 | $1,231,099 | $1,231,099 | $568.07 | | |
| ISLANDEMS | Hospital GEN (EMS) | 0.4952018576 | $1,231,099 | $1,231,099 | $609.64 | | |
| LIB | Library Sno-Isle GEN | 0.3039084203 | $1,231,099 | $1,231,099 | $374.14 | | |
| PORTWHID | Port of S Whidbey GEN | 0.1086004714 | $1,231,099 | $1,231,099 | $133.70 | | |
| SCH206BOND | School 206 BOND | 0.5960237832 | $1,231,099 | $1,231,099 | $733.76 | | |
| SCH206CAP | School 206 CP | 0.3066144020 | $1,231,099 | $1,231,099 | $377.47 | | |
| SCH206MO | School 206 Enrichment | 0.4808755445 | $1,231,099 | $1,231,099 | $592.01 | | |
| ST | State School | 1.4761226122 | $1,231,099 | $1,231,099 | $1,817.25 | | |
| ST2 | State School Part 2 | 0.7953803475 | $1,231,099 | $1,231,099 | $979.19 | | |
| SWHIDPRBD | P & R S Whidbey BOND | 0.0144185398 | $1,231,099 | $1,231,099 | $17.75 | | |
| SWHIDPRBD3 | P & R S Whidbey BOND3 | 0.1483535547 | $1,231,099 | $1,231,099 | $182.64 | | |
| SWHIDPRMT | P & R S Whidbey GEN | 0.4600000000 | $1,231,099 | $1,231,099 | $566.31 | | |
| | Total Tax Rate: | 7.8330503944 | | | | | |
| | | | | Taxes w/Current Exemptions: | $9,643.26 | | |
| | | | | Taxes w/o Exemptions: | $9,643.26 | | |
Improvement / Building
| Improvement #1: | RESIDENTIAL | State Code: | Y | 4259.1 sqft | Value: | $821,099 |
| Bathrooms: | 2.5 | Bedrooms: | 3 | | Ceiling: | DRYWALL PAINTED | Exterior Wall/Cover: | SHINGLE | | Floor Covering: | HARDWOOD/CARP 80-20 | Floor Structure: | WOOD W/SUBFLOOR | | Foundation: | CONCRETE | Heating: | FHA GAS | | Interior Finish: | DRYWALL PAINT | Plumbing Fixture Cnt: | 12 | | Roof Slope: | 6" IN 12" | Roof Structure/Cover: | CJ ALUMINIUM HEAVY |
|
| | Type | Description | Class CD | Sub Class CD | Year Built | Area |
| | BAS | BASE/MAIN FLOOR | 4 | 0 | 2008 | 1973.8 |
| | DWN | DOWNSTAIRS LIVING AREA | 4 | 0 | 2008 | 1075.1 |
| | AGR | ATTACHED GARAGE | 4 | 0 | 2008 | 870.0 |
| | UTY | STORAGE/UTILITY | 4 | 0 | 2008 | 822.9 |
| | OWP | OPEN WOOD PORCH W/STEPS | 4 | 0 | 2008 | 225.3 |
| | OWP | OPEN WOOD PORCH W/STEPS | 4 | 0 | 2008 | 99.6 |
| | OWC | OPEN WOOD PORCH W/STEPS/ROOF/C | 4 | 0 | 2008 | 303.5 |
| | OP4 | OPEN PORCH W/CEILING-ROOF | 4 | 0 | 2008 | 159.8 |
| | BAS | BASE/MAIN FLOOR | 4 | 0 | 2008 | 948.8 |
| | BIG | BUILT IN GARAGE | 4 | 0 | 2008 | 687.5 |
| | DWN | DOWNSTAIRS LIVING AREA | 4 | 0 | 2008 | 261.4 |
| | OP1 | OPEN PORCH SLAB | 4 | 0 | 2008 | 36.0 |
| | OP1 | OPEN PORCH SLAB | 4 | 0 | 2008 | 36.0 |
Sketch
Property Image
Land
| 1 | 32 | AC (03.01-09.99) | 4.6000 | 0.00 | 0.00 | 0.00 | 1.00 | $410,000 | $0 |
Roll Value History
| 2026 | N/A | N/A | N/A | N/A | N/A |
| 2025 | $821,099 | $410,000 | $0 | $1,231,099 | $1,231,099 |
| 2024 | $827,999 | $390,000 | $0 | $1,217,999 | $1,217,999 |
| 2023 | $835,360 | $350,000 | $0 | $1,185,360 | $1,185,360 |
| 2022 | $762,278 | $350,000 | $0 | $1,112,278 | $1,112,278 |
| 2021 | $668,278 | $300,000 | $0 | $968,278 | $968,278 |
| 2020 | $651,383 | $275,000 | $0 | $926,383 | $926,383 |
| 2019 | $534,826 | $300,000 | $0 | $834,826 | $834,826 |
| 2018 | $536,457 | $250,000 | $0 | $786,457 | $786,457 |
| 2017 | $539,169 | $220,000 | $0 | $759,169 | $759,169 |
| 2016 | $545,028 | $200,000 | $0 | $745,028 | $745,028 |
| 2015 | $550,892 | $200,000 | $0 | $750,892 | $750,892 |
| 2014 | $556,754 | $200,000 | $0 | $756,754 | $756,754 |
| 2013 | $562,140 | $207,000 | $0 | $769,140 | $769,140 |
| 2012 | $568,141 | $207,000 | $0 | $775,141 | $775,141 |
| 2011 | $574,140 | $207,000 | $0 | $781,140 | $781,140 |
| 2010 | $596,696 | $207,000 | $0 | $803,696 | $803,696 |
| 2009 | $621,464 | $230,000 | $0 | $851,464 | $851,464 |
| 2008 | $377,405 | $230,000 | $0 | $607,405 | $607,405 |
| 2007 | $241,170 | $155,250 | $0 | $396,420 | $396,420 |
Deed and Sales History
| 1 | 10/09/2025 | WD | Warranty Deed | HOOTS, JOHN E | KATZ, DAVID | | | $1,440,000.00 | 65120 | 4592060 |
| 2 | 10/09/2025 | LACPROBATE | Lack of Probate | HOOTS, LORI LYNN | HOOTS, JOHN E | | | $0.00 | 65119 | 4592059 |
| 3 | 10/28/2015 | WD | Warranty Deed | THOMPSON, MARK | HOOTS, JOHN E | | | $746,500.00 | 21993 | 4388729 |
| 4 | 09/14/2001 | WD | Warranty Deed | Unknown | THOMPSON, MARK | | | $52,000.00 | 13810 | 20044474 |
Payout Agreement
| No payout information available.. |