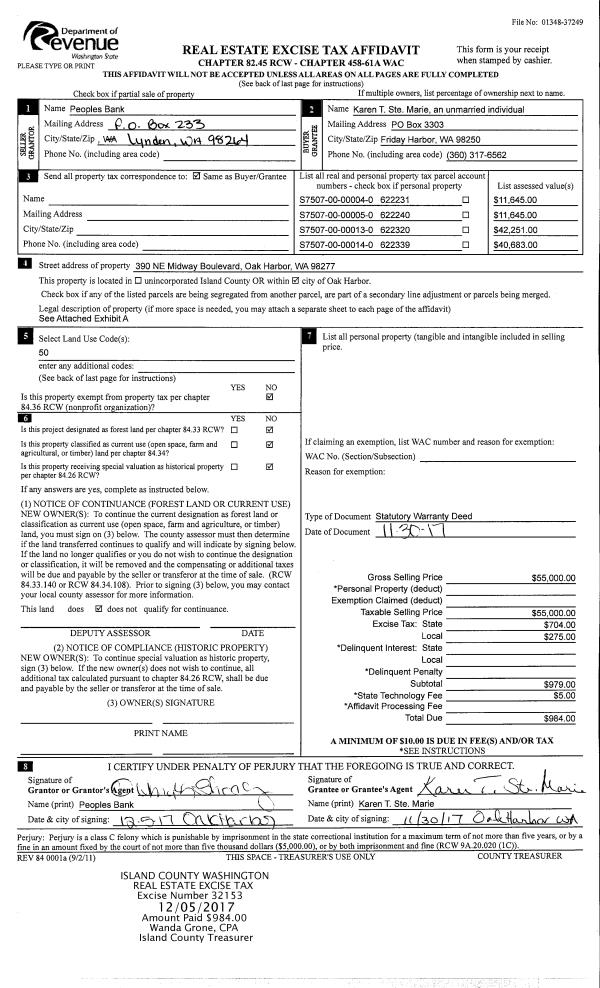
Property
Account |
| Property ID: | 569502 | Abbreviated Legal Description: | 1981 SHERWOOD MANOR 24X56 VIN# AB7SC12000R TPO %02930 FROM K-528147 |
| Geographic ID: | M91100000022-1 | Agent Code: | |
| Type: | Mobile Home | | |
| Tax Area: | 100 - APPRAISER-OH Schl Dist, in OH | Land Use Code | 11 |
| Open Space: | N | DFL | N |
| Historic Property: | N | Remodel Property: | N |
| Multi-Family Redevelopment: | N | | |
| Township: | | Section: | |
| Range: | |
Location |
| Address: | 700 NW CROSBY AVE # 22 OAK HARBOR, WA 98277 | Mapsco: | |
| Neighborhood: | Cycle 1 | Map ID: | |
| Neighborhood CD: | 1 |
Owner |
| Name: | SOLANO-LUNA, ROMULO | Owner ID: | 276288 |
| Mailing Address: | CORY DEGUZMAN 700 NW CROSBY AVE #22 OAK HARBOR, WA 98277 | % Ownership: | 100.0000000000% |
| | | Exemptions: | |
Taxes and Assessment Details
Values
| (+) Improvement Homesite Value: | + | $0 | |
| (+) Improvement Non-Homesite Value: | + | $45,697 | |
| (+) Land Homesite Value: | + | $0 | |
| (+) Land Non-Homesite Value: | + | $0 | |
| (+) Curr Use (HS): | + | $0 | $0 |
| (+) Curr Use (NHS): | + | $0 | $0 |
| | | -------------------------- | |
| (=) Market Value: | = | $45,697 | |
| (–) Productivity Loss: | – | $0 | |
| | | -------------------------- | |
| (=) Subtotal: | = | $45,697 | |
| (+) Senior Appraised Value: | + | $0 | |
| (+) Non-Senior Appraised Value: | + | $45,697 | |
| | | -------------------------- | |
| (=) Total Appraised Value: | = | $45,697 | |
| (–) Senior Exemption Loss: | – | $0 | |
| (–) Exemption Loss: | – | $0 | |
| | | -------------------------- | |
| (=) Taxable Value: | = | $45,697 | |
Taxing Jurisdiction
| Owner: | SOLANO-LUNA, ROMULO | | |
| % Ownership: | 100.0000000000% | | |
| Total Value: | $45,697 | | |
| Tax Area: | 100 - APPRAISER-OH Schl Dist, in OH |
| CF | Conservation Futures | 0.0313996660 | $45,697 | $45,697 | $1.43 | | |
| CEM1 | Cemetery #1 | 0.0040018856 | $45,697 | $45,697 | $0.18 | | |
| COH | City of Oak Harbor | 2.3090730572 | $45,697 | $45,697 | $105.52 | | |
| OAKBOND | City of Oak Harbor BOND | 0.1902260131 | $45,697 | $45,697 | $8.69 | | |
| HOBOND | Hospital BOND | 0.1893405597 | $45,697 | $45,697 | $8.65 | | |
| HOGEN | Hospital GEN | 0.3848777722 | $45,697 | $45,697 | $17.59 | | |
| CE | County Current Expense | 0.3674210519 | $45,697 | $45,697 | $16.79 | | |
| ISLANDEMS | Hospital GEN (EMS) | 0.4952018576 | $45,697 | $45,697 | $22.63 | | |
| LIB | Library Sno-Isle GEN | 0.3039084203 | $45,697 | $45,697 | $13.89 | | |
| NWHIDPRMT | P & R N Whidbey GEN | 0.1990272349 | $45,697 | $45,697 | $9.09 | | |
| SCH201MO | School 201 Enrichment | 2.3851112745 | $45,697 | $45,697 | $108.99 | | |
| ST | State School | 1.4761226122 | $45,697 | $45,697 | $67.45 | | |
| ST2 | State School Part 2 | 0.7953803475 | $45,697 | $45,697 | $36.35 | | |
| | Total Tax Rate: | 9.1310917527 | | | | | |
| | | | | Taxes w/Current Exemptions: | $417.25 | | |
| | | | | Taxes w/o Exemptions: | $417.25 | | |
Improvement / Building
| Improvement #1: | MANUFACTURED HOME | State Code: | Y | 1440.0 sqft | Value: | $45,697 |
| Bathrooms: | 0 | Bedrooms: | 0 | | Ceiling: | PLASTER PAINTED | Cooling: | EVAP NO DUCT | | Exterior Wall/Cover: | VINYL | Floor Covering: | CARPET 100% | | Floor Structure: | SLAB ON GRADE | Foundation: | SLAB | | Heating: | FHA ELECTRIC | Interior Finish: | PLASTER | | Roof Slope: | FLAT | Roof Structure/Cover: | CJ ALUMINIUM HEAVY |
|
Sketch
Property Image
Land
No land segments exist for this property.
Roll Value History
| 2026 | N/A | N/A | N/A | N/A | N/A |
| 2025 | $45,697 | $0 | $0 | $45,697 | $45,697 |
| 2024 | $47,220 | $0 | $0 | $47,220 | $47,220 |
| 2023 | $32,370 | $0 | $0 | $32,370 | $32,370 |
| 2022 | $31,203 | $0 | $0 | $31,203 | $31,203 |
| 2021 | $28,776 | $0 | $0 | $28,776 | $28,776 |
| 2020 | $30,321 | $0 | $0 | $30,321 | $30,321 |
| 2019 | $25,161 | $0 | $0 | $25,161 | $25,161 |
| 2018 | $26,419 | $0 | $0 | $26,419 | $26,419 |
| 2017 | $20,889 | $0 | $0 | $20,889 | $20,889 |
| 2016 | $22,679 | $0 | $0 | $22,679 | $22,679 |
| 2015 | $23,873 | $0 | $0 | $23,873 | $23,873 |
| 2014 | $25,066 | $0 | $0 | $25,066 | $25,066 |
| 2013 | $26,260 | $0 | $0 | $26,260 | $26,260 |
| 2012 | $27,454 | $0 | $0 | $27,454 | $27,454 |
| 2011 | $29,856 | $0 | $0 | $29,856 | $29,856 |
| 2010 | $29,856 | $0 | $0 | $29,856 | $29,856 |
| 2009 | $38,336 | $0 | $0 | $38,336 | $38,336 |
| 2008 | $38,954 | $0 | $0 | $38,954 | $38,954 |
| 2007 | $40,171 | $0 | $0 | $40,171 | $40,171 |
Deed and Sales History
| 1 | 07/11/2016 | MANHOME | Manufactured Home | STADLER, DAMON J | SOLANO-LUNA, ROMULO | | | $20,000.00 | 25520 | |
| 2 | 04/12/1999 | OTHER | Other - Misc. Documents | REJMAN, JAMES A | STADLER, DAMON J | | | $29,900.00 | 91349 | 0 |
| 3 | 09/01/1997 | OTHER | Other - Misc. Documents | GLODOWSKI, LORRAINE F | REJMAN, JAMES A | | | $36,000.00 | 73308 | 0 |
| 4 | 01/01/1981 | OTHER | Other - Misc. Documents | Unknown | GLODOWSKI, LORRAINE F | | | $39,500.00 | 0 | 0 |
Payout Agreement
| No payout information available.. |