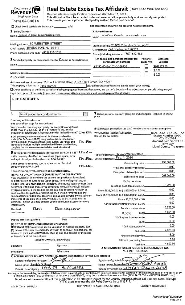
Property
Account |
| Property ID: | 569735 | Abbreviated Legal Description: | WOODSIDE CONDOS UNIT A102 3.13% INT |
| Geographic ID: | S8490-00-0A102-0 | Agent Code: | |
| Type: | Real | | |
| Tax Area: | 100 - APPRAISER-OH Schl Dist, in OH | Land Use Code | 14 |
| Open Space: | N | DFL | N |
| Historic Property: | N | Remodel Property: | N |
| Multi-Family Redevelopment: | N | | |
| Township: | | Section: | |
| Range: | |
Location |
| Address: | 75 NW COLUMBIA DR BLDG 75A, UNIT A102 OAK HARBOR, WA 98277 | Mapsco: | |
| Neighborhood: | 4B*OH-woodside | Map ID: | 253 |
| Neighborhood CD: | 4B*OHwdsde |
Owner |
| Name: | GONZALES, JULIO CESAR | Owner ID: | 311420 |
| Mailing Address: | 75 NW COLUMBIA DR, A102 OAK HARBOR, WA 98277 | % Ownership: | 100.0000000000% |
| | | Exemptions: | |
Taxes and Assessment Details
Values
| (+) Improvement Homesite Value: | + | $0 | |
| (+) Improvement Non-Homesite Value: | + | $169,750 | |
| (+) Land Homesite Value: | + | $0 | |
| (+) Land Non-Homesite Value: | + | $100,000 | |
| (+) Curr Use (HS): | + | $0 | $0 |
| (+) Curr Use (NHS): | + | $0 | $0 |
| | | -------------------------- | |
| (=) Market Value: | = | $269,750 | |
| (–) Productivity Loss: | – | $0 | |
| | | -------------------------- | |
| (=) Subtotal: | = | $269,750 | |
| (+) Senior Appraised Value: | + | $0 | |
| (+) Non-Senior Appraised Value: | + | $269,750 | |
| | | -------------------------- | |
| (=) Total Appraised Value: | = | $269,750 | |
| (–) Senior Exemption Loss: | – | $0 | |
| (–) Exemption Loss: | – | $0 | |
| | | -------------------------- | |
| (=) Taxable Value: | = | $269,750 | |
Taxing Jurisdiction
| Owner: | GONZALES, JULIO CESAR | | |
| % Ownership: | 100.0000000000% | | |
| Total Value: | $269,750 | | |
| Tax Area: | 100 - APPRAISER-OH Schl Dist, in OH |
| CF | Conservation Futures | 0.0313996660 | $269,750 | $269,750 | $8.47 | | |
| CEM1 | Cemetery #1 | 0.0040018856 | $269,750 | $269,750 | $1.08 | | |
| COH | City of Oak Harbor | 2.3090730572 | $269,750 | $269,750 | $622.87 | | |
| OAKBOND | City of Oak Harbor BOND | 0.1902260131 | $269,750 | $269,750 | $51.31 | | |
| HOBOND | Hospital BOND | 0.1893405597 | $269,750 | $269,750 | $51.07 | | |
| HOGEN | Hospital GEN | 0.3848777722 | $269,750 | $269,750 | $103.82 | | |
| CE | County Current Expense | 0.3674210519 | $269,750 | $269,750 | $99.11 | | |
| ISLANDEMS | Hospital GEN (EMS) | 0.4952018576 | $269,750 | $269,750 | $133.58 | | |
| LIB | Library Sno-Isle GEN | 0.3039084203 | $269,750 | $269,750 | $81.98 | | |
| NWHIDPRMT | P & R N Whidbey GEN | 0.1990272349 | $269,750 | $269,750 | $53.69 | | |
| SCH201MO | School 201 Enrichment | 2.3851112745 | $269,750 | $269,750 | $643.38 | | |
| ST | State School | 1.4761226122 | $269,750 | $269,750 | $398.18 | | |
| ST2 | State School Part 2 | 0.7953803475 | $269,750 | $269,750 | $214.55 | | |
| | Total Tax Rate: | 9.1310917527 | | | | | |
| | | | | Taxes w/Current Exemptions: | $2,463.09 | | |
| | | | | Taxes w/o Exemptions: | $2,463.09 | | |
Improvement / Building
| Improvement #1: | RESIDENTIAL | State Code: | A1 | 985.8 sqft | Value: | $169,750 |
| Bathrooms: | 2 | Bedrooms: | 2 | | Ceiling: | DRY WALL SPRAYED | Exterior Wall/Cover: | PLY/HARDBOARD T-111 | | Floor Covering: | CARPET/VINYL 80-20 | Floor Structure: | WOOD W/SUBFLOOR | | Foundation: | CONCRETE | Heating: | BASEBOARD ELECTRIC | | Interior Finish: | DRYWALL PAINT | Plumbing Fixture Cnt: | 9 | | Roof Slope: | 4" IN 12" | Roof Structure/Cover: | CJ ASPHALT |
|
| | Type | Description | Class CD | Sub Class CD | Year Built | Area |
| | BAS | BASE/MAIN FLOOR | 3 | 0 | 1983 | 985.8 |
| | OP1 | OPEN PORCH SLAB | 3 | 0 | 1983 | 60.0 |
| | UTY | STORAGE/UTILITY | 3 | 0 | 1983 | 17.5 |
| | ENP | ENCLOSED PORCH | 3 | 0 | 1983 | 52.5 |
| | DGR | DETACHED GARAGE | 3 | 0 | 1983 | 231.0 |
| | COMA | Common Area Improvement | 3 | 0 | 1983 | 0.0 |
Sketch
Property Image
Land
| 1 | 61 | MULTIPLE RESIDENCES | 0.0000 | 2694.00 | 0.00 | 0.00 | 1.00 | $100,000 | $0 |
Roll Value History
| 2026 | N/A | N/A | N/A | N/A | N/A |
| 2025 | $169,750 | $100,000 | $0 | $269,750 | $269,750 |
| 2024 | $175,428 | $85,000 | $0 | $260,428 | $260,428 |
| 2023 | $177,723 | $85,000 | $0 | $262,723 | $262,723 |
| 2022 | $163,054 | $70,000 | $0 | $233,054 | $233,054 |
| 2021 | $143,645 | $65,000 | $0 | $208,645 | $208,645 |
| 2020 | $113,807 | $75,000 | $0 | $188,807 | $188,807 |
| 2019 | $79,178 | $70,000 | $0 | $149,178 | $149,178 |
| 2018 | $79,476 | $65,000 | $0 | $144,476 | $144,476 |
| 2017 | $80,014 | $21,067 | $0 | $101,081 | $101,081 |
| 2016 | $81,208 | $21,067 | $0 | $102,275 | $102,275 |
| 2015 | $82,403 | $21,067 | $0 | $103,470 | $103,470 |
| 2014 | $83,806 | $21,067 | $0 | $104,873 | $104,873 |
| 2013 | $84,946 | $21,067 | $0 | $106,013 | $106,013 |
| 2012 | $87,223 | $21,067 | $0 | $108,290 | $108,290 |
| 2011 | $87,223 | $21,067 | $0 | $108,290 | $108,290 |
| 2010 | $77,749 | $17,942 | $0 | $95,691 | $95,691 |
| 2009 | $97,273 | $21,363 | $0 | $118,636 | $118,636 |
| 2008 | $94,534 | $48,492 | $0 | $143,026 | $143,026 |
| 2007 | $94,534 | $48,492 | $0 | $143,026 | $143,026 |
Deed and Sales History
| 1 | 02/01/2024 | WD | Warranty Deed | REED, SEMIAH D | GONZALES, JULIO CESAR | | | $293,000.00 | 59201 | 4569377 |
| 2 | 07/11/2019 | WD | Warranty Deed | BOBBITT, DENNIS L | REED, SEMIAH D | | | $183,000.00 | 39433 | 4467354 |
| 3 | 08/05/2005 | WD | Warranty Deed | SOUTHARD, JESE D | BOBBITT, DENNIS L | | | $133,000.00 | 53848 | 4143406 |
| 4 | 07/23/2003 | WD | Warranty Deed | CHURCHILL, GEORGE B | SOUTHARD, JESE D | | | $87,500.00 | 33223 | 4068522 |
| 5 | 08/01/1990 | WD | Warranty Deed | WHITE, LESLIE F | CHURCHILL, GEORGE B | | | $0.00 | 5192 | 90017254 |
| 6 | 03/01/1987 | QCD | Quit Claim Deed | WHITE, LESLIE F | WHITE, LESLIE F | | | $0.00 | 70679 | 87003664 |
| 7 | 11/01/1983 | WD | Warranty Deed | ALPHA, GROUP, I | WHITE, LESLIE F | | | $51,500.00 | 33493 | 418055 |
| 8 | 12/01/1982 | F | Deed In Fulfillment Of Contract | Unknown | ALPHA, GROUP, I | | | $62,200.00 | 23137 | 404208 |
Payout Agreement
| No payout information available.. |