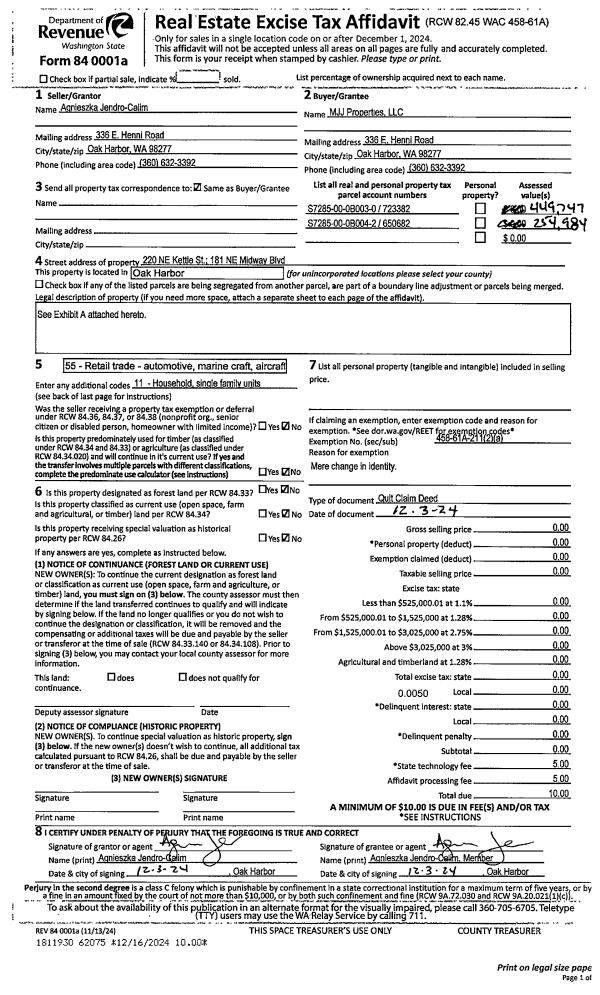
Property
Account |
| Property ID: | 570233 | Abbreviated Legal Description: | 7 - PT GL2 DESC: BG 4/CR BETW SECS 11 & 12 N ALG WLN SD GL2 842.71' S87*E PARA/W NLN GL2 618.16' TPB S 200' N87*W 217.8' S 99.63' S87*E 397.94' S18*E 140' N62*E 268.90' N87*W 54.46' N 100' S87*E 547' M/L TO ORDHITD LN NELY ALG ORDHITD LN TP S87*E FR TPB N |
| Geographic ID: | R32812-341-1150 | Agent Code: | |
| Type: | Real | | |
| Tax Area: | 712 - APPRAISER-S Whid Schl Dist, outside Langley, improved, greater than 1 acre | Land Use Code | 11 |
| Open Space: | N | DFL | N |
| Historic Property: | N | Remodel Property: | N |
| Multi-Family Redevelopment: | N | | |
| Township: | 28 | Section: | 12 |
| Range: | R3 |
Location |
| Address: | 7737 SUMMIT VIEW LN CLINTON, WA 98236 | Mapsco: | |
| Neighborhood: | Cycle 4 | Map ID: | 706 |
| Neighborhood CD: | 4 |
Owner |
| Name: | MILORD TTEE, KEVIN T | Owner ID: | 313927 |
| Mailing Address: | LISA L MILORD TTEE 1341 COOPER LN GENEVA, IL 60134 | % Ownership: | 100.0000000000% |
| | | Exemptions: | |
Taxes and Assessment Details
Values
| (+) Improvement Homesite Value: | + | $0 | |
| (+) Improvement Non-Homesite Value: | + | $908,540 | |
| (+) Land Homesite Value: | + | $0 | |
| (+) Land Non-Homesite Value: | + | $502,000 | |
| (+) Curr Use (HS): | + | $0 | $0 |
| (+) Curr Use (NHS): | + | $0 | $0 |
| | | -------------------------- | |
| (=) Market Value: | = | $1,410,540 | |
| (–) Productivity Loss: | – | $0 | |
| | | -------------------------- | |
| (=) Subtotal: | = | $1,410,540 | |
| (+) Senior Appraised Value: | + | $0 | |
| (+) Non-Senior Appraised Value: | + | $1,410,540 | |
| | | -------------------------- | |
| (=) Total Appraised Value: | = | $1,410,540 | |
| (–) Senior Exemption Loss: | – | $0 | |
| (–) Exemption Loss: | – | $0 | |
| | | -------------------------- | |
| (=) Taxable Value: | = | $1,410,540 | |
Taxing Jurisdiction
| Owner: | MILORD TTEE, KEVIN T | | |
| % Ownership: | 100.0000000000% | | |
| Total Value: | $1,410,540 | | |
| Tax Area: | 712 - APPRAISER-S Whid Schl Dist, outside Langley, improved, greater than 1 acre |
| CF | Conservation Futures | 0.0313996660 | $1,410,540 | $1,410,540 | $44.29 | | |
| FIRE3 | Fire & Rescue Dist #3 S Whidbey GEN | 1.2130821753 | $1,410,540 | $1,410,540 | $1,711.10 | | |
| HOBOND | Hospital BOND | 0.1893405597 | $1,410,540 | $1,410,540 | $267.07 | | |
| HOGEN | Hospital GEN | 0.3848777722 | $1,410,540 | $1,410,540 | $542.89 | | |
| CE | County Current Expense | 0.3674210519 | $1,410,540 | $1,410,540 | $518.26 | | |
| CR | County Roads | 0.4614296361 | $1,410,540 | $1,410,540 | $650.86 | | |
| ISLANDEMS | Hospital GEN (EMS) | 0.4952018576 | $1,410,540 | $1,410,540 | $698.50 | | |
| LIB | Library Sno-Isle GEN | 0.3039084203 | $1,410,540 | $1,410,540 | $428.67 | | |
| PORTWHID | Port of S Whidbey GEN | 0.1086004714 | $1,410,540 | $1,410,540 | $153.19 | | |
| SCH206BOND | School 206 BOND | 0.5960237832 | $1,410,540 | $1,410,540 | $840.72 | | |
| SCH206CAP | School 206 CP | 0.3066144020 | $1,410,540 | $1,410,540 | $432.49 | | |
| SCH206MO | School 206 Enrichment | 0.4808755445 | $1,410,540 | $1,410,540 | $678.29 | | |
| ST | State School | 1.4761226122 | $1,410,540 | $1,410,540 | $2,082.13 | | |
| ST2 | State School Part 2 | 0.7953803475 | $1,410,540 | $1,410,540 | $1,121.92 | | |
| SWHIDPRBD | P & R S Whidbey BOND | 0.0144185398 | $1,410,540 | $1,410,540 | $20.34 | | |
| SWHIDPRBD3 | P & R S Whidbey BOND3 | 0.1483535547 | $1,410,540 | $1,410,540 | $209.26 | | |
| SWHIDPRMT | P & R S Whidbey GEN | 0.4600000000 | $1,410,540 | $1,410,540 | $648.85 | | |
| | Total Tax Rate: | 7.8330503944 | | | | | |
| | | | | Taxes w/Current Exemptions: | $11,048.83 | | |
| | | | | Taxes w/o Exemptions: | $11,048.83 | | |
Improvement / Building
| Improvement #1: | RESIDENTIAL | State Code: | Y | 2929.2 sqft | Value: | $908,540 |
| Bathrooms: | 3 | Bedrooms: | 3 | | Ceiling: | BEAM PAINTED | Exterior Wall/Cover: | WOOD SIDING | | Floor Covering: | HARDWOOD 100% | Floor Structure: | WOOD W/SUBFLOOR | | Foundation: | CONCRETE | Heating: | HEAT PUMP | | Interior Finish: | DRYWALL PAINT | Plumbing Fixture Cnt: | 13 | | Roof Slope: | 6" IN 12" | Roof Structure/Cover: | BEAM ALUMINUM HEAVY |
|
| | Type | Description | Class CD | Sub Class CD | Year Built | Area |
| | BAS | BASE/MAIN FLOOR | 5 | 0 | 2024 | 2929.2 |
| | oUTI | UTILITY | 4 | 0 | 2024 | 216.1 |
| | UTY | STORAGE/UTILITY | 5 | 0 | 2024 | 73.7 |
| | OCP | OPEN CARPORT | 5 | 0 | 2024 | 1136.0 |
| | OWC | OPEN WOOD PORCH W/STEPS/ROOF/C | 5 | 0 | 2024 | 88.0 |
| | OWC | OPEN WOOD PORCH W/STEPS/ROOF/C | 5 | 0 | 2024 | 493.0 |
| | OWC | OPEN WOOD PORCH W/STEPS/ROOF/C | 5 | 0 | 2024 | 334.8 |
| | OP4 | OPEN PORCH W/CEILING-ROOF | 5 | 0 | 2024 | 47.2 |
Sketch
| No sketches available for this property. |
Property Image
Land
| 1 | HB | HIGH BLUFF | 6.4900 | 282704.40 | 200.00 | 0.00 | 1.00 | $500,000 | $0 |
| 2 | 55 | TIDES | 0.0000 | 0.00 | 0.00 | 0.00 | 1.00 | $2,000 | $0 |
Roll Value History
| 2026 | N/A | N/A | N/A | N/A | N/A |
| 2025 | $908,540 | $502,000 | $0 | $1,410,540 | $1,410,540 |
| 2024 | $390,791 | $277,000 | $0 | $667,791 | $667,791 |
| 2023 | $146,313 | $277,000 | $0 | $423,313 | $423,313 |
| 2022 | $0 | $252,000 | $0 | $252,000 | $252,000 |
| 2021 | $0 | $227,000 | $0 | $227,000 | $227,000 |
| 2020 | $0 | $227,000 | $0 | $227,000 | $227,000 |
| 2019 | $0 | $252,000 | $0 | $252,000 | $252,000 |
| 2018 | $0 | $202,000 | $0 | $202,000 | $202,000 |
| 2017 | $0 | $182,000 | $0 | $182,000 | $182,000 |
| 2016 | $0 | $182,000 | $0 | $182,000 | $182,000 |
| 2015 | $0 | $182,000 | $0 | $182,000 | $182,000 |
| 2014 | $0 | $182,000 | $0 | $182,000 | $182,000 |
| 2013 | $0 | $222,440 | $0 | $222,440 | $222,440 |
| 2012 | $0 | $222,440 | $0 | $222,440 | $222,440 |
| 2011 | $0 | $222,440 | $0 | $222,440 | $222,440 |
| 2010 | $0 | $222,440 | $0 | $222,440 | $222,440 |
| 2009 | $0 | $266,528 | $0 | $266,528 | $266,528 |
| 2008 | $0 | $266,528 | $0 | $266,528 | $266,528 |
| 2007 | $0 | $265,128 | $0 | $265,128 | $265,128 |
Deed and Sales History
| 1 | 09/02/2024 | QCD | Quit Claim Deed | MILORD, KEVIN T | MILORD TTEE, KEVIN T | | | $0.00 | 61296 | 4577216 |
| 2 | 11/06/2018 | WD | Warranty Deed | DILL, WILLIAM J | MILORD, KEVIN T | | | $435,000.00 | 36609 | 4454808 |
|   | |
| 3 | 08/03/2009 | BLA | DNU - Boundary Line Adjustment | DILL, WILLIAM J | DILL, WILLIAM J | | | $0.00 | 81344 | 4456239 |
| 4 | 03/02/2005 | QCD | Quit Claim Deed | EDWARDS, RICHARD E | DILL, WILLIAM J | | | $167,065.00 | 50993 | 4128173 |
| 5 | 08/05/2004 | EZ | Easement | Unknown | EDWARDS, RICHARD | | | $0.00 | 43821 | 4110322 |
| 6 | 05/11/1998 | DECREE | Divorce Decree/Legal Separation | EDWARDS, RICHARD | EDWARDS, RICHARD E | | | $0.00 | 81738 | 98009288 |
| 7 | 10/01/1989 | WD | Warranty Deed | NINDEL-EDWARDS, JAMES C | EDWARDS, RICHARD E | | | $58,950.00 | 94317 | 89014126 |
| 8 | 05/01/1985 | WD | Warranty Deed | NINDEL-EDWARDS, JAMES C | NINDEL-EDWARDS, JAMES C | | | $0.00 | 51245 | 0 |
| 9 | 11/01/1984 | OTHER | Other - Misc. Documents | NINDEL-EDWARDS, JAMES C | NINDEL-EDWARDS, JAMES C | | | $0.00 | 60910 | 84004262 |
| 10 | 10/01/1983 | WD | Warranty Deed | SCHWAGER, JOHN A | NINDEL-EDWARDS, JAMES C | | | $36,000.00 | 32992 | 416071 |
| 11 | 09/01/1983 | OTHER | Other - Misc. Documents | SCHWAGER, JOHN A | SCHWAGER, JOHN A | | | $0.00 | 60240 | 415139 |
| 12 | 01/01/1900 | OTHER | Other - Misc. Documents | Unknown | SCHWAGER, JOHN A | | | $0.00 | 0 | 0 |
Payout Agreement
| No payout information available.. |