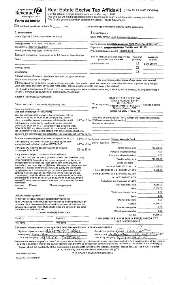
Property
Account |
| Property ID: | 574024 | Abbreviated Legal Description: | SARATOGA LOT 13 & NW 25'LOT 12 BLK B FR 0B012-O 12/12/83 |
| Geographic ID: | S8085-00-0B013-0 | Agent Code: | |
| Type: | Real | | |
| Tax Area: | 730 - APPRAISER-S Whid Schl Dist, Special District, improved & less than 1 acre | Land Use Code | 11 |
| Open Space: | N | DFL | N |
| Historic Property: | N | Remodel Property: | N |
| Multi-Family Redevelopment: | N | | |
| Township: | | Section: | |
| Range: | |
Location |
| Address: | 3766 BELLS BEACH RD LANGLEY, WA 98260 | Mapsco: | |
| Neighborhood: | Cycle 4 | Map ID: | 880 |
| Neighborhood CD: | 4 |
Owner |
| Name: | DEAN, MARY K | Owner ID: | 305782 |
| Mailing Address: | 3766 BELLS BEACH RD LANGLEY, WA 98260 | % Ownership: | 100.0000000000% |
| | | Exemptions: | |
Taxes and Assessment Details
Values
| (+) Improvement Homesite Value: | + | $0 | |
| (+) Improvement Non-Homesite Value: | + | $274,399 | |
| (+) Land Homesite Value: | + | $0 | |
| (+) Land Non-Homesite Value: | + | $370,000 | |
| (+) Curr Use (HS): | + | $0 | $0 |
| (+) Curr Use (NHS): | + | $0 | $0 |
| | | -------------------------- | |
| (=) Market Value: | = | $644,399 | |
| (–) Productivity Loss: | – | $0 | |
| | | -------------------------- | |
| (=) Subtotal: | = | $644,399 | |
| (+) Senior Appraised Value: | + | $0 | |
| (+) Non-Senior Appraised Value: | + | $644,399 | |
| | | -------------------------- | |
| (=) Total Appraised Value: | = | $644,399 | |
| (–) Senior Exemption Loss: | – | $0 | |
| (–) Exemption Loss: | – | $0 | |
| | | -------------------------- | |
| (=) Taxable Value: | = | $644,399 | |
Taxing Jurisdiction
| Owner: | DEAN, MARY K | | |
| % Ownership: | 100.0000000000% | | |
| Total Value: | $644,399 | | |
| Tax Area: | 730 - APPRAISER-S Whid Schl Dist, Special District, improved & less than 1 acre |
| CF | Conservation Futures | 0.0313996660 | $644,399 | $644,399 | $20.23 | | |
| FIRE3 | Fire & Rescue Dist #3 S Whidbey GEN | 1.2130821753 | $644,399 | $644,399 | $781.71 | | |
| HOBOND | Hospital BOND | 0.1893405597 | $644,399 | $644,399 | $122.01 | | |
| HOGEN | Hospital GEN | 0.3848777722 | $644,399 | $644,399 | $248.01 | | |
| CE | County Current Expense | 0.3674210519 | $644,399 | $644,399 | $236.77 | | |
| CR | County Roads | 0.4614296361 | $644,399 | $644,399 | $297.34 | | |
| ISLANDEMS | Hospital GEN (EMS) | 0.4952018576 | $644,399 | $644,399 | $319.11 | | |
| LIB | Library Sno-Isle GEN | 0.3039084203 | $644,399 | $644,399 | $195.84 | | |
| PORTWHID | Port of S Whidbey GEN | 0.1086004714 | $644,399 | $644,399 | $69.98 | | |
| SCH206BOND | School 206 BOND | 0.5960237832 | $644,399 | $644,399 | $384.08 | | |
| SCH206CAP | School 206 CP | 0.3066144020 | $644,399 | $644,399 | $197.58 | | |
| SCH206MO | School 206 Enrichment | 0.4808755445 | $644,399 | $644,399 | $309.88 | | |
| ST | State School | 1.4761226122 | $644,399 | $644,399 | $951.21 | | |
| ST2 | State School Part 2 | 0.7953803475 | $644,399 | $644,399 | $512.54 | | |
| SWHIDPRBD | P & R S Whidbey BOND | 0.0144185398 | $644,399 | $644,399 | $9.29 | | |
| SWHIDPRBD3 | P & R S Whidbey BOND3 | 0.1483535547 | $644,399 | $644,399 | $95.60 | | |
| SWHIDPRMT | P & R S Whidbey GEN | 0.4600000000 | $644,399 | $644,399 | $296.42 | | |
| | Total Tax Rate: | 7.8330503944 | | | | | |
| | | | | Taxes w/Current Exemptions: | $5,047.60 | | |
| | | | | Taxes w/o Exemptions: | $5,047.60 | | |
Improvement / Building
| Improvement #1: | RESIDENTIAL | State Code: | Y | 1646.0 sqft | Value: | $274,399 |
| Bathrooms: | 2 | Bedrooms: | 2 | | Ceiling: | DRYWALL PAINTED | Exterior Wall/Cover: | SHINGLE | | Floor Covering: | CARPET/VINYL 80-20 | Floor Structure: | WOOD W/SUBFLOOR | | Foundation: | CONCRETE BLOCKS | Heating: | HEAT PUMP | | Interior Finish: | DRYWALL PAINT | Plumbing Fixture Cnt: | 9 | | Roof Slope: | 3" IN 12" | Roof Structure/Cover: | CJ ALUMINIUM HEAVY |
|
| | Type | Description | Class CD | Sub Class CD | Year Built | Area |
| | BAS | BASE/MAIN FLOOR | 3 | 0 | 1949 | 970.0 |
| | UTY | STORAGE/UTILITY | 3 | 0 | 1949 | 72.0 |
| | UPS | UPPER STORY | 3 | 0 | 1949 | 676.0 |
| | BAW | BALCONY WOOD RAIL | 3 | 0 | 1949 | 104.0 |
| | OWP | OPEN WOOD PORCH W/STEPS | 3 | 0 | 1949 | 1275.4 |
| | OWR | OPEN WOOD PORCH W/STEPS/ROOF | 3 | 0 | 1949 | 48.0 |
| | OWR | OPEN WOOD PORCH W/STEPS/ROOF | 3 | 0 | 1949 | 100.0 |
Sketch
Property Image
Land
| 1 | 14 | SQ (08001-12000) | 0.0000 | 0.00 | 0.00 | 0.00 | 1.00 | $370,000 | $0 |
Roll Value History
| 2026 | N/A | N/A | N/A | N/A | N/A |
| 2025 | $274,399 | $370,000 | $0 | $644,399 | $644,399 |
| 2024 | $267,881 | $370,000 | $0 | $637,881 | $637,881 |
| 2023 | $271,394 | $380,000 | $0 | $651,394 | $651,394 |
| 2022 | $236,205 | $280,000 | $0 | $516,205 | $516,205 |
| 2021 | $208,165 | $220,000 | $0 | $428,165 | $428,165 |
| 2020 | $187,227 | $220,000 | $0 | $407,227 | $407,227 |
| 2019 | $137,834 | $250,000 | $0 | $387,834 | $387,834 |
| 2018 | $138,319 | $200,000 | $0 | $338,319 | $338,319 |
| 2017 | $139,287 | $180,000 | $0 | $319,287 | $319,287 |
| 2016 | $141,221 | $150,000 | $0 | $291,221 | $291,221 |
| 2015 | $143,156 | $125,000 | $0 | $268,156 | $268,156 |
| 2014 | $99,097 | $95,000 | $0 | $194,097 | $194,097 |
| 2013 | $100,900 | $95,000 | $0 | $195,900 | $195,900 |
| 2012 | $102,701 | $106,250 | $0 | $208,951 | $208,951 |
| 2011 | $104,504 | $125,000 | $0 | $229,504 | $229,504 |
| 2010 | $116,048 | $125,000 | $0 | $241,048 | $241,048 |
| 2009 | $121,445 | $170,000 | $0 | $291,445 | $291,445 |
| 2008 | $123,426 | $356,531 | $0 | $479,957 | $479,957 |
| 2007 | $94,550 | $255,635 | $0 | $350,185 | $350,185 |
Deed and Sales History
| 1 | 08/25/2022 | WD | Warranty Deed | GOSE, CYNTHIA J | DEAN, MARY K | | | $700,000.00 | 54454 | 4550853 |
| 2 | 08/09/2011 | WD | Warranty Deed | FEDERAL NATIONAL MORTGAGE ASSOCIATION | GOSE, CYNTHIA J | | | $259,900.00 | 5232 | 4299547 |
| 3 | 05/25/2011 | TRUSTEED | Trustee's Deed | SCHOENKNECHT, HOLLY | FEDERAL NATIONAL MORTGAGE ASSOCIATION | | | $393,571.00 | 4547 | 4295863 |
| 4 | 07/01/1987 | WD | Warranty Deed | MAGDALIK, THOMAS D | SCHOENKNECHT, HOLLY & | | | $55,000.00 | 72475 | 87011319 |
| 5 | 09/01/1986 | WD | Warranty Deed | PLOGER, ELEANORE B | MAGDALIK, THOMAS D | | | $55,000.00 | 62835 | 86012788 |
| 6 | 06/01/1982 | CD | DNU - Correction Deed | Unknown | PLOGER, ELEANORE B | | | $0.00 | 21694 | 398465 |
Payout Agreement
| No payout information available.. |