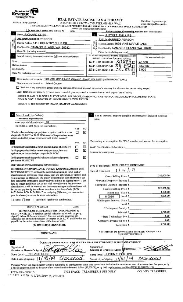
Property
Account |
| Property ID: | 579261 | Abbreviated Legal Description: | E/2 OF NW SE TGW EZ FR 267 3710 |
| Geographic ID: | R23028-200-3710 | Agent Code: | |
| Type: | Real | | |
| Tax Area: | 312 - APPRAISER-Cpvl Schl Dist, outside Cpvl, improved, greater than 1 acre | Land Use Code | 11 |
| Open Space: | N | DFL | N |
| Historic Property: | N | Remodel Property: | N |
| Multi-Family Redevelopment: | N | | |
| Township: | 30 | Section: | 28 |
| Range: | R2 |
Location |
| Address: | 1087 CLASSIC RD GREENBANK, WA 98253 | Mapsco: | |
| Neighborhood: | Cycle 3 | Map ID: | 422 |
| Neighborhood CD: | 3 |
Owner |
| Name: | ENGLAND, BLAINE F | Owner ID: | 83739 |
| Mailing Address: | LAURA H PEPPER PO BOX 84 GREENBANK, WA 98253-0084 | % Ownership: | 100.0000000000% |
| | | Exemptions: | |
Taxes and Assessment Details
Values
| (+) Improvement Homesite Value: | + | $0 | |
| (+) Improvement Non-Homesite Value: | + | $61,560 | |
| (+) Land Homesite Value: | + | $0 | |
| (+) Land Non-Homesite Value: | + | $430,000 | |
| (+) Curr Use (HS): | + | $0 | $0 |
| (+) Curr Use (NHS): | + | $0 | $0 |
| | | -------------------------- | |
| (=) Market Value: | = | $491,560 | |
| (–) Productivity Loss: | – | $0 | |
| | | -------------------------- | |
| (=) Subtotal: | = | $491,560 | |
| (+) Senior Appraised Value: | + | $0 | |
| (+) Non-Senior Appraised Value: | + | $491,560 | |
| | | -------------------------- | |
| (=) Total Appraised Value: | = | $491,560 | |
| (–) Senior Exemption Loss: | – | $0 | |
| (–) Exemption Loss: | – | $0 | |
| | | -------------------------- | |
| (=) Taxable Value: | = | $491,560 | |
Taxing Jurisdiction
| Owner: | ENGLAND, BLAINE F | | |
| % Ownership: | 100.0000000000% | | |
| Total Value: | $491,560 | | |
| Tax Area: | 312 - APPRAISER-Cpvl Schl Dist, outside Cpvl, improved, greater than 1 acre |
| CF | Conservation Futures | 0.0313996660 | $491,560 | $491,560 | $15.43 | | |
| CEM2 | Cemetery #2 | 0.0092609791 | $491,560 | $491,560 | $4.55 | | |
| FIRE5 | Fire & Rescue Dist #5 C Whidbey GEN | 1.1892169230 | $491,560 | $491,560 | $584.57 | | |
| FIRE5BOND | Fire & Rescue Dist #5 C Whidbey BOND | 0.1394359503 | $491,560 | $491,560 | $68.54 | | |
| HOBOND | Hospital BOND | 0.1893405597 | $491,560 | $491,560 | $93.07 | | |
| HOGEN | Hospital GEN | 0.3848777722 | $491,560 | $491,560 | $189.19 | | |
| CE | County Current Expense | 0.3674210519 | $491,560 | $491,560 | $180.61 | | |
| CR | County Roads | 0.4614296361 | $491,560 | $491,560 | $226.82 | | |
| ISLANDEMS | Hospital GEN (EMS) | 0.4952018576 | $491,560 | $491,560 | $243.42 | | |
| LIB | Library Sno-Isle GEN | 0.3039084203 | $491,560 | $491,560 | $149.39 | | |
| LIBCAP | Library Sno-Isle BOND (Cap Fac Imp Area) | 0.0528562629 | $491,560 | $491,560 | $25.98 | | |
| POCOUP | Port of Coupeville GEN | 0.1065226063 | $491,560 | $491,560 | $52.36 | | |
| POCOUPIDD | Port of Coupeville IDD | 0.3353038577 | $491,560 | $491,560 | $164.82 | | |
| COUPSDTECH | School 204 CP (TECH) | 0.1215123397 | $491,560 | $491,560 | $59.73 | | |
| SCH204MO | School 204 Enrichment | 0.6416662518 | $491,560 | $491,560 | $315.42 | | |
| ST | State School | 1.4761226122 | $491,560 | $491,560 | $725.60 | | |
| ST2 | State School Part 2 | 0.7953803475 | $491,560 | $491,560 | $390.98 | | |
| | Total Tax Rate: | 7.1008570943 | | | | | |
| | | | | Taxes w/Current Exemptions: | $3,490.48 | | |
| | | | | Taxes w/o Exemptions: | $3,490.48 | | |
Improvement / Building
| Improvement #1: | RESIDENTIAL | State Code: | Y | 864.0 sqft | Value: | $61,560 |
Sketch
Property Image
Land
| 1 | 35 | AC (10.00-30.99) | 0.0000 | 0.00 | 0.00 | 0.00 | 1.00 | $430,000 | $0 |
Roll Value History
| 2026 | N/A | N/A | N/A | N/A | N/A |
| 2025 | $61,560 | $430,000 | $0 | $491,560 | $491,560 |
| 2024 | $61,560 | $400,000 | $0 | $461,560 | $461,560 |
| 2023 | $61,560 | $380,000 | $0 | $441,560 | $441,560 |
| 2022 | $61,560 | $280,000 | $0 | $341,560 | $341,560 |
| 2021 | $61,560 | $280,000 | $0 | $341,560 | $341,560 |
| 2020 | $61,560 | $240,000 | $0 | $301,560 | $301,560 |
| 2019 | $30,210 | $350,000 | $0 | $380,210 | $380,210 |
| 2018 | $30,210 | $235,000 | $0 | $265,210 | $265,210 |
| 2017 | $30,210 | $235,000 | $0 | $265,210 | $265,210 |
| 2016 | $30,210 | $235,000 | $0 | $265,210 | $265,210 |
| 2015 | $30,210 | $235,000 | $0 | $265,210 | $265,210 |
| 2014 | $30,210 | $235,000 | $0 | $265,210 | $265,210 |
| 2013 | $30,210 | $234,000 | $0 | $264,210 | $264,210 |
| 2012 | $30,210 | $234,000 | $0 | $264,210 | $264,210 |
| 2011 | $30,210 | $260,000 | $0 | $290,210 | $290,210 |
| 2010 | $31,050 | $260,000 | $0 | $291,050 | $291,050 |
| 2009 | $33,499 | $280,000 | $0 | $313,499 | $313,499 |
| 2008 | $35,949 | $290,000 | $0 | $325,949 | $325,949 |
| 2007 | $36,372 | $270,000 | $0 | $306,372 | $306,372 |
Deed and Sales History
| 1 | 02/01/1984 | WD | Warranty Deed | CORP, OF C | PEPPER, LAURA H | | | $40,000.00 | 40877 | 422932 |
| 2 | 01/01/1900 | OTHER | Other - Misc. Documents | Unknown | CORP, OF C | | | $0.00 | 0 | 0 |
Payout Agreement
| No payout information available.. |