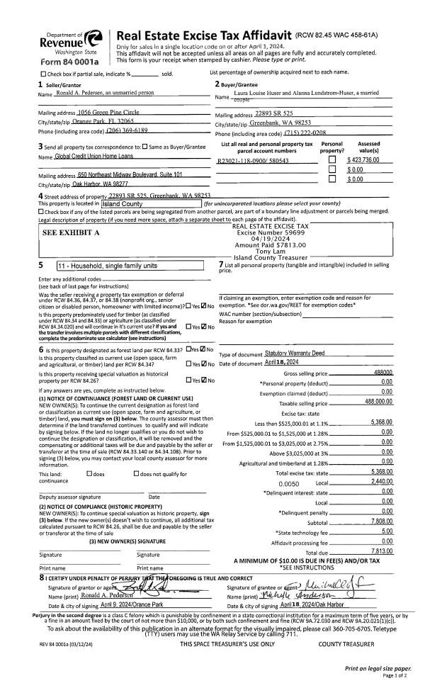
Property
Account |
| Property ID: | 580543 | Abbreviated Legal Description: | LOT B SP 83-42.6.23021.120-0660 V1 SP P261 AF#424554 EX W112' TGW & SUB EZ AF#90006171 EX PT TO ST HWY AF#20008991 |
| Geographic ID: | R23021-118-0900 | Agent Code: | |
| Type: | Real | | |
| Tax Area: | 312 - APPRAISER-Cpvl Schl Dist, outside Cpvl, improved, greater than 1 acre | Land Use Code | 11 |
| Open Space: | N | DFL | N |
| Historic Property: | N | Remodel Property: | N |
| Multi-Family Redevelopment: | N | | |
| Township: | 30 | Section: | 21 |
| Range: | R2 |
Location |
| Address: | 22893 SR525 GREENBANK, WA 98253 | Mapsco: | |
| Neighborhood: | Cycle 3 | Map ID: | 400 |
| Neighborhood CD: | 3 |
Owner |
| Name: | HUSER, LAURA L | Owner ID: | 312347 |
| Mailing Address: | ALANNA LUNDSTROM-HUSER 22893 SR 525 GREENBANK, WA 98253 | % Ownership: | 100.0000000000% |
| | | Exemptions: | |
Taxes and Assessment Details
Values
| (+) Improvement Homesite Value: | + | $0 | |
| (+) Improvement Non-Homesite Value: | + | $132,925 | |
| (+) Land Homesite Value: | + | $0 | |
| (+) Land Non-Homesite Value: | + | $350,000 | |
| (+) Curr Use (HS): | + | $0 | $0 |
| (+) Curr Use (NHS): | + | $0 | $0 |
| | | -------------------------- | |
| (=) Market Value: | = | $482,925 | |
| (–) Productivity Loss: | – | $0 | |
| | | -------------------------- | |
| (=) Subtotal: | = | $482,925 | |
| (+) Senior Appraised Value: | + | $0 | |
| (+) Non-Senior Appraised Value: | + | $482,925 | |
| | | -------------------------- | |
| (=) Total Appraised Value: | = | $482,925 | |
| (–) Senior Exemption Loss: | – | $0 | |
| (–) Exemption Loss: | – | $0 | |
| | | -------------------------- | |
| (=) Taxable Value: | = | $482,925 | |
Taxing Jurisdiction
| Owner: | HUSER, LAURA L | | |
| % Ownership: | 100.0000000000% | | |
| Total Value: | $482,925 | | |
| Tax Area: | 312 - APPRAISER-Cpvl Schl Dist, outside Cpvl, improved, greater than 1 acre |
| CF | Conservation Futures | 0.0313996660 | $482,925 | $482,925 | $15.16 | | |
| CEM2 | Cemetery #2 | 0.0092609791 | $482,925 | $482,925 | $4.47 | | |
| FIRE5 | Fire & Rescue Dist #5 C Whidbey GEN | 1.1892169230 | $482,925 | $482,925 | $574.30 | | |
| FIRE5BOND | Fire & Rescue Dist #5 C Whidbey BOND | 0.1394359503 | $482,925 | $482,925 | $67.34 | | |
| HOBOND | Hospital BOND | 0.1893405597 | $482,925 | $482,925 | $91.44 | | |
| HOGEN | Hospital GEN | 0.3848777722 | $482,925 | $482,925 | $185.87 | | |
| CE | County Current Expense | 0.3674210519 | $482,925 | $482,925 | $177.44 | | |
| CR | County Roads | 0.4614296361 | $482,925 | $482,925 | $222.84 | | |
| ISLANDEMS | Hospital GEN (EMS) | 0.4952018576 | $482,925 | $482,925 | $239.15 | | |
| LIB | Library Sno-Isle GEN | 0.3039084203 | $482,925 | $482,925 | $146.76 | | |
| LIBCAP | Library Sno-Isle BOND (Cap Fac Imp Area) | 0.0528562629 | $482,925 | $482,925 | $25.53 | | |
| POCOUP | Port of Coupeville GEN | 0.1065226063 | $482,925 | $482,925 | $51.44 | | |
| POCOUPIDD | Port of Coupeville IDD | 0.3353038577 | $482,925 | $482,925 | $161.93 | | |
| COUPSDTECH | School 204 CP (TECH) | 0.1215123397 | $482,925 | $482,925 | $58.68 | | |
| SCH204MO | School 204 Enrichment | 0.6416662518 | $482,925 | $482,925 | $309.88 | | |
| ST | State School | 1.4761226122 | $482,925 | $482,925 | $712.86 | | |
| ST2 | State School Part 2 | 0.7953803475 | $482,925 | $482,925 | $384.11 | | |
| | Total Tax Rate: | 7.1008570943 | | | | | |
| | | | | Taxes w/Current Exemptions: | $3,429.20 | | |
| | | | | Taxes w/o Exemptions: | $3,429.20 | | |
Improvement / Building
| Improvement #1: | MANUFACTURED HOME | State Code: | Y | 1110.9 sqft | Value: | $132,925 |
| Bathrooms: | 0 | Bedrooms: | 0 | | Ceiling: | PLASTER PAINTED | Cooling: | EVAP NO DUCT | | Exterior Wall/Cover: | VINYL | Floor Covering: | CARPET 100% | | Floor Structure: | SLAB ON GRADE | Foundation: | SLAB | | Heating: | FHA ELECTRIC | Interior Finish: | PLASTER | | Plumbing Fixture Cnt: | 1 | Roof Slope: | FLAT | | Roof Structure/Cover: | CJ ALUMINIUM HEAVY |   |   |
|
| | Type | Description | Class CD | Sub Class CD | Year Built | Area |
| | BAS | BASE/MAIN FLOOR | 4 | 0 | 2000 | 1110.9 |
| | OWC | OPEN WOOD PORCH W/STEPS/ROOF/C | 4 | 0 | 2000 | 232.4 |
| | OWP | OPEN WOOD PORCH W/STEPS | 4 | 0 | 2000 | 90.0 |
Sketch
Property Image
Land
| 1 | 32 | AC (03.01-09.99) | 4.8200 | 0.00 | 0.00 | 0.00 | 1.00 | $350,000 | $0 |
Roll Value History
| 2026 | N/A | N/A | N/A | N/A | N/A |
| 2025 | $132,925 | $350,000 | $0 | $482,925 | $482,925 |
| 2024 | $134,471 | $340,000 | $0 | $474,471 | $474,471 |
| 2023 | $103,736 | $320,000 | $0 | $423,736 | $87,324 |
| 2022 | $96,375 | $260,000 | $0 | $356,375 | $87,324 |
| 2021 | $85,929 | $230,000 | $0 | $315,929 | $87,324 |
| 2020 | $85,474 | $180,000 | $0 | $265,474 | $87,324 |
| 2019 | $47,188 | $220,000 | $0 | $267,188 | $87,324 |
| 2018 | $48,310 | $170,000 | $0 | $218,310 | $87,324 |
| 2017 | $49,432 | $160,000 | $0 | $209,432 | $209,432 |
| 2016 | $50,553 | $120,000 | $0 | $170,553 | $170,553 |
| 2015 | $51,675 | $130,000 | $0 | $181,675 | $181,675 |
| 2014 | $52,797 | $125,000 | $0 | $177,797 | $177,797 |
| 2013 | $58,012 | $117,126 | $0 | $175,138 | $175,138 |
| 2012 | $58,573 | $117,126 | $0 | $175,699 | $175,699 |
| 2011 | $59,694 | $130,140 | $0 | $189,834 | $189,834 |
| 2010 | $69,153 | $130,140 | $0 | $199,293 | $199,293 |
| 2009 | $72,692 | $187,980 | $0 | $260,672 | $260,672 |
| 2008 | $74,393 | $162,675 | $0 | $237,068 | $237,068 |
| 2007 | $68,415 | $149,420 | $0 | $217,835 | $217,835 |
Deed and Sales History
| 1 | 04/19/2024 | WD | Warranty Deed | PEDERSEN, RONALD A | HUSER, LAURA L | | | $488,000.00 | 59699 | 4571443 |
| 2 | 04/07/2000 | WD | Warranty Deed | PEDERSEN, RONALD A | PEDERSEN, RONALD A | | | $750.00 | 1859 | 20008991 |
| 3 | 10/28/1999 | WD | Warranty Deed | , | PEDERSEN, RONALD A | | | $0.00 | 94996 | 99027873 |
| 4 | 10/28/1999 | WD | Warranty Deed | BADE, MICHAEL E | , | | | $62,500.00 | 94734 | 99026446 |
| 5 | 01/01/1988 | OTHER | Other - Misc. Documents | SAKAI, YOSHITAKA | BADE, MICHAEL E | | | $0.00 | 62352 | 88001420 |
| 6 | 12/01/1987 | WD | Warranty Deed | BADE, MICHAEL E | SAKAI, YOSHITAKA | | | $34,000.00 | 73840 | 87016691 |
| 7 | 04/01/1983 | REC | Real Estate Contract | PEDERSON, RONALD A | BADE, MICHAEL E | | | $16,000.00 | 31286 | 409674 |
| 8 | 01/01/1900 | PACD | Purchaser's Assignment | Unknown | PEDERSON, RONALD A | | | $0.00 | 0 | 0 |
Payout Agreement
| No payout information available.. |