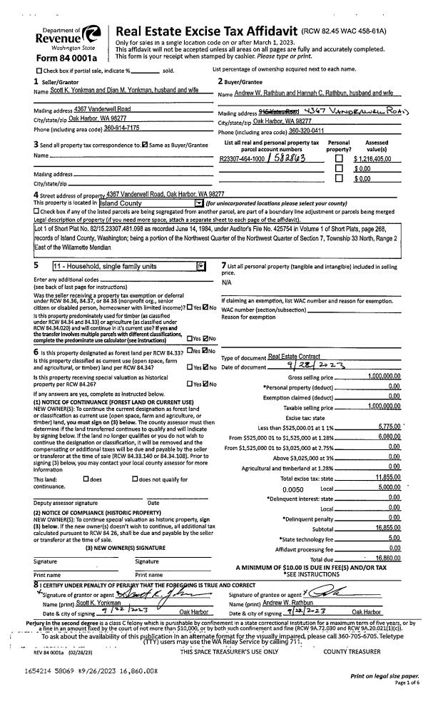
Property
Account |
| Property ID: | 582863 | Abbreviated Legal Description: | LOT 1 SP 82-15.23307.481-0980 V1 SP P268 AF#425754 |
| Geographic ID: | R23307-464-1000 | Agent Code: | |
| Type: | Real | | |
| Tax Area: | 112 - APPRAISER-OH Schl Dist, outside OH, improved, greater than 1 acre | Land Use Code | 11 |
| Open Space: | N | DFL | N |
| Historic Property: | N | Remodel Property: | N |
| Multi-Family Redevelopment: | N | | |
| Township: | 33 | Section: | 07 |
| Range: | R2 |
Location |
| Address: | 4367 VANDERWELL RD OAK HARBOR, WA 98277 | Mapsco: | |
| Neighborhood: | 61cRR-jones road | Map ID: | 593 |
| Neighborhood CD: | 61cRRjones |
Owner |
| Name: | RATHBUN, ANDREW | Owner ID: | 310173 |
| Mailing Address: | HANNAH C RATHBUN SCOTT AND DIAN YONKMAN 4367 VANDERWELL RD OAK HARBOR, WA 98277 | % Ownership: | 100.0000000000% |
| | | Exemptions: | |
Taxes and Assessment Details
Values
| (+) Improvement Homesite Value: | + | $0 | |
| (+) Improvement Non-Homesite Value: | + | $903,141 | |
| (+) Land Homesite Value: | + | $0 | |
| (+) Land Non-Homesite Value: | + | $300,000 | |
| (+) Curr Use (HS): | + | $0 | $0 |
| (+) Curr Use (NHS): | + | $0 | $0 |
| | | -------------------------- | |
| (=) Market Value: | = | $1,203,141 | |
| (–) Productivity Loss: | – | $0 | |
| | | -------------------------- | |
| (=) Subtotal: | = | $1,203,141 | |
| (+) Senior Appraised Value: | + | $0 | |
| (+) Non-Senior Appraised Value: | + | $1,203,141 | |
| | | -------------------------- | |
| (=) Total Appraised Value: | = | $1,203,141 | |
| (–) Senior Exemption Loss: | – | $0 | |
| (–) Exemption Loss: | – | $0 | |
| | | -------------------------- | |
| (=) Taxable Value: | = | $1,203,141 | |
Taxing Jurisdiction
| Owner: | RATHBUN, ANDREW | | |
| % Ownership: | 100.0000000000% | | |
| Total Value: | $1,203,141 | | |
| Tax Area: | 112 - APPRAISER-OH Schl Dist, outside OH, improved, greater than 1 acre |
| CF | Conservation Futures | 0.0313996660 | $1,203,141 | $1,203,141 | $37.78 | | |
| CEM1 | Cemetery #1 | 0.0040018856 | $1,203,141 | $1,203,141 | $4.81 | | |
| FIRE2 | Fire & Rescue Dist #2 N Whidbey GEN | 0.5381486274 | $1,203,141 | $1,203,141 | $647.47 | | |
| HOBOND | Hospital BOND | 0.1893405597 | $1,203,141 | $1,203,141 | $227.80 | | |
| HOGEN | Hospital GEN | 0.3848777722 | $1,203,141 | $1,203,141 | $463.06 | | |
| CE | County Current Expense | 0.3674210519 | $1,203,141 | $1,203,141 | $442.06 | | |
| CR | County Roads | 0.4614296361 | $1,203,141 | $1,203,141 | $555.16 | | |
| ISLANDEMS | Hospital GEN (EMS) | 0.4952018576 | $1,203,141 | $1,203,141 | $595.80 | | |
| LIB | Library Sno-Isle GEN | 0.3039084203 | $1,203,141 | $1,203,141 | $365.64 | | |
| NWHIDPRMT | P & R N Whidbey GEN | 0.1990272349 | $1,203,141 | $1,203,141 | $239.46 | | |
| SCH201MO | School 201 Enrichment | 2.3851112745 | $1,203,141 | $1,203,141 | $2,869.63 | | |
| ST | State School | 1.4761226122 | $1,203,141 | $1,203,141 | $1,775.98 | | |
| ST2 | State School Part 2 | 0.7953803475 | $1,203,141 | $1,203,141 | $956.95 | | |
| | Total Tax Rate: | 7.6313709459 | | | | | |
| | | | | Taxes w/Current Exemptions: | $9,181.60 | | |
| | | | | Taxes w/o Exemptions: | $9,181.60 | | |
Improvement / Building
| Improvement #1: | RESIDENTIAL | State Code: | Y | 3569.0 sqft | Value: | $579,475 |
| Bathrooms: | 3.5 | Bedrooms: | 4 | | Ceiling: | DRYWALL PAINTED | Exterior Wall/Cover: | PLY/HARDBOARD T-111 | | Floor Covering: | HARDWOOD/CARP 60-40 | Floor Structure: | WOOD W/SUBFLOOR | | Foundation: | CONCRETE | Heating: | FHA GAS | | Interior Finish: | DRYWALL PAINT | Plumbing Fixture Cnt: | 12 | | Roof Slope: | 5" IN 12" | Roof Structure/Cover: | CJ ASPHALT |
|
| | Type | Description | Class CD | Sub Class CD | Year Built | Area |
| | BAS | BASE/MAIN FLOOR | 4 | 0 | 1992 | 1961.0 |
| | UB8 | BASEMENT UNFINISHED 8" | 4 | 0 | 1992 | 160.0 |
| | DWN | DOWNSTAIRS LIVING AREA | 4 | 0 | 1992 | 144.0 |
| | OP1 | OPEN PORCH SLAB | 4 | 0 | 1992 | 240.0 |
| | AGR | ATTACHED GARAGE | 4 | 0 | 1992 | 528.0 |
| | OWC | OPEN WOOD PORCH W/STEPS/ROOF/C | 4 | 0 | 1992 | 88.4 |
| | OWC | OPEN WOOD PORCH W/STEPS/ROOF/C | 4 | 0 | 1992 | 221.0 |
| | ENP | ENCLOSED PORCH | 4 | 0 | 1992 | 128.0 |
| | DWN | DOWNSTAIRS LIVING AREA | 4 | 0 | 1992 | 1464.0 |
| | OWP | OPEN WOOD PORCH W/STEPS | 4 | 0 | 1992 | 98.0 |
| | oUTI | UTILITY | 4 | 0 | 1992 | 942.0 |
| Improvement #2: | COMMERCIAL | State Code: | F1 | 4376.0 sqft | Value: | $323,666 |
| Bathrooms: | 1 | Bedrooms: | 0 | | Ceiling: | DRYWALL PAINTED | Exterior Wall/Cover: | HARDBOARD/WOOD FRAME | | Floor Covering: | CARPET 100% | Floor Structure: | CONCRETE ON GROUND | | Foundation: | SLAB | Heating: | BASEBOARD ELECTRIC | | Interior Finish: | MANUFACTURING (LIGHT) | Plumbing Fixture Cnt: | 3 | | Roof Structure/Cover: | CJ ALUMINIUM HEAVY |   |   |
|
| | Type | Description | Class CD | Sub Class CD | Year Built | Area |
| | BAS | BASE/MAIN FLOOR | 3 | 0 | 1987 | 2576.0 |
| | AGR | ATTACHED GARAGE | 3 | 0 | 1987 | 318.0 |
| | AGR | ATTACHED GARAGE | 3 | 0 | 1987 | 435.0 |
| | STG | STORAGE | 3 | 0 | 1987 | 1800.0 |
| | OP3 | OPEN PORCH W/ROOF | 3 | 0 | 1987 | 136.0 |
| | OP1 | OPEN PORCH SLAB | 3 | 0 | 1987 | 104.0 |
| | OCP | OPEN CARPORT | 3 | 0 | 1987 | 228.0 |
| | CPD | OPEN CARPORT DIRT FLOOR | 3 | 0 | 1987 | 2552.0 |
Sketch
Property Image
Land
| 1 | 32 | AC (03.01-09.99) | 5.7400 | 250034.40 | 0.00 | 0.00 | 1.00 | $300,000 | $0 |
Roll Value History
| 2026 | N/A | N/A | N/A | N/A | N/A |
| 2025 | $903,141 | $300,000 | $0 | $1,203,141 | $1,203,141 |
| 2024 | $927,127 | $270,000 | $0 | $1,197,127 | $1,197,127 |
| 2023 | $946,405 | $270,000 | $0 | $1,216,405 | $1,216,405 |
| 2022 | $804,340 | $175,000 | $0 | $979,340 | $979,340 |
| 2021 | $713,758 | $175,000 | $0 | $888,758 | $888,758 |
| 2020 | $700,381 | $175,000 | $0 | $875,381 | $875,381 |
| 2019 | $570,572 | $185,000 | $0 | $755,572 | $755,572 |
| 2018 | $572,316 | $170,000 | $0 | $742,316 | $742,316 |
| 2017 | $575,810 | $125,017 | $0 | $700,827 | $700,827 |
| 2016 | $580,996 | $129,403 | $0 | $710,399 | $710,399 |
| 2015 | $580,996 | $129,403 | $0 | $710,399 | $710,399 |
| 2014 | $580,996 | $129,403 | $0 | $710,399 | $710,399 |
| 2013 | $580,996 | $129,403 | $0 | $710,399 | $710,399 |
| 2012 | $580,996 | $129,403 | $0 | $710,399 | $710,399 |
| 2011 | $580,996 | $129,403 | $0 | $710,399 | $710,399 |
| 2010 | $582,202 | $129,403 | $0 | $711,605 | $711,605 |
| 2009 | $607,214 | $155,411 | $0 | $762,625 | $762,625 |
| 2008 | $618,082 | $163,590 | $0 | $781,672 | $781,672 |
| 2007 | $640,854 | $163,590 | $0 | $804,444 | $804,444 |
Deed and Sales History
| 1 | 09/22/2023 | REC | Real Estate Contract | YONKMAN, SCOTT K & DIAN M | RATHBUN, ANDREW | | | $1,000,000.00 | 58069 | 4565043 |
| 2 | 08/01/1984 | REC | Real Estate Contract | AUSBURN, FRANKLIN P | YONKMAN, SCOTT K | | | $17,250.00 | 60115 | 86000596 |
| 3 | 08/01/1984 | REC | Real Estate Contract | YONKMAN, SCOTT K | YONKMAN, SCOTT K | | | $0.00 | 11491 | 91006277 |
| 4 | 12/01/1981 | WD | Warranty Deed | Unknown | AUSBURN, FRANKLIN P | | | $0.00 | 20047 | 391886 |
Payout Agreement
| No payout information available.. |