Property
Account |
| Property ID: | 583498 | Abbreviated Legal Description: | BRIGHTWATER CONDO APT 3 25.7% INT |
| Geographic ID: | S6182-00-00003-0 | Agent Code: | |
| Type: | Real | | |
| Tax Area: | 100 - APPRAISER-OH Schl Dist, in OH | Land Use Code | 14 |
| Open Space: | N | DFL | N |
| Historic Property: | N | Remodel Property: | N |
| Multi-Family Redevelopment: | N | | |
| Township: | | Section: | |
| Range: | |
Location |
| Address: | 1701 SE 9TH AVE APT 3 OAK HARBOR, WA 98277 | Mapsco: | |
| Neighborhood: | 13*OH-brightwater | Map ID: | 89 |
| Neighborhood CD: | 13*OHbrgtw |
Owner |
| Name: | HIGHRIDGE OFFICE PARK, LLC | Owner ID: | 304581 |
| Mailing Address: | 8955 RIDGELINE BLVD STE 900 HIGHLANDS RANCH, CO 80129 | % Ownership: | 100.0000000000% |
| | | Exemptions: | |
Taxes and Assessment Details
Values
| (+) Improvement Homesite Value: | + | $0 | |
| (+) Improvement Non-Homesite Value: | + | $212,164 | |
| (+) Land Homesite Value: | + | $0 | |
| (+) Land Non-Homesite Value: | + | $150,000 | |
| (+) Curr Use (HS): | + | $0 | $0 |
| (+) Curr Use (NHS): | + | $0 | $0 |
| | | -------------------------- | |
| (=) Market Value: | = | $362,164 | |
| (–) Productivity Loss: | – | $0 | |
| | | -------------------------- | |
| (=) Subtotal: | = | $362,164 | |
| (+) Senior Appraised Value: | + | $0 | |
| (+) Non-Senior Appraised Value: | + | $362,164 | |
| | | -------------------------- | |
| (=) Total Appraised Value: | = | $362,164 | |
| (–) Senior Exemption Loss: | – | $0 | |
| (–) Exemption Loss: | – | $0 | |
| | | -------------------------- | |
| (=) Taxable Value: | = | $362,164 | |
Taxing Jurisdiction
| Owner: | HIGHRIDGE OFFICE PARK, LLC | | |
| % Ownership: | 100.0000000000% | | |
| Total Value: | $362,164 | | |
| Tax Area: | 100 - APPRAISER-OH Schl Dist, in OH |
| CF | Conservation Futures | 0.0313996660 | $362,164 | $362,164 | $11.37 | | |
| CEM1 | Cemetery #1 | 0.0040018856 | $362,164 | $362,164 | $1.45 | | |
| COH | City of Oak Harbor | 2.3090730572 | $362,164 | $362,164 | $836.26 | | |
| OAKBOND | City of Oak Harbor BOND | 0.1902260131 | $362,164 | $362,164 | $68.89 | | |
| HOBOND | Hospital BOND | 0.1893405597 | $362,164 | $362,164 | $68.57 | | |
| HOGEN | Hospital GEN | 0.3848777722 | $362,164 | $362,164 | $139.39 | | |
| CE | County Current Expense | 0.3674210519 | $362,164 | $362,164 | $133.07 | | |
| ISLANDEMS | Hospital GEN (EMS) | 0.4952018576 | $362,164 | $362,164 | $179.34 | | |
| LIB | Library Sno-Isle GEN | 0.3039084203 | $362,164 | $362,164 | $110.06 | | |
| NWHIDPRMT | P & R N Whidbey GEN | 0.1990272349 | $362,164 | $362,164 | $72.08 | | |
| SCH201MO | School 201 Enrichment | 2.3851112745 | $362,164 | $362,164 | $863.80 | | |
| ST | State School | 1.4761226122 | $362,164 | $362,164 | $534.60 | | |
| ST2 | State School Part 2 | 0.7953803475 | $362,164 | $362,164 | $288.06 | | |
| | Total Tax Rate: | 9.1310917527 | | | | | |
| | | | | Taxes w/Current Exemptions: | $3,306.94 | | |
| | | | | Taxes w/o Exemptions: | $3,306.94 | | |
Improvement / Building
| Improvement #1: | RESIDENTIAL | State Code: | Y | 1291.0 sqft | Value: | $212,164 |
| Bathrooms: | 1.75 | Bedrooms: | 2 | | Ceiling: | DRYWALL PAINTED | Exterior Wall/Cover: | PLY/HARDBOARD T-111 | | Floor Covering: | CARPET/VINYL 80-20 | Floor Structure: | WOOD W/SUBFLOOR | | Foundation: | CONCRETE | Heating: | BASEBOARD ELECTRIC | | Interior Finish: | DRYWALL PAINT | Plumbing Fixture Cnt: | 9 | | Roof Slope: | FLAT | Roof Structure/Cover: | CJ BUILT-UP ROCK |
|
| | Type | Description | Class CD | Sub Class CD | Year Built | Area |
| | BAS | BASE/MAIN FLOOR | 3 | 0 | 1984 | 1291.0 |
| | OWP | OPEN WOOD PORCH W/STEPS | 3 | 0 | 1984 | 144.0 |
| | OCP | OPEN CARPORT | 3 | 0 | 1984 | 0.0 |
| | UTY | STORAGE/UTILITY | 3 | 0 | 1984 | 0.0 |
| | OP1 | OPEN PORCH SLAB | 3 | 0 | 1984 | 0.0 |
| | OP4 | OPEN PORCH W/CEILING-ROOF | 3 | 0 | 1984 | 0.0 |
Sketch
Property Image
Land
| 1 | 61 | MULTIPLE RESIDENCES | 0.0443 | 1927.61 | 0.00 | 0.00 | 1.00 | $150,000 | $0 |
Roll Value History
| 2026 | N/A | N/A | N/A | N/A | N/A |
| 2025 | $212,164 | $150,000 | $0 | $362,164 | $362,164 |
| 2024 | $219,299 | $150,000 | $0 | $369,299 | $369,299 |
| 2023 | $211,086 | $150,000 | $0 | $361,086 | $361,086 |
| 2022 | $194,102 | $150,000 | $0 | $344,102 | $344,102 |
| 2021 | $171,597 | $100,000 | $0 | $271,597 | $271,597 |
| 2020 | $167,252 | $95,000 | $0 | $262,252 | $262,252 |
| 2019 | $121,020 | $140,000 | $0 | $261,020 | $261,020 |
| 2018 | $121,386 | $65,000 | $0 | $186,386 | $186,386 |
| 2017 | $117,890 | $49,544 | $0 | $167,434 | $167,434 |
| 2016 | $119,489 | $49,544 | $0 | $169,033 | $169,033 |
| 2015 | $121,089 | $49,544 | $0 | $170,633 | $170,633 |
| 2014 | $122,688 | $49,544 | $0 | $172,232 | $172,232 |
| 2013 | $124,287 | $49,544 | $0 | $173,831 | $173,831 |
| 2012 | $120,216 | $49,544 | $0 | $169,760 | $169,760 |
| 2011 | $120,216 | $49,544 | $0 | $169,760 | $169,760 |
| 2010 | $136,990 | $49,544 | $0 | $186,534 | $186,534 |
| 2009 | $142,752 | $75,180 | $0 | $217,932 | $217,932 |
| 2008 | $144,469 | $75,180 | $0 | $219,649 | $219,649 |
| 2007 | $146,185 | $75,180 | $0 | $221,365 | $221,365 |
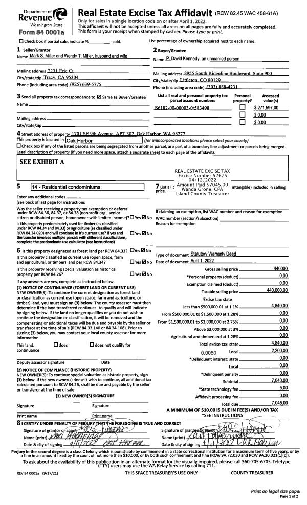
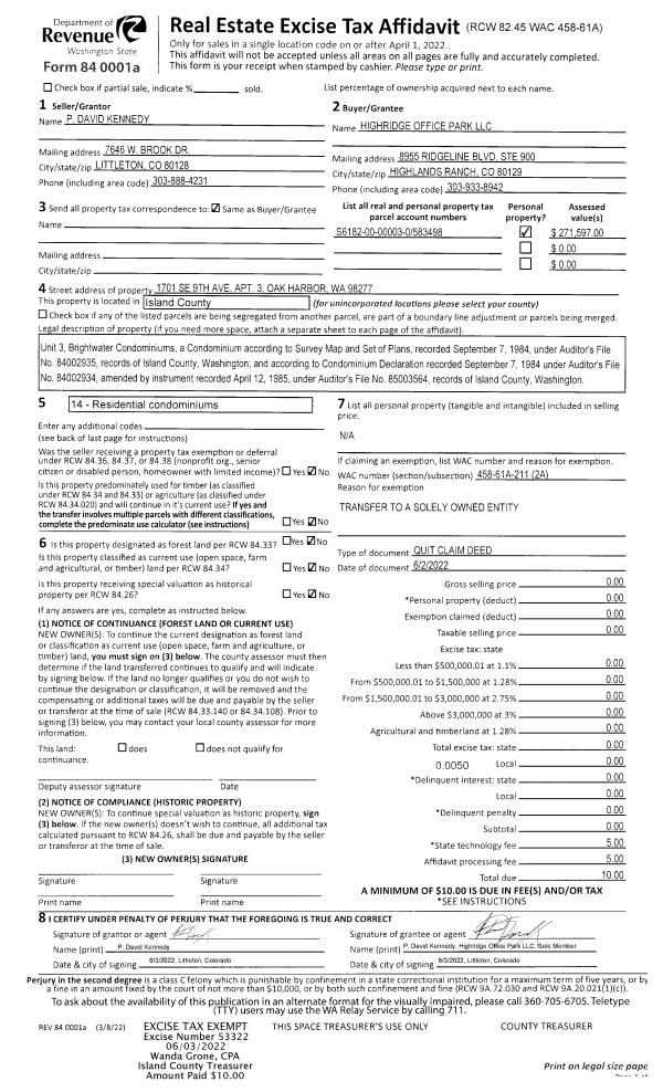
Deed and Sales History
| 1 | 06/02/2022 | QCD | Quit Claim Deed | KENNEDY, P DAVID | HIGHRIDGE OFFICE PARK, LLC | | | $0.00 | 53322 | 4546119 |
| 2 | 04/01/2022 | WD | Warranty Deed | MILLER JTWROS, MARK S | KENNEDY, P DAVID | | | $440,000.00 | 52675 | 4543180 |
| 3 | 03/05/2012 | WD | Warranty Deed | THE MILLER FAMILY TRUST | MILLER JTWROS, MARK S | | | $0.00 | 7104 | 4311577 |
| 4 | 11/19/2006 | QCD | Quit Claim Deed | MILLER, MARK S | THE MILLER FAMILY TRUST, | | | $0.00 | 64970 | 4187748 |
| 5 | 10/12/2004 | WD | Warranty Deed | JENSEN, JON W | MILLER, MARK S | | | $187,500.00 | 44852 | 4115494 |
| 6 | 08/24/1998 | WD | Warranty Deed | JENSEN, JON W | JENSEN, JON W | | | $132,300.00 | 83450 | 98018023 |
| 7 | 07/01/1993 | WD | Warranty Deed | SORRENTINO, FRED A | BARBER, JOEL A | | | $112,500.00 | 32909 | 93014916 |
| 8 | 05/01/1987 | WD | Warranty Deed | RANN, DAVID P | SORRENTINO, FRED A | | | $82,500.00 | 71351 | 87006579 |
| 9 | 09/01/1985 | WD | Warranty Deed | SAXMAN, CHRISTOPHER | RANN, DAVID P | | | $76,000.00 | 52649 | 85010516 |
| 10 | 02/01/1984 | WD | Warranty Deed | Unknown | SAXMAN, CHRISTOPHER | | | $47,000.00 | 40331 | 420832 |
Payout Agreement
| No payout information available.. |