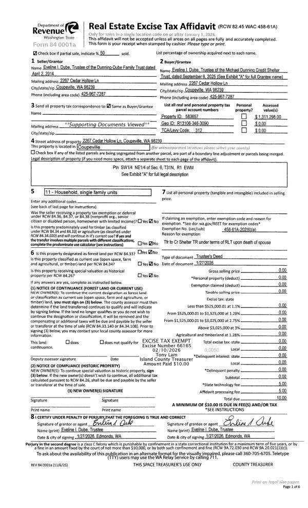
| 1 | 01/27/2026 | TRUSTEED | Trustee's Deed | DUNNING TTEE, MICHAEL J | DUNNING-DUBE FAMILY TRUST | | | $0.00 | 66165 | 4596718 |
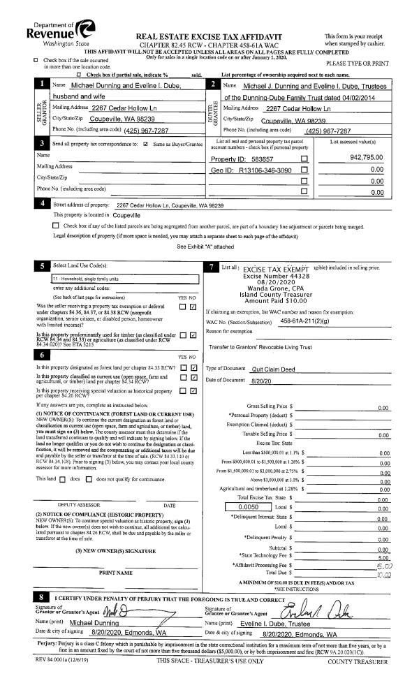
| 2 | 08/20/2020 | QCD | Quit Claim Deed | DUNNING, MICHAEL | DUNNING TTEE, MICHAEL J | | | $0.00 | 44328 | 4494361 |
| 3 | 07/07/2020 | QCD | Quit Claim Deed | DUNNING TTEE, MICHAEL J | DUNNING, MICHAEL | | | $0.00 | 44112 | 4493155 |
| 4 | 02/04/2020 | QCD | Quit Claim Deed | DUNNING, MICHAEL J | DUNNING TTEE, MICHAEL J | | | $0.00 | 42080 | 4481215 |
| 5 | 07/25/2018 | WD | Warranty Deed | HILL TRUSTEE, CORALEE EDYTHE | DUNNING, MICHAEL J | | | $888,000.00 | 35207 | 4448876 |
| 6 | 10/02/2015 | QCD | Quit Claim Deed | HILL TRUSTEE, CORALEE EDYTHE | HILL TRUSTEE, CORALEE EDYTHE | | | $0.00 | 35206 | 4448875 |
| 7 | 07/19/1999 | QCD | Quit Claim Deed | HILL TRUSTEE, CORALEE EDYTHE | HILL TRUSTEE, CORALEE EDYTHE | | | $0.00 | 35205 | 4448874 |
| 8 | 10/02/2015 | QCD | Quit Claim Deed | HILL, LARRY L & CORALEE E | HILL TRUSTEE, CORALEE EDYTHE | | | $0.00 | 21923 | 4388453 |
| 9 | 07/19/1999 | QCD | Quit Claim Deed | HILL, LARRY L & CORALEE E | HILL, LARRY L & CORALEE E | | | $0.00 | 93224 | 99018582 |
| 10 | 11/01/1984 | QCD | Quit Claim Deed | HILL, CORALEE E | HILL, LARRY L | | | $0.00 | 43258 | 84005357 |
| 11 | 09/01/1984 | OTHER | Other - Misc. Documents | HEATH, ALBERT | HEATH, ALBERT | | | $0.00 | 60815 | 0 |
| 12 | 05/01/1984 | QCD | Quit Claim Deed | HILL, CORALEE E | HILL, CORALEE E | | | $0.00 | 41523 | 425224 |
| 13 | 05/01/1984 | WD | Warranty Deed | HEATH, ALBERT | HILL, CORALEE E | | | $65,000.00 | 41522 | 425222 |
| 14 | 02/01/1984 | OTHER | Other - Misc. Documents | Unknown | HEATH, ALBERT | | | $0.00 | 60421 | 0 |