Property
Account |
| Property ID: | 584282 | Abbreviated Legal Description: | LOT 4 SP 83-52.32909.495-5070 V1 SP P287 AF#84003522 |
| Geographic ID: | R32909-479-4910 | Agent Code: | |
| Type: | Real | | |
| Tax Area: | 712 - APPRAISER-S Whid Schl Dist, outside Langley, improved, greater than 1 acre | Land Use Code | 11 |
| Open Space: | N | DFL | N |
| Historic Property: | N | Remodel Property: | N |
| Multi-Family Redevelopment: | N | | |
| Township: | 29 | Section: | 09 |
| Range: | R3 |
Location |
| Address: | 3568 SUNRIDGE RD LANGLEY, WA 98260 | Mapsco: | |
| Neighborhood: | Cycle 4 | Map ID: | 753 |
| Neighborhood CD: | 4 |
Owner |
| Name: | DAVIES, ROBERT GAYLE | Owner ID: | 315189 |
| Mailing Address: | LANA LOUISE DAVIES 3568 SUNRIDGE RD LANGLEY, WA 98260 | % Ownership: | 100.0000000000% |
| | | Exemptions: | |
Taxes and Assessment Details
Values
| (+) Improvement Homesite Value: | + | $0 | |
| (+) Improvement Non-Homesite Value: | + | $313,546 | |
| (+) Land Homesite Value: | + | $0 | |
| (+) Land Non-Homesite Value: | + | $310,000 | |
| (+) Curr Use (HS): | + | $0 | $0 |
| (+) Curr Use (NHS): | + | $0 | $0 |
| | | -------------------------- | |
| (=) Market Value: | = | $623,546 | |
| (–) Productivity Loss: | – | $0 | |
| | | -------------------------- | |
| (=) Subtotal: | = | $623,546 | |
| (+) Senior Appraised Value: | + | $0 | |
| (+) Non-Senior Appraised Value: | + | $623,546 | |
| | | -------------------------- | |
| (=) Total Appraised Value: | = | $623,546 | |
| (–) Senior Exemption Loss: | – | $0 | |
| (–) Exemption Loss: | – | $0 | |
| | | -------------------------- | |
| (=) Taxable Value: | = | $623,546 | |
Taxing Jurisdiction
| Owner: | DAVIES, ROBERT GAYLE | | |
| % Ownership: | 100.0000000000% | | |
| Total Value: | $623,546 | | |
| Tax Area: | 712 - APPRAISER-S Whid Schl Dist, outside Langley, improved, greater than 1 acre |
| CF | Conservation Futures | 0.0313996660 | $623,546 | $623,546 | $19.58 | | |
| FIRE3 | Fire & Rescue Dist #3 S Whidbey GEN | 1.2130821753 | $623,546 | $623,546 | $756.41 | | |
| HOBOND | Hospital BOND | 0.1893405597 | $623,546 | $623,546 | $118.06 | | |
| HOGEN | Hospital GEN | 0.3848777722 | $623,546 | $623,546 | $239.99 | | |
| CE | County Current Expense | 0.3674210519 | $623,546 | $623,546 | $229.10 | | |
| CR | County Roads | 0.4614296361 | $623,546 | $623,546 | $287.72 | | |
| ISLANDEMS | Hospital GEN (EMS) | 0.4952018576 | $623,546 | $623,546 | $308.78 | | |
| LIB | Library Sno-Isle GEN | 0.3039084203 | $623,546 | $623,546 | $189.50 | | |
| PORTWHID | Port of S Whidbey GEN | 0.1086004714 | $623,546 | $623,546 | $67.72 | | |
| SCH206BOND | School 206 BOND | 0.5960237832 | $623,546 | $623,546 | $371.65 | | |
| SCH206CAP | School 206 CP | 0.3066144020 | $623,546 | $623,546 | $191.19 | | |
| SCH206MO | School 206 Enrichment | 0.4808755445 | $623,546 | $623,546 | $299.85 | | |
| ST | State School | 1.4761226122 | $623,546 | $623,546 | $920.43 | | |
| ST2 | State School Part 2 | 0.7953803475 | $623,546 | $623,546 | $495.96 | | |
| SWHIDPRBD | P & R S Whidbey BOND | 0.0144185398 | $623,546 | $623,546 | $8.99 | | |
| SWHIDPRBD3 | P & R S Whidbey BOND3 | 0.1483535547 | $623,546 | $623,546 | $92.51 | | |
| SWHIDPRMT | P & R S Whidbey GEN | 0.4600000000 | $623,546 | $623,546 | $286.83 | | |
| | Total Tax Rate: | 7.8330503944 | | | | | |
| | | | | Taxes w/Current Exemptions: | $4,884.27 | | |
| | | | | Taxes w/o Exemptions: | $4,884.27 | | |
Improvement / Building
| Improvement #1: | RESIDENTIAL | State Code: | Y | 2133.2 sqft | Value: | $313,546 |
| Bathrooms: | 2 | Bedrooms: | 4 | | Ceiling: | DRYWALL PAINTED | Exterior Wall/Cover: | WOOD SIDING | | Floor Covering: | CARPET/VINYL 80-20 | Floor Structure: | WOOD W/SUBFLOOR | | Foundation: | CONCRETE | Heating: | HEAT PUMP | | Interior Finish: | DRYWALL PAINT | Plumbing Fixture Cnt: | 10 | | Roof Slope: | 5" IN 12" | Roof Structure/Cover: | CJ ASPHALT |
|
| | Type | Description | Class CD | Sub Class CD | Year Built | Area |
| | BAS | BASE/MAIN FLOOR | 3 | 0 | 1987 | 2133.2 |
| | OP4 | OPEN PORCH W/CEILING-ROOF | 3 | 0 | 1987 | 10.0 |
| | AGR | ATTACHED GARAGE | 3 | 0 | 1987 | 528.0 |
| | OWP | OPEN WOOD PORCH W/STEPS | 3 | 0 | 1987 | 361.0 |
Sketch
Property Image
Land
| 1 | 18 | AC (02.01-03.00) | 0.0000 | 0.00 | 0.00 | 0.00 | 1.00 | $310,000 | $0 |
Roll Value History
| 2026 | N/A | N/A | N/A | N/A | N/A |
| 2025 | $313,546 | $310,000 | $0 | $623,546 | $623,546 |
| 2024 | $311,758 | $300,000 | $0 | $611,758 | $611,758 |
| 2023 | $315,594 | $290,000 | $0 | $605,594 | $605,594 |
| 2022 | $289,261 | $270,000 | $0 | $559,261 | $559,261 |
| 2021 | $254,543 | $155,000 | $0 | $409,543 | $409,543 |
| 2020 | $232,278 | $165,000 | $0 | $397,278 | $397,278 |
| 2019 | $178,622 | $200,000 | $0 | $378,622 | $378,622 |
| 2018 | $179,186 | $170,000 | $0 | $349,186 | $349,186 |
| 2017 | $179,324 | $150,000 | $0 | $329,324 | $329,324 |
| 2016 | $181,565 | $125,000 | $0 | $306,565 | $306,565 |
| 2015 | $183,805 | $100,000 | $0 | $283,805 | $283,805 |
| 2014 | $186,556 | $95,000 | $0 | $281,556 | $281,556 |
| 2013 | $189,002 | $95,000 | $0 | $284,002 | $284,002 |
| 2012 | $191,448 | $114,750 | $0 | $306,198 | $306,198 |
| 2011 | $193,893 | $135,000 | $0 | $328,893 | $328,893 |
| 2010 | $200,428 | $135,000 | $0 | $335,428 | $335,428 |
| 2009 | $209,110 | $155,000 | $0 | $364,110 | $364,110 |
| 2008 | $197,401 | $160,000 | $0 | $357,401 | $357,401 |
| 2007 | $199,943 | $160,000 | $0 | $359,943 | $359,943 |
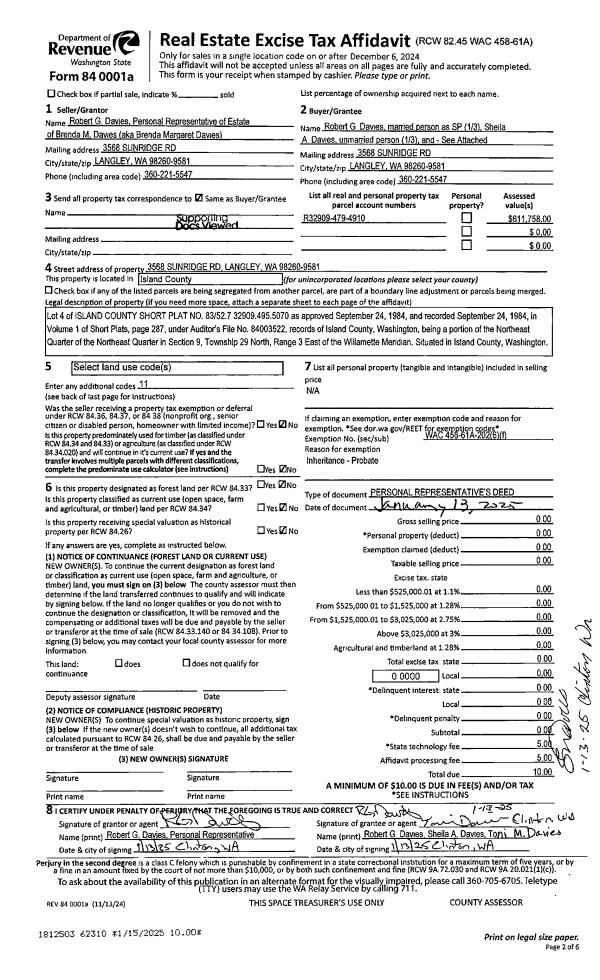
Deed and Sales History
| 1 | 01/21/2025 | QCD | Quit Claim Deed | DAVIES, ROBERT G | DAVIES, ROBERT GAYLE | | | $0.00 | 62362 | 4581468 |
| 2 | 01/13/2025 | QCD | Quit Claim Deed | DAVIES, SHEILA A | DAVIES, ROBERT G | | | $437,556.00 | 62311 | 4581255 |
| 3 | 01/13/2025 | PRD | Personal Representatives Deed | ROBERT G DAVIES, PR | DAVIES, ROBERT G | | | $0.00 | 62310 | 4581254 |
| 4 | 10/01/1989 | WD | Warranty Deed | NIENHUIS, CHARLES A | DAVIES, BRENDA M | | | $134,750.00 | 94603 | 89015002 |
| 5 | 08/01/1986 | WD | Warranty Deed | SMITH, DEBRA | NIENHUIS, CHARLES A | | | $19,000.00 | 62354 | 86010711 |
| 6 | 06/01/1984 | EZ | Easement | Unknown | SMITH, DEBRA | | | $0.00 | 60681 | 416897 |
Payout Agreement
| No payout information available.. |