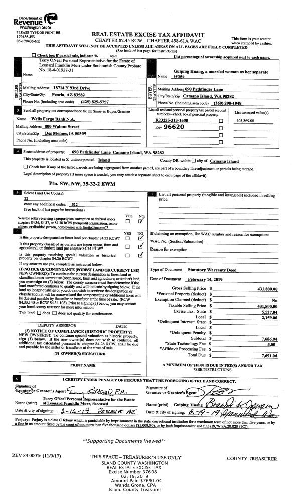
Property
Account |
| Property ID: | 586244 | Abbreviated Legal Description: | LOT H-2 SP 83-80.13215.253-4850/225 4800 V1 SP P297 AF#84004694 |
| Geographic ID: | R13215-248-4960 | Agent Code: | |
| Type: | Real | | |
| Tax Area: | 112 - APPRAISER-OH Schl Dist, outside OH, improved, greater than 1 acre | Land Use Code | 11 |
| Open Space: | N | DFL | N |
| Historic Property: | N | Remodel Property: | N |
| Multi-Family Redevelopment: | N | | |
| Township: | 32 | Section: | 15 |
| Range: | R1 |
Location |
| Address: | 850 BLUEWATER LN OAK HARBOR, WA 98277 | Mapsco: | |
| Neighborhood: | Cycle 1 | Map ID: | 125 |
| Neighborhood CD: | 1 |
Owner |
| Name: | TORDINI, ANTHONY J | Owner ID: | 288335 |
| Mailing Address: | STEPHANIE L TORDINI 850 BLUEWATER LN OAK HARBOR, WA 98277 | % Ownership: | 100.0000000000% |
| | | Exemptions: | |
Taxes and Assessment Details
Values
| (+) Improvement Homesite Value: | + | $0 | |
| (+) Improvement Non-Homesite Value: | + | $435,635 | |
| (+) Land Homesite Value: | + | $0 | |
| (+) Land Non-Homesite Value: | + | $290,000 | |
| (+) Curr Use (HS): | + | $0 | $0 |
| (+) Curr Use (NHS): | + | $0 | $0 |
| | | -------------------------- | |
| (=) Market Value: | = | $725,635 | |
| (–) Productivity Loss: | – | $0 | |
| | | -------------------------- | |
| (=) Subtotal: | = | $725,635 | |
| (+) Senior Appraised Value: | + | $0 | |
| (+) Non-Senior Appraised Value: | + | $725,635 | |
| | | -------------------------- | |
| (=) Total Appraised Value: | = | $725,635 | |
| (–) Senior Exemption Loss: | – | $0 | |
| (–) Exemption Loss: | – | $0 | |
| | | -------------------------- | |
| (=) Taxable Value: | = | $725,635 | |
Taxing Jurisdiction
| Owner: | TORDINI, ANTHONY J | | |
| % Ownership: | 100.0000000000% | | |
| Total Value: | $725,635 | | |
| Tax Area: | 112 - APPRAISER-OH Schl Dist, outside OH, improved, greater than 1 acre |
| CF | Conservation Futures | 0.0313996660 | $725,635 | $725,635 | $22.78 | | |
| CEM1 | Cemetery #1 | 0.0040018856 | $725,635 | $725,635 | $2.90 | | |
| FIRE2 | Fire & Rescue Dist #2 N Whidbey GEN | 0.5381486274 | $725,635 | $725,635 | $390.50 | | |
| HOBOND | Hospital BOND | 0.1893405597 | $725,635 | $725,635 | $137.39 | | |
| HOGEN | Hospital GEN | 0.3848777722 | $725,635 | $725,635 | $279.28 | | |
| CE | County Current Expense | 0.3674210519 | $725,635 | $725,635 | $266.61 | | |
| CR | County Roads | 0.4614296361 | $725,635 | $725,635 | $334.83 | | |
| ISLANDEMS | Hospital GEN (EMS) | 0.4952018576 | $725,635 | $725,635 | $359.34 | | |
| LIB | Library Sno-Isle GEN | 0.3039084203 | $725,635 | $725,635 | $220.53 | | |
| NWHIDPRMT | P & R N Whidbey GEN | 0.1990272349 | $725,635 | $725,635 | $144.42 | | |
| SCH201MO | School 201 Enrichment | 2.3851112745 | $725,635 | $725,635 | $1,730.72 | | |
| ST | State School | 1.4761226122 | $725,635 | $725,635 | $1,071.13 | | |
| ST2 | State School Part 2 | 0.7953803475 | $725,635 | $725,635 | $577.16 | | |
| | Total Tax Rate: | 7.6313709459 | | | | | |
| | | | | Taxes w/Current Exemptions: | $5,537.59 | | |
| | | | | Taxes w/o Exemptions: | $5,537.59 | | |
Improvement / Building
| Improvement #1: | RESIDENTIAL | State Code: | Y | 3212.0 sqft | Value: | $435,635 |
| Bathrooms: | 2.75 | Bedrooms: | 4 | | Ceiling: | DRYWALL PAINTED | Exterior Wall/Cover: | PLY/HARDBOARD T-111 | | Floor Covering: | HARDWOOD/CARP 20-80 | Floor Structure: | SLAB ON GRADE | | Foundation: | SLAB | Heating: | CEILING ELECTRIC | | Interior Finish: | DRYWALL PAINT | Plumbing Fixture Cnt: | 15 | | Roof Slope: | 6" IN 12" | Roof Structure/Cover: | CJ ASPHALT |
|
| | Type | Description | Class CD | Sub Class CD | Year Built | Area |
| | BAS | BASE/MAIN FLOOR | 4 | 0 | 1982 | 1332.0 |
| | AGR | ATTACHED GARAGE | 4 | 0 | 1982 | 864.0 |
| | UPS | UPPER STORY | 4 | 0 | 1982 | 1096.0 |
| | OWP | OPEN WOOD PORCH W/STEPS | 4 | 0 | 1982 | 491.1 |
| | OWP | OPEN WOOD PORCH W/STEPS | 4 | 0 | 1982 | 32.0 |
| | LOF | LOFT | 4 | 0 | 1982 | 384.0 |
| | CPD | OPEN CARPORT DIRT FLOOR | 4 | 0 | 1982 | 168.0 |
| | DGR | DETACHED GARAGE | 4 | 0 | 1982 | 480.0 |
| | OP1 | OPEN PORCH SLAB | 4 | 0 | 1982 | 136.0 |
| | ENP | ENCLOSED PORCH | 4 | 0 | 1982 | 85.0 |
| | LOF | LOFT | 4 | 0 | 1982 | 400.0 |
Sketch
Property Image
Land
| 1 | 18 | AC (02.01-03.00) | 0.0000 | 0.00 | 0.00 | 0.00 | 1.00 | $290,000 | $0 |
Roll Value History
| 2026 | N/A | N/A | N/A | N/A | N/A |
| 2025 | $435,635 | $290,000 | $0 | $725,635 | $725,635 |
| 2024 | $440,994 | $280,000 | $0 | $720,994 | $720,994 |
| 2023 | $435,635 | $280,000 | $0 | $715,635 | $715,635 |
| 2022 | $399,312 | $250,000 | $0 | $649,312 | $649,312 |
| 2021 | $351,449 | $210,000 | $0 | $561,449 | $561,449 |
| 2020 | $342,595 | $175,000 | $0 | $517,595 | $517,595 |
| 2019 | $267,372 | $230,000 | $0 | $497,372 | $497,372 |
| 2018 | $199,292 | $190,000 | $0 | $389,292 | $389,292 |
| 2017 | $174,520 | $190,000 | $0 | $364,520 | $364,520 |
| 2016 | $176,920 | $170,000 | $0 | $346,920 | $346,920 |
| 2015 | $179,319 | $120,000 | $0 | $299,319 | $299,319 |
| 2014 | $181,718 | $120,000 | $0 | $301,718 | $301,718 |
| 2013 | $184,118 | $114,750 | $0 | $298,868 | $298,868 |
| 2012 | $186,518 | $114,750 | $0 | $301,268 | $301,268 |
| 2011 | $145,599 | $135,000 | $0 | $280,599 | $280,599 |
| 2010 | $146,211 | $135,000 | $0 | $281,211 | $281,211 |
| 2009 | $152,456 | $142,000 | $0 | $294,456 | $294,456 |
| 2008 | $158,243 | $182,952 | $0 | $341,195 | $341,195 |
| 2007 | $160,416 | $182,952 | $0 | $343,368 | $343,368 |
Deed and Sales History
| 1 | 12/21/2018 | WD | Warranty Deed | ANDERSON, ERIC W | TORDINI, ANTHONY J | | | $535,000.00 | 37090 | 4457071 |
| 2 | 04/15/2009 | WD | Warranty Deed | ZWETSLOOT, FRANK | ANDERSON, ERIC W | | | $350,000.00 | 90838 | 4249102 |
| 3 | 09/01/1988 | WD | Warranty Deed | BOISVERT, RAYMOND J | ZWETSLOOT, FRANK | | | $76,000.00 | 83268 | 88012180 |
| 4 | 09/01/1987 | WD | Warranty Deed | MANNING, MARK D | BOISVERT, RAYMOND J | | | $67,000.00 | 72700 | 87012200 |
| 5 | 08/01/1985 | DECREE | Divorce Decree/Legal Separation | ANDERSON, CHARLES W | ANDERSON, KATHRYN J | | | $0.00 | 52152 | 85008426 |
| 6 | 08/01/1985 | WD | Warranty Deed | ANDERSON, KATHRYN J | MANNING, MARK D | | | $62,000.00 | 52169 | 85008502 |
| 7 | 01/01/1981 | WD | Warranty Deed | Unknown | ANDERSON, CHARLES W | | | $29,000.00 | 10049 | 378106 |
Payout Agreement
| No payout information available.. |