Property
Account |
| Property ID: | 58760 | Abbreviated Legal Description: | 10 - IN GL1:BG NW CR L34 ADMLTY HTS S25*W356.55' N48 W205.17' S41*W513.9' S156.1 TPB S16.51' N89*W300' NELY ALG WLN GL1 130' S63*E250' TPB TGW EZ TR B SP 76-90 |
| Geographic ID: | R22928-461-5180 | Agent Code: | |
| Type: | Real | | |
| Tax Area: | 710 - APPRAISER-S Whid Schl Dist, outside Langley, improved & 1 acre or less | Land Use Code | 11 |
| Open Space: | N | DFL | N |
| Historic Property: | N | Remodel Property: | N |
| Multi-Family Redevelopment: | N | | |
| Township: | 29 | Section: | 28 |
| Range: | R2 |
Location |
| Address: | 6480 EBB TIDE LN FREELAND, WA 98249 | Mapsco: | |
| Neighborhood: | Cycle 3 | Map ID: | 350 |
| Neighborhood CD: | 3 |
Owner |
| Name: | HERRIN, ROBERT J | Owner ID: | 14731 |
| Mailing Address: | PO BOX 643 FREELAND, WA 98249 | % Ownership: | 100.0000000000% |
| | | Exemptions: | |
Taxes and Assessment Details
Values
| (+) Improvement Homesite Value: | + | $0 | |
| (+) Improvement Non-Homesite Value: | + | $468,207 | |
| (+) Land Homesite Value: | + | $0 | |
| (+) Land Non-Homesite Value: | + | $1,300,580 | |
| (+) Curr Use (HS): | + | $0 | $0 |
| (+) Curr Use (NHS): | + | $0 | $0 |
| | | -------------------------- | |
| (=) Market Value: | = | $1,768,787 | |
| (–) Productivity Loss: | – | $0 | |
| | | -------------------------- | |
| (=) Subtotal: | = | $1,768,787 | |
| (+) Senior Appraised Value: | + | $0 | |
| (+) Non-Senior Appraised Value: | + | $1,768,787 | |
| | | -------------------------- | |
| (=) Total Appraised Value: | = | $1,768,787 | |
| (–) Senior Exemption Loss: | – | $0 | |
| (–) Exemption Loss: | – | $0 | |
| | | -------------------------- | |
| (=) Taxable Value: | = | $1,768,787 | |
Taxing Jurisdiction
| Owner: | HERRIN, ROBERT J | | |
| % Ownership: | 100.0000000000% | | |
| Total Value: | $1,768,787 | | |
| Tax Area: | 710 - APPRAISER-S Whid Schl Dist, outside Langley, improved & 1 acre or less |
| CF | Conservation Futures | 0.0313996660 | $1,768,787 | $1,768,787 | $55.54 | | |
| FIRE3 | Fire & Rescue Dist #3 S Whidbey GEN | 1.2130821753 | $1,768,787 | $1,768,787 | $2,145.68 | | |
| HOBOND | Hospital BOND | 0.1893405597 | $1,768,787 | $1,768,787 | $334.90 | | |
| HOGEN | Hospital GEN | 0.3848777722 | $1,768,787 | $1,768,787 | $680.77 | | |
| CE | County Current Expense | 0.3674210519 | $1,768,787 | $1,768,787 | $649.89 | | |
| CR | County Roads | 0.4614296361 | $1,768,787 | $1,768,787 | $816.17 | | |
| ISLANDEMS | Hospital GEN (EMS) | 0.4952018576 | $1,768,787 | $1,768,787 | $875.91 | | |
| LIB | Library Sno-Isle GEN | 0.3039084203 | $1,768,787 | $1,768,787 | $537.55 | | |
| PORTWHID | Port of S Whidbey GEN | 0.1086004714 | $1,768,787 | $1,768,787 | $192.09 | | |
| SCH206BOND | School 206 BOND | 0.5960237832 | $1,768,787 | $1,768,787 | $1,054.24 | | |
| SCH206CAP | School 206 CP | 0.3066144020 | $1,768,787 | $1,768,787 | $542.34 | | |
| SCH206MO | School 206 Enrichment | 0.4808755445 | $1,768,787 | $1,768,787 | $850.57 | | |
| ST | State School | 1.4761226122 | $1,768,787 | $1,768,787 | $2,610.95 | | |
| ST2 | State School Part 2 | 0.7953803475 | $1,768,787 | $1,768,787 | $1,406.86 | | |
| SWHIDPRBD | P & R S Whidbey BOND | 0.0144185398 | $1,768,787 | $1,768,787 | $25.50 | | |
| SWHIDPRBD3 | P & R S Whidbey BOND3 | 0.1483535547 | $1,768,787 | $1,768,787 | $262.41 | | |
| SWHIDPRMT | P & R S Whidbey GEN | 0.4600000000 | $1,768,787 | $1,768,787 | $813.64 | | |
| | Total Tax Rate: | 7.8330503944 | | | | | |
| | | | | Taxes w/Current Exemptions: | $13,855.01 | | |
| | | | | Taxes w/o Exemptions: | $13,855.01 | | |
Improvement / Building
| Improvement #1: | RESIDENTIAL | State Code: | Y | 2370.5 sqft | Value: | $468,207 |
| Bathrooms: | 2 | Bedrooms: | 2 | | Ceiling: | BEAM PAINTED | Exterior Wall/Cover: | SHINGLE | | Floor Covering: | HARDWOOD/CARP 20-80 | Floor Structure: | WOOD W/SUBFLOOR | | Foundation: | CONCRETE | Heating: | FHA GAS | | Interior Finish: | DRYWALL PAINT | Plumbing Fixture Cnt: | 10 | | Roof Slope: | 8" IN 12" | Roof Structure/Cover: | BEAM WOOD SHINGLE |
|
| | Type | Description | Class CD | Sub Class CD | Year Built | Area |
| | BAS | BASE/MAIN FLOOR | 4 | 0 | 1999 | 1456.1 |
| | OCP | OPEN CARPORT | 4 | 0 | 1999 | 176.7 |
| | UPS | UPPER STORY | 4 | 0 | 1999 | 914.4 |
| | OWP | OPEN WOOD PORCH W/STEPS | 4 | 0 | 1999 | 316.2 |
| | OWP | OPEN WOOD PORCH W/STEPS | 4 | 0 | 1999 | 32.0 |
| | OWP | OPEN WOOD PORCH W/STEPS | 4 | 0 | 1999 | 275.8 |
| | OWC | OPEN WOOD PORCH W/STEPS/ROOF/C | 4 | 0 | 1999 | 36.1 |
| | OWC | OPEN WOOD PORCH W/STEPS/ROOF/C | 4 | 0 | 1999 | 48.0 |
Sketch
Property Image
Land
| 1 | LB | LOW BANK | 0.3800 | 16552.80 | 58.00 | 0.00 | 1.00 | $1,300,000 | $0 |
| 2 | 55 | TIDES | 0.0000 | 0.00 | 58.00 | 0.00 | 1.00 | $580 | $0 |
Roll Value History
| 2026 | N/A | N/A | N/A | N/A | N/A |
| 2025 | $468,207 | $1,300,580 | $0 | $1,768,787 | $1,768,787 |
| 2024 | $466,609 | $1,100,580 | $0 | $1,567,189 | $1,567,189 |
| 2023 | $472,283 | $1,100,580 | $0 | $1,572,863 | $1,572,863 |
| 2022 | $432,790 | $1,050,580 | $0 | $1,483,370 | $1,483,370 |
| 2021 | $380,815 | $850,580 | $0 | $1,231,395 | $1,231,395 |
| 2020 | $371,712 | $750,580 | $0 | $1,122,292 | $1,122,292 |
| 2019 | $266,116 | $800,580 | $0 | $1,066,696 | $1,066,696 |
| 2018 | $267,111 | $700,580 | $0 | $967,691 | $967,691 |
| 2017 | $268,753 | $700,580 | $0 | $969,333 | $969,333 |
| 2016 | $271,991 | $700,580 | $0 | $972,571 | $972,571 |
| 2015 | $275,229 | $700,580 | $0 | $975,809 | $975,809 |
| 2014 | $278,466 | $700,580 | $0 | $979,046 | $979,046 |
| 2013 | $279,341 | $660,369 | $0 | $939,710 | $939,710 |
| 2012 | $282,628 | $660,369 | $0 | $942,997 | $942,997 |
| 2011 | $285,915 | $660,369 | $0 | $946,284 | $946,284 |
| 2010 | $296,346 | $660,369 | $0 | $956,715 | $956,715 |
| 2009 | $308,935 | $759,034 | $0 | $1,067,969 | $1,067,969 |
| 2008 | $312,598 | $983,489 | $0 | $1,296,087 | $1,296,087 |
| 2007 | $315,946 | $983,083 | $0 | $1,299,029 | $1,299,029 |
Deed and Sales History
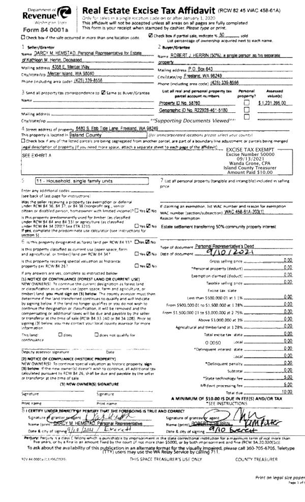
| 1 | 09/10/2021 | WD | Warranty Deed | HERRIN, ROBERT J | HERRIN, ROBERT J | | | $0.00 | 50000 | 4528939 |
| 2 | 10/01/1982 | EXECUTORD | Executor Deed | HERRIN, ROBERT J | PETOSA, MARY J | | | $0.00 | 22453 | 401618 |
| 3 | 06/01/1980 | EXECUTORD | Executor Deed | PETOSA, MARY J | HERRIN, ROBERT J | | | $99,500.00 | 2156 | 370460 |
| 4 | 04/01/1977 | EXECUTORD | Executor Deed | Unknown | PETOSA, MARY J | | | $0.00 | 71287 | 0 |
Payout Agreement
| No payout information available.. |