Property
Account |
| Property ID: | 589456 | Abbreviated Legal Description: | 7.0300 Acres ins Section 26s Township 33s Range R2s LOT B BLA 024-20 AF#4482875;s |
| Geographic ID: | R23326-353-0800 | Agent Code: | |
| Type: | Real | | |
| Tax Area: | 112 - APPRAISER-OH Schl Dist, outside OH, improved, greater than 1 acre | Land Use Code | 11 |
| Open Space: | N | DFL | N |
| Historic Property: | N | Remodel Property: | N |
| Multi-Family Redevelopment: | N | | |
| Township: | 33 | Section: | 26 |
| Range: | R2 |
Location |
| Address: | 3096 BARONES PLACE OAK HARBOR, WA 98277 | Mapsco: | |
| Neighborhood: | Cycle 6 | Map ID: | 625 |
| Neighborhood CD: | 6 |
Owner |
| Name: | SCHNEIDER, DAVID WAYNE | Owner ID: | 303586 |
| Mailing Address: | NAOMI GAMBOA-SCHNEIDER 3096 BARONES PL OAK HABOR, WA 98277 | % Ownership: | 100.0000000000% |
| | | Exemptions: | |
Taxes and Assessment Details
Values
| (+) Improvement Homesite Value: | + | $0 | |
| (+) Improvement Non-Homesite Value: | + | $574,106 | |
| (+) Land Homesite Value: | + | $0 | |
| (+) Land Non-Homesite Value: | + | $300,000 | |
| (+) Curr Use (HS): | + | $0 | $0 |
| (+) Curr Use (NHS): | + | $0 | $0 |
| | | -------------------------- | |
| (=) Market Value: | = | $874,106 | |
| (–) Productivity Loss: | – | $0 | |
| | | -------------------------- | |
| (=) Subtotal: | = | $874,106 | |
| (+) Senior Appraised Value: | + | $0 | |
| (+) Non-Senior Appraised Value: | + | $874,106 | |
| | | -------------------------- | |
| (=) Total Appraised Value: | = | $874,106 | |
| (–) Senior Exemption Loss: | – | $0 | |
| (–) Exemption Loss: | – | $0 | |
| | | -------------------------- | |
| (=) Taxable Value: | = | $874,106 | |
Taxing Jurisdiction
| Owner: | SCHNEIDER, DAVID WAYNE | | |
| % Ownership: | 100.0000000000% | | |
| Total Value: | $874,106 | | |
| Tax Area: | 112 - APPRAISER-OH Schl Dist, outside OH, improved, greater than 1 acre |
| CF | Conservation Futures | 0.0313996660 | $874,106 | $874,106 | $27.45 | | |
| CEM1 | Cemetery #1 | 0.0040018856 | $874,106 | $874,106 | $3.50 | | |
| FIRE2 | Fire & Rescue Dist #2 N Whidbey GEN | 0.5381486274 | $874,106 | $874,106 | $470.40 | | |
| HOBOND | Hospital BOND | 0.1893405597 | $874,106 | $874,106 | $165.50 | | |
| HOGEN | Hospital GEN | 0.3848777722 | $874,106 | $874,106 | $336.42 | | |
| CE | County Current Expense | 0.3674210519 | $874,106 | $874,106 | $321.16 | | |
| CR | County Roads | 0.4614296361 | $874,106 | $874,106 | $403.34 | | |
| ISLANDEMS | Hospital GEN (EMS) | 0.4952018576 | $874,106 | $874,106 | $432.86 | | |
| LIB | Library Sno-Isle GEN | 0.3039084203 | $874,106 | $874,106 | $265.65 | | |
| NWHIDPRMT | P & R N Whidbey GEN | 0.1990272349 | $874,106 | $874,106 | $173.97 | | |
| SCH201MO | School 201 Enrichment | 2.3851112745 | $874,106 | $874,106 | $2,084.84 | | |
| ST | State School | 1.4761226122 | $874,106 | $874,106 | $1,290.29 | | |
| ST2 | State School Part 2 | 0.7953803475 | $874,106 | $874,106 | $695.25 | | |
| | Total Tax Rate: | 7.6313709459 | | | | | |
| | | | | Taxes w/Current Exemptions: | $6,670.63 | | |
| | | | | Taxes w/o Exemptions: | $6,670.63 | | |
Improvement / Building
| Improvement #1: | RESIDENTIAL | State Code: | Y | 2817.2 sqft | Value: | $574,106 |
| Bathrooms: | 3 | Bedrooms: | 3 | | Ceiling: | DRYWALL PAINTED | Exterior Wall/Cover: | PLY/HARDBOARD T-111 | | Floor Covering: | CARPET/VINYL 60-40 | Floor Structure: | WOOD W/SUBFLOOR | | Foundation: | CONCRETE | Heating: | FHA GAS | | Interior Finish: | DRYWALL PAINT | Plumbing Fixture Cnt: | 13 | | Roof Slope: | 6" IN 12" | Roof Structure/Cover: | CJ ASPHALT |
|
| | Type | Description | Class CD | Sub Class CD | Year Built | Area |
| | BAS | BASE/MAIN FLOOR | 4 | 0 | 2000 | 1667.1 |
| | AGR | ATTACHED GARAGE | 4 | 0 | 2000 | 532.4 |
| | UPS | UPPER STORY | 4 | 0 | 2000 | 1150.1 |
| | OWP | OPEN WOOD PORCH W/STEPS | 4 | 0 | 2000 | 100.0 |
| | BAW | BALCONY WOOD RAIL | 4 | 0 | 2000 | 180.0 |
| | UTY | STORAGE/UTILITY | 4 | 0 | 2000 | 1760.0 |
| | OP1 | OPEN PORCH SLAB | 4 | 0 | 2000 | 619.6 |
| | CPD | OPEN CARPORT DIRT FLOOR | 4 | 0 | 2000 | 288.0 |
| | UTY | STORAGE/UTILITY | 4 | 0 | 2000 | 320.0 |
| | CPD | OPEN CARPORT DIRT FLOOR | 4 | 0 | 2000 | 288.0 |
Sketch
Property Image
Land
| 1 | 32 | AC (03.01-09.99) | 7.0300 | 306226.80 | 0.00 | 0.00 | 1.00 | $300,000 | $0 |
Roll Value History
| 2026 | N/A | N/A | N/A | N/A | N/A |
| 2025 | $574,106 | $300,000 | $0 | $874,106 | $874,106 |
| 2024 | $580,764 | $280,000 | $0 | $860,764 | $860,764 |
| 2023 | $587,420 | $270,000 | $0 | $857,420 | $857,420 |
| 2022 | $506,397 | $240,000 | $0 | $746,397 | $746,397 |
| 2021 | $445,447 | $160,000 | $0 | $605,447 | $605,447 |
| 2020 | $434,697 | $140,000 | $0 | $574,697 | $574,697 |
| 2019 | $343,378 | $200,000 | $0 | $543,378 | $543,378 |
| 2018 | $290,479 | $170,000 | $0 | $460,479 | $460,479 |
| 2017 | $291,864 | $150,000 | $0 | $441,864 | $441,864 |
| 2016 | $293,805 | $150,000 | $0 | $443,805 | $443,805 |
| 2015 | $297,105 | $155,000 | $0 | $452,105 | $452,105 |
| 2014 | $300,407 | $155,000 | $0 | $455,407 | $455,407 |
| 2013 | $270,508 | $131,750 | $0 | $402,258 | $402,258 |
| 2012 | $272,897 | $104,625 | $0 | $377,522 | $377,522 |
| 2011 | $275,288 | $116,250 | $0 | $391,538 | $391,538 |
| 2010 | $287,395 | $116,250 | $0 | $403,645 | $403,645 |
| 2009 | $297,637 | $170,500 | $0 | $468,137 | $468,137 |
| 2008 | $306,029 | $224,750 | $0 | $530,779 | $530,779 |
| 2007 | $306,988 | $232,500 | $0 | $539,488 | $539,488 |
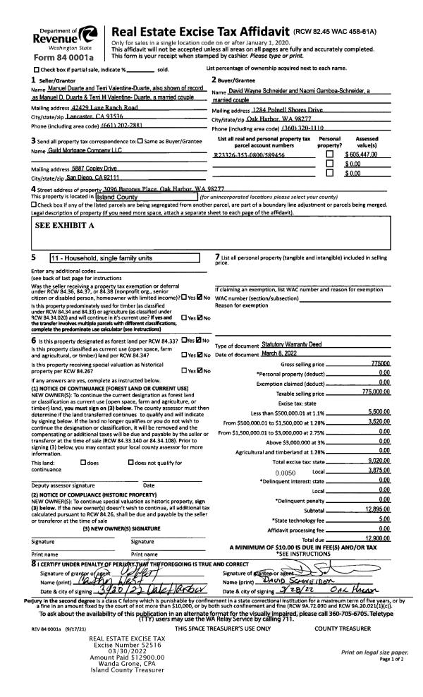
Deed and Sales History
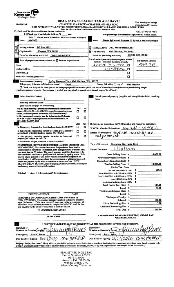
| 1 | 03/08/2022 | WD | Warranty Deed | DUARTE, MANUEL | SCHNEIDER, DAVID WAYNE | | | $775,000.00 | 52516 | 4542474 |
| 2 | 01/28/2020 | WD | Warranty Deed | HOORT, ERIC CAMERON | DUARTE, MANUEL | | | $616,000.00 | 42542 | 4484010 |
| 3 | 01/28/2020 | WD | Warranty Deed | HOORT, ERIC CAMERON | HOORT, ERIC CAMERON | | | $10,000.00 | 42539 | 4483997 |
| 4 | 08/13/2018 | WD | Warranty Deed | BOUWENS, JOHN MICHEL | HOORT, ERIC CAMERON | | | $625,000.00 | 35557 | 4450331 |
| 5 | 02/12/2014 | WD | Warranty Deed | JOHNSON, ROBERT M | BOUWENS, JOHN MICHEL | | | $458,000.00 | 14300 | 4355332 |
| 6 | 10/01/2004 | WD | Warranty Deed | BARONE, PROCOLO | JOHNSON, ROBERT M | | | $350,000.00 | 44652 | 4114533 |
| 7 | 03/01/1988 | WD | Warranty Deed | DOWLER, RALPH J | BARONE, PROCOLO | | | $43,800.00 | 80925 | 88003628 |
| 8 | 01/01/1900 | OTHER | Other - Misc. Documents | Unknown | DOWLER, RALPH J | | | $0.00 | 22328 | 401112 |
Payout Agreement
| No payout information available.. |