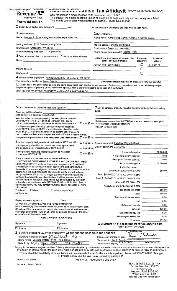
Property
Account |
| Property ID: | 58993 | Abbreviated Legal Description: | 27 - PT S150' OF GL4 LY W OF CO RD EX W120' ALSO EX PT LY ELY OF WLN TR AF#195587 PT DRAINFIELD FOR 400-2350 AF#90021370 TGW & SUB EZ AF#94002806-7- 8 |
| Geographic ID: | R23004-402-1600 | Agent Code: | |
| Type: | Real | | |
| Tax Area: | 319 - APPRAISER-Cpvl Schl Dist, outside Cpvl, vacant & 50 acres or less | Land Use Code | 91 |
| Open Space: | N | DFL | N |
| Historic Property: | N | Remodel Property: | N |
| Multi-Family Redevelopment: | N | | |
| Township: | 30 | Section: | 04 |
| Range: | R2 |
Location |
| Address: | | Mapsco: | |
| Neighborhood: | Cycle 3 | Map ID: | 354 |
| Neighborhood CD: | 3 |
Owner |
| Name: | ARMATIS, KIM F | Owner ID: | 275405 |
| Mailing Address: | MARY S ARMATIS 2482 NORTH BLUFF RD GREENBANK, WA 98253 | % Ownership: | 100.0000000000% |
| | | Exemptions: | |
Taxes and Assessment Details
Values
| (+) Improvement Homesite Value: | + | $0 | |
| (+) Improvement Non-Homesite Value: | + | $0 | |
| (+) Land Homesite Value: | + | $0 | |
| (+) Land Non-Homesite Value: | + | $15,000 | |
| (+) Curr Use (HS): | + | $0 | $0 |
| (+) Curr Use (NHS): | + | $0 | $0 |
| | | -------------------------- | |
| (=) Market Value: | = | $15,000 | |
| (–) Productivity Loss: | – | $0 | |
| | | -------------------------- | |
| (=) Subtotal: | = | $15,000 | |
| (+) Senior Appraised Value: | + | $0 | |
| (+) Non-Senior Appraised Value: | + | $15,000 | |
| | | -------------------------- | |
| (=) Total Appraised Value: | = | $15,000 | |
| (–) Senior Exemption Loss: | – | $0 | |
| (–) Exemption Loss: | – | $0 | |
| | | -------------------------- | |
| (=) Taxable Value: | = | $15,000 | |
Taxing Jurisdiction
| Owner: | ARMATIS, KIM F | | |
| % Ownership: | 100.0000000000% | | |
| Total Value: | $15,000 | | |
| Tax Area: | 319 - APPRAISER-Cpvl Schl Dist, outside Cpvl, vacant & 50 acres or less |
| CF | Conservation Futures | 0.0313996660 | $15,000 | $15,000 | $0.47 | | |
| CEM2 | Cemetery #2 | 0.0092609791 | $15,000 | $15,000 | $0.14 | | |
| HOBOND | Hospital BOND | 0.1893405597 | $15,000 | $15,000 | $2.84 | | |
| HOGEN | Hospital GEN | 0.3848777722 | $15,000 | $15,000 | $5.77 | | |
| CE | County Current Expense | 0.3674210519 | $15,000 | $15,000 | $5.51 | | |
| CR | County Roads | 0.4614296361 | $15,000 | $15,000 | $6.92 | | |
| ISLANDEMS | Hospital GEN (EMS) | 0.4952018576 | $15,000 | $15,000 | $7.43 | | |
| LIB | Library Sno-Isle GEN | 0.3039084203 | $15,000 | $15,000 | $4.56 | | |
| LIBCAP | Library Sno-Isle BOND (Cap Fac Imp Area) | 0.0528562629 | $15,000 | $15,000 | $0.79 | | |
| POCOUP | Port of Coupeville GEN | 0.1065226063 | $15,000 | $15,000 | $1.60 | | |
| POCOUPIDD | Port of Coupeville IDD | 0.3353038577 | $15,000 | $15,000 | $5.03 | | |
| COUPSDTECH | School 204 CP (TECH) | 0.1215123397 | $15,000 | $15,000 | $1.82 | | |
| SCH204MO | School 204 Enrichment | 0.6416662518 | $15,000 | $15,000 | $9.62 | | |
| ST | State School | 1.4761226122 | $15,000 | $15,000 | $22.14 | | |
| ST2 | State School Part 2 | 0.7953803475 | $15,000 | $15,000 | $11.93 | | |
| | Total Tax Rate: | 5.7722042210 | | | | | |
| | | | | Taxes w/Current Exemptions: | $86.57 | | |
| | | | | Taxes w/o Exemptions: | $86.57 | | |
Improvement / Building
Sketch
| No sketches available for this property. |
Property Image
Land
| 1 | 17 | AC (01.01-02.00) | 1.1400 | 49658.40 | 0.00 | 0.00 | 1.00 | $15,000 | $0 |
Roll Value History
| 2026 | N/A | N/A | N/A | N/A | N/A |
| 2025 | $0 | $15,000 | $0 | $15,000 | $15,000 |
| 2024 | $0 | $15,000 | $0 | $15,000 | $15,000 |
| 2023 | $0 | $15,000 | $0 | $15,000 | $15,000 |
| 2022 | $0 | $15,000 | $0 | $15,000 | $15,000 |
| 2021 | $0 | $7,000 | $0 | $7,000 | $7,000 |
| 2020 | $0 | $7,000 | $0 | $7,000 | $7,000 |
| 2019 | $0 | $5,000 | $0 | $5,000 | $5,000 |
| 2018 | $0 | $5,000 | $0 | $5,000 | $5,000 |
| 2017 | $0 | $5,000 | $0 | $5,000 | $5,000 |
| 2016 | $0 | $5,000 | $0 | $5,000 | $5,000 |
| 2015 | $0 | $6,500 | $0 | $6,500 | $6,500 |
| 2014 | $0 | $6,500 | $0 | $6,500 | $6,500 |
| 2013 | $0 | $6,500 | $0 | $6,500 | $6,500 |
| 2012 | $0 | $6,000 | $0 | $6,000 | $6,000 |
| 2011 | $0 | $6,000 | $0 | $6,000 | $6,000 |
| 2010 | $0 | $6,000 | $0 | $6,000 | $6,000 |
| 2009 | $0 | $7,200 | $0 | $7,200 | $7,200 |
| 2008 | $0 | $7,200 | $0 | $7,200 | $7,200 |
| 2007 | $0 | $6,700 | $0 | $6,700 | $6,700 |
Deed and Sales History
| 1 | 07/25/2022 | WD | Warranty Deed | ROSE, LEONARD T | ARMATIS, KIM F | | | $50,000.00 | 53925 | 4548820 |
| 2 | 01/22/2004 | QCD | Quit Claim Deed | ROSE, LEONARD T | ROSE, LEONARD T | | | $0.00 | 40360 | 4089830 |
| 3 | 03/27/2002 | QCD | Quit Claim Deed | ROSE, DENNIS M | ROSE, LEONARD T | | | $0.00 | 21308 | 4016374 |
| 4 | 08/23/2001 | WD | Warranty Deed | SHOEMAN, RONALD/ELIZABETH | ROSE, DENNIS M | | | $8,147.00 | 13422 | 20042036 |
| 5 | 07/01/1993 | WD | Warranty Deed | BEETHE, EDWIN L | SHOEMAN, RONALD/ELIZABETH | | | $6,700.00 | 40461 | 94002805 |
| 6 | 01/01/1900 | OTHER | Other - Misc. Documents | Unknown | BEETHE, EDWIN L | | | $0.00 | 0 | 0 |
Payout Agreement
| No payout information available.. |