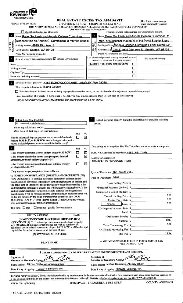
Property
Account |
| Property ID: | 590676 | Abbreviated Legal Description: | NE SW SE TGW & SUB EZ FR 235-3190 & 100-3180 - 1/15/85 |
| Geographic ID: | R32911-115-3480 | Agent Code: | |
| Type: | Real | | |
| Tax Area: | 712 - APPRAISER-S Whid Schl Dist, outside Langley, improved, greater than 1 acre | Land Use Code | 11 |
| Open Space: | N | DFL | N |
| Historic Property: | N | Remodel Property: | N |
| Multi-Family Redevelopment: | N | | |
| Township: | 29 | Section: | 11 |
| Range: | R3 |
Location |
| Address: | 4253 ECHOWOOD LN LANGLEY, WA 98260 | Mapsco: | |
| Neighborhood: | Cycle 4 | Map ID: | 759 |
| Neighborhood CD: | 4 |
Owner |
| Name: | SOUKENIK TTEE, PAVEL | Owner ID: | 284250 |
| Mailing Address: | ANGELA COLLEEN CUMMINGS TTEE 4919 29TH AVE S SEATTLE, WA 98108 | % Ownership: | 100.0000000000% |
| | | Exemptions: | |
Taxes and Assessment Details
Values
| (+) Improvement Homesite Value: | + | $0 | |
| (+) Improvement Non-Homesite Value: | + | $1,127,728 | |
| (+) Land Homesite Value: | + | $0 | |
| (+) Land Non-Homesite Value: | + | $400,000 | |
| (+) Curr Use (HS): | + | $0 | $0 |
| (+) Curr Use (NHS): | + | $0 | $0 |
| | | -------------------------- | |
| (=) Market Value: | = | $1,527,728 | |
| (–) Productivity Loss: | – | $0 | |
| | | -------------------------- | |
| (=) Subtotal: | = | $1,527,728 | |
| (+) Senior Appraised Value: | + | $0 | |
| (+) Non-Senior Appraised Value: | + | $1,527,728 | |
| | | -------------------------- | |
| (=) Total Appraised Value: | = | $1,527,728 | |
| (–) Senior Exemption Loss: | – | $0 | |
| (–) Exemption Loss: | – | $0 | |
| | | -------------------------- | |
| (=) Taxable Value: | = | $1,527,728 | |
Taxing Jurisdiction
| Owner: | SOUKENIK TTEE, PAVEL | | |
| % Ownership: | 100.0000000000% | | |
| Total Value: | $1,527,728 | | |
| Tax Area: | 712 - APPRAISER-S Whid Schl Dist, outside Langley, improved, greater than 1 acre |
| CF | Conservation Futures | 0.0313996660 | $1,527,728 | $1,527,728 | $47.97 | | |
| FIRE3 | Fire & Rescue Dist #3 S Whidbey GEN | 1.2130821753 | $1,527,728 | $1,527,728 | $1,853.26 | | |
| HOBOND | Hospital BOND | 0.1893405597 | $1,527,728 | $1,527,728 | $289.26 | | |
| HOGEN | Hospital GEN | 0.3848777722 | $1,527,728 | $1,527,728 | $587.99 | | |
| CE | County Current Expense | 0.3674210519 | $1,527,728 | $1,527,728 | $561.32 | | |
| CR | County Roads | 0.4614296361 | $1,527,728 | $1,527,728 | $704.94 | | |
| ISLANDEMS | Hospital GEN (EMS) | 0.4952018576 | $1,527,728 | $1,527,728 | $756.53 | | |
| LIB | Library Sno-Isle GEN | 0.3039084203 | $1,527,728 | $1,527,728 | $464.29 | | |
| PORTWHID | Port of S Whidbey GEN | 0.1086004714 | $1,527,728 | $1,527,728 | $165.91 | | |
| SCH206BOND | School 206 BOND | 0.5960237832 | $1,527,728 | $1,527,728 | $910.56 | | |
| SCH206CAP | School 206 CP | 0.3066144020 | $1,527,728 | $1,527,728 | $468.42 | | |
| SCH206MO | School 206 Enrichment | 0.4808755445 | $1,527,728 | $1,527,728 | $734.65 | | |
| ST | State School | 1.4761226122 | $1,527,728 | $1,527,728 | $2,255.11 | | |
| ST2 | State School Part 2 | 0.7953803475 | $1,527,728 | $1,527,728 | $1,215.12 | | |
| SWHIDPRBD | P & R S Whidbey BOND | 0.0144185398 | $1,527,728 | $1,527,728 | $22.03 | | |
| SWHIDPRBD3 | P & R S Whidbey BOND3 | 0.1483535547 | $1,527,728 | $1,527,728 | $226.64 | | |
| SWHIDPRMT | P & R S Whidbey GEN | 0.4600000000 | $1,527,728 | $1,527,728 | $702.75 | | |
| | Total Tax Rate: | 7.8330503944 | | | | | |
| | | | | Taxes w/Current Exemptions: | $11,966.75 | | |
| | | | | Taxes w/o Exemptions: | $11,966.75 | | |
Improvement / Building
| Improvement #1: | RESIDENTIAL | State Code: | Y | 5250.7 sqft | Value: | $1,127,728 |
| Bathrooms: | 3.5 | Bedrooms: | 4 | | Ceiling: | DRYWALL PAINTED | Exterior Wall/Cover: | SHINGLE | | Floor Covering: | HARDWOOD/CARP 60-40 | Floor Structure: | WOOD W/SUBFLOOR | | Foundation: | CONCRETE | Heating: | FHA GAS | | Interior Finish: | DRYWALL PAINT | Plumbing Fixture Cnt: | 21 | | Roof Slope: | 6" IN 12" | Roof Structure/Cover: | STEEL TERNE |
|
| | Type | Description | Class CD | Sub Class CD | Year Built | Area |
| | BAS | BASE/MAIN FLOOR | 5 | 0 | 2000 | 2851.6 |
| | OP3 | OPEN PORCH W/ROOF | 5 | 0 | 2000 | 223.1 |
| | BIG | BUILT IN GARAGE | 5 | 0 | 2000 | 1074.9 |
| | UPS | UPPER STORY | 5 | 0 | 2000 | 1074.9 |
| | UPS | UPPER STORY | 5 | 0 | 2000 | 1324.2 |
| | BAW | BALCONY WOOD RAIL | 5 | 0 | 2000 | 56.0 |
| | BAW | BALCONY WOOD RAIL | 5 | 0 | 2000 | 41.7 |
| | OWP | OPEN WOOD PORCH W/STEPS | 5 | 0 | 2000 | 223.8 |
| | OWP | OPEN WOOD PORCH W/STEPS | 5 | 0 | 2000 | 57.1 |
| | OWP | OPEN WOOD PORCH W/STEPS | 5 | 0 | 2000 | 536.8 |
| | OWC | OPEN WOOD PORCH W/STEPS/ROOF/C | 5 | 0 | 2000 | 162.7 |
Sketch
Property Image
Land
| 1 | 35 | AC (10.00-30.99) | 10.0000 | 435600.00 | 0.00 | 0.00 | 1.00 | $400,000 | $0 |
Roll Value History
| 2026 | N/A | N/A | N/A | N/A | N/A |
| 2025 | $1,127,728 | $400,000 | $0 | $1,527,728 | $1,527,728 |
| 2024 | $1,140,956 | $360,000 | $0 | $1,500,956 | $1,500,956 |
| 2023 | $1,154,184 | $360,000 | $0 | $1,514,184 | $1,514,184 |
| 2022 | $1,057,107 | $350,000 | $0 | $1,407,107 | $1,407,107 |
| 2021 | $929,654 | $250,000 | $0 | $1,179,654 | $1,179,654 |
| 2020 | $866,755 | $250,000 | $0 | $1,116,755 | $1,116,755 |
| 2019 | $798,796 | $300,000 | $0 | $1,098,796 | $1,098,796 |
| 2018 | $801,084 | $245,000 | $0 | $1,046,084 | $1,046,084 |
| 2017 | $706,610 | $200,000 | $0 | $906,610 | $906,610 |
| 2016 | $714,938 | $200,000 | $0 | $914,938 | $914,938 |
| 2015 | $723,268 | $200,000 | $0 | $923,268 | $923,268 |
| 2014 | $702,267 | $150,000 | $0 | $852,267 | $852,267 |
| 2013 | $710,421 | $150,000 | $0 | $860,421 | $860,421 |
| 2012 | $718,574 | $150,000 | $0 | $868,574 | $868,574 |
| 2011 | $726,727 | $150,000 | $0 | $876,727 | $876,727 |
| 2010 | $790,557 | $150,000 | $0 | $940,557 | $940,557 |
| 2009 | $823,772 | $180,000 | $0 | $1,003,772 | $1,003,772 |
| 2008 | $851,134 | $203,000 | $0 | $1,054,134 | $1,054,134 |
| 2007 | $851,374 | $203,000 | $0 | $1,054,374 | $1,054,374 |
Deed and Sales History
| 1 | 03/02/2018 | QCD | Quit Claim Deed | CUMMINGS, ANGELA C | SOUKENIK TTEE, PAVEL | | | $0.00 | 33303 | 4440848 |
| 2 | 02/08/2018 | WD | Warranty Deed | ANDERSON, DANE F | CUMMINGS, ANGELA C | | | $1,192,633.00 | 32906 | 4438971 |
| 3 | 04/29/1998 | WD | Warranty Deed | ANDERSON, DANE F | ANDERSON, DANE F | | | $155,000.00 | 81886 | 98009970 |
| 4 | 02/01/1993 | WD | Warranty Deed | BELL, RICKEY W | NW, EXCHANGE & | | | $90,000.00 | 30671 | 93003531 |
| 5 | 02/01/1993 | WD | Warranty Deed | NW, EXCHANGE & | FALLON, TOM & | | | $0.00 | 30672 | 93003532 |
| 6 | 08/01/1988 | REC | Real Estate Contract | ERICKSON, ELIZABETH R | BELL, RICKEY W | | | $42,000.00 | 83009 | 88011246 |
| 7 | 12/01/1984 | QCD | Quit Claim Deed | ERICKSON, JOSIAH M | ERICKSON, ELIZABETH R | | | $0.00 | 43685 | 84007065 |
| 8 | 08/01/1984 | QCD | Quit Claim Deed | Unknown | ERICKSON, JOSIAH M | | | $0.00 | 43683 | 84007063 |
| 9 | 01/01/1900 | OTHER | Other - Misc. Documents | FALLON, TOM & | ANDERSON, DANE F | | | $0.00 | 81886 | 98009970 |
Payout Agreement
| No payout information available.. |