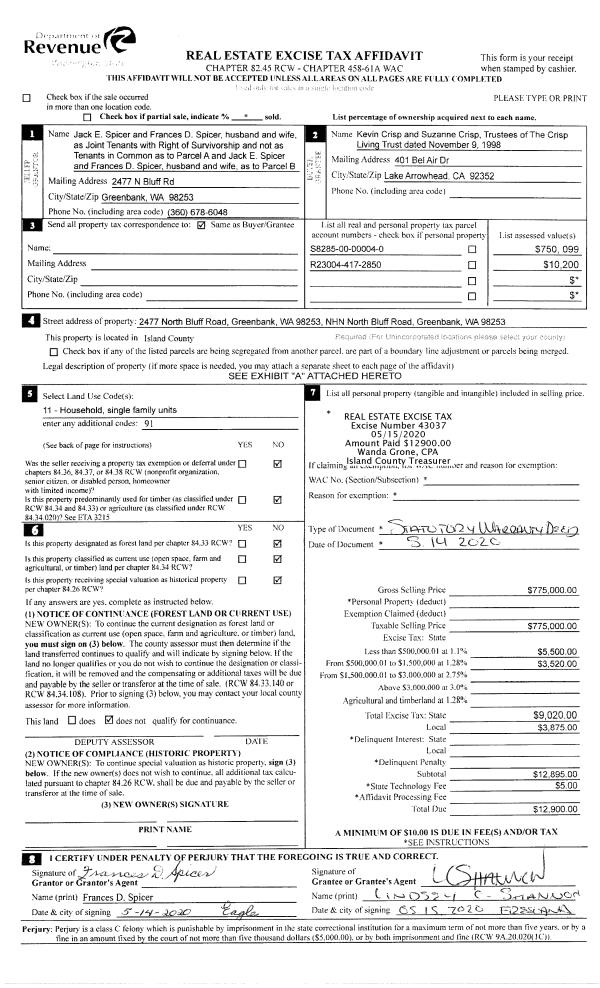
Property
Account |
| Property ID: | 59082 | Abbreviated Legal Description: | 40 - N120' OF S300' OF PT GL4 LY ELY OF LOTS 3, 4 & 5 SURF PARADISE #1 INCL ADJ TIDES & EZ 134D730 |
| Geographic ID: | R23004-417-2850 | Agent Code: | |
| Type: | Real | | |
| Tax Area: | 319 - APPRAISER-Cpvl Schl Dist, outside Cpvl, vacant & 50 acres or less | Land Use Code | 91 |
| Open Space: | N | DFL | N |
| Historic Property: | N | Remodel Property: | N |
| Multi-Family Redevelopment: | N | | |
| Township: | 30 | Section: | 04 |
| Range: | R2 |
Location |
| Address: | NORTH BLUFF RD GREENBANK, WA 98253 | Mapsco: | |
| Neighborhood: | Cycle 3 | Map ID: | 354 |
| Neighborhood CD: | 3 |
Owner |
| Name: | CRISP TTEE, KEVIN | Owner ID: | 294223 |
| Mailing Address: | SUZANNE CRISP, TTEE 2477 NORTH BLUFF RD GREENBANK, WA 98253 | % Ownership: | 100.0000000000% |
| | | Exemptions: | |
Taxes and Assessment Details
Values
| (+) Improvement Homesite Value: | + | $0 | |
| (+) Improvement Non-Homesite Value: | + | $0 | |
| (+) Land Homesite Value: | + | $0 | |
| (+) Land Non-Homesite Value: | + | $10,200 | |
| (+) Curr Use (HS): | + | $0 | $0 |
| (+) Curr Use (NHS): | + | $0 | $0 |
| | | -------------------------- | |
| (=) Market Value: | = | $10,200 | |
| (–) Productivity Loss: | – | $0 | |
| | | -------------------------- | |
| (=) Subtotal: | = | $10,200 | |
| (+) Senior Appraised Value: | + | $0 | |
| (+) Non-Senior Appraised Value: | + | $10,200 | |
| | | -------------------------- | |
| (=) Total Appraised Value: | = | $10,200 | |
| (–) Senior Exemption Loss: | – | $0 | |
| (–) Exemption Loss: | – | $0 | |
| | | -------------------------- | |
| (=) Taxable Value: | = | $10,200 | |
Taxing Jurisdiction
| Owner: | CRISP TTEE, KEVIN | | |
| % Ownership: | 100.0000000000% | | |
| Total Value: | $10,200 | | |
| Tax Area: | 319 - APPRAISER-Cpvl Schl Dist, outside Cpvl, vacant & 50 acres or less |
| CF | Conservation Futures | 0.0313996660 | $10,200 | $10,200 | $0.32 | | |
| CEM2 | Cemetery #2 | 0.0092609791 | $10,200 | $10,200 | $0.09 | | |
| HOBOND | Hospital BOND | 0.1893405597 | $10,200 | $10,200 | $1.93 | | |
| HOGEN | Hospital GEN | 0.3848777722 | $10,200 | $10,200 | $3.93 | | |
| CE | County Current Expense | 0.3674210519 | $10,200 | $10,200 | $3.75 | | |
| CR | County Roads | 0.4614296361 | $10,200 | $10,200 | $4.71 | | |
| ISLANDEMS | Hospital GEN (EMS) | 0.4952018576 | $10,200 | $10,200 | $5.05 | | |
| LIB | Library Sno-Isle GEN | 0.3039084203 | $10,200 | $10,200 | $3.10 | | |
| LIBCAP | Library Sno-Isle BOND (Cap Fac Imp Area) | 0.0528562629 | $10,200 | $10,200 | $0.54 | | |
| POCOUP | Port of Coupeville GEN | 0.1065226063 | $10,200 | $10,200 | $1.09 | | |
| POCOUPIDD | Port of Coupeville IDD | 0.3353038577 | $10,200 | $10,200 | $3.42 | | |
| COUPSDTECH | School 204 CP (TECH) | 0.1215123397 | $10,200 | $10,200 | $1.24 | | |
| SCH204MO | School 204 Enrichment | 0.6416662518 | $10,200 | $10,200 | $6.54 | | |
| ST | State School | 1.4761226122 | $10,200 | $10,200 | $15.06 | | |
| ST2 | State School Part 2 | 0.7953803475 | $10,200 | $10,200 | $8.11 | | |
| | Total Tax Rate: | 5.7722042210 | | | | | |
| | | | | Taxes w/Current Exemptions: | $58.88 | | |
| | | | | Taxes w/o Exemptions: | $58.88 | | |
Improvement / Building
Sketch
| No sketches available for this property. |
Property Image
Land
| 1 | HB | HIGH BLUFF | 0.7200 | 31363.20 | 120.00 | 0.00 | 1.00 | $9,000 | $0 |
| 2 | 55 | TIDES | 0.0000 | 0.00 | 120.00 | 0.00 | 1.00 | $1,200 | $0 |
Roll Value History
| 2026 | N/A | N/A | N/A | N/A | N/A |
| 2025 | $0 | $10,200 | $0 | $10,200 | $10,200 |
| 2024 | $0 | $10,200 | $0 | $10,200 | $10,200 |
| 2023 | $0 | $10,200 | $0 | $10,200 | $10,200 |
| 2022 | $0 | $10,200 | $0 | $10,200 | $10,200 |
| 2021 | $0 | $10,200 | $0 | $10,200 | $10,200 |
| 2020 | $0 | $10,200 | $0 | $10,200 | $10,200 |
| 2019 | $0 | $10,200 | $0 | $10,200 | $10,200 |
| 2018 | $0 | $6,475 | $0 | $6,475 | $6,475 |
| 2017 | $0 | $6,475 | $0 | $6,475 | $6,475 |
| 2016 | $0 | $6,475 | $0 | $6,475 | $6,475 |
| 2015 | $0 | $6,475 | $0 | $6,475 | $6,475 |
| 2014 | $0 | $6,475 | $0 | $6,475 | $6,475 |
| 2013 | $0 | $6,475 | $0 | $6,475 | $6,475 |
| 2012 | $0 | $6,475 | $0 | $6,475 | $6,475 |
| 2011 | $0 | $6,475 | $0 | $6,475 | $6,475 |
| 2010 | $0 | $6,475 | $0 | $6,475 | $6,475 |
| 2009 | $0 | $7,605 | $0 | $7,605 | $7,605 |
| 2008 | $0 | $9,931 | $0 | $9,931 | $9,931 |
| 2007 | $0 | $8,890 | $0 | $8,890 | $8,890 |
Deed and Sales History
| 1 | 05/14/2020 | WD | Warranty Deed | SPICER, JACK E | CRISP TTEE, KEVIN | | | $775,000.00 | 43037 | 4486719 |
|   | |
| 2 | 09/01/1989 | WD | Warranty Deed | PETERSON, ESTHER | SPICER, JACK E | | | $3,000.00 | 94351 | 89014232 |
| 3 | 01/01/1900 | OTHER | Other - Misc. Documents | Unknown | PETERSON, ESTHER | | | $0.00 | 0 | 0 |
Payout Agreement
| No payout information available.. |