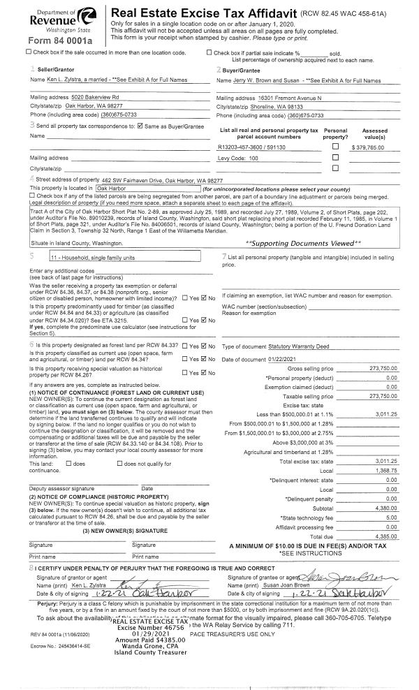
Property
Account |
| Property ID: | 591130 | Abbreviated Legal Description: | TRACT A OH SP 13-84.13203.447-3800 V1 SP P306 AF#84006501 REVISED V1 SP P321 AF#85001476 |
| Geographic ID: | R13203-457-3600 | Agent Code: | |
| Type: | Real | | |
| Tax Area: | 100 - APPRAISER-OH Schl Dist, in OH | Land Use Code | 11 |
| Open Space: | N | DFL | N |
| Historic Property: | N | Remodel Property: | N |
| Multi-Family Redevelopment: | N | | |
| Township: | 32 | Section: | 03 |
| Range: | R1 |
Location |
| Address: | 462 SW FAIRHAVEN DR OAK HARBOR, WA 98277 | Mapsco: | |
| Neighborhood: | Cycle 1 | Map ID: | 93 |
| Neighborhood CD: | 1 |
Owner |
| Name: | BROWN, SUSAN J | Owner ID: | 42309 |
| Mailing Address: | JERRY W BROWN TRUSTEES 16301 FREMONT AVE N SHORELINE, WA 98133-5627 | % Ownership: | 100.0000000000% |
| | | Exemptions: | |
Taxes and Assessment Details
Values
| (+) Improvement Homesite Value: | + | $0 | |
| (+) Improvement Non-Homesite Value: | + | $353,017 | |
| (+) Land Homesite Value: | + | $0 | |
| (+) Land Non-Homesite Value: | + | $190,000 | |
| (+) Curr Use (HS): | + | $0 | $0 |
| (+) Curr Use (NHS): | + | $0 | $0 |
| | | -------------------------- | |
| (=) Market Value: | = | $543,017 | |
| (–) Productivity Loss: | – | $0 | |
| | | -------------------------- | |
| (=) Subtotal: | = | $543,017 | |
| (+) Senior Appraised Value: | + | $0 | |
| (+) Non-Senior Appraised Value: | + | $543,017 | |
| | | -------------------------- | |
| (=) Total Appraised Value: | = | $543,017 | |
| (–) Senior Exemption Loss: | – | $0 | |
| (–) Exemption Loss: | – | $0 | |
| | | -------------------------- | |
| (=) Taxable Value: | = | $543,017 | |
Taxing Jurisdiction
| Owner: | BROWN, SUSAN J | | |
| % Ownership: | 100.0000000000% | | |
| Total Value: | $543,017 | | |
| Tax Area: | 100 - APPRAISER-OH Schl Dist, in OH |
| CF | Conservation Futures | 0.0313996660 | $543,017 | $543,017 | $17.05 | | |
| CEM1 | Cemetery #1 | 0.0040018856 | $543,017 | $543,017 | $2.17 | | |
| COH | City of Oak Harbor | 2.3090730572 | $543,017 | $543,017 | $1,253.87 | | |
| OAKBOND | City of Oak Harbor BOND | 0.1902260131 | $543,017 | $543,017 | $103.30 | | |
| HOBOND | Hospital BOND | 0.1893405597 | $543,017 | $543,017 | $102.82 | | |
| HOGEN | Hospital GEN | 0.3848777722 | $543,017 | $543,017 | $209.00 | | |
| CE | County Current Expense | 0.3674210519 | $543,017 | $543,017 | $199.52 | | |
| ISLANDEMS | Hospital GEN (EMS) | 0.4952018576 | $543,017 | $543,017 | $268.90 | | |
| LIB | Library Sno-Isle GEN | 0.3039084203 | $543,017 | $543,017 | $165.03 | | |
| NWHIDPRMT | P & R N Whidbey GEN | 0.1990272349 | $543,017 | $543,017 | $108.08 | | |
| SCH201MO | School 201 Enrichment | 2.3851112745 | $543,017 | $543,017 | $1,295.16 | | |
| ST | State School | 1.4761226122 | $543,017 | $543,017 | $801.56 | | |
| ST2 | State School Part 2 | 0.7953803475 | $543,017 | $543,017 | $431.91 | | |
| | Total Tax Rate: | 9.1310917527 | | | | | |
| | | | | Taxes w/Current Exemptions: | $4,958.37 | | |
| | | | | Taxes w/o Exemptions: | $4,958.37 | | |
Improvement / Building
| Improvement #1: | RESIDENTIAL | State Code: | Y | 2831.0 sqft | Value: | $353,017 |
| Bathrooms: | 2 | Bedrooms: | 4 | | Ceiling: | DRYWALL PAINTED | Exterior Wall/Cover: | COMMON BRICK VENEER | | Floor Covering: | VINYL/HARDWOOD 20-80 | Floor Structure: | WOOD W/SUBFLOOR | | Foundation: | CONCRETE | Heating: | FHA GAS | | Interior Finish: | DRYWALL PAINT | Plumbing Fixture Cnt: | 9 | | Roof Slope: | 8" IN 12" | Roof Structure/Cover: | CJ ASPHALT |
|
| | Type | Description | Class CD | Sub Class CD | Year Built | Area |
| | BAS | BASE/MAIN FLOOR | 3 | 0 | 1957 | 1482.0 |
| | OP1 | OPEN PORCH SLAB | 3 | 0 | 1957 | 601.0 |
| | OP2 | OPEN PORCH W/STEPS | 3 | 0 | 1957 | 48.0 |
| | AGR | ATTACHED GARAGE | 3 | 0 | 1957 | 528.0 |
| | OWP | OPEN WOOD PORCH W/STEPS | 3 | 0 | 1957 | 169.0 |
| | DWN | DOWNSTAIRS LIVING AREA | 3 | 0 | 1957 | 1349.0 |
Sketch
Property Image
Land
| 1 | 15 | SQ (12001-21780) | 0.3500 | 15246.00 | 0.00 | 0.00 | 1.00 | $190,000 | $0 |
Roll Value History
| 2026 | N/A | N/A | N/A | N/A | N/A |
| 2025 | $353,017 | $190,000 | $0 | $543,017 | $543,017 |
| 2024 | $357,836 | $190,000 | $0 | $547,836 | $547,836 |
| 2023 | $353,017 | $190,000 | $0 | $543,017 | $543,017 |
| 2022 | $324,019 | $180,000 | $0 | $504,019 | $504,019 |
| 2021 | $285,560 | $135,000 | $0 | $420,560 | $420,560 |
| 2020 | $279,765 | $100,000 | $0 | $379,765 | $379,765 |
| 2019 | $225,064 | $150,000 | $0 | $375,064 | $375,064 |
| 2018 | $225,793 | $130,000 | $0 | $355,793 | $355,793 |
| 2017 | $216,412 | $110,000 | $0 | $326,412 | $326,412 |
| 2016 | $219,418 | $100,000 | $0 | $319,418 | $319,418 |
| 2015 | $222,425 | $75,000 | $0 | $297,425 | $297,425 |
| 2014 | $225,431 | $75,000 | $0 | $300,431 | $300,431 |
| 2013 | $228,435 | $75,000 | $0 | $303,435 | $303,435 |
| 2012 | $231,441 | $75,000 | $0 | $306,441 | $306,441 |
| 2011 | $240,903 | $75,000 | $0 | $315,903 | $315,903 |
| 2010 | $256,574 | $75,000 | $0 | $331,574 | $331,574 |
| 2009 | $267,677 | $85,000 | $0 | $352,677 | $352,677 |
| 2008 | $267,717 | $85,000 | $0 | $352,717 | $352,717 |
| 2007 | $271,094 | $85,000 | $0 | $356,094 | $356,094 |
Deed and Sales History
| 1 | 01/22/2021 | WD | Warranty Deed | ZYLSTRA, LAURIN B | BROWN, SUSAN J | | | $273,750.00 | 46756 | 4509468 |
Payout Agreement
| No payout information available.. |