Property
Account |
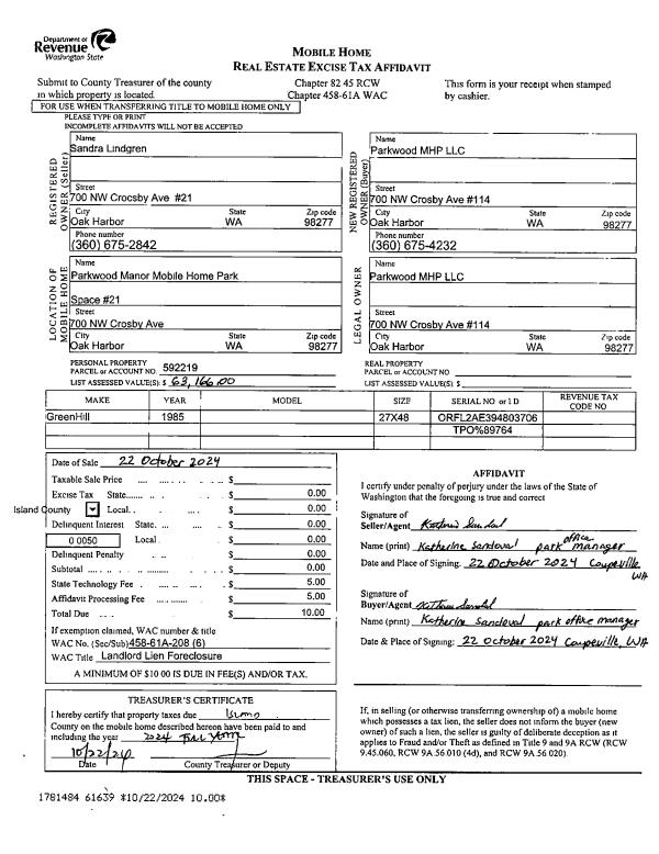
| Property ID: | 592219 | Abbreviated Legal Description: | 1985 GREENHILL 27X48 VIN# ORFL2AE394803706 TPO %89764 |
| Geographic ID: | M91100000021-1 | Agent Code: | |
| Type: | Mobile Home | | |
| Tax Area: | 100 - APPRAISER-OH Schl Dist, in OH | Land Use Code | 11 |
| Open Space: | N | DFL | N |
| Historic Property: | N | Remodel Property: | N |
| Multi-Family Redevelopment: | N | | |
| Township: | | Section: | |
| Range: | |
Location |
| Address: | 700 NW CROSBY AVE # 21 OAK HARBOR, WA 98277 | Mapsco: | |
| Neighborhood: | Cycle 1 | Map ID: | |
| Neighborhood CD: | 1 |
Owner |
| Name: | BARAJAS, TANZANIA G PONCE | Owner ID: | 317444 |
| Mailing Address: | 700 NW CROSBY AVE #21 OAK HARBOR, WA 98277 | % Ownership: | 100.0000000000% |
| | | Exemptions: | |
Taxes and Assessment Details
Values
| (+) Improvement Homesite Value: | + | $0 | |
| (+) Improvement Non-Homesite Value: | + | $60,294 | |
| (+) Land Homesite Value: | + | $0 | |
| (+) Land Non-Homesite Value: | + | $0 | |
| (+) Curr Use (HS): | + | $0 | $0 |
| (+) Curr Use (NHS): | + | $0 | $0 |
| | | -------------------------- | |
| (=) Market Value: | = | $60,294 | |
| (–) Productivity Loss: | – | $0 | |
| | | -------------------------- | |
| (=) Subtotal: | = | $60,294 | |
| (+) Senior Appraised Value: | + | $0 | |
| (+) Non-Senior Appraised Value: | + | $60,294 | |
| | | -------------------------- | |
| (=) Total Appraised Value: | = | $60,294 | |
| (–) Senior Exemption Loss: | – | $0 | |
| (–) Exemption Loss: | – | $0 | |
| | | -------------------------- | |
| (=) Taxable Value: | = | $60,294 | |
Taxing Jurisdiction
| Owner: | BARAJAS, TANZANIA G PONCE | | |
| % Ownership: | 100.0000000000% | | |
| Total Value: | $60,294 | | |
| Tax Area: | 100 - APPRAISER-OH Schl Dist, in OH |
| CF | Conservation Futures | 0.0313996660 | $60,294 | $60,294 | $1.89 | | |
| CEM1 | Cemetery #1 | 0.0040018856 | $60,294 | $60,294 | $0.24 | | |
| COH | City of Oak Harbor | 2.3090730572 | $60,294 | $60,294 | $139.22 | | |
| OAKBOND | City of Oak Harbor BOND | 0.1902260131 | $60,294 | $60,294 | $11.47 | | |
| HOBOND | Hospital BOND | 0.1893405597 | $60,294 | $60,294 | $11.42 | | |
| HOGEN | Hospital GEN | 0.3848777722 | $60,294 | $60,294 | $23.21 | | |
| CE | County Current Expense | 0.3674210519 | $60,294 | $60,294 | $22.15 | | |
| ISLANDEMS | Hospital GEN (EMS) | 0.4952018576 | $60,294 | $60,294 | $29.86 | | |
| LIB | Library Sno-Isle GEN | 0.3039084203 | $60,294 | $60,294 | $18.32 | | |
| NWHIDPRMT | P & R N Whidbey GEN | 0.1990272349 | $60,294 | $60,294 | $12.00 | | |
| SCH201MO | School 201 Enrichment | 2.3851112745 | $60,294 | $60,294 | $143.81 | | |
| ST | State School | 1.4761226122 | $60,294 | $60,294 | $89.00 | | |
| ST2 | State School Part 2 | 0.7953803475 | $60,294 | $60,294 | $47.96 | | |
| | Total Tax Rate: | 9.1310917527 | | | | | |
| | | | | Taxes w/Current Exemptions: | $550.55 | | |
| | | | | Taxes w/o Exemptions: | $550.55 | | |
Improvement / Building
| Improvement #1: | MANUFACTURED HOME | State Code: | Y | 1296.0 sqft | Value: | $60,294 |
| Bathrooms: | 2 | Bedrooms: | 3 | | Ceiling: | PLASTER PAINTED | Cooling: | EVAP NO DUCT | | Exterior Wall/Cover: | VINYL | Floor Covering: | CARPET 100% | | Floor Structure: | SLAB ON GRADE | Foundation: | SLAB | | Heating: | FHA ELECTRIC | Interior Finish: | PLASTER | | Plumbing Fixture Cnt: | 1 | Roof Slope: | FLAT | | Roof Structure/Cover: | CJ ALUMINIUM HEAVY |   |   |
|
Sketch
Property Image
Land
No land segments exist for this property.
Roll Value History
| 2026 | N/A | N/A | N/A | N/A | N/A |
| 2025 | $60,294 | $0 | $0 | $60,294 | $60,294 |
| 2024 | $63,166 | $0 | $0 | $63,166 | $63,166 |
| 2023 | $42,708 | $0 | $0 | $42,708 | $42,708 |
| 2022 | $40,356 | $0 | $0 | $40,356 | $40,356 |
| 2021 | $37,282 | $0 | $0 | $37,282 | $37,282 |
| 2020 | $37,617 | $0 | $0 | $37,617 | $37,617 |
| 2019 | $30,748 | $0 | $0 | $30,748 | $30,748 |
| 2018 | $31,867 | $0 | $0 | $31,867 | $31,867 |
| 2017 | $14,019 | $0 | $0 | $14,019 | $14,019 |
| 2016 | $14,657 | $0 | $0 | $14,657 | $14,657 |
| 2015 | $15,294 | $0 | $0 | $15,294 | $15,294 |
| 2014 | $16,250 | $0 | $0 | $16,250 | $16,250 |
| 2013 | $16,887 | $0 | $0 | $16,887 | $16,887 |
| 2012 | $17,524 | $0 | $0 | $17,524 | $17,524 |
| 2011 | $20,891 | $0 | $0 | $20,891 | $20,891 |
| 2010 | $21,929 | $0 | $0 | $21,929 | $21,929 |
| 2009 | $28,000 | $0 | $0 | $28,000 | $28,000 |
| 2008 | $29,010 | $0 | $0 | $29,010 | $29,010 |
| 2007 | $30,036 | $0 | $0 | $30,036 | $30,036 |
Deed and Sales History
| 1 | 07/01/2025 | MANHOME | Manufactured Home | PARKWOOD MHP LLC | BARAJAS, TANZANIA G PONCE | | | $7,000.00 | 64195 | |
| 2 | 10/22/2024 | MANHOME | Manufactured Home | LINDGREN, SANDRA | PARKWOOD MHP LLC | | | $0.00 | 61639 | |
| 3 | 05/11/2004 | OTHER | Other - Misc. Documents | HOLMAN, ARTHUR J | LINDGREN, SANDRA | | | $27,500.00 | 42039 | 0 |
| 4 | 11/01/1992 | OTHER | Other - Misc. Documents | HOWERTON, OPAL I | HOLMAN, ARTHUR J | | | $35,000.00 | 24416 | 0 |
| 5 | 06/01/1990 | OTHER | Other - Misc. Documents | HOLME, CHARLES A | HOWERTON, OPAL I | | | $31,000.00 | 3490 | 0 |
| 6 | 05/01/1987 | OTHER | Other - Misc. Documents | SMITH, THOMAS W | HOLME, CHARLES A | | | $28,000.00 | 71144 | 0 |
| 7 | 10/01/1984 | OTHER | Other - Misc. Documents | SMITH, THOMAS W | SMITH, THOMAS W | | | $28,281.00 | 11111111 | 0 |
| 8 | 01/01/1900 | OTHER | Other - Misc. Documents | Unknown | SMITH, THOMAS W | | | $0.00 | 0 | 0 |
Payout Agreement
| No payout information available.. |