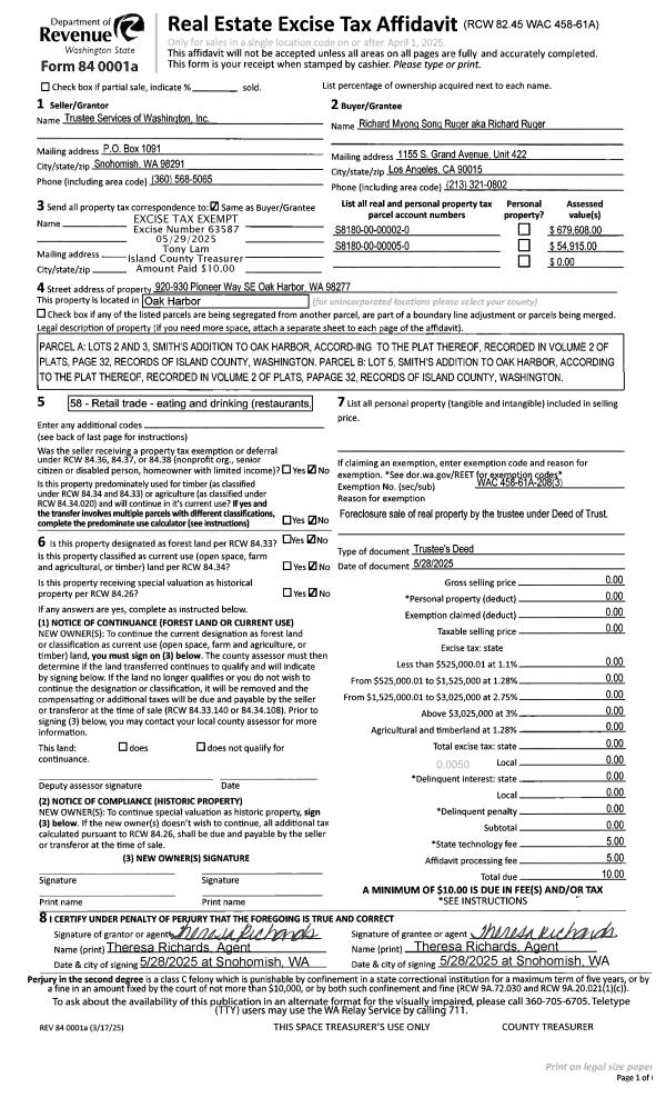
Property
Account |
| Property ID: | 592790 | Abbreviated Legal Description: | SMITHS ADD LOT 2 & 3 FR 00001 0 |
| Geographic ID: | S8180-00-00002-0 | Agent Code: | |
| Type: | Real | | |
| Tax Area: | 100 - APPRAISER-OH Schl Dist, in OH | Land Use Code | 58 |
| Open Space: | N | DFL | N |
| Historic Property: | N | Remodel Property: | N |
| Multi-Family Redevelopment: | N | | |
| Township: | | Section: | |
| Range: | |
Location |
| Address: | 930 SE PIONEER WAY OAK HARBOR, WA 98277 | Mapsco: | |
| Neighborhood: | 12cOH-pioneer way | Map ID: | 87 |
| Neighborhood CD: | 12cOHpionr |
Owner |
| Name: | RUGER, RICHARD MYONG SONG | Owner ID: | 316634 |
| Mailing Address: | 1155 S GRAND AVE, UNIT 422 LOS ANGELES, CA 90015 | % Ownership: | 100.0000000000% |
| | | Exemptions: | |
Taxes and Assessment Details
Values
| (+) Improvement Homesite Value: | + | $0 | |
| (+) Improvement Non-Homesite Value: | + | $482,326 | |
| (+) Land Homesite Value: | + | $0 | |
| (+) Land Non-Homesite Value: | + | $174,867 | |
| (+) Curr Use (HS): | + | $0 | $0 |
| (+) Curr Use (NHS): | + | $0 | $0 |
| | | -------------------------- | |
| (=) Market Value: | = | $657,193 | |
| (–) Productivity Loss: | – | $0 | |
| | | -------------------------- | |
| (=) Subtotal: | = | $657,193 | |
| (+) Senior Appraised Value: | + | $0 | |
| (+) Non-Senior Appraised Value: | + | $657,193 | |
| | | -------------------------- | |
| (=) Total Appraised Value: | = | $657,193 | |
| (–) Senior Exemption Loss: | – | $0 | |
| (–) Exemption Loss: | – | $0 | |
| | | -------------------------- | |
| (=) Taxable Value: | = | $657,193 | |
Taxing Jurisdiction
| Owner: | RUGER, RICHARD MYONG SONG | | |
| % Ownership: | 100.0000000000% | | |
| Total Value: | $657,193 | | |
| Tax Area: | 100 - APPRAISER-OH Schl Dist, in OH |
| CF | Conservation Futures | 0.0313996660 | $657,193 | $657,193 | $20.64 | | |
| CEM1 | Cemetery #1 | 0.0040018856 | $657,193 | $657,193 | $2.63 | | |
| COH | City of Oak Harbor | 2.3090730572 | $657,193 | $657,193 | $1,517.51 | | |
| OAKBOND | City of Oak Harbor BOND | 0.1902260131 | $657,193 | $657,193 | $125.02 | | |
| HOBOND | Hospital BOND | 0.1893405597 | $657,193 | $657,193 | $124.43 | | |
| HOGEN | Hospital GEN | 0.3848777722 | $657,193 | $657,193 | $252.94 | | |
| CE | County Current Expense | 0.3674210519 | $657,193 | $657,193 | $241.47 | | |
| ISLANDEMS | Hospital GEN (EMS) | 0.4952018576 | $657,193 | $657,193 | $325.44 | | |
| LIB | Library Sno-Isle GEN | 0.3039084203 | $657,193 | $657,193 | $199.73 | | |
| NWHIDPRMT | P & R N Whidbey GEN | 0.1990272349 | $657,193 | $657,193 | $130.80 | | |
| SCH201MO | School 201 Enrichment | 2.3851112745 | $657,193 | $657,193 | $1,567.48 | | |
| ST | State School | 1.4761226122 | $657,193 | $657,193 | $970.10 | | |
| ST2 | State School Part 2 | 0.7953803475 | $657,193 | $657,193 | $522.72 | | |
| | Total Tax Rate: | 9.1310917527 | | | | | |
| | | | | Taxes w/Current Exemptions: | $6,000.91 | | |
| | | | | Taxes w/o Exemptions: | $6,000.91 | | |
Improvement / Building
| Improvement #1: | COMMERCIAL | State Code: | F1 | 13461.0 sqft | Value: | $482,326 |
| Bathrooms: | 0 | Ceiling: | DRYWALL PAINTED | | Exterior Wall/Cover: | 8" CONC BLK/CON FRAM | Floor Covering: | VINYL 100% | | Floor Structure: | WOOD ON WOOD JOIST | Foundation: | CONCRETE | | Heating: | FHA ELECTRIC | Interior Finish: | RESTAURANT | | Plumbing Fixture Cnt: | 1 | Roof Structure/Cover: | BEAM BUILT-UP ROCK |
|
| | Type | Description | Class CD | Sub Class CD | Year Built | Area |
| | BAS | BASE/MAIN FLOOR | 2 | 0 | 1977 | 8800.0 |
| | UPS | UPPER STORY | 2 | 0 | 1977 | 4661.0 |
Sketch
Property Image
Land
| 1 | 68 | COMMERCIAL RETAIL | 0.2509 | 10929.20 | 0.00 | 0.00 | 1.00 | $174,867 | $0 |
Roll Value History
| 2026 | N/A | N/A | N/A | N/A | N/A |
| 2025 | $482,326 | $174,867 | $0 | $657,193 | $657,193 |
| 2024 | $504,741 | $174,867 | $0 | $679,608 | $679,608 |
| 2023 | $418,637 | $174,867 | $0 | $593,504 | $593,504 |
| 2022 | $387,504 | $174,867 | $0 | $562,371 | $562,371 |
| 2021 | $387,504 | $174,867 | $0 | $562,371 | $562,371 |
| 2020 | $387,504 | $174,867 | $0 | $562,371 | $562,371 |
| 2019 | $412,642 | $131,150 | $0 | $543,792 | $543,792 |
| 2018 | $412,642 | $109,292 | $0 | $521,934 | $521,934 |
| 2017 | $421,184 | $218,584 | $0 | $639,768 | $639,768 |
| 2016 | $421,180 | $218,584 | $0 | $639,764 | $639,764 |
| 2015 | $457,273 | $218,584 | $0 | $675,857 | $675,857 |
| 2014 | $470,304 | $168,750 | $0 | $639,054 | $639,054 |
| 2013 | $448,047 | $168,750 | $0 | $616,797 | $616,797 |
| 2012 | $769,569 | $168,750 | $0 | $938,319 | $938,319 |
| 2011 | $769,569 | $168,750 | $0 | $938,319 | $938,319 |
| 2010 | $775,486 | $168,750 | $0 | $944,236 | $944,236 |
| 2009 | $787,745 | $184,780 | $0 | $972,525 | $972,525 |
| 2008 | $816,301 | $193,116 | $0 | $1,009,417 | $1,009,417 |
| 2007 | $843,511 | $193,116 | $0 | $1,036,627 | $1,036,627 |
Deed and Sales History
| 1 | 05/28/2025 | TRUSTEED | Trustee's Deed | TRUSTEE SERVICES OF WASHINGTON, INC | RUGER, RICHARD MYONG SONG | | | $0.00 | 63587 | 4586315 |
| 2 | 10/24/2018 | WD | Warranty Deed | ATLAS VENTURE CAPITAL LLC | PUNJAB, SHER E | | | $625,000.00 | 36441 | 4454067 |
|   | |
| 3 | 04/02/2007 | WD | Warranty Deed | COCKRELL, TOM | ATLAS VENTURE CAPITAL LLC, | | | $723,443.00 | 71170 | 4198922 |
| 4 | 03/01/1985 | WD | Warranty Deed | NORTON, MILO | COCKRELL, TOM | | | $241,838.00 | 50737 | 85003078 |
| 5 | 01/01/1900 | OTHER | Other - Misc. Documents | Unknown | NORTON, MILO | | | $0.00 | 0 | 0 |
Payout Agreement
| No payout information available.. |