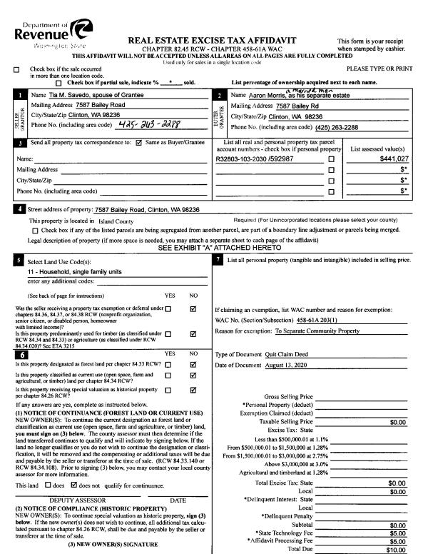
Property
Account |
| Property ID: | 592987 | Abbreviated Legal Description: | LOT 3 SP 82-63.32803.072-1850 (116-1940) V1 SP P324 AF#85001799 REVISED V2 SP P127 AF#87009263 |
| Geographic ID: | R32803-103-2030 | Agent Code: | |
| Type: | Real | | |
| Tax Area: | 712 - APPRAISER-S Whid Schl Dist, outside Langley, improved, greater than 1 acre | Land Use Code | 11 |
| Open Space: | N | DFL | N |
| Historic Property: | N | Remodel Property: | N |
| Multi-Family Redevelopment: | N | | |
| Township: | 28 | Section: | 03 |
| Range: | R3 |
Location |
| Address: | 7587 BAILEY RD CLINTON, WA 98236 | Mapsco: | |
| Neighborhood: | Cycle 4 | Map ID: | 683 |
| Neighborhood CD: | 4 |
Owner |
| Name: | MORRIS, AARON | Owner ID: | 267335 |
| Mailing Address: | 7587 BAILEY RD CLINTON, WA 98236 | % Ownership: | 100.0000000000% |
| | | Exemptions: | |
Taxes and Assessment Details
Values
| (+) Improvement Homesite Value: | + | $0 | |
| (+) Improvement Non-Homesite Value: | + | $428,751 | |
| (+) Land Homesite Value: | + | $0 | |
| (+) Land Non-Homesite Value: | + | $310,000 | |
| (+) Curr Use (HS): | + | $0 | $0 |
| (+) Curr Use (NHS): | + | $0 | $0 |
| | | -------------------------- | |
| (=) Market Value: | = | $738,751 | |
| (–) Productivity Loss: | – | $0 | |
| | | -------------------------- | |
| (=) Subtotal: | = | $738,751 | |
| (+) Senior Appraised Value: | + | $0 | |
| (+) Non-Senior Appraised Value: | + | $738,751 | |
| | | -------------------------- | |
| (=) Total Appraised Value: | = | $738,751 | |
| (–) Senior Exemption Loss: | – | $0 | |
| (–) Exemption Loss: | – | $0 | |
| | | -------------------------- | |
| (=) Taxable Value: | = | $738,751 | |
Taxing Jurisdiction
| Owner: | MORRIS, AARON | | |
| % Ownership: | 100.0000000000% | | |
| Total Value: | $738,751 | | |
| Tax Area: | 712 - APPRAISER-S Whid Schl Dist, outside Langley, improved, greater than 1 acre |
| CF | Conservation Futures | 0.0313996660 | $738,751 | $738,751 | $23.20 | | |
| FIRE3 | Fire & Rescue Dist #3 S Whidbey GEN | 1.2130821753 | $738,751 | $738,751 | $896.17 | | |
| HOBOND | Hospital BOND | 0.1893405597 | $738,751 | $738,751 | $139.88 | | |
| HOGEN | Hospital GEN | 0.3848777722 | $738,751 | $738,751 | $284.33 | | |
| CE | County Current Expense | 0.3674210519 | $738,751 | $738,751 | $271.43 | | |
| CR | County Roads | 0.4614296361 | $738,751 | $738,751 | $340.88 | | |
| ISLANDEMS | Hospital GEN (EMS) | 0.4952018576 | $738,751 | $738,751 | $365.83 | | |
| LIB | Library Sno-Isle GEN | 0.3039084203 | $738,751 | $738,751 | $224.51 | | |
| PORTWHID | Port of S Whidbey GEN | 0.1086004714 | $738,751 | $738,751 | $80.23 | | |
| SCH206BOND | School 206 BOND | 0.5960237832 | $738,751 | $738,751 | $440.31 | | |
| SCH206CAP | School 206 CP | 0.3066144020 | $738,751 | $738,751 | $226.51 | | |
| SCH206MO | School 206 Enrichment | 0.4808755445 | $738,751 | $738,751 | $355.25 | | |
| ST | State School | 1.4761226122 | $738,751 | $738,751 | $1,090.49 | | |
| ST2 | State School Part 2 | 0.7953803475 | $738,751 | $738,751 | $587.59 | | |
| SWHIDPRBD | P & R S Whidbey BOND | 0.0144185398 | $738,751 | $738,751 | $10.65 | | |
| SWHIDPRBD3 | P & R S Whidbey BOND3 | 0.1483535547 | $738,751 | $738,751 | $109.60 | | |
| SWHIDPRMT | P & R S Whidbey GEN | 0.4600000000 | $738,751 | $738,751 | $339.83 | | |
| | Total Tax Rate: | 7.8330503944 | | | | | |
| | | | | Taxes w/Current Exemptions: | $5,786.69 | | |
| | | | | Taxes w/o Exemptions: | $5,786.69 | | |
Improvement / Building
| Improvement #1: | RESIDENTIAL | State Code: | Y | 2422.0 sqft | Value: | $428,751 |
| Bathrooms: | 2.5 | Bedrooms: | 3 | | Ceiling: | DRYWALL PAINTED | Cooling: | HEAT PUMP/CONV/V | | Exterior Wall/Cover: | WOOD SIDING | Floor Covering: | HARDWOOD/CARP 80-20 | | Floor Structure: | WOOD W/SUBFLOOR | Foundation: | CONCRETE | | Interior Finish: | DRYWALL PAINT | Plumbing Fixture Cnt: | 14 | | Roof Slope: | 4" IN 12" | Roof Structure/Cover: | CJ ASPHALT |
|
| | Type | Description | Class CD | Sub Class CD | Year Built | Area |
| | BAS | BASE/MAIN FLOOR | 3 | 0 | 1987 | 1041.0 |
| | UPS | UPPER STORY | 3 | 0 | 1987 | 373.0 |
| | OWP | OPEN WOOD PORCH W/STEPS | 3 | 0 | 1987 | 120.0 |
| | OWC | OPEN WOOD PORCH W/STEPS/ROOF/C | 3 | 0 | 1987 | 54.0 |
| | DWN | DOWNSTAIRS LIVING AREA | 3 | 0 | 1987 | 1008.0 |
| | DGR | DETACHED GARAGE | 3 | 0 | 1987 | 894.2 |
| | UTY | STORAGE/UTILITY | 3 | 0 | 1987 | 255.0 |
| | ENP | ENCLOSED PORCH | 3 | 0 | 1987 | 240.0 |
| | OWP | OPEN WOOD PORCH W/STEPS | 3 | 0 | 1987 | 120.0 |
Sketch
Property Image
Land
| 1 | 18 | AC (02.01-03.00) | 0.0000 | 0.00 | 0.00 | 0.00 | 1.00 | $310,000 | $0 |
Roll Value History
| 2026 | N/A | N/A | N/A | N/A | N/A |
| 2025 | $428,751 | $310,000 | $0 | $738,751 | $738,751 |
| 2024 | $434,027 | $300,000 | $0 | $734,027 | $734,027 |
| 2023 | $439,305 | $290,000 | $0 | $729,305 | $729,305 |
| 2022 | $402,594 | $270,000 | $0 | $672,594 | $672,594 |
| 2021 | $354,234 | $175,000 | $0 | $529,234 | $529,234 |
| 2020 | $308,955 | $165,000 | $0 | $473,955 | $473,955 |
| 2019 | $241,027 | $200,000 | $0 | $441,027 | $441,027 |
| 2018 | $229,476 | $170,000 | $0 | $399,476 | $399,476 |
| 2017 | $230,818 | $150,000 | $0 | $380,818 | $380,818 |
| 2016 | $233,502 | $135,000 | $0 | $368,502 | $368,502 |
| 2015 | $236,184 | $135,000 | $0 | $371,184 | $371,184 |
| 2014 | $207,291 | $110,500 | $0 | $317,791 | $317,791 |
| 2013 | $209,650 | $110,500 | $0 | $320,150 | $320,150 |
| 2012 | $212,012 | $110,500 | $0 | $322,512 | $322,512 |
| 2011 | $214,372 | $130,000 | $0 | $344,372 | $344,372 |
| 2010 | $221,939 | $130,000 | $0 | $351,939 | $351,939 |
| 2009 | $231,099 | $155,000 | $0 | $386,099 | $386,099 |
| 2008 | $231,470 | $197,178 | $0 | $428,648 | $428,648 |
| 2007 | $236,760 | $193,712 | $0 | $430,472 | $430,472 |
Deed and Sales History
| 1 | 08/13/2020 | QCD | Quit Claim Deed | SAVEDO, TIA M | MORRIS, AARON | | | $0.00 | 44283 | 4494105 |
| 2 | 07/29/2014 | WD | Warranty Deed | HAUGHTON, ELIZABETH A | MORRIS, AARON | | | $394,000.00 | 16216 | 4363208 |
| 3 | 02/18/2005 | WD | Warranty Deed | CONOVER, LARRY K | HAUGHTON, ELIZABETH A | | | $357,000.00 | 50881 | 4127491 |
| 4 | 03/01/1997 | WD | Warranty Deed | TOMASEK, JERRY | CONOVER, LARRY K | | | $180,000.00 | 70953 | 97004344 |
| 5 | 07/01/1988 | WD | Warranty Deed | L, & T | TOMASEK, JERRY | | | $19,000.00 | 82111 | 88007782 |
| 6 | 01/01/1900 | OTHER | Other - Misc. Documents | Unknown | L, & T | | | $0.00 | 11771 | 384082 |
Payout Agreement
| No payout information available.. |