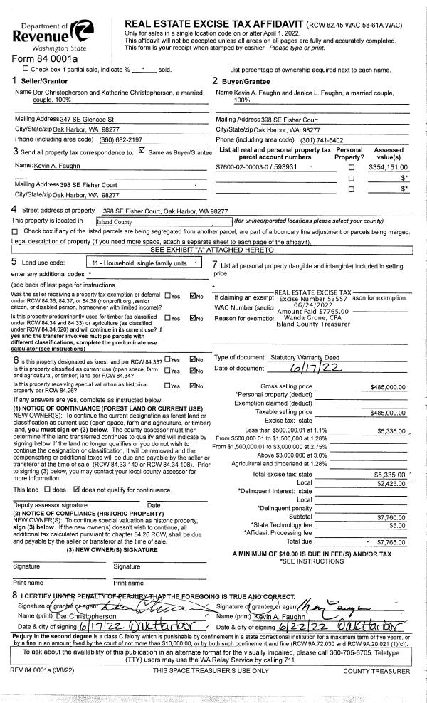
Property
Account |
| Property ID: | 593931 | Abbreviated Legal Description: | OLYMPIC GARDENS #2 LOT 3 |
| Geographic ID: | S7600-02-00003-0 | Agent Code: | |
| Type: | Real | | |
| Tax Area: | 100 - APPRAISER-OH Schl Dist, in OH | Land Use Code | 11 |
| Open Space: | N | DFL | N |
| Historic Property: | N | Remodel Property: | N |
| Multi-Family Redevelopment: | N | | |
| Township: | | Section: | |
| Range: | |
Location |
| Address: | 398 SE FISHER CT OAK HARBOR, WA 98277 | Mapsco: | |
| Neighborhood: | Cycle 1 | Map ID: | 88 |
| Neighborhood CD: | 1 |
Owner |
| Name: | FAUGHN, KEVIN A | Owner ID: | 304847 |
| Mailing Address: | JANICE L. FAUGHN 398 SE FISHER COURT OAK HARBOR, WA 98277 | % Ownership: | 100.0000000000% |
| | | Exemptions: | |
Taxes and Assessment Details
Values
| (+) Improvement Homesite Value: | + | $0 | |
| (+) Improvement Non-Homesite Value: | + | $301,493 | |
| (+) Land Homesite Value: | + | $0 | |
| (+) Land Non-Homesite Value: | + | $180,000 | |
| (+) Curr Use (HS): | + | $0 | $0 |
| (+) Curr Use (NHS): | + | $0 | $0 |
| | | -------------------------- | |
| (=) Market Value: | = | $481,493 | |
| (–) Productivity Loss: | – | $0 | |
| | | -------------------------- | |
| (=) Subtotal: | = | $481,493 | |
| (+) Senior Appraised Value: | + | $0 | |
| (+) Non-Senior Appraised Value: | + | $481,493 | |
| | | -------------------------- | |
| (=) Total Appraised Value: | = | $481,493 | |
| (–) Senior Exemption Loss: | – | $0 | |
| (–) Exemption Loss: | – | $0 | |
| | | -------------------------- | |
| (=) Taxable Value: | = | $481,493 | |
Taxing Jurisdiction
| Owner: | FAUGHN, KEVIN A | | |
| % Ownership: | 100.0000000000% | | |
| Total Value: | $481,493 | | |
| Tax Area: | 100 - APPRAISER-OH Schl Dist, in OH |
| CF | Conservation Futures | 0.0313996660 | $481,493 | $481,493 | $15.12 | | |
| CEM1 | Cemetery #1 | 0.0040018856 | $481,493 | $481,493 | $1.93 | | |
| COH | City of Oak Harbor | 2.3090730572 | $481,493 | $481,493 | $1,111.80 | | |
| OAKBOND | City of Oak Harbor BOND | 0.1902260131 | $481,493 | $481,493 | $91.59 | | |
| HOBOND | Hospital BOND | 0.1893405597 | $481,493 | $481,493 | $91.17 | | |
| HOGEN | Hospital GEN | 0.3848777722 | $481,493 | $481,493 | $185.32 | | |
| CE | County Current Expense | 0.3674210519 | $481,493 | $481,493 | $176.91 | | |
| ISLANDEMS | Hospital GEN (EMS) | 0.4952018576 | $481,493 | $481,493 | $238.44 | | |
| LIB | Library Sno-Isle GEN | 0.3039084203 | $481,493 | $481,493 | $146.33 | | |
| NWHIDPRMT | P & R N Whidbey GEN | 0.1990272349 | $481,493 | $481,493 | $95.83 | | |
| SCH201MO | School 201 Enrichment | 2.3851112745 | $481,493 | $481,493 | $1,148.41 | | |
| ST | State School | 1.4761226122 | $481,493 | $481,493 | $710.74 | | |
| ST2 | State School Part 2 | 0.7953803475 | $481,493 | $481,493 | $382.97 | | |
| | Total Tax Rate: | 9.1310917527 | | | | | |
| | | | | Taxes w/Current Exemptions: | $4,396.56 | | |
| | | | | Taxes w/o Exemptions: | $4,396.56 | | |
Improvement / Building
| Improvement #1: | RESIDENTIAL | State Code: | Y | 1778.8 sqft | Value: | $301,493 |
| Bathrooms: | 2 | Bedrooms: | 3 | | Ceiling: | DRYWALL PAINTED | Cooling: | HEAT PUMP/CONV/V | | Exterior Wall/Cover: | WOOD SIDING | Floor Covering: | VINYL TILE | | Floor Structure: | WOOD W/SUBFLOOR | Foundation: | CONCRETE | | Interior Finish: | DRYWALL PAINT | Plumbing Fixture Cnt: | 9 | | Roof Slope: | 4" IN 12" | Roof Structure/Cover: | CJ ASPHALT |
|
| | Type | Description | Class CD | Sub Class CD | Year Built | Area |
| | BAS | BASE/MAIN FLOOR | 3 | 0 | 1987 | 1778.8 |
| | AGR | ATTACHED GARAGE | 3 | 0 | 1987 | 360.0 |
Sketch
Property Image
Land
| 1 | 14 | SQ (08001-12000) | 0.0000 | 0.00 | 0.00 | 0.00 | 1.00 | $180,000 | $0 |
Roll Value History
| 2026 | N/A | N/A | N/A | N/A | N/A |
| 2025 | $301,493 | $180,000 | $0 | $481,493 | $481,493 |
| 2024 | $305,297 | $170,000 | $0 | $475,297 | $475,297 |
| 2023 | $309,101 | $170,000 | $0 | $479,101 | $479,101 |
| 2022 | $260,182 | $160,000 | $0 | $420,182 | $420,182 |
| 2021 | $229,151 | $125,000 | $0 | $354,151 | $354,151 |
| 2020 | $223,627 | $100,000 | $0 | $323,627 | $323,627 |
| 2019 | $166,540 | $140,000 | $0 | $306,540 | $306,540 |
| 2018 | $167,052 | $125,000 | $0 | $292,052 | $292,052 |
| 2017 | $162,524 | $110,000 | $0 | $272,524 | $272,524 |
| 2016 | $164,505 | $90,000 | $0 | $254,505 | $254,505 |
| 2015 | $166,487 | $70,000 | $0 | $236,487 | $236,487 |
| 2014 | $144,298 | $55,000 | $0 | $199,298 | $199,298 |
| 2013 | $139,733 | $55,000 | $0 | $194,733 | $194,733 |
| 2012 | $133,022 | $60,000 | $0 | $193,022 | $193,022 |
| 2011 | $133,233 | $50,000 | $0 | $183,233 | $183,233 |
| 2010 | $138,659 | $50,000 | $0 | $188,659 | $188,659 |
| 2009 | $144,609 | $60,000 | $0 | $204,609 | $204,609 |
| 2008 | $146,420 | $72,000 | $0 | $218,420 | $218,420 |
| 2007 | $148,218 | $72,000 | $0 | $220,218 | $220,218 |
Deed and Sales History
| 1 | 06/17/2022 | WD | Warranty Deed | CHRISTOPHERSON, DAR | FAUGHN, KEVIN A | | | $485,000.00 | 53557 | 4547053 |
| 2 | 08/07/2017 | WD | Warranty Deed | CHRISTOPHERSON, KIT L | CHRISTOPHERSON, DAR | | | $295,000.00 | 30520 | 4427711 |
|   | |
| 3 | 02/26/2007 | WD | Warranty Deed | POLEHNA JTWROS, ALICE M | CHIRSTOPHERSON, KIT L & CHRIST | | | $215,000.00 | 70702 | 4195455 |
| 4 | 07/18/2002 | 5 | DNU - Marriage License/Name Change | POLEHNA, STANLEY E | POLEHNA JTWROS, ALICE M | | | $0.00 | 69507 | 4025750 |
| 5 | 03/01/1995 | QCD | Quit Claim Deed | POLEHNA, STANLEY E | POLEHNA, STANLEY E | | | $0.00 | 50756 | 95003470 |
| 6 | 03/01/1989 | QCD | Quit Claim Deed | POLEHNA, STANLEY/ALICE & | POLEHNA, STANLEY E | | | $0.00 | 90752 | 89002601 |
| 7 | 12/01/1988 | WD | Warranty Deed | ROCA, CONSTANCE J | POLEHNA, STANLEY/ALICE & | | | $70,000.00 | 84160 | 88015549 |
| 8 | 01/01/1987 | WD | Warranty Deed | KOETJE, GORDON H | ROCA, CONSTANCE J | | | $61,600.00 | 70041 | 87000368 |
| 9 | 01/01/1900 | OTHER | Other - Misc. Documents | Unknown | KOETJE, GORDON H | | | $0.00 | 0 | 0 |
Payout Agreement
| No payout information available.. |