Property
Account |
| Property ID: | 596082 | Abbreviated Legal Description: | PT LOT A SP 83-65.32925.440 .1710 LY SLY OF DEER LAKE RD EX ANY PT LY ELY OF WLY LN HEGGENES RD EX ANY PT TO IS CO FOR RD AF#84001597 FR 415-1680 |
| Geographic ID: | R32925-382-1660 | Agent Code: | |
| Type: | Real | | |
| Tax Area: | 720 - APPRAISER-S Whid Schl Dist, Special District, improved & less than 1 acre | Land Use Code | 11 |
| Open Space: | N | DFL | N |
| Historic Property: | N | Remodel Property: | N |
| Multi-Family Redevelopment: | N | | |
| Township: | 29 | Section: | 25 |
| Range: | R3 |
Location |
| Address: | 6506 HEGENESS RD CLINTON, WA 98236 | Mapsco: | |
| Neighborhood: | Cycle 4 | Map ID: | 814 |
| Neighborhood CD: | 4 |
Owner |
| Name: | WITT TTEE, TOMMY D. | Owner ID: | 309139 |
| Mailing Address: | TRELLA J. WITT TTEE 6506 HEGGENES RD CLINTON, WA 98236 | % Ownership: | 100.0000000000% |
| | | Exemptions: | SNR/DSBL |
Taxes and Assessment Details
Values
| (+) Improvement Homesite Value: | + | $365,508 | |
| (+) Improvement Non-Homesite Value: | + | $0 | |
| (+) Land Homesite Value: | + | $250,000 | |
| (+) Land Non-Homesite Value: | + | $0 | |
| (+) Curr Use (HS): | + | $0 | $0 |
| (+) Curr Use (NHS): | + | $0 | $0 |
| | | -------------------------- | |
| (=) Market Value: | = | $615,508 | |
| (–) Productivity Loss: | – | $0 | |
| | | -------------------------- | |
| (=) Subtotal: | = | $615,508 | |
| (+) Senior Appraised Value: | + | $548,981 | |
| (+) Non-Senior Appraised Value: | + | $0 | |
| | | -------------------------- | |
| (=) Total Appraised Value: | = | $548,981 | |
| (–) Senior Exemption Loss: | – | $329,389 | |
| (–) Exemption Loss: | – | $0 | |
| | | -------------------------- | |
| (=) Taxable Value: | = | $219,592 | |
Taxing Jurisdiction
| Owner: | WITT TTEE, TOMMY D. | | |
| % Ownership: | 100.0000000000% | | |
| Total Value: | $615,508 | | |
| Tax Area: | 720 - APPRAISER-S Whid Schl Dist, Special District, improved & less than 1 acre |
| CF | Conservation Futures | 0.0313996660 | $615,508 | $219,592 | $6.90 | | |
| FIRE3 | Fire & Rescue Dist #3 S Whidbey GEN | 1.2130821753 | $615,508 | $219,592 | $266.38 | | |
| HOBOND | Hospital BOND | 0.0000000000 | $615,508 | $0 | $0.00 | | |
| HOGEN | Hospital GEN | 0.3848777722 | $615,508 | $219,592 | $84.52 | | |
| CE | County Current Expense | 0.3674210519 | $615,508 | $219,592 | $80.68 | | |
| CR | County Roads | 0.4614296361 | $615,508 | $219,592 | $101.33 | | |
| ISLANDEMS | Hospital GEN (EMS) | 0.4952018576 | $615,508 | $219,592 | $108.74 | | |
| LIB | Library Sno-Isle GEN | 0.3039084203 | $615,508 | $219,592 | $66.74 | | |
| PORTWHID | Port of S Whidbey GEN | 0.1086004714 | $615,508 | $219,592 | $23.85 | | |
| SCH206BOND | School 206 BOND | 0.0000000000 | $615,508 | $0 | $0.00 | | |
| SCH206CAP | School 206 CP | 0.0000000000 | $615,508 | $0 | $0.00 | | |
| SCH206MO | School 206 Enrichment | 0.0000000000 | $615,508 | $0 | $0.00 | | |
| ST | State School | 1.4761226122 | $615,508 | $219,592 | $324.14 | | |
| ST2 | State School Part 2 | 0.0000000000 | $615,508 | $0 | $0.00 | | |
| SWHIDPRBD | P & R S Whidbey BOND | 0.0000000000 | $615,508 | $0 | $0.00 | | |
| SWHIDPRBD3 | P & R S Whidbey BOND3 | 0.0000000000 | $615,508 | $0 | $0.00 | | |
| SWHIDPRMT | P & R S Whidbey GEN | 0.4600000000 | $615,508 | $219,592 | $101.01 | | |
| | Total Tax Rate: | 5.3020436630 | | | | | |
| | | | | Taxes w/Current Exemptions: | $1,164.29 | | |
| | | | | Taxes w/o Exemptions: | $4,821.29 | | |
Improvement / Building
| Improvement #1: | RESIDENTIAL | State Code: | Y | 1506.0 sqft | Value: | $365,508 |
| Bathrooms: | 2 | Bedrooms: | 3 | | Ceiling: | DRYWALL PAINTED | Cooling: | HEAT PUMP/CONV/V | | Exterior Wall/Cover: | CEMENT FIBER | Floor Covering: | HARDWOOD 100% | | Floor Structure: | WOOD W/SUBFLOOR | Foundation: | CONCRETE | | Interior Finish: | DRYWALL PAINT | Plumbing Fixture Cnt: | 11 | | Roof Slope: | 6" IN 12" | Roof Structure/Cover: | CJ ASPHALT |
|
| | Type | Description | Class CD | Sub Class CD | Year Built | Area |
| | BAS | BASE/MAIN FLOOR | 3 | 0 | 2019 | 1506.0 |
| | AGR | ATTACHED GARAGE | 3 | 0 | 2019 | 528.0 |
| | OWC | OPEN WOOD PORCH W/STEPS/ROOF/C | 3 | 0 | 2019 | 113.8 |
Sketch
| No sketches available for this property. |
Property Image
Land
| 1 | 15 | SQ (12001-21780) | 0.3100 | 13503.60 | 0.00 | 0.00 | 1.00 | $250,000 | $0 |
Roll Value History
| 2026 | N/A | N/A | N/A | N/A | N/A |
| 2025 | $365,508 | $250,000 | $0 | $615,508 | $219,592 |
| 2024 | $368,455 | $230,000 | $0 | $598,455 | $219,592 |
| 2023 | $371,403 | $230,000 | $0 | $601,403 | $478,981 |
| 2022 | $338,981 | $210,000 | $0 | $548,981 | $548,981 |
| 2021 | $287,475 | $150,000 | $0 | $437,475 | $437,475 |
| 2020 | $281,570 | $120,000 | $0 | $401,570 | $401,570 |
| 2019 | $205,355 | $170,000 | $0 | $375,355 | $375,355 |
| 2018 | $0 | $65,000 | $0 | $65,000 | $65,000 |
| 2017 | $0 | $65,000 | $0 | $65,000 | $65,000 |
| 2016 | $0 | $65,000 | $0 | $65,000 | $65,000 |
| 2015 | $0 | $65,000 | $0 | $65,000 | $65,000 |
| 2014 | $0 | $65,000 | $0 | $65,000 | $65,000 |
| 2013 | $0 | $65,000 | $0 | $65,000 | $65,000 |
| 2012 | $0 | $65,000 | $0 | $65,000 | $65,000 |
| 2011 | $0 | $65,000 | $0 | $65,000 | $65,000 |
| 2010 | $0 | $65,000 | $0 | $65,000 | $65,000 |
| 2009 | $0 | $65,000 | $0 | $65,000 | $65,000 |
| 2008 | $0 | $65,000 | $0 | $65,000 | $65,000 |
| 2007 | $0 | $85,000 | $0 | $85,000 | $85,000 |
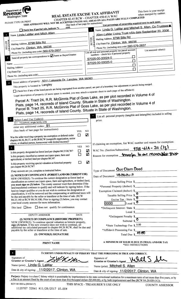
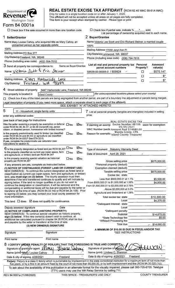
Deed and Sales History
| 1 | 03/10/2023 | QCD | Quit Claim Deed | WITT, TOMMY D | WITT TTEE, TOMMY D. | | | $0.00 | 57147 | 4561649 |
| 2 | 07/16/2021 | WD | Warranty Deed | LAING, JOHN | WITT, TOMMY D | | | $605,000.00 | 49253 | 4524906 |
| 3 | 05/31/2019 | WD | Warranty Deed | JSKS ENTERPRISES, LLC | LAING, JOHN | | | $415,000.00 | 38823 | 4464713 |
| 4 | 10/09/2017 | WD | Warranty Deed | MORROW, SALLY D | JSKS ENTERPRISES, LLC | | | $39,000.00 | 31675 | 4432880 |
| 5 | 09/09/2010 | QCD | Quit Claim Deed | TURCOTT, CHRISTOPHER D | MORROW, SALLY D | | | $0.00 | 3010 | 4286023 |
| 6 | 06/01/1985 | REC | Real Estate Contract | SHOUSE, JOANNE D | SHOUSE, JOANNE D | | | $0.00 | 52134 | 85008358 |
| 7 | 05/01/1985 | REC | Real Estate Contract | WEISS, BERNADINE | SHOUSE, JOANNE D | | | $1,500.00 | 51433 | 85005830 |
| 8 | 07/01/1984 | OTHER | Other - Misc. Documents | Unknown | WEISS, BERNADINE | | | $0.00 | 60726 | 84000606 |
Payout Agreement
| No payout information available.. |