Property
Account |
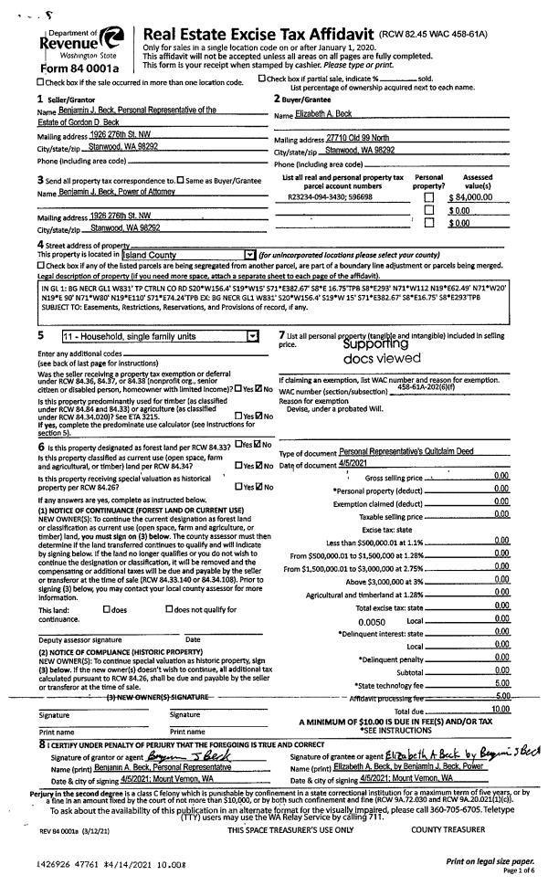
| Property ID: | 596698 | Abbreviated Legal Description: | IN GL 1: BG NECR GL1 W831' TP CTRLN CO RD S20*W156.4' S19*W15' S71*E382.67' S8*E 16.75'TPB S8*E293' N71*W112 N19*E62.49' N71*W20' N19*E 90' N71*W80' N19*E110' S71*E74.24'TPB EX: BG NECR GL1 W831' S20*W156.4' S19*W 15' S71*E382.67' S8*E16.75' S8*E293'TPB |
| Geographic ID: | R23234-094-3430 | Agent Code: | |
| Type: | Real | | |
| Tax Area: | 510 - APPRAISER-Stan/Cam Schl Dist, improved & 1 acre or less | Land Use Code | 11 |
| Open Space: | N | DFL | N |
| Historic Property: | N | Remodel Property: | N |
| Multi-Family Redevelopment: | N | | |
| Township: | 32 | Section: | 34 |
| Range: | R2 |
Location |
| Address: | | Mapsco: | |
| Neighborhood: | North Camano | Map ID: | 573 |
| Neighborhood CD: | 06-C |
Owner |
| Name: | BECK, ELIZABETH A | Owner ID: | 298888 |
| Mailing Address: | 27710 OLD 99 N STANWOOD, WA 98292 | % Ownership: | 100.0000000000% |
| | | Exemptions: | |
Taxes and Assessment Details
Values
| (+) Improvement Homesite Value: | + | $0 | |
| (+) Improvement Non-Homesite Value: | + | $4,000 | |
| (+) Land Homesite Value: | + | $0 | |
| (+) Land Non-Homesite Value: | + | $140,000 | |
| (+) Curr Use (HS): | + | $0 | $0 |
| (+) Curr Use (NHS): | + | $0 | $0 |
| | | -------------------------- | |
| (=) Market Value: | = | $144,000 | |
| (–) Productivity Loss: | – | $0 | |
| | | -------------------------- | |
| (=) Subtotal: | = | $144,000 | |
| (+) Senior Appraised Value: | + | $0 | |
| (+) Non-Senior Appraised Value: | + | $144,000 | |
| | | -------------------------- | |
| (=) Total Appraised Value: | = | $144,000 | |
| (–) Senior Exemption Loss: | – | $0 | |
| (–) Exemption Loss: | – | $0 | |
| | | -------------------------- | |
| (=) Taxable Value: | = | $144,000 | |
Taxing Jurisdiction
| Owner: | BECK, ELIZABETH A | | |
| % Ownership: | 100.0000000000% | | |
| Total Value: | $144,000 | | |
| Tax Area: | 510 - APPRAISER-Stan/Cam Schl Dist, improved & 1 acre or less |
| CF | Conservation Futures | 0.0313996660 | $144,000 | $144,000 | $4.52 | | |
| EMS1 | Fire & Rescue Dist #1 Camano GEN (EMS) | 0.4998471806 | $144,000 | $144,000 | $71.98 | | |
| FIRE1 | Fire & Rescue Dist #1 Camano GEN | 1.2496603404 | $144,000 | $144,000 | $179.95 | | |
| FIRE1BOND | Fire & Rescue Dist #1 Camano BOND | 0.1630371212 | $144,000 | $144,000 | $23.48 | | |
| CE | County Current Expense | 0.3674210519 | $144,000 | $144,000 | $52.91 | | |
| CR | County Roads | 0.4614296361 | $144,000 | $144,000 | $66.45 | | |
| LIB | Library Sno-Isle GEN | 0.3039084203 | $144,000 | $144,000 | $43.76 | | |
| SCH205_401 | School 205-401 Enrichment | 1.3697998934 | $144,000 | $144,000 | $197.25 | | |
| SCH205BOND | School 205-401 BOND | 0.9354199323 | $144,000 | $144,000 | $134.70 | | |
| ST | State School | 1.4761226122 | $144,000 | $144,000 | $212.56 | | |
| ST2 | State School Part 2 | 0.7953803475 | $144,000 | $144,000 | $114.53 | | |
| | Total Tax Rate: | 7.6534262019 | | | | | |
| | | | | Taxes w/Current Exemptions: | $1,102.09 | | |
| | | | | Taxes w/o Exemptions: | $1,102.09 | | |
Improvement / Building
| Improvement #1: | RESIDENTIAL | State Code: | Y | 0.0 sqft | Value: | $4,000 |
Sketch
| No sketches available for this property. |
Property Image
Land
| 1 | 15 | SQ (12001-21780) | 0.0000 | 0.00 | 0.00 | 0.00 | 1.00 | $140,000 | $0 |
Roll Value History
| 2026 | N/A | N/A | N/A | N/A | N/A |
| 2025 | $4,000 | $140,000 | $0 | $144,000 | $144,000 |
| 2024 | $4,000 | $130,000 | $0 | $134,000 | $134,000 |
| 2023 | $4,000 | $110,000 | $0 | $114,000 | $114,000 |
| 2022 | $4,000 | $100,000 | $0 | $104,000 | $104,000 |
| 2021 | $4,000 | $80,000 | $0 | $84,000 | $84,000 |
| 2020 | $4,000 | $80,000 | $0 | $84,000 | $84,000 |
| 2019 | $4,000 | $80,000 | $0 | $84,000 | $84,000 |
| 2018 | $4,000 | $70,000 | $0 | $74,000 | $74,000 |
| 2017 | $4,000 | $120,000 | $0 | $124,000 | $124,000 |
| 2016 | $4,000 | $75,000 | $0 | $79,000 | $79,000 |
| 2015 | $4,000 | $66,400 | $0 | $70,400 | $70,400 |
| 2014 | $4,000 | $66,400 | $0 | $70,400 | $70,400 |
| 2013 | $4,000 | $66,400 | $0 | $70,400 | $70,400 |
| 2012 | $4,000 | $10,624 | $0 | $14,624 | $14,624 |
| 2011 | $4,000 | $71,380 | $0 | $75,380 | $75,380 |
| 2010 | $4,749 | $71,380 | $0 | $76,129 | $76,129 |
| 2009 | $4,749 | $84,000 | $0 | $88,749 | $88,749 |
| 2008 | $4,749 | $80,000 | $0 | $84,749 | $84,749 |
| 2007 | $4,749 | $80,000 | $0 | $84,749 | $84,749 |
Deed and Sales History
| 1 | 04/05/2021 | PRD | Personal Representatives Deed | BECK, GORDON D | BECK, ELIZABETH A | | | $0.00 | 47761 | 4517246 |
| 2 | 07/01/1985 | OTHER | Other - Misc. Documents | BECK, GORDON D | BECK, GORDON D | | | $0.00 | 61256 | 85000370 |
| 3 | 08/01/1976 | EXECUTORD | Executor Deed | Unknown | BECK, GORDON D | | | $0.00 | 63242 | 0 |
Payout Agreement
| No payout information available.. |