Property
Account |
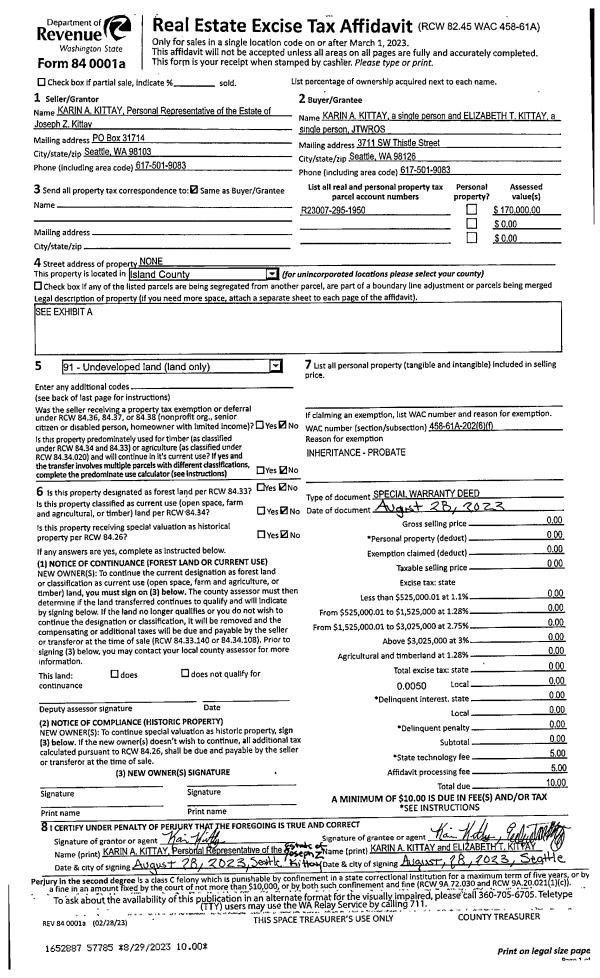
| Property ID: | 59769 | Abbreviated Legal Description: | PT OF GL3 SWLY OF SMUGGLERS CV RD |
| Geographic ID: | R23007-295-1950 | Agent Code: | |
| Type: | Real | | |
| Tax Area: | 319 - APPRAISER-Cpvl Schl Dist, outside Cpvl, vacant & 50 acres or less | Land Use Code | 91 |
| Open Space: | N | DFL | N |
| Historic Property: | N | Remodel Property: | N |
| Multi-Family Redevelopment: | N | | |
| Township: | 30 | Section: | 07 |
| Range: | R2 |
Location |
| Address: | COUPEVILLE, WA 98239 | Mapsco: | |
| Neighborhood: | Cycle 3 | Map ID: | 362 |
| Neighborhood CD: | 3 |
Owner |
| Name: | KITTAY JTWROS, KARIN A | Owner ID: | 309839 |
| Mailing Address: | ELIZABETH T KITTAY JTWROS 3711 SW THISTLE ST SEATTLE, WA 98126 | % Ownership: | 100.0000000000% |
| | | Exemptions: | |
Taxes and Assessment Details
Values
| (+) Improvement Homesite Value: | + | $0 | |
| (+) Improvement Non-Homesite Value: | + | $0 | |
| (+) Land Homesite Value: | + | $0 | |
| (+) Land Non-Homesite Value: | + | $210,000 | |
| (+) Curr Use (HS): | + | $0 | $0 |
| (+) Curr Use (NHS): | + | $0 | $0 |
| | | -------------------------- | |
| (=) Market Value: | = | $210,000 | |
| (–) Productivity Loss: | – | $0 | |
| | | -------------------------- | |
| (=) Subtotal: | = | $210,000 | |
| (+) Senior Appraised Value: | + | $0 | |
| (+) Non-Senior Appraised Value: | + | $210,000 | |
| | | -------------------------- | |
| (=) Total Appraised Value: | = | $210,000 | |
| (–) Senior Exemption Loss: | – | $0 | |
| (–) Exemption Loss: | – | $0 | |
| | | -------------------------- | |
| (=) Taxable Value: | = | $210,000 | |
Taxing Jurisdiction
| Owner: | KITTAY JTWROS, KARIN A | | |
| % Ownership: | 100.0000000000% | | |
| Total Value: | $210,000 | | |
| Tax Area: | 319 - APPRAISER-Cpvl Schl Dist, outside Cpvl, vacant & 50 acres or less |
| CF | Conservation Futures | 0.0313996660 | $210,000 | $210,000 | $6.59 | | |
| CEM2 | Cemetery #2 | 0.0092609791 | $210,000 | $210,000 | $1.94 | | |
| HOBOND | Hospital BOND | 0.1893405597 | $210,000 | $210,000 | $39.76 | | |
| HOGEN | Hospital GEN | 0.3848777722 | $210,000 | $210,000 | $80.82 | | |
| CE | County Current Expense | 0.3674210519 | $210,000 | $210,000 | $77.16 | | |
| CR | County Roads | 0.4614296361 | $210,000 | $210,000 | $96.90 | | |
| ISLANDEMS | Hospital GEN (EMS) | 0.4952018576 | $210,000 | $210,000 | $103.99 | | |
| LIB | Library Sno-Isle GEN | 0.3039084203 | $210,000 | $210,000 | $63.82 | | |
| LIBCAP | Library Sno-Isle BOND (Cap Fac Imp Area) | 0.0528562629 | $210,000 | $210,000 | $11.10 | | |
| POCOUP | Port of Coupeville GEN | 0.1065226063 | $210,000 | $210,000 | $22.37 | | |
| POCOUPIDD | Port of Coupeville IDD | 0.3353038577 | $210,000 | $210,000 | $70.41 | | |
| COUPSDTECH | School 204 CP (TECH) | 0.1215123397 | $210,000 | $210,000 | $25.52 | | |
| SCH204MO | School 204 Enrichment | 0.6416662518 | $210,000 | $210,000 | $134.75 | | |
| ST | State School | 1.4761226122 | $210,000 | $210,000 | $309.99 | | |
| ST2 | State School Part 2 | 0.7953803475 | $210,000 | $210,000 | $167.03 | | |
| | Total Tax Rate: | 5.7722042210 | | | | | |
| | | | | Taxes w/Current Exemptions: | $1,212.15 | | |
| | | | | Taxes w/o Exemptions: | $1,212.15 | | |
Improvement / Building
Sketch
| No sketches available for this property. |
Property Image
Land
| 1 | 32 | AC (03.01-09.99) | 0.0000 | 0.00 | 0.00 | 0.00 | 1.00 | $210,000 | $0 |
Roll Value History
| 2026 | N/A | N/A | N/A | N/A | N/A |
| 2025 | $0 | $210,000 | $0 | $210,000 | $210,000 |
| 2024 | $0 | $200,000 | $0 | $200,000 | $200,000 |
| 2023 | $0 | $180,000 | $0 | $180,000 | $180,000 |
| 2022 | $0 | $170,000 | $0 | $170,000 | $170,000 |
| 2021 | $0 | $135,000 | $0 | $135,000 | $135,000 |
| 2020 | $0 | $135,000 | $0 | $135,000 | $135,000 |
| 2019 | $0 | $135,000 | $0 | $135,000 | $135,000 |
| 2018 | $0 | $100,000 | $0 | $100,000 | $100,000 |
| 2017 | $0 | $100,000 | $0 | $100,000 | $100,000 |
| 2016 | $0 | $100,000 | $0 | $100,000 | $100,000 |
| 2015 | $0 | $100,000 | $0 | $100,000 | $100,000 |
| 2014 | $0 | $64,200 | $0 | $64,200 | $64,200 |
| 2013 | $0 | $64,200 | $0 | $64,200 | $64,200 |
| 2012 | $0 | $64,200 | $0 | $64,200 | $64,200 |
| 2011 | $0 | $64,200 | $0 | $64,200 | $64,200 |
| 2010 | $0 | $79,300 | $0 | $79,300 | $79,300 |
| 2009 | $0 | $99,450 | $0 | $99,450 | $99,450 |
| 2008 | $0 | $96,188 | $0 | $96,188 | $96,188 |
| 2007 | $0 | $60,990 | $0 | $60,990 | $60,990 |
Deed and Sales History
| 1 | 08/28/2023 | SPWARDEED | Special Warranty Deed | KITTAY, JOSEPH Z | KITTAY JTWROS, KARIN A | | | $0.00 | 57785 | 4564048 |
Payout Agreement
| No payout information available.. |