Property
Account |
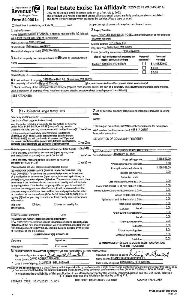
| Property ID: | 59787 | Abbreviated Legal Description: | 22 - GL3 BG NE CR GL3 S82* W668.89' S2*W738.32' TPB S2 W246.23' S84*W TO SHLN N ALG SHLN S83*W FR TPB N83*E TPB EX TR 50' X 110' |
| Geographic ID: | R23007-330-0900 | Agent Code: | |
| Type: | Real | | |
| Tax Area: | 312 - APPRAISER-Cpvl Schl Dist, outside Cpvl, improved, greater than 1 acre | Land Use Code | 11 |
| Open Space: | N | DFL | N |
| Historic Property: | N | Remodel Property: | N |
| Multi-Family Redevelopment: | N | | |
| Township: | 30 | Section: | 07 |
| Range: | R2 |
Location |
| Address: | 2968 EAGLE BLUFF RD GREENBANK, WA 98253 | Mapsco: | |
| Neighborhood: | Cycle 3 | Map ID: | 362 |
| Neighborhood CD: | 3 |
Owner |
| Name: | KELLY, CHERYL COOK | Owner ID: | 316171 |
| Mailing Address: | PATRICK KELLY 1035 KAMAOLE STREET HONOLULU, HI 96825 | % Ownership: | 100.0000000000% |
| | | Exemptions: | |
Taxes and Assessment Details
Values
| (+) Improvement Homesite Value: | + | $0 | |
| (+) Improvement Non-Homesite Value: | + | $462,010 | |
| (+) Land Homesite Value: | + | $0 | |
| (+) Land Non-Homesite Value: | + | $907,095 | |
| (+) Curr Use (HS): | + | $0 | $0 |
| (+) Curr Use (NHS): | + | $0 | $0 |
| | | -------------------------- | |
| (=) Market Value: | = | $1,369,105 | |
| (–) Productivity Loss: | – | $0 | |
| | | -------------------------- | |
| (=) Subtotal: | = | $1,369,105 | |
| (+) Senior Appraised Value: | + | $0 | |
| (+) Non-Senior Appraised Value: | + | $1,369,105 | |
| | | -------------------------- | |
| (=) Total Appraised Value: | = | $1,369,105 | |
| (–) Senior Exemption Loss: | – | $0 | |
| (–) Exemption Loss: | – | $0 | |
| | | -------------------------- | |
| (=) Taxable Value: | = | $1,369,105 | |
Taxing Jurisdiction
| Owner: | KELLY, CHERYL COOK | | |
| % Ownership: | 100.0000000000% | | |
| Total Value: | $1,369,105 | | |
| Tax Area: | 312 - APPRAISER-Cpvl Schl Dist, outside Cpvl, improved, greater than 1 acre |
| CF | Conservation Futures | 0.0313996660 | $1,369,105 | $1,369,105 | $42.99 | | |
| CEM2 | Cemetery #2 | 0.0092609791 | $1,369,105 | $1,369,105 | $12.68 | | |
| FIRE5 | Fire & Rescue Dist #5 C Whidbey GEN | 1.1892169230 | $1,369,105 | $1,369,105 | $1,628.16 | | |
| FIRE5BOND | Fire & Rescue Dist #5 C Whidbey BOND | 0.1394359503 | $1,369,105 | $1,369,105 | $190.90 | | |
| HOBOND | Hospital BOND | 0.1893405597 | $1,369,105 | $1,369,105 | $259.23 | | |
| HOGEN | Hospital GEN | 0.3848777722 | $1,369,105 | $1,369,105 | $526.94 | | |
| CE | County Current Expense | 0.3674210519 | $1,369,105 | $1,369,105 | $503.04 | | |
| CR | County Roads | 0.4614296361 | $1,369,105 | $1,369,105 | $631.75 | | |
| ISLANDEMS | Hospital GEN (EMS) | 0.4952018576 | $1,369,105 | $1,369,105 | $677.98 | | |
| LIB | Library Sno-Isle GEN | 0.3039084203 | $1,369,105 | $1,369,105 | $416.08 | | |
| LIBCAP | Library Sno-Isle BOND (Cap Fac Imp Area) | 0.0528562629 | $1,369,105 | $1,369,105 | $72.37 | | |
| POCOUP | Port of Coupeville GEN | 0.1065226063 | $1,369,105 | $1,369,105 | $145.84 | | |
| POCOUPIDD | Port of Coupeville IDD | 0.3353038577 | $1,369,105 | $1,369,105 | $459.07 | | |
| COUPSDTECH | School 204 CP (TECH) | 0.1215123397 | $1,369,105 | $1,369,105 | $166.36 | | |
| SCH204MO | School 204 Enrichment | 0.6416662518 | $1,369,105 | $1,369,105 | $878.51 | | |
| ST | State School | 1.4761226122 | $1,369,105 | $1,369,105 | $2,020.97 | | |
| ST2 | State School Part 2 | 0.7953803475 | $1,369,105 | $1,369,105 | $1,088.96 | | |
| | Total Tax Rate: | 7.1008570943 | | | | | |
| | | | | Taxes w/Current Exemptions: | $9,721.83 | | |
| | | | | Taxes w/o Exemptions: | $9,721.83 | | |
Improvement / Building
| Improvement #1: | RESIDENTIAL | State Code: | Y | 2872.0 sqft | Value: | $462,010 |
| Bathrooms: | 1.5 | Bedrooms: | 3 | | Ceiling: | TONGUE & GROOVE | Exterior Wall/Cover: | WOOD SIDING | | Floor Covering: | CERAMIC TILE/CPT 40-60 | Floor Structure: | WOOD W/SUBFLOOR | | Foundation: | CONCRETE | Heating: | FHA ELECTRIC | | Interior Finish: | DRYWALL PAINT | Plumbing Fixture Cnt: | 8 | | Roof Slope: | 8" IN 12" | Roof Structure/Cover: | BEAM ASPHALT |
|
| | Type | Description | Class CD | Sub Class CD | Year Built | Area |
| | BAS | BASE/MAIN FLOOR | 4 | 0 | 1981 | 2872.0 |
| | OWP | OPEN WOOD PORCH W/STEPS | 4 | 0 | 1981 | 91.0 |
| | OWP | OPEN WOOD PORCH W/STEPS | 4 | 0 | 1981 | 287.0 |
Sketch
Property Image
Land
| 1 | HB | HIGH BLUFF | 6.3495 | 276584.22 | 246.00 | 0.00 | 1.00 | $907,095 | $0 |
Roll Value History
| 2026 | N/A | N/A | N/A | N/A | N/A |
| 2025 | $462,010 | $907,095 | $0 | $1,369,105 | $1,369,105 |
| 2024 | $468,319 | $855,750 | $0 | $1,324,069 | $1,324,069 |
| 2023 | $474,626 | $815,000 | $0 | $1,289,626 | $1,289,626 |
| 2022 | $388,529 | $780,000 | $0 | $1,168,529 | $1,168,529 |
| 2021 | $342,512 | $650,000 | $0 | $992,512 | $992,512 |
| 2020 | $335,641 | $650,000 | $0 | $985,641 | $985,641 |
| 2019 | $213,029 | $750,000 | $0 | $963,029 | $963,029 |
| 2018 | $213,833 | $700,000 | $0 | $913,833 | $913,833 |
| 2017 | $215,437 | $650,000 | $0 | $865,437 | $865,437 |
| 2016 | $218,647 | $650,000 | $0 | $868,647 | $868,647 |
| 2015 | $221,858 | $650,000 | $0 | $871,858 | $871,858 |
| 2014 | $225,069 | $650,000 | $0 | $875,069 | $875,069 |
| 2013 | $228,281 | $634,769 | $0 | $863,050 | $863,050 |
| 2012 | $231,493 | $634,769 | $0 | $866,262 | $866,262 |
| 2011 | $234,703 | $634,769 | $0 | $869,472 | $869,472 |
| 2010 | $248,842 | $634,769 | $0 | $883,611 | $883,611 |
| 2009 | $256,397 | $846,361 | $0 | $1,102,758 | $1,102,758 |
| 2008 | $259,648 | $846,361 | $0 | $1,106,009 | $1,106,009 |
| 2007 | $246,490 | $570,489 | $0 | $816,979 | $816,979 |
Deed and Sales History
| 1 | 04/11/2025 | WD | Warranty Deed | POSEL, FRANCES ROBINSON | KELLY, CHERYL COOK | | | $1,500,000.00 | 63177 | 4584673 |
| 2 | 01/24/2023 | WD | Warranty Deed | FRANKEL JTWROS, DAVID ROBERT | POSEL, FRANCES ROBINSON | | | $0.00 | 55781 | 4556450 |
| 3 | 05/05/2022 | WD | Warranty Deed | GRIFFIN, FRANCIS A | ROBINSON POSEL JTWROS, FRANCES | | | $1,600,000.00 | 53073 | 4544997 |
| 4 | 06/01/1974 | EXECUTORD | Executor Deed | GRIFFIN, FRANCIS A | GRIFFIN, FRANCIS A | | | $34,000.00 | 52548 | 0 |
| 5 | 01/01/1900 | OTHER | Other - Misc. Documents | Unknown | GRIFFIN, FRANCIS A | | | $0.00 | 0 | 0 |
Payout Agreement
| No payout information available.. |