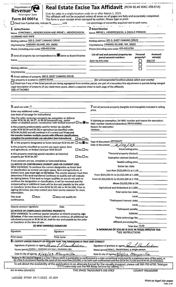
Property
Account |
| Property ID: | 599800 | Abbreviated Legal Description: | 11 - IN GL3: BG NWCR GL3 SD PT SWCR DRIFTWOOD HTS #2 S89*E660' S200' TPB S100' S89*E199.13' TO WLN E CAMANO DR N100' N89*W199.75 TPB TGW EZ (LOT C SP 72-080) |
| Geographic ID: | R33118-375-1030 | Agent Code: | |
| Type: | Real | | |
| Tax Area: | 510 - APPRAISER-Stan/Cam Schl Dist, improved & 1 acre or less | Land Use Code | 11 |
| Open Space: | N | DFL | N |
| Historic Property: | N | Remodel Property: | N |
| Multi-Family Redevelopment: | N | | |
| Township: | 31 | Section: | 18 |
| Range: | R3 |
Location |
| Address: | 920 S EAST CAMANO DR CAMANO ISLAND, WA 98282 | Mapsco: | |
| Neighborhood: | Cycle 5 | Map ID: | 928 |
| Neighborhood CD: | 5 |
Owner |
| Name: | HENDRICKSON, IRENE L | Owner ID: | 309989 |
| Mailing Address: | 920 S EAST CAMANO DR CAMANO ISLAND, WA 98282 | % Ownership: | 100.0000000000% |
| | | Exemptions: | |
Taxes and Assessment Details
Values
| (+) Improvement Homesite Value: | + | $0 | |
| (+) Improvement Non-Homesite Value: | + | $325,296 | |
| (+) Land Homesite Value: | + | $0 | |
| (+) Land Non-Homesite Value: | + | $240,000 | |
| (+) Curr Use (HS): | + | $0 | $0 |
| (+) Curr Use (NHS): | + | $0 | $0 |
| | | -------------------------- | |
| (=) Market Value: | = | $565,296 | |
| (–) Productivity Loss: | – | $0 | |
| | | -------------------------- | |
| (=) Subtotal: | = | $565,296 | |
| (+) Senior Appraised Value: | + | $0 | |
| (+) Non-Senior Appraised Value: | + | $565,296 | |
| | | -------------------------- | |
| (=) Total Appraised Value: | = | $565,296 | |
| (–) Senior Exemption Loss: | – | $0 | |
| (–) Exemption Loss: | – | $0 | |
| | | -------------------------- | |
| (=) Taxable Value: | = | $565,296 | |
Taxing Jurisdiction
| Owner: | HENDRICKSON, IRENE L | | |
| % Ownership: | 100.0000000000% | | |
| Total Value: | $565,296 | | |
| Tax Area: | 510 - APPRAISER-Stan/Cam Schl Dist, improved & 1 acre or less |
| CF | Conservation Futures | 0.0313996660 | $565,296 | $565,296 | $17.75 | | |
| EMS1 | Fire & Rescue Dist #1 Camano GEN (EMS) | 0.4998471806 | $565,296 | $565,296 | $282.56 | | |
| FIRE1 | Fire & Rescue Dist #1 Camano GEN | 1.2496603404 | $565,296 | $565,296 | $706.43 | | |
| FIRE1BOND | Fire & Rescue Dist #1 Camano BOND | 0.1630371212 | $565,296 | $565,296 | $92.16 | | |
| CE | County Current Expense | 0.3674210519 | $565,296 | $565,296 | $207.70 | | |
| CR | County Roads | 0.4614296361 | $565,296 | $565,296 | $260.84 | | |
| LIB | Library Sno-Isle GEN | 0.3039084203 | $565,296 | $565,296 | $171.80 | | |
| SCH205_401 | School 205-401 Enrichment | 1.3697998934 | $565,296 | $565,296 | $774.34 | | |
| SCH205BOND | School 205-401 BOND | 0.9354199323 | $565,296 | $565,296 | $528.79 | | |
| ST | State School | 1.4761226122 | $565,296 | $565,296 | $834.45 | | |
| ST2 | State School Part 2 | 0.7953803475 | $565,296 | $565,296 | $449.63 | | |
| | Total Tax Rate: | 7.6534262019 | | | | | |
| | | | | Taxes w/Current Exemptions: | $4,326.45 | | |
| | | | | Taxes w/o Exemptions: | $4,326.45 | | |
Improvement / Building
| Improvement #1: | RESIDENTIAL | State Code: | Y | 2439.2 sqft | Value: | $325,296 |
| Bathrooms: | 2 | Bedrooms: | 4 | | Ceiling: | DRYWALL PAINTED | Exterior Wall/Cover: | WOOD SIDING | | Floor Covering: | CARPET/VINYL 80-20 | Floor Structure: | WOOD W/SUBFLOOR | | Foundation: | CONCRETE | Heating: | BASEBOARD ELECTRIC | | Interior Finish: | DRYWALL PAINT | Plumbing Fixture Cnt: | 12 | | Roof Slope: | 6" IN 12" | Roof Structure/Cover: | CJ ASPHALT |
|
| | Type | Description | Class CD | Sub Class CD | Year Built | Area |
| | BAS | BASE/MAIN FLOOR | 3 | 0 | 1986 | 1219.6 |
| | OWP | OPEN WOOD PORCH W/STEPS | 3 | 0 | 1986 | 465.4 |
| | OWP | OPEN WOOD PORCH W/STEPS | 3 | 0 | 1986 | 744.2 |
| | DWN | DOWNSTAIRS LIVING AREA | 3 | 0 | 1986 | 1219.6 |
| | DGR | DETACHED GARAGE | 3 | 0 | 1986 | 528.0 |
Sketch
Property Image
Land
| 1 | 15 | SQ (12001-21780) | 0.0000 | 0.00 | 0.00 | 0.00 | 1.00 | $240,000 | $0 |
Roll Value History
| 2026 | N/A | N/A | N/A | N/A | N/A |
| 2025 | $325,296 | $240,000 | $0 | $565,296 | $565,296 |
| 2024 | $336,544 | $220,000 | $0 | $556,544 | $556,544 |
| 2023 | $340,737 | $210,000 | $0 | $550,737 | $550,737 |
| 2022 | $312,340 | $210,000 | $0 | $522,340 | $522,340 |
| 2021 | $255,083 | $150,000 | $0 | $405,083 | $405,083 |
| 2020 | $249,123 | $120,000 | $0 | $369,123 | $369,123 |
| 2019 | $190,086 | $160,000 | $0 | $350,086 | $350,086 |
| 2018 | $190,685 | $140,000 | $0 | $330,685 | $330,685 |
| 2017 | $191,822 | $90,000 | $0 | $281,822 | $281,822 |
| 2016 | $194,220 | $65,000 | $0 | $259,220 | $259,220 |
| 2015 | $189,097 | $50,000 | $0 | $239,097 | $239,097 |
| 2014 | $191,237 | $50,000 | $0 | $241,237 | $241,237 |
| 2013 | $193,377 | $56,000 | $0 | $249,377 | $249,377 |
| 2012 | $195,515 | $56,000 | $0 | $251,515 | $251,515 |
| 2011 | $197,655 | $52,920 | $0 | $250,575 | $250,575 |
| 2010 | $205,646 | $52,920 | $0 | $258,566 | $258,566 |
| 2009 | $207,583 | $90,000 | $0 | $297,583 | $297,583 |
| 2008 | $210,250 | $112,000 | $0 | $322,250 | $322,250 |
| 2007 | $212,866 | $112,000 | $0 | $324,866 | $324,866 |
Deed and Sales History
| 1 | 08/29/2023 | CPADC | Comm Prop Agmnt & Death Cert | HENDRICKSON, JONATHAN L | HENDRICKSON, IRENE L | | | $0.00 | 57909 | 4564433 |
| 2 | 08/24/2006 | WD | Warranty Deed | SEARS, TIM G | HENDRICKSON, JONATHAN L | | | $360,000.00 | 63778 | 4180586 |
| 3 | 07/13/1999 | WD | Warranty Deed | STANDAL, DOUGLAS J | SEARS, TIM G | | | $160,000.00 | 92787 | 99016586 |
| 4 | 09/01/1993 | PRD | Personal Representatives Deed | FRITZE, NORMAN A | STANDAL, DOUGLAS J | | | $107,000.00 | 33748 | 94000437 |
| 5 | 07/01/1978 | OTHER | Other - Misc. Documents | Unknown | FRITZE, NORMAN A | | | $7,000.00 | 83719 | 337467 |
Payout Agreement
| No payout information available.. |