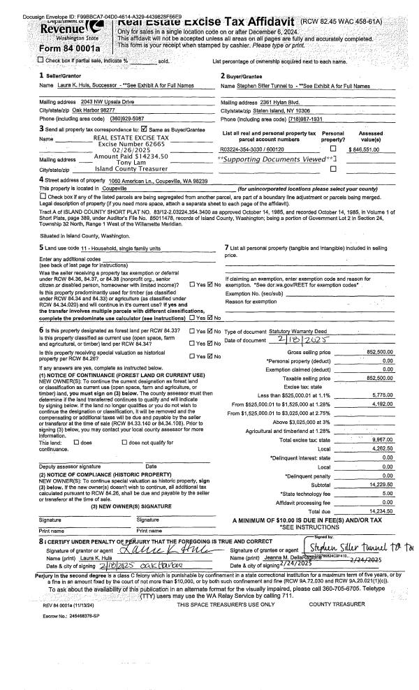
Property
Account |
| Property ID: | 600120 | Abbreviated Legal Description: | LOT A SP 83-12.03224.354-3400 V1 SP P389 AF#85011478 |
| Geographic ID: | R03224-354-3030 | Agent Code: | |
| Type: | Real | | |
| Tax Area: | 332 - APPRAISER-Cpvl Schl Dist, Special Dist, improved, greater than 1 acre | Land Use Code | 11 |
| Open Space: | N | DFL | N |
| Historic Property: | N | Remodel Property: | N |
| Multi-Family Redevelopment: | N | | |
| Township: | 32 | Section: | 24 |
| Range: | R0 |
Location |
| Address: | 1060 AMERICAN LN COUPEVILLE, WA 98239 | Mapsco: | |
| Neighborhood: | Cycle 2 | Map ID: | 5 |
| Neighborhood CD: | 2 |
Owner |
| Name: | STEPHEN SILLER TUNNEL TO TOWERS FOUNDATION | Owner ID: | 315587 |
| Mailing Address: | 2361 HYLAN BLVD STATEN ISLAND, NY 10306 | % Ownership: | 100.0000000000% |
| | | Exemptions: | |
Taxes and Assessment Details
Values
| (+) Improvement Homesite Value: | + | $0 | |
| (+) Improvement Non-Homesite Value: | + | $541,731 | |
| (+) Land Homesite Value: | + | $0 | |
| (+) Land Non-Homesite Value: | + | $308,373 | |
| (+) Curr Use (HS): | + | $0 | $0 |
| (+) Curr Use (NHS): | + | $0 | $0 |
| | | -------------------------- | |
| (=) Market Value: | = | $850,104 | |
| (–) Productivity Loss: | – | $0 | |
| | | -------------------------- | |
| (=) Subtotal: | = | $850,104 | |
| (+) Senior Appraised Value: | + | $0 | |
| (+) Non-Senior Appraised Value: | + | $850,104 | |
| | | -------------------------- | |
| (=) Total Appraised Value: | = | $850,104 | |
| (–) Senior Exemption Loss: | – | $0 | |
| (–) Exemption Loss: | – | $0 | |
| | | -------------------------- | |
| (=) Taxable Value: | = | $850,104 | |
Taxing Jurisdiction
| Owner: | STEPHEN SILLER TUNNEL TO TOWERS FOUNDATION | | |
| % Ownership: | 100.0000000000% | | |
| Total Value: | $850,104 | | |
| Tax Area: | 332 - APPRAISER-Cpvl Schl Dist, Special Dist, improved, greater than 1 acre |
| CF | Conservation Futures | 0.0313996660 | $850,104 | $850,104 | $26.69 | | |
| CEM2 | Cemetery #2 | 0.0092609791 | $850,104 | $850,104 | $7.87 | | |
| FIRE2 | Fire & Rescue Dist #2 N Whidbey GEN | 0.5381486274 | $850,104 | $850,104 | $457.48 | | |
| HOBOND | Hospital BOND | 0.1893405597 | $850,104 | $850,104 | $160.96 | | |
| HOGEN | Hospital GEN | 0.3848777722 | $850,104 | $850,104 | $327.19 | | |
| CE | County Current Expense | 0.3674210519 | $850,104 | $850,104 | $312.35 | | |
| CR | County Roads | 0.4614296361 | $850,104 | $850,104 | $392.26 | | |
| ISLANDEMS | Hospital GEN (EMS) | 0.4952018576 | $850,104 | $850,104 | $420.97 | | |
| LIB | Library Sno-Isle GEN | 0.3039084203 | $850,104 | $850,104 | $258.35 | | |
| LIBCAP | Library Sno-Isle BOND (Cap Fac Imp Area) | 0.0528562629 | $850,104 | $850,104 | $44.93 | | |
| POCOUP | Port of Coupeville GEN | 0.1065226063 | $850,104 | $850,104 | $90.56 | | |
| POCOUPIDD | Port of Coupeville IDD | 0.3353038577 | $850,104 | $850,104 | $285.04 | | |
| COUPSDTECH | School 204 CP (TECH) | 0.1215123397 | $850,104 | $850,104 | $103.30 | | |
| SCH204MO | School 204 Enrichment | 0.6416662518 | $850,104 | $850,104 | $545.48 | | |
| ST | State School | 1.4761226122 | $850,104 | $850,104 | $1,254.86 | | |
| ST2 | State School Part 2 | 0.7953803475 | $850,104 | $850,104 | $676.16 | | |
| | Total Tax Rate: | 6.3103528484 | | | | | |
| | | | | Taxes w/Current Exemptions: | $5,364.45 | | |
| | | | | Taxes w/o Exemptions: | $5,364.45 | | |
Improvement / Building
| Improvement #1: | RESIDENTIAL | State Code: | Y | 3385.7 sqft | Value: | $541,731 |
| Bathrooms: | 3.25 | Bedrooms: | 3 | | Ceiling: | DRYWALL PAINTED | Exterior Wall/Cover: | CEMENT FIBER | | Floor Covering: | CARPET/VINYL 80-20 | Floor Structure: | WOOD W/SUBFLOOR | | Foundation: | CONCRETE | Heating: | BASEBOARD ELECTRIC | | Interior Finish: | DRYWALL PAINT | Plumbing Fixture Cnt: | 13 | | Roof Slope: | 4" IN 12" | Roof Structure/Cover: | CJ ASPHALT |
|
| | Type | Description | Class CD | Sub Class CD | Year Built | Area |
| | BAS | BASE/MAIN FLOOR | 4 | 0 | 1990 | 2569.7 |
| | OP1 | OPEN PORCH SLAB | 4 | 0 | 1990 | 1290.3 |
| | oLOF | STORAGE LOFT | 3 | 0 | 2004 | 432.0 |
| | OP2 | OPEN PORCH W/STEPS | 4 | 0 | 1990 | 160.5 |
| | OP4 | OPEN PORCH W/CEILING-ROOF | 4 | 0 | 1990 | 35.3 |
| | AGR | ATTACHED GARAGE | 4 | 0 | 1990 | 879.1 |
| | UPS | UPPER STORY | 4 | 0 | 1990 | 816.0 |
| | oSTA | STABLE | 3 | 0 | 2004 | 1296.0 |
Sketch
Property Image
Land
| 1 | HS | HOMESITE | 1.0000 | 43560.00 | 0.00 | 0.00 | 1.00 | $220,000 | $0 |
| 2 | 91 | UNDEVELOPED LAND-METES AND BOUNDS | 1.5100 | 65775.60 | 0.00 | 0.00 | 1.00 | $88,373 | $0 |
Roll Value History
| 2026 | N/A | N/A | N/A | N/A | N/A |
| 2025 | $541,731 | $308,373 | $0 | $850,104 | $850,104 |
| 2024 | $566,551 | $280,000 | $0 | $846,551 | $846,551 |
| 2023 | $573,981 | $270,000 | $0 | $843,981 | $843,981 |
| 2022 | $526,459 | $250,000 | $0 | $776,459 | $776,459 |
| 2021 | $463,647 | $170,000 | $0 | $633,647 | $633,647 |
| 2020 | $453,391 | $150,000 | $0 | $603,391 | $603,391 |
| 2019 | $374,072 | $180,000 | $0 | $554,072 | $554,072 |
| 2018 | $361,917 | $160,000 | $0 | $521,917 | $521,917 |
| 2017 | $360,321 | $170,000 | $0 | $530,321 | $530,321 |
| 2016 | $364,129 | $140,000 | $0 | $504,129 | $504,129 |
| 2015 | $367,938 | $125,000 | $0 | $492,938 | $492,938 |
| 2014 | $371,747 | $113,050 | $0 | $484,797 | $484,797 |
| 2013 | $375,554 | $113,050 | $0 | $488,604 | $488,604 |
| 2012 | $382,675 | $113,050 | $0 | $495,725 | $495,725 |
| 2011 | $386,618 | $133,000 | $0 | $519,618 | $519,618 |
| 2010 | $399,992 | $133,000 | $0 | $532,992 | $532,992 |
| 2009 | $415,981 | $144,000 | $0 | $559,981 | $559,981 |
| 2008 | $422,233 | $157,700 | $0 | $579,933 | $579,933 |
| 2007 | $428,527 | $155,000 | $0 | $583,527 | $583,527 |
Deed and Sales History
| 1 | 02/18/2025 | WD | Warranty Deed | HULS TTEE, LAURA K | STEPHEN SILLER TUNNEL TO TOWERS FOUNDATION | | | $852,500.00 | 62665 | 4582665 |
| 2 | 10/17/2018 | QCD | Quit Claim Deed | VAN ZYTVELD, WILLIAM A | VAN ZYTVELD TTEE, WILLIAM ADRIAN | | | $0.00 | 36606 | 4454799 |
| 3 | 06/14/2004 | WD | Warranty Deed | FEY, MARK D | VAN ZYTVELD, WILLIAM A | | | $369,000.00 | 42595 | 4103816 |
| 4 | 02/01/1990 | WD | Warranty Deed | ERICKSON, DE H | FEY, MARK D | | | $28,500.00 | 1193 | 90003878 |
| 5 | 01/01/1983 | QCD | Quit Claim Deed | Unknown | ERICKSON, DE H | | | $0.00 | 30367 | 405873 |
Payout Agreement
| No payout information available.. |