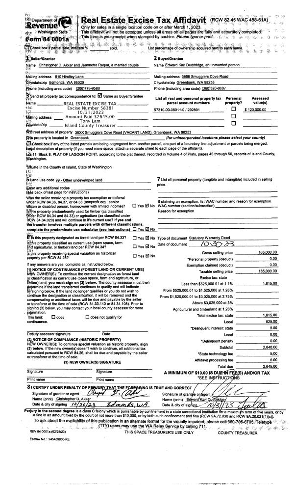
Property
Account |
| Property ID: | 600763 | Abbreviated Legal Description: | 1983 GENERAL 14X66 VIN# SH4948A TPO %71491 FROM K-576157 |
| Geographic ID: | M91100000036-1 | Agent Code: | |
| Type: | Mobile Home | | |
| Tax Area: | 100 - APPRAISER-OH Schl Dist, in OH | Land Use Code | 11 |
| Open Space: | N | DFL | N |
| Historic Property: | N | Remodel Property: | N |
| Multi-Family Redevelopment: | N | | |
| Township: | | Section: | |
| Range: | |
Location |
| Address: | 700 NW CROSBY AVE # 36 OAK HARBOR, WA 98277 | Mapsco: | |
| Neighborhood: | Cycle 1 | Map ID: | |
| Neighborhood CD: | 1 |
Owner |
| Name: | AIDE, AUSTIN JOSEPH | Owner ID: | 310141 |
| Mailing Address: | 700 NW CROSBY #36 OAK HARBOR, WA 98277 | % Ownership: | 100.0000000000% |
| | | Exemptions: | |
Taxes and Assessment Details
Values
| (+) Improvement Homesite Value: | + | $0 | |
| (+) Improvement Non-Homesite Value: | + | $21,283 | |
| (+) Land Homesite Value: | + | $0 | |
| (+) Land Non-Homesite Value: | + | $0 | |
| (+) Curr Use (HS): | + | $0 | $0 |
| (+) Curr Use (NHS): | + | $0 | $0 |
| | | -------------------------- | |
| (=) Market Value: | = | $21,283 | |
| (–) Productivity Loss: | – | $0 | |
| | | -------------------------- | |
| (=) Subtotal: | = | $21,283 | |
| (+) Senior Appraised Value: | + | $0 | |
| (+) Non-Senior Appraised Value: | + | $21,283 | |
| | | -------------------------- | |
| (=) Total Appraised Value: | = | $21,283 | |
| (–) Senior Exemption Loss: | – | $0 | |
| (–) Exemption Loss: | – | $0 | |
| | | -------------------------- | |
| (=) Taxable Value: | = | $21,283 | |
Taxing Jurisdiction
| Owner: | AIDE, AUSTIN JOSEPH | | |
| % Ownership: | 100.0000000000% | | |
| Total Value: | $21,283 | | |
| Tax Area: | 100 - APPRAISER-OH Schl Dist, in OH |
| CF | Conservation Futures | 0.0313996660 | $21,283 | $21,283 | $0.67 | | |
| CEM1 | Cemetery #1 | 0.0040018856 | $21,283 | $21,283 | $0.09 | | |
| COH | City of Oak Harbor | 2.3090730572 | $21,283 | $21,283 | $49.14 | | |
| OAKBOND | City of Oak Harbor BOND | 0.1902260131 | $21,283 | $21,283 | $4.05 | | |
| HOBOND | Hospital BOND | 0.1893405597 | $21,283 | $21,283 | $4.03 | | |
| HOGEN | Hospital GEN | 0.3848777722 | $21,283 | $21,283 | $8.19 | | |
| CE | County Current Expense | 0.3674210519 | $21,283 | $21,283 | $7.82 | | |
| ISLANDEMS | Hospital GEN (EMS) | 0.4952018576 | $21,283 | $21,283 | $10.54 | | |
| LIB | Library Sno-Isle GEN | 0.3039084203 | $21,283 | $21,283 | $6.47 | | |
| NWHIDPRMT | P & R N Whidbey GEN | 0.1990272349 | $21,283 | $21,283 | $4.24 | | |
| SCH201MO | School 201 Enrichment | 2.3851112745 | $21,283 | $21,283 | $50.76 | | |
| ST | State School | 1.4761226122 | $21,283 | $21,283 | $31.42 | | |
| ST2 | State School Part 2 | 0.7953803475 | $21,283 | $21,283 | $16.93 | | |
| | Total Tax Rate: | 9.1310917527 | | | | | |
| | | | | Taxes w/Current Exemptions: | $194.35 | | |
| | | | | Taxes w/o Exemptions: | $194.35 | | |
Improvement / Building
| Improvement #1: | MANUFACTURED HOME | State Code: | Y | 924.0 sqft | Value: | $21,283 |
| Bathrooms: | 1 | Bedrooms: | 2 | | Ceiling: | PLASTER PAINTED | Cooling: | EVAP NO DUCT | | Exterior Wall/Cover: | VINYL | Floor Covering: | CARPET 100% | | Floor Structure: | SLAB ON GRADE | Foundation: | SLAB | | Heating: | FHA ELECTRIC | Interior Finish: | PLASTER | | Plumbing Fixture Cnt: | 1 | Roof Slope: | FLAT | | Roof Structure/Cover: | CJ ALUMINIUM HEAVY |   |   |
|
Sketch
Property Image
Land
No land segments exist for this property.
Roll Value History
| 2026 | N/A | N/A | N/A | N/A | N/A |
| 2025 | $21,283 | $0 | $0 | $21,283 | $21,283 |
| 2024 | $22,057 | $0 | $0 | $22,057 | $22,057 |
| 2023 | $12,693 | $0 | $0 | $12,693 | $12,693 |
| 2022 | $12,016 | $0 | $0 | $12,016 | $12,016 |
| 2021 | $10,903 | $0 | $0 | $10,903 | $10,903 |
| 2020 | $11,244 | $0 | $0 | $11,244 | $11,244 |
| 2019 | $9,208 | $0 | $0 | $9,208 | $9,208 |
| 2018 | $9,555 | $0 | $0 | $9,555 | $9,555 |
| 2017 | $9,927 | $0 | $0 | $9,927 | $9,927 |
| 2016 | $10,393 | $0 | $0 | $10,393 | $10,393 |
| 2015 | $10,859 | $0 | $0 | $10,859 | $10,859 |
| 2014 | $11,325 | $0 | $0 | $11,325 | $11,325 |
| 2013 | $11,791 | $0 | $0 | $11,791 | $11,791 |
| 2012 | $12,491 | $0 | $0 | $12,491 | $12,491 |
| 2011 | $12,957 | $0 | $0 | $12,957 | $12,957 |
| 2010 | $8,240 | $0 | $0 | $8,240 | $8,240 |
| 2009 | $10,321 | $0 | $0 | $10,321 | $10,321 |
| 2008 | $10,736 | $0 | $0 | $10,736 | $10,736 |
| 2007 | $11,151 | $0 | $0 | $11,151 | $11,151 |
Deed and Sales History
| 1 | 09/22/2023 | MANHOME | Manufactured Home | SOMERVILLE, CLAUDIA | AIDE, AUSTIN JOSEPH | | | $45,000.00 | 58042 | |
| 2 | 07/24/2023 | MANHOME | Manufactured Home | DELUNA, BERNADINE | SOMERVILLE, CLAUDIA | | | $23,790.00 | 57404 | |
| 3 | 07/18/2009 | OTHER | Other - Misc. Documents | COOK, KEITH A | DELUNA, BERNADINE | | | $14,000.00 | 91641 | 0 |
| 4 | 06/09/2004 | OTHER | Other - Misc. Documents | COOK, ROBERT E | COOK, KEITH A | | | $7,500.00 | 41422 | 0 |
| 5 | 04/28/2003 | OTHER | Other - Misc. Documents | COWEN, CHARLES W | COOK, ROBERT E | | | $7,500.00 | 31754 | 0 |
| 6 | 01/29/2003 | WD | Warranty Deed | POISSANT, ROBERT J | COWEN, CHARLES W | | | $2,000.00 | 30353 | 0 |
| 7 | 10/01/1994 | OTHER | Other - Misc. Documents | LACOMBE, PAUL A | POISSANT, ROBERT J | | | $16,500.00 | 44420 | 0 |
| 8 | 02/01/1993 | OTHER | Other - Misc. Documents | EBSCH, ALLEN L | LACOMBE, PAUL A | | | $14,200.00 | 30723 | 0 |
| 9 | 04/01/1990 | OTHER | Other - Misc. Documents | DEHNE, DOUGLAS J | EBSCH, ALLEN L | | | $13,930.00 | 2133 | 0 |
| 10 | 11/01/1985 | OTHER | Other - Misc. Documents | Unknown | DEHNE, DOUGLAS J | | | $0.00 | 53219 | 0 |
Payout Agreement
| No payout information available.. |