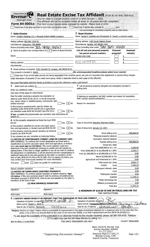
Property
Account |
| Property ID: | 600870 | Abbreviated Legal Description: | N/2 SW SW SE FR 074-3270 REL EZS AF#92012364 REL EZS AF#92012228 |
| Geographic ID: | R32902-058-3280 | Agent Code: | |
| Type: | Real | | |
| Tax Area: | 712 - APPRAISER-S Whid Schl Dist, outside Langley, improved, greater than 1 acre | Land Use Code | 11 |
| Open Space: | N | DFL | N |
| Historic Property: | N | Remodel Property: | N |
| Multi-Family Redevelopment: | N | | |
| Township: | 29 | Section: | 02 |
| Range: | R3 |
Location |
| Address: | 5161 CAMELOT CT LANGLEY, WA 98260 | Mapsco: | |
| Neighborhood: | Cycle 4 | Map ID: | 719 |
| Neighborhood CD: | 4 |
Owner |
| Name: | JEWELL, CHRISTOPHER EDWARD CARLOS | Owner ID: | 297863 |
| Mailing Address: | JAMES VAUGHAN 1402 S DAKOTA ST SEATTLE, WA 98109 | % Ownership: | 100.0000000000% |
| | | Exemptions: | |
Taxes and Assessment Details
Values
| (+) Improvement Homesite Value: | + | $0 | |
| (+) Improvement Non-Homesite Value: | + | $322,368 | |
| (+) Land Homesite Value: | + | $0 | |
| (+) Land Non-Homesite Value: | + | $370,000 | |
| (+) Curr Use (HS): | + | $0 | $0 |
| (+) Curr Use (NHS): | + | $0 | $0 |
| | | -------------------------- | |
| (=) Market Value: | = | $692,368 | |
| (–) Productivity Loss: | – | $0 | |
| | | -------------------------- | |
| (=) Subtotal: | = | $692,368 | |
| (+) Senior Appraised Value: | + | $0 | |
| (+) Non-Senior Appraised Value: | + | $692,368 | |
| | | -------------------------- | |
| (=) Total Appraised Value: | = | $692,368 | |
| (–) Senior Exemption Loss: | – | $0 | |
| (–) Exemption Loss: | – | $0 | |
| | | -------------------------- | |
| (=) Taxable Value: | = | $692,368 | |
Taxing Jurisdiction
| Owner: | JEWELL, CHRISTOPHER EDWARD CARLOS | | |
| % Ownership: | 100.0000000000% | | |
| Total Value: | $692,368 | | |
| Tax Area: | 712 - APPRAISER-S Whid Schl Dist, outside Langley, improved, greater than 1 acre |
| CF | Conservation Futures | 0.0313996660 | $692,368 | $692,368 | $21.74 | | |
| FIRE3 | Fire & Rescue Dist #3 S Whidbey GEN | 1.2130821753 | $692,368 | $692,368 | $839.90 | | |
| HOBOND | Hospital BOND | 0.1893405597 | $692,368 | $692,368 | $131.09 | | |
| HOGEN | Hospital GEN | 0.3848777722 | $692,368 | $692,368 | $266.48 | | |
| CE | County Current Expense | 0.3674210519 | $692,368 | $692,368 | $254.39 | | |
| CR | County Roads | 0.4614296361 | $692,368 | $692,368 | $319.48 | | |
| ISLANDEMS | Hospital GEN (EMS) | 0.4952018576 | $692,368 | $692,368 | $342.86 | | |
| LIB | Library Sno-Isle GEN | 0.3039084203 | $692,368 | $692,368 | $210.42 | | |
| PORTWHID | Port of S Whidbey GEN | 0.1086004714 | $692,368 | $692,368 | $75.19 | | |
| SCH206BOND | School 206 BOND | 0.5960237832 | $692,368 | $692,368 | $412.67 | | |
| SCH206CAP | School 206 CP | 0.3066144020 | $692,368 | $692,368 | $212.29 | | |
| SCH206MO | School 206 Enrichment | 0.4808755445 | $692,368 | $692,368 | $332.94 | | |
| ST | State School | 1.4761226122 | $692,368 | $692,368 | $1,022.02 | | |
| ST2 | State School Part 2 | 0.7953803475 | $692,368 | $692,368 | $550.70 | | |
| SWHIDPRBD | P & R S Whidbey BOND | 0.0144185398 | $692,368 | $692,368 | $9.98 | | |
| SWHIDPRBD3 | P & R S Whidbey BOND3 | 0.1483535547 | $692,368 | $692,368 | $102.72 | | |
| SWHIDPRMT | P & R S Whidbey GEN | 0.4600000000 | $692,368 | $692,368 | $318.49 | | |
| | Total Tax Rate: | 7.8330503944 | | | | | |
| | | | | Taxes w/Current Exemptions: | $5,423.36 | | |
| | | | | Taxes w/o Exemptions: | $5,423.36 | | |
Improvement / Building
| Improvement #1: | RESIDENTIAL | State Code: | Y | 1725.9 sqft | Value: | $322,368 |
| Bathrooms: | 2.5 | Bedrooms: | 2 | | Ceiling: | DRYWALL PAINTED | Exterior Wall/Cover: | PLY/HARDBOARD T-111 | | Floor Covering: | CARPET/VINYL 20-80 | Floor Structure: | WOOD W/SUBFLOOR | | Foundation: | CONCRETE | Heating: | WALL HEAT ELECTRIC | | Interior Finish: | DRYWALL PAINT | Plumbing Fixture Cnt: | 12 | | Roof Slope: | 5" IN 12" | Roof Structure/Cover: | CJ ASPHALT |
|
| | Type | Description | Class CD | Sub Class CD | Year Built | Area |
| | BAS | BASE/MAIN FLOOR | 3 | 0 | 1996 | 991.9 |
| | AGR | ATTACHED GARAGE | 3 | 0 | 1996 | 483.8 |
| | UPS | UPPER STORY | 3 | 0 | 1996 | 734.0 |
| | OWP | OPEN WOOD PORCH W/STEPS | 3 | 0 | 1996 | 80.0 |
| | OWP | OPEN WOOD PORCH W/STEPS | 3 | 0 | 1996 | 130.0 |
| | OWR | OPEN WOOD PORCH W/STEPS/ROOF | 3 | 0 | 1996 | 76.0 |
Sketch
Property Image
Land
| 1 | 32 | AC (03.01-09.99) | 4.8900 | 0.00 | 0.00 | 0.00 | 1.00 | $370,000 | $0 |
Roll Value History
| 2026 | N/A | N/A | N/A | N/A | N/A |
| 2025 | $322,368 | $370,000 | $0 | $692,368 | $692,368 |
| 2024 | $326,149 | $350,000 | $0 | $676,149 | $676,149 |
| 2023 | $329,930 | $330,000 | $0 | $659,930 | $659,930 |
| 2022 | $302,172 | $280,000 | $0 | $582,172 | $582,172 |
| 2021 | $265,746 | $230,000 | $0 | $495,746 | $495,746 |
| 2020 | $215,178 | $190,000 | $0 | $405,178 | $405,178 |
| 2019 | $156,447 | $250,000 | $0 | $406,447 | $406,447 |
| 2018 | $156,930 | $210,000 | $0 | $366,930 | $366,930 |
| 2017 | $157,893 | $190,000 | $0 | $347,893 | $347,893 |
| 2016 | $159,817 | $165,000 | $0 | $324,817 | $324,817 |
| 2015 | $161,743 | $135,000 | $0 | $296,743 | $296,743 |
| 2014 | $165,187 | $91,530 | $0 | $256,717 | $256,717 |
| 2013 | $167,090 | $91,530 | $0 | $258,620 | $258,620 |
| 2012 | $158,699 | $91,530 | $0 | $250,229 | $250,229 |
| 2011 | $160,563 | $91,530 | $0 | $252,093 | $252,093 |
| 2010 | $162,302 | $91,530 | $0 | $253,832 | $253,832 |
| 2009 | $169,389 | $149,160 | $0 | $318,549 | $318,549 |
| 2008 | $165,827 | $189,060 | $0 | $354,887 | $354,887 |
| 2007 | $167,901 | $189,060 | $0 | $356,961 | $356,961 |
Deed and Sales History
| 1 | 01/22/2021 | WD | Warranty Deed | HOLDEM HOLDINGS LLC | JEWELL, CHRISTOPHER EDWARD CARLOS | | | $698,888.00 | 46699 | 4509182 |
| 2 | 12/05/2018 | WD | Warranty Deed | STARK, JOHN R | HOLDEM HOLDINGS LLC | | | $310,000.00 | 36932 | 4456281 |
| 3 | 03/15/2012 | WD | Warranty Deed | MORSCH, ROBIN C | STARK, JOHN R | | | $295,000.00 | 7156 | 4312057 |
| 4 | 09/09/2004 | WD | Warranty Deed | SWEGLER-THOMAS, KAREN B | MORSCH, ROBIN C | | | $267,000.00 | 44215 | 4112344 |
| 5 | 02/23/2001 | QCD | Quit Claim Deed | THOMAS, MICHAEL A | SWEGLER-THOMAS, KAREN B | | | $0.00 | 10552 | 20025863 |
| 6 | 09/01/1996 | WD | Warranty Deed | R, K P | THOMAS, MICHAEL A | | | $165,500.00 | 63230 | 96015771 |
| 7 | 08/01/1995 | WD | Warranty Deed | DEROO, VIVIAN V | R, K P | | | $58,000.00 | 52835 | 95013051 |
| 8 | 04/01/1994 | DECREE | Divorce Decree/Legal Separation | DEROO, DEAN W | DEROO, VIVIAN V | | | $0.00 | 43151 | 94016894 |
| 9 | 07/01/1991 | WD | Warranty Deed | SWENSON, LINDA R | DEROO, DEAN W | | | $38,000.00 | 12571 | 91010894 |
| 10 | 10/01/1990 | DECREE | Divorce Decree/Legal Separation | Unknown | SWENSON, LINDA R | | | $0.00 | 6672 | 90023298 |
Payout Agreement
| No payout information available.. |