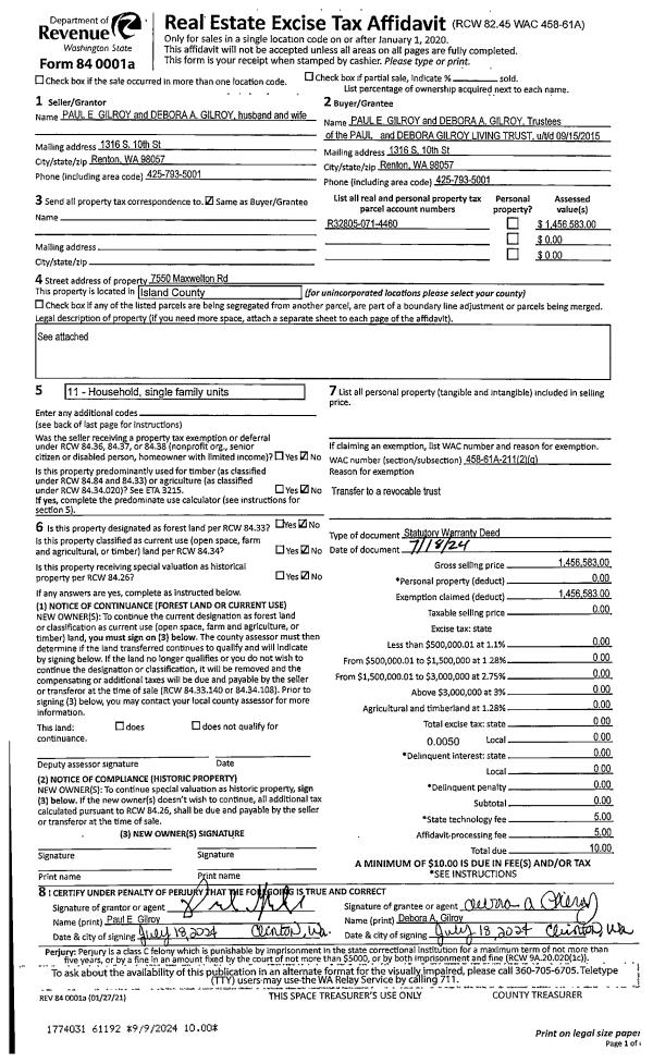
Property
Account |
| Property ID: | 601085 | Abbreviated Legal Description: | 33 - BG SW CR GL 1 W22'M/L TO WLN CO RD N26*E660'TPB N26*E53.17' N63*W18.92' S26*W5.19' N62*W35.20' N10*W1.68' N63*W TO LOTDLN SLY ALG LOTDLN 50'M/L S63*E TPB (INCL ADJ TIDES) VAC EZ AF#91006814 AF#91006317 |
| Geographic ID: | R32805-071-4460 | Agent Code: | |
| Type: | Real | | |
| Tax Area: | 710 - APPRAISER-S Whid Schl Dist, outside Langley, improved & 1 acre or less | Land Use Code | 11 |
| Open Space: | N | DFL | N |
| Historic Property: | N | Remodel Property: | N |
| Multi-Family Redevelopment: | N | | |
| Township: | 28 | Section: | 05 |
| Range: | R3 |
Location |
| Address: | 7550 MAXWELTON RD CLINTON, WA 98236 | Mapsco: | |
| Neighborhood: | Cycle 4 | Map ID: | 691 |
| Neighborhood CD: | 4 |
Owner |
| Name: | GILROY TTEE, PAUL E | Owner ID: | 313799 |
| Mailing Address: | DEBORA A GILROY TTEE 1316 S 10TH ST RENTON, WA 98057 | % Ownership: | 100.0000000000% |
| | | Exemptions: | |
Taxes and Assessment Details
Values
| (+) Improvement Homesite Value: | + | $0 | |
| (+) Improvement Non-Homesite Value: | + | $516,852 | |
| (+) Land Homesite Value: | + | $0 | |
| (+) Land Non-Homesite Value: | + | $950,500 | |
| (+) Curr Use (HS): | + | $0 | $0 |
| (+) Curr Use (NHS): | + | $0 | $0 |
| | | -------------------------- | |
| (=) Market Value: | = | $1,467,352 | |
| (–) Productivity Loss: | – | $0 | |
| | | -------------------------- | |
| (=) Subtotal: | = | $1,467,352 | |
| (+) Senior Appraised Value: | + | $0 | |
| (+) Non-Senior Appraised Value: | + | $1,467,352 | |
| | | -------------------------- | |
| (=) Total Appraised Value: | = | $1,467,352 | |
| (–) Senior Exemption Loss: | – | $0 | |
| (–) Exemption Loss: | – | $0 | |
| | | -------------------------- | |
| (=) Taxable Value: | = | $1,467,352 | |
Taxing Jurisdiction
| Owner: | GILROY TTEE, PAUL E | | |
| % Ownership: | 100.0000000000% | | |
| Total Value: | $1,467,352 | | |
| Tax Area: | 710 - APPRAISER-S Whid Schl Dist, outside Langley, improved & 1 acre or less |
| CF | Conservation Futures | 0.0313996660 | $1,467,352 | $1,467,352 | $46.07 | | |
| FIRE3 | Fire & Rescue Dist #3 S Whidbey GEN | 1.2130821753 | $1,467,352 | $1,467,352 | $1,780.02 | | |
| HOBOND | Hospital BOND | 0.1893405597 | $1,467,352 | $1,467,352 | $277.83 | | |
| HOGEN | Hospital GEN | 0.3848777722 | $1,467,352 | $1,467,352 | $564.75 | | |
| CE | County Current Expense | 0.3674210519 | $1,467,352 | $1,467,352 | $539.14 | | |
| CR | County Roads | 0.4614296361 | $1,467,352 | $1,467,352 | $677.08 | | |
| ISLANDEMS | Hospital GEN (EMS) | 0.4952018576 | $1,467,352 | $1,467,352 | $726.64 | | |
| LIB | Library Sno-Isle GEN | 0.3039084203 | $1,467,352 | $1,467,352 | $445.94 | | |
| PORTWHID | Port of S Whidbey GEN | 0.1086004714 | $1,467,352 | $1,467,352 | $159.36 | | |
| SCH206BOND | School 206 BOND | 0.5960237832 | $1,467,352 | $1,467,352 | $874.58 | | |
| SCH206CAP | School 206 CP | 0.3066144020 | $1,467,352 | $1,467,352 | $449.91 | | |
| SCH206MO | School 206 Enrichment | 0.4808755445 | $1,467,352 | $1,467,352 | $705.61 | | |
| ST | State School | 1.4761226122 | $1,467,352 | $1,467,352 | $2,165.99 | | |
| ST2 | State School Part 2 | 0.7953803475 | $1,467,352 | $1,467,352 | $1,167.10 | | |
| SWHIDPRBD | P & R S Whidbey BOND | 0.0144185398 | $1,467,352 | $1,467,352 | $21.16 | | |
| SWHIDPRBD3 | P & R S Whidbey BOND3 | 0.1483535547 | $1,467,352 | $1,467,352 | $217.69 | | |
| SWHIDPRMT | P & R S Whidbey GEN | 0.4600000000 | $1,467,352 | $1,467,352 | $674.98 | | |
| | Total Tax Rate: | 7.8330503944 | | | | | |
| | | | | Taxes w/Current Exemptions: | $11,493.85 | | |
| | | | | Taxes w/o Exemptions: | $11,493.85 | | |
Improvement / Building
| Improvement #1: | RESIDENTIAL | State Code: | Y | 1110.0 sqft | Value: | $159,616 |
| Bathrooms: | 0 | Bedrooms: | 2 | | Ceiling: | DRYWALL PAINTED | Exterior Wall/Cover: | WOOD SIDING | | Floor Covering: | CARPET/VINYL 80-20 | Floor Structure: | WOOD W/SUBFLOOR | | Foundation: | SLAB | Heating: | BASEBOARD ELECTRIC | | Interior Finish: | DRYWALL PAINT | Plumbing Fixture Cnt: | 4 | | Roof Slope: | 4" IN 12" | Roof Structure/Cover: | CJ ASPHALT |
|
| | Type | Description | Class CD | Sub Class CD | Year Built | Area |
| | BAS | BASE/MAIN FLOOR | 3 | 0 | 1985 | 1020.0 |
| | DWN | DOWNSTAIRS LIVING AREA | 3 | 0 | 1985 | 90.0 |
| | BIG | BUILT IN GARAGE | 3 | 0 | 1985 | 930.0 |
| Improvement #2: | RESIDENTIAL | State Code: | Y | 2626.0 sqft | Value: | $357,236 |
| Bathrooms: | 3 | Bedrooms: | 2 | | Ceiling: | DRY WALL SPRAYED | Exterior Wall/Cover: | WOOD SIDING | | Floor Covering: | HARDWOOD/CARP 60-40 | Floor Structure: | WOOD W/SUBFLOOR | | Foundation: | CONCRETE | Heating: | FHA GAS | | Interior Finish: | DRYWALL PAINT | Plumbing Fixture Cnt: | 12 | | Roof Slope: | 4" IN 12" | Roof Structure/Cover: | CJ ASPHALT |
|
| | Type | Description | Class CD | Sub Class CD | Year Built | Area |
| | BAS | BASE/MAIN FLOOR | 3 | 0 | 1972 | 1644.0 |
| | UPS | UPPER STORY | 3 | 0 | 1972 | 982.0 |
| | OWP | OPEN WOOD PORCH W/STEPS | 3 | 0 | 1972 | 432.0 |
| | OWP | OPEN WOOD PORCH W/STEPS | 3 | 0 | 1972 | 716.0 |
| | OWC | OPEN WOOD PORCH W/STEPS/ROOF/C | 3 | 0 | 1972 | 80.0 |
| | OWC | OPEN WOOD PORCH W/STEPS/ROOF/C | 3 | 0 | 1972 | 192.0 |
| | oWDD | WOOD DECK | 3 | 0 | 1972 | 0.0 |
| | oWDD | WOOD DECK | 3 | 0 | 1972 | 0.0 |
Sketch
Property Image
Land
| 1 | LB | LOW BANK | 0.4200 | 18295.20 | 50.00 | 0.00 | 1.00 | $950,000 | $0 |
| 2 | 55 | TIDES | 0.0000 | 0.00 | 50.00 | 0.00 | 1.00 | $500 | $0 |
Roll Value History
| 2026 | N/A | N/A | N/A | N/A | N/A |
| 2025 | $516,852 | $950,500 | $0 | $1,467,352 | $1,467,352 |
| 2024 | $498,814 | $950,500 | $0 | $1,449,314 | $1,449,314 |
| 2023 | $506,083 | $950,500 | $0 | $1,456,583 | $1,456,583 |
| 2022 | $465,117 | $900,500 | $0 | $1,365,617 | $1,365,617 |
| 2021 | $410,043 | $600,500 | $0 | $1,010,543 | $1,010,543 |
| 2020 | $400,004 | $630,500 | $0 | $1,030,504 | $1,030,504 |
| 2019 | $307,248 | $680,500 | $0 | $987,748 | $987,748 |
| 2018 | $308,285 | $600,500 | $0 | $908,785 | $908,785 |
| 2017 | $310,364 | $600,500 | $0 | $910,864 | $910,864 |
| 2016 | $314,522 | $600,500 | $0 | $915,022 | $915,022 |
| 2015 | $318,677 | $600,500 | $0 | $919,177 | $919,177 |
| 2014 | $301,797 | $600,500 | $0 | $902,297 | $902,297 |
| 2013 | $305,921 | $637,040 | $0 | $942,961 | $942,961 |
| 2012 | $310,046 | $637,040 | $0 | $947,086 | $947,086 |
| 2011 | $314,169 | $637,040 | $0 | $951,209 | $951,209 |
| 2010 | $325,134 | $637,040 | $0 | $962,174 | $962,174 |
| 2009 | $340,543 | $794,599 | $0 | $1,135,142 | $1,135,142 |
| 2008 | $333,927 | $796,175 | $0 | $1,130,102 | $1,130,102 |
| 2007 | $338,096 | $604,863 | $0 | $942,959 | $942,959 |
Deed and Sales History
| 1 | 07/18/2024 | WD | Warranty Deed | GILROY, PAUL E | GILROY TTEE, PAUL E | | | $0.00 | 61192 | 4576789 |
| 2 | 08/21/2019 | WD | Warranty Deed | GILROY, KENNETH E | GILROY, PAUL E | | | $2,000,000.00 | 39969 | 4469969 |
| 3 | 10/02/2012 | QCD | Quit Claim Deed | GILROY, KENNETH | GILROY, KENNETH E | | | $0.00 | 9257 | 4325610 |
| 4 | 02/05/2011 | QCD | Quit Claim Deed | SLABAUGH, DARRELL W | GILROY, KENNETH | | | $0.00 | 3757 | 4291692 |
| 5 | 05/07/2009 | ESTSEPPROP | Establish Separate Property | GILROY, KEN | GILROY, KENNETH | | | $0.00 | 91004 | 4250741 |
| 6 | 06/01/1991 | OTHER | Other - Misc. Documents | GILROY, KEN | GILROY, KEN | | | $0.00 | 64250 | 91008226 |
| 7 | 12/01/1985 | OTHER | Other - Misc. Documents | GILROY, KEN | GILROY, KEN | | | $0.00 | 61407 | 85002221 |
| 8 | 01/01/1900 | OTHER | Other - Misc. Documents | Unknown | GILROY, KEN | | | $0.00 | 0 | 0 |
Payout Agreement
| No payout information available.. |