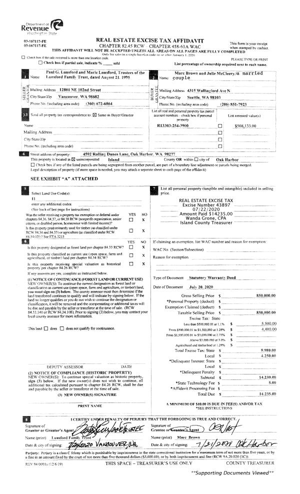
Property
Account |
| Property ID: | 601673 | Abbreviated Legal Description: | LOT 3 SP 83-50.23227.375-4150 V1 SP P386 AF#85011360 |
| Geographic ID: | R23227-368-4170 | Agent Code: | |
| Type: | Real | | |
| Tax Area: | 512 - APPRAISER-Stan/Cam Schl Dist, improved, greater than 1 acre | Land Use Code | 11 |
| Open Space: | N | DFL | N |
| Historic Property: | N | Remodel Property: | N |
| Multi-Family Redevelopment: | N | | |
| Township: | 32 | Section: | 27 |
| Range: | R2 |
Location |
| Address: | 673 SCANDIA PKWY CAMANO ISLAND, WA 98282 | Mapsco: | |
| Neighborhood: | North Camano | Map ID: | 571 |
| Neighborhood CD: | 06-C |
Owner |
| Name: | SPAGNOLO, BETHEL J | Owner ID: | 293876 |
| Mailing Address: | 673 SCANDIA PARKWAY CAMANO ISLAND, WA 98282 | % Ownership: | 100.0000000000% |
| | | Exemptions: | |
Taxes and Assessment Details
Values
| (+) Improvement Homesite Value: | + | $0 | |
| (+) Improvement Non-Homesite Value: | + | $453,957 | |
| (+) Land Homesite Value: | + | $0 | |
| (+) Land Non-Homesite Value: | + | $300,000 | |
| (+) Curr Use (HS): | + | $0 | $0 |
| (+) Curr Use (NHS): | + | $0 | $0 |
| | | -------------------------- | |
| (=) Market Value: | = | $753,957 | |
| (–) Productivity Loss: | – | $0 | |
| | | -------------------------- | |
| (=) Subtotal: | = | $753,957 | |
| (+) Senior Appraised Value: | + | $0 | |
| (+) Non-Senior Appraised Value: | + | $753,957 | |
| | | -------------------------- | |
| (=) Total Appraised Value: | = | $753,957 | |
| (–) Senior Exemption Loss: | – | $0 | |
| (–) Exemption Loss: | – | $0 | |
| | | -------------------------- | |
| (=) Taxable Value: | = | $753,957 | |
Taxing Jurisdiction
| Owner: | SPAGNOLO, BETHEL J | | |
| % Ownership: | 100.0000000000% | | |
| Total Value: | $753,957 | | |
| Tax Area: | 512 - APPRAISER-Stan/Cam Schl Dist, improved, greater than 1 acre |
| CF | Conservation Futures | 0.0313996660 | $753,957 | $753,957 | $23.67 | | |
| EMS1 | Fire & Rescue Dist #1 Camano GEN (EMS) | 0.4998471806 | $753,957 | $753,957 | $376.86 | | |
| FIRE1 | Fire & Rescue Dist #1 Camano GEN | 1.2496603404 | $753,957 | $753,957 | $942.19 | | |
| FIRE1BOND | Fire & Rescue Dist #1 Camano BOND | 0.1630371212 | $753,957 | $753,957 | $122.92 | | |
| CE | County Current Expense | 0.3674210519 | $753,957 | $753,957 | $277.02 | | |
| CR | County Roads | 0.4614296361 | $753,957 | $753,957 | $347.90 | | |
| LIB | Library Sno-Isle GEN | 0.3039084203 | $753,957 | $753,957 | $229.13 | | |
| SCH205_401 | School 205-401 Enrichment | 1.3697998934 | $753,957 | $753,957 | $1,032.77 | | |
| SCH205BOND | School 205-401 BOND | 0.9354199323 | $753,957 | $753,957 | $705.27 | | |
| ST | State School | 1.4761226122 | $753,957 | $753,957 | $1,112.93 | | |
| ST2 | State School Part 2 | 0.7953803475 | $753,957 | $753,957 | $599.68 | | |
| | Total Tax Rate: | 7.6534262019 | | | | | |
| | | | | Taxes w/Current Exemptions: | $5,770.34 | | |
| | | | | Taxes w/o Exemptions: | $5,770.34 | | |
Improvement / Building
| Improvement #1: | RESIDENTIAL | State Code: | Y | 1917.1 sqft | Value: | $453,957 |
| Bathrooms: | 2.5 | Bedrooms: | 3 | | Ceiling: | DRYWALL PAINTED | Cooling: | HEAT PUMP/CONV/V | | Exterior Wall/Cover: | CEMENT FIBER | Floor Covering: | HARDWOOD/CARP 20-80 | | Floor Structure: | WOOD W/SUBFLOOR | Foundation: | CONCRETE | | Interior Finish: | DRYWALL PAINT | Plumbing Fixture Cnt: | 14 | | Roof Slope: | 10" IN 12" | Roof Structure/Cover: | CJ ASPHALT |
|
| | Type | Description | Class CD | Sub Class CD | Year Built | Area |
| | BAS | BASE/MAIN FLOOR | 4 | 0 | 2004 | 1917.1 |
| | OP4 | OPEN PORCH W/CEILING-ROOF | 4 | 0 | 2004 | 73.5 |
| | AGR | ATTACHED GARAGE | 4 | 0 | 2004 | 815.6 |
| | OWP | OPEN WOOD PORCH W/STEPS | 4 | 0 | 2004 | 446.0 |
Sketch
Property Image
Land
| 1 | 17 | AC (01.01-02.00) | 1.2500 | 54450.00 | 0.00 | 0.00 | 1.00 | $300,000 | $0 |
Roll Value History
| 2026 | N/A | N/A | N/A | N/A | N/A |
| 2025 | $453,957 | $300,000 | $0 | $753,957 | $753,957 |
| 2024 | $459,282 | $290,000 | $0 | $749,282 | $749,282 |
| 2023 | $464,607 | $290,000 | $0 | $754,607 | $754,607 |
| 2022 | $419,226 | $260,000 | $0 | $679,226 | $679,226 |
| 2021 | $368,770 | $190,000 | $0 | $558,770 | $558,770 |
| 2020 | $342,177 | $150,000 | $0 | $492,177 | $492,177 |
| 2019 | $249,392 | $180,000 | $0 | $429,392 | $429,392 |
| 2018 | $250,116 | $150,000 | $0 | $400,116 | $400,116 |
| 2017 | $251,535 | $120,000 | $0 | $371,535 | $371,535 |
| 2016 | $254,427 | $130,000 | $0 | $384,427 | $384,427 |
| 2015 | $257,318 | $74,400 | $0 | $331,718 | $331,718 |
| 2014 | $237,935 | $74,400 | $0 | $312,335 | $312,335 |
| 2013 | $240,608 | $74,400 | $0 | $315,008 | $315,008 |
| 2012 | $243,280 | $74,400 | $0 | $317,680 | $317,680 |
| 2011 | $245,956 | $93,000 | $0 | $338,956 | $338,956 |
| 2010 | $271,664 | $93,000 | $0 | $364,664 | $364,664 |
| 2009 | $286,000 | $113,730 | $0 | $399,730 | $399,730 |
| 2008 | $286,276 | $100,000 | $0 | $386,276 | $386,276 |
| 2007 | $289,445 | $100,000 | $0 | $389,445 | $389,445 |
Deed and Sales History
| 1 | 03/25/2020 | WD | Warranty Deed | HENDRICKS, SEAN | SPAGNOLO, BETHEL J | | | $540,000.00 | 42536 | 4483988 |
| 2 | 01/07/2020 | QCD | Quit Claim Deed | HENDRICKS, SEAN | HENDRICKS, SEAN | | | $0.00 | 41796 | 4479240 |
| 3 | 03/19/2015 | WD | Warranty Deed | THOMAS, DAVE F | HENDRICKS, SEAN | | | $387,000.00 | 18922 | 4375468 |
| 4 | 07/15/2004 | WD | Warranty Deed | RATHERT, DARIN | THOMAS, DAVE F | | | $287,950.00 | 43206 | 4107052 |
| 5 | 04/29/2003 | WD | Warranty Deed | FAMILY LLC, LOREN RANKIN | RATHERT, DARIN | | | $59,950.00 | 31896 | 4057890 |
| 6 | 12/30/1997 | QCD | Quit Claim Deed | LOREN, RANKIN F | FAMILY LLC, LOREN RANKIN | | | $0.00 | 82774 | 98014389 |
| 7 | 11/01/1982 | OTHER | Other - Misc. Documents | Unknown | LUNDIN, MARK S | | | $0.00 | 22815 | 402936 |
Payout Agreement
| No payout information available.. |