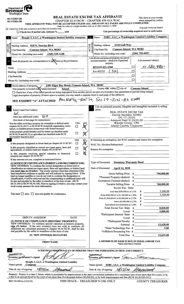
Property
Account |
| Property ID: | 602725 | Abbreviated Legal Description: | PT NW NW LY W OF EAST CAM DR & E OF ELGER BAY RD & N OF CCC #6 & #17 EX: PT NW LY W OF EAST CAM DR & E OF ELGER BAY RD & N OF FOLL DESC LN: BG NECR L28 BLK 6 CCC #6 N37*W81.94' CUR/L 446.30' N65*W370.97'TPB SD LN SWLY TP ELN ELGER BAY RD 799.19'N25*W OF & |
| Geographic ID: | R33119-421-1560 | Agent Code: | |
| Type: | Real | | |
| Tax Area: | 510 - APPRAISER-Stan/Cam Schl Dist, improved & 1 acre or less | Land Use Code | 65 |
| Open Space: | N | DFL | N |
| Historic Property: | N | Remodel Property: | N |
| Multi-Family Redevelopment: | N | | |
| Township: | 31 | Section: | 19 |
| Range: | R3 |
Location |
| Address: | 1283 ELGER BAY RD CAMANO ISLAND, WA 98282 | Mapsco: | |
| Neighborhood: | 56cRR-elger bay | Map ID: | 931 |
| Neighborhood CD: | 56cRRelger |
Owner |
| Name: | SSBC, LLC | Owner ID: | 293987 |
| Mailing Address: | 606 ILWACO AVE NE RENTON, WA 98059 | % Ownership: | 100.0000000000% |
| | | Exemptions: | |
Taxes and Assessment Details
Values
| (+) Improvement Homesite Value: | + | $0 | |
| (+) Improvement Non-Homesite Value: | + | $494,993 | |
| (+) Land Homesite Value: | + | $0 | |
| (+) Land Non-Homesite Value: | + | $300,000 | |
| (+) Curr Use (HS): | + | $0 | $0 |
| (+) Curr Use (NHS): | + | $0 | $0 |
| | | -------------------------- | |
| (=) Market Value: | = | $794,993 | |
| (–) Productivity Loss: | – | $0 | |
| | | -------------------------- | |
| (=) Subtotal: | = | $794,993 | |
| (+) Senior Appraised Value: | + | $0 | |
| (+) Non-Senior Appraised Value: | + | $794,993 | |
| | | -------------------------- | |
| (=) Total Appraised Value: | = | $794,993 | |
| (–) Senior Exemption Loss: | – | $0 | |
| (–) Exemption Loss: | – | $0 | |
| | | -------------------------- | |
| (=) Taxable Value: | = | $794,993 | |
Taxing Jurisdiction
| Owner: | SSBC, LLC | | |
| % Ownership: | 100.0000000000% | | |
| Total Value: | $794,993 | | |
| Tax Area: | 510 - APPRAISER-Stan/Cam Schl Dist, improved & 1 acre or less |
| CF | Conservation Futures | 0.0313996660 | $794,993 | $794,993 | $24.96 | | |
| EMS1 | Fire & Rescue Dist #1 Camano GEN (EMS) | 0.4998471806 | $794,993 | $794,993 | $397.38 | | |
| FIRE1 | Fire & Rescue Dist #1 Camano GEN | 1.2496603404 | $794,993 | $794,993 | $993.47 | | |
| FIRE1BOND | Fire & Rescue Dist #1 Camano BOND | 0.1630371212 | $794,993 | $794,993 | $129.61 | | |
| CE | County Current Expense | 0.3674210519 | $794,993 | $794,993 | $292.10 | | |
| CR | County Roads | 0.4614296361 | $794,993 | $794,993 | $366.83 | | |
| LIB | Library Sno-Isle GEN | 0.3039084203 | $794,993 | $794,993 | $241.61 | | |
| SCH205_401 | School 205-401 Enrichment | 1.3697998934 | $794,993 | $794,993 | $1,088.98 | | |
| SCH205BOND | School 205-401 BOND | 0.9354199323 | $794,993 | $794,993 | $743.65 | | |
| ST | State School | 1.4761226122 | $794,993 | $794,993 | $1,173.51 | | |
| ST2 | State School Part 2 | 0.7953803475 | $794,993 | $794,993 | $632.32 | | |
| | Total Tax Rate: | 7.6534262019 | | | | | |
| | | | | Taxes w/Current Exemptions: | $6,084.42 | | |
| | | | | Taxes w/o Exemptions: | $6,084.42 | | |
Improvement / Building
| Improvement #1: | COMMERCIAL | State Code: | F1 | 3672.0 sqft | Value: | $468,576 |
| Bathrooms: | 0 | Bedrooms: | 0 | | Ceiling: | DRY WALL SPRAYED | Cooling: | HEAT PUMP/CONV/V | | Exterior Wall/Cover: | WD/WD OR STEEL STUDS | Floor Covering: | CARPET 100% | | Floor Structure: | WOOD ON WOOD JOIST | Foundation: | CONCRETE | | Interior Finish: | OFFICE | Plumbing Fixture Cnt: | 1 | | Roof Structure/Cover: | STEEL TERNE |   |   |
|
| | Type | Description | Class CD | Sub Class CD | Year Built | Area |
| | BAS | BASE/MAIN FLOOR | 4 | 0 | 1968 | 2101.6 |
| | OP1 | OPEN PORCH SLAB | 4 | 0 | 1968 | 130.8 |
| | OP2 | OPEN PORCH W/STEPS | 4 | 0 | 1968 | 28.0 |
| | OP2 | OPEN PORCH W/STEPS | 4 | 0 | 1968 | 85.1 |
| | OP3 | OPEN PORCH W/ROOF | 4 | 0 | 1968 | 73.3 |
| | OWP | OPEN WOOD PORCH W/STEPS | 4 | 0 | 1968 | 224.6 |
| | oPV1 | PV/ASPH 2" | 4 | 0 | 1968 | 0.0 |
| | oUTI | UTILITY | 4 | 0 | 1968 | 0.0 |
| | DWN | DOWNSTAIRS LIVING AREA | 4 | 0 | 1968 | 1570.4 |
| Improvement #2: | COMMERCIAL | State Code: | Y | 108.0 sqft | Value: | $26,417 |
Sketch
Property Image
Land
| 1 | 16 | AC (00.51-01.00) | 0.8300 | 36154.80 | 0.00 | 0.00 | 1.00 | $300,000 | $0 |
Roll Value History
| 2026 | N/A | N/A | N/A | N/A | N/A |
| 2025 | $494,993 | $300,000 | $0 | $794,993 | $794,993 |
| 2024 | $489,053 | $290,000 | $0 | $779,053 | $779,053 |
| 2023 | $512,128 | $280,000 | $0 | $792,128 | $792,128 |
| 2022 | $402,256 | $260,000 | $0 | $662,256 | $662,256 |
| 2021 | $326,963 | $180,000 | $0 | $506,963 | $506,963 |
| 2020 | $184,733 | $180,000 | $0 | $364,733 | $364,733 |
| 2019 | $210,483 | $170,000 | $0 | $380,483 | $380,483 |
| 2018 | $210,503 | $150,000 | $0 | $360,503 | $360,503 |
| 2017 | $210,503 | $120,000 | $0 | $330,503 | $330,503 |
| 2016 | $210,584 | $120,000 | $0 | $330,584 | $330,584 |
| 2015 | $195,028 | $140,281 | $0 | $335,309 | $335,309 |
| 2014 | $195,028 | $140,281 | $0 | $335,309 | $335,309 |
| 2013 | $195,028 | $140,281 | $0 | $335,309 | $335,309 |
| 2012 | $195,028 | $140,281 | $0 | $335,309 | $335,309 |
| 2011 | $195,028 | $140,281 | $0 | $335,309 | $335,309 |
| 2010 | $258,487 | $140,281 | $0 | $398,768 | $398,768 |
| 2009 | $299,818 | $140,281 | $0 | $440,099 | $440,099 |
| 2008 | $304,125 | $147,512 | $0 | $451,637 | $451,637 |
Deed and Sales History
| 1 | 04/14/2020 | WD | Warranty Deed | HEAGLE 3, LLC | SSBC, LLC | | | $760,000.00 | 42682 | 4485014 |
| 2 | 01/22/2016 | CHGOFIDENT | DNU - Change In Identity | HEAGLE & OLSON NO 3, LLC | HEAGLE 3, LLC | | | $0.00 | 23016 | 4393402 |
| 3 | 10/30/2007 | WD | Warranty Deed | LIEN, JAY T | HEAGLE & OLSON NO 3, LLC, | | | $800,000.00 | 73637 | 4215438 |
| 4 | 12/01/1986 | WD | Warranty Deed | GARRISON, CO | LIEN, JAY T | | | $175,000.00 | 63824 | 86016853 |
| 5 | 03/01/1986 | OTHER | Other - Misc. Documents | GARRISON, CO | GARRISON, CO | | | $0.00 | 61514 | 85003014 |
| 6 | 01/01/1900 | OTHER | Other - Misc. Documents | Unknown | GARRISON, CO | | | $0.00 | 0 | 0 |
Payout Agreement
| No payout information available.. |