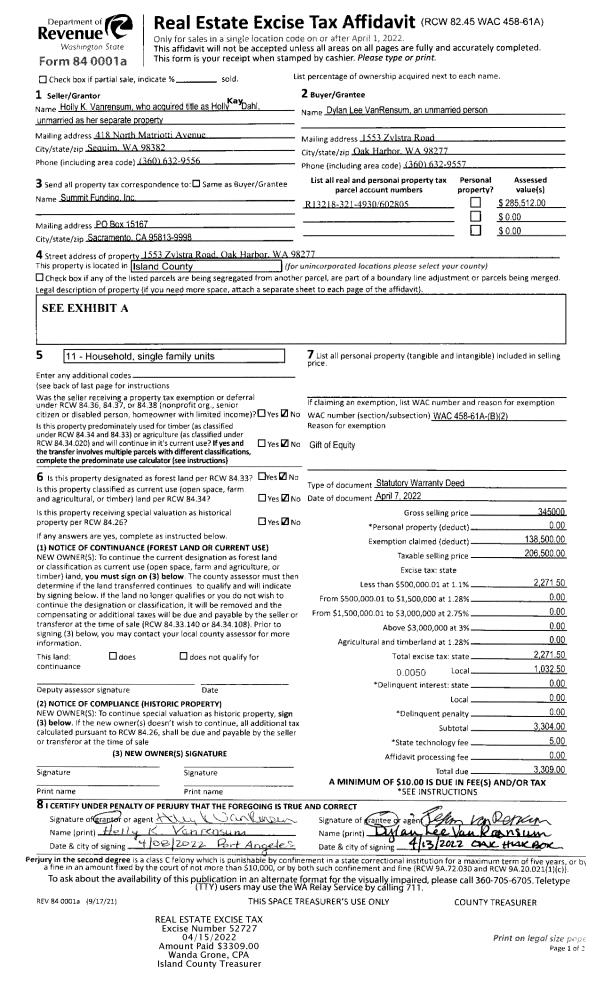
Property
Account |
| Property ID: | 602805 | Abbreviated Legal Description: | LOT 2 SP 81-69.13218.303-4350 V1 SP P331 AF#85002828 |
| Geographic ID: | R13218-321-4930 | Agent Code: | |
| Type: | Real | | |
| Tax Area: | 112 - APPRAISER-OH Schl Dist, outside OH, improved, greater than 1 acre | Land Use Code | 11 |
| Open Space: | N | DFL | N |
| Historic Property: | N | Remodel Property: | N |
| Multi-Family Redevelopment: | N | | |
| Township: | 32 | Section: | 18 |
| Range: | R1 |
Location |
| Address: | 1553 ZYLSTRA RD OAK HARBOR, WA 98277 | Mapsco: | |
| Neighborhood: | Cycle 1 | Map ID: | 140 |
| Neighborhood CD: | 1 |
Owner |
| Name: | VANRENSUM, DYLAN LEE | Owner ID: | 303815 |
| Mailing Address: | 1553 ZYLSTRA ROAD OAK HARBOR, WA 98277 | % Ownership: | 100.0000000000% |
| | | Exemptions: | |
Taxes and Assessment Details
Values
| (+) Improvement Homesite Value: | + | $0 | |
| (+) Improvement Non-Homesite Value: | + | $138,498 | |
| (+) Land Homesite Value: | + | $0 | |
| (+) Land Non-Homesite Value: | + | $260,000 | |
| (+) Curr Use (HS): | + | $0 | $0 |
| (+) Curr Use (NHS): | + | $0 | $0 |
| | | -------------------------- | |
| (=) Market Value: | = | $398,498 | |
| (–) Productivity Loss: | – | $0 | |
| | | -------------------------- | |
| (=) Subtotal: | = | $398,498 | |
| (+) Senior Appraised Value: | + | $0 | |
| (+) Non-Senior Appraised Value: | + | $398,498 | |
| | | -------------------------- | |
| (=) Total Appraised Value: | = | $398,498 | |
| (–) Senior Exemption Loss: | – | $0 | |
| (–) Exemption Loss: | – | $0 | |
| | | -------------------------- | |
| (=) Taxable Value: | = | $398,498 | |
Taxing Jurisdiction
| Owner: | VANRENSUM, DYLAN LEE | | |
| % Ownership: | 100.0000000000% | | |
| Total Value: | $398,498 | | |
| Tax Area: | 112 - APPRAISER-OH Schl Dist, outside OH, improved, greater than 1 acre |
| CF | Conservation Futures | 0.0313996660 | $398,498 | $398,498 | $12.51 | | |
| CEM1 | Cemetery #1 | 0.0040018856 | $398,498 | $398,498 | $1.59 | | |
| FIRE2 | Fire & Rescue Dist #2 N Whidbey GEN | 0.5381486274 | $398,498 | $398,498 | $214.45 | | |
| HOBOND | Hospital BOND | 0.1893405597 | $398,498 | $398,498 | $75.45 | | |
| HOGEN | Hospital GEN | 0.3848777722 | $398,498 | $398,498 | $153.37 | | |
| CE | County Current Expense | 0.3674210519 | $398,498 | $398,498 | $146.42 | | |
| CR | County Roads | 0.4614296361 | $398,498 | $398,498 | $183.88 | | |
| ISLANDEMS | Hospital GEN (EMS) | 0.4952018576 | $398,498 | $398,498 | $197.34 | | |
| LIB | Library Sno-Isle GEN | 0.3039084203 | $398,498 | $398,498 | $121.11 | | |
| NWHIDPRMT | P & R N Whidbey GEN | 0.1990272349 | $398,498 | $398,498 | $79.31 | | |
| SCH201MO | School 201 Enrichment | 2.3851112745 | $398,498 | $398,498 | $950.46 | | |
| ST | State School | 1.4761226122 | $398,498 | $398,498 | $588.23 | | |
| ST2 | State School Part 2 | 0.7953803475 | $398,498 | $398,498 | $316.96 | | |
| | Total Tax Rate: | 7.6313709459 | | | | | |
| | | | | Taxes w/Current Exemptions: | $3,041.08 | | |
| | | | | Taxes w/o Exemptions: | $3,041.08 | | |
Improvement / Building
| Improvement #1: | RESIDENTIAL | State Code: | Y | 936.0 sqft | Value: | $138,498 |
| Bathrooms: | 1 | Bedrooms: | 2 | | Ceiling: | DRYWALL PAINTED | Exterior Wall/Cover: | WOOD SIDING | | Floor Covering: | CARPET/VINYL 80-20 | Floor Structure: | WOOD W/SUBFLOOR | | Foundation: | CONCRETE | Heating: | BASEBOARD ELECTRIC | | Interior Finish: | DRYWALL PAINT | Plumbing Fixture Cnt: | 6 | | Roof Slope: | 4" IN 12" | Roof Structure/Cover: | CJ ASPHALT |
|
| | Type | Description | Class CD | Sub Class CD | Year Built | Area |
| | BAS | BASE/MAIN FLOOR | 3 | 0 | 1961 | 936.0 |
| | OP2 | OPEN PORCH W/STEPS | 3 | 0 | 1961 | 21.0 |
| | OCP | OPEN CARPORT | 3 | 0 | 1961 | 300.0 |
| | OWR | OPEN WOOD PORCH W/STEPS/ROOF | 3 | 0 | 1961 | 240.0 |
| | CPD | OPEN CARPORT DIRT FLOOR | 3 | 0 | 1961 | 240.0 |
| | DGR | DETACHED GARAGE | 3 | 0 | 1961 | 400.0 |
| | UTY | STORAGE/UTILITY | 3 | 0 | 1961 | 160.0 |
Sketch
Property Image
Land
| 1 | 18 | AC (02.01-03.00) | 0.0000 | 104544.00 | 0.00 | 0.00 | 1.00 | $260,000 | $0 |
Roll Value History
| 2026 | N/A | N/A | N/A | N/A | N/A |
| 2025 | $138,498 | $260,000 | $0 | $398,498 | $398,498 |
| 2024 | $143,881 | $260,000 | $0 | $403,881 | $403,881 |
| 2023 | $129,062 | $240,000 | $0 | $369,062 | $369,062 |
| 2022 | $119,099 | $220,000 | $0 | $339,099 | $339,099 |
| 2021 | $105,512 | $180,000 | $0 | $285,512 | $285,512 |
| 2020 | $103,403 | $140,000 | $0 | $243,403 | $243,403 |
| 2019 | $73,559 | $200,000 | $0 | $273,559 | $273,559 |
| 2018 | $73,887 | $160,000 | $0 | $233,887 | $233,887 |
| 2017 | $64,939 | $150,000 | $0 | $214,939 | $214,939 |
| 2016 | $66,057 | $120,000 | $0 | $186,057 | $186,057 |
| 2015 | $67,172 | $100,000 | $0 | $167,172 | $167,172 |
| 2014 | $68,289 | $97,750 | $0 | $166,039 | $166,039 |
| 2013 | $69,408 | $97,750 | $0 | $167,158 | $167,158 |
| 2012 | $70,524 | $97,750 | $0 | $168,274 | $168,274 |
| 2011 | $75,806 | $115,000 | $0 | $190,806 | $190,806 |
| 2010 | $76,434 | $115,000 | $0 | $191,434 | $191,434 |
| 2009 | $79,476 | $132,000 | $0 | $211,476 | $211,476 |
| 2008 | $85,205 | $132,000 | $0 | $217,205 | $217,205 |
| 2007 | $86,439 | $132,000 | $0 | $218,439 | $218,439 |
Deed and Sales History
| 1 | 04/07/2022 | WD | Warranty Deed | DAHL, HOLLY KAY | VANRENSUM, DYLAN LEE | | | $206,500.00 | 52727 | 4543448 |
| 2 | 01/30/2014 | QCD | Quit Claim Deed | DAHL, BRETT A | DAHL, HOLLY KAY | | | $0.00 | 44952 | 4497924 |
| 3 | 11/04/2002 | WD | Warranty Deed | VAN RENSUM, EDWARD D | DAHL, BRETT A | | | $130,000.00 | 24466 | 4036671 |
| 4 | 01/01/1900 | OTHER | Other - Misc. Documents | Unknown | VAN RENSUM, EDWARD D | | | $0.00 | 0 | 0 |
Payout Agreement
| No payout information available.. |